407-990-2746
Menu

55 Ocean Crest Way Unit: Unit: 922, Palm Coast, FL

NEXT
PREV
$760,000

($409/sqft)

List Status: Active
55 Ocean Crest Way
Palm Coast, FL 32137


3 beds
2 baths
1859 living sqft
Top Features
  • View: Water, Golf Course
  • Subdivision: Northshore 05
  • Built in  2003
  • Condominium
Description
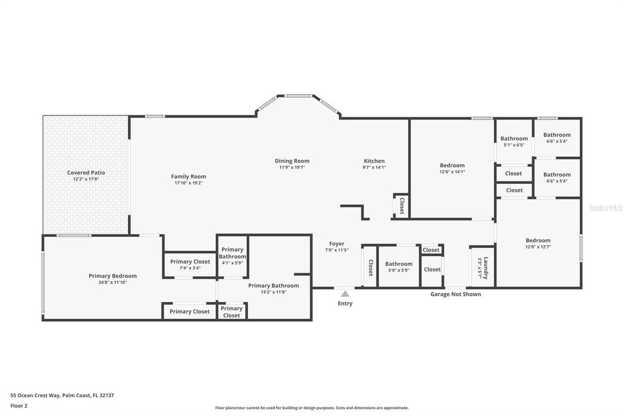
Rare Hammock villa with private 2-car garage, beautifully updated and move-in ready. This light-filled 3-bedroom, 2-bath residence with an additional half bath offers 1,859 square feet and lives like a home with 10’ ceilings, private elevator access, and an exclusive setting of only two residences per floor (just six in the building). Recent updates include luxury vinyl plank flooring throughout, a completely repainted interior, new stainless steel kitchen appliances, new ceiling fans, updated faucets and plumbing fixtures, all new toilets, new garbage disposal, and a WiFi-enabled smart thermostat. The living area features a custom dry bar with wine fridge, and the home includes draperies and wood blinds. The private 2-car garage is enhanced with an epoxy-coated floor, a rare and highly desirable feature in the Hammock. Enjoy a spacious covered balcony overlooking the lake and golf course, with abundant natural light and refreshing ocean breezes. This property offers flexibility as a primary residence, vacation home, or investment opportunity through the resort rental program. Optional membership provides access to exceptional amenities including two championship golf courses, multiple resort-style pools, oceanfront access to the Atlantic, several dining venues including new pizza and gelato offerings, and tennis facilities. A rare opportunity to own a turn-key villa with garage in the Hammock, combining privacy, updates, and resort-style living.
Property Details
Additional Information
Additional Parcels YN
false
Alternate Key Folio Num
0411313605000900922
Appliances
Built-In Oven, Dishwasher, Disposal, Dryer, Electric Water Heater, Microwave, Refrigerator
Association Amenities
Elevators, Gated, Maintenance, Security
Association Email
besser@tomokapm.com
Association Fee Includes
Guard - 24 Hour, Cable TV, Common Area Taxes, Escrow Reserves Fund, Fidelity Bond, Insurance, Internet, Maintenance Structure, Maintenance Grounds, Maintenance, Pest Control, Private Road, Security, Sewer, Trash, Water
Association URL
www.tomokapm.com
Association YN
false
Attached Garage YN
true
Available For Lease YN
1
Bathrooms Total Integer
3
Building Area Source
Builder
Building Area Total
2076
Building Area Total Srch SqM
192.87
Building Area Units
Square Feet
Building Elevator YN
1
CDDYN
1
Calculated List Price By Calculated SqFt
408.82
Carport YN
false
Community Features
Community Mailbox, Deed Restrictions, Gated Community - Guard, Golf Carts OK, Golf, Irrigation-Reclaimed Water, Sidewalks, Street Lights
Complex Community Name NCCB
HAMMOCK BEACH VILLAS
Condo Fees
1503
Condo Fees Term
Monthly
Construction Materials
Block, Stucco
Cooling
Central Air
Country
US
Current Price
760000.00
Direction Faces
North
Elementary School
Old Kings Elementary
Exterior Features
Balcony, Lighting, Private Entrance, Rain Gutters, Sliding Doors
Fireplace YN
false
Flood Zone Code
X500
Flood Zone Date
2018-06-06
Flood Zone Panel
12035C0127E
Floor Number
3
Flooring
Luxury Vinyl
Foundation Details
Slab
Furnished
Furnished
Garage Spaces
2
Garage YN
true
Heating
Central, Electric, Heat Pump
High School
Matanzas High
Home Warranty YN
false
Interior Features
Ceiling Fans(s), Crown Molding, Elevator, High Ceilings, Living Room/Dining Room Combo, Open Floorplan, Primary Bedroom Main Floor, Solid Surface Counters, Solid Wood Cabinets, Split Bedroom, Thermostat, Walk-In Closet(s), Window Treatments
Internet Address Display YN
true
Internet Automated Valuation Display YN
false
Internet Consumer Comment YN
false
Internet Entire Listing Display YN
true
Laundry Features
Electric Dryer Hookup, Inside, Laundry Closet, Washer Hookup
Levels
One
List AOR
Flagler
Living Area Meters
172.71
Living Area Source
Builder
Living Area Units
Square Feet
Lot Size Acres
0.27
Lot Size Square Feet
11594
Lot Size Square Meters
1077
Middle Or Junior School
Indian Trails Middle-FC
Minimum Lease
1-7 Days
Modification Timestamp
2026-04-24T20:38:10.426Z
Monthly Condo Fee Amount
1503
New Construction YN
false
Occupant Type
Vacant
Other Equipment
Irrigation Equipment, Private Entrance
Ownership
Fee Simple
Parcel Number
04-11-31-3605-00090-0922
Patio And Porch Features
Covered
Pet Size
Extra Large (101+ Lbs.)
Pets Allowed
Cats OK, Dogs OK
Pool Private YN
false
Postal Code Plus 4
3288
Property Condition
Completed
Property Description
Corner Unit, End Unit, In M/H Community
Public Survey Range
31
Public Survey Section
04
RATIO Current Price By Calculated SqFt
408.82
Realtor Info
As-Is, CDD Addendum required, Docs Available, Engineering Report, Floor Plan Available, No Sign, Short Term Rental Allowed, Subject to Zoning, Termite Bond/Warranty
Road Responsibility
Private Maintained Road
Road Surface Type
Concrete
Roof
Tile
Room Count
7
Security Features
Fire Alarm, Fire Sprinkler System, Gated Community, Security System, Security System Owned, Smoke Detector(s)
Senior Community YN
false
Sewer
Private Sewer
Showing Requirements
Sentri Lock Box, Appointment Only, ShowingTime
Status Change Timestamp
2026-04-24T18:39:55.000Z
Stories Total
3
Tax Annual Amount
7825
Tax Block
-
Tax Book Number
-
Tax Legal Description
VILLA AT HAMMOCK BEACH CONDO PHASE 4 UNIT 922 & UNDIVIDED INT IN COMMON ELEMENTS OR 973 PG 1938OR 978/1903 OR 1932/ 1725
Tax Lot
-
Tax Other Annual Assessment Amount
135
Tax Year
2025
Total Annual Fees
18036.00
Total Monthly Fees
1503.00
Township
11
Universal Property Id
US-12035-N-0411313605000900922-S-922
Unparsed Address
55 OCEAN CREST WAY #922
Utilities
Cable Connected, Electricity Connected, Phone Available, Private, Sewer Connected, Underground Utilities, Water Connected
Water Access
Beach, Gulf/Ocean
Water Access YN
1
Water Source
Private
Water View
Lake
Water View YN
1
Waterfront YN
false
Window Features
Blinds, Drapes, Rods, Storm Window(s), Window Treatments
Zoning
PUD
Zoning Compatible YN
1
Neighborhood Map
Popup

Property Photos
Listing Photo
Listing Photo
Listing Photo
Listing Photo
Listing Photo
Listing Photo
Listing Photo
Listing Photo
Listing Photo
Listing Photo
Listing Photo
Listing Photo
Listing Photo
Listing Photo
Listing Photo
Listing Photo
Listing Photo
Listing Photo
Listing Photo
Listing Photo
Listing Photo
Listing Photo
Listing Photo
Listing Photo
Listing Photo
Listing Photo
Listing Photo
Listing Photo
Listing Photo
Listing Photo
Listing Photo
Listing Photo
Listing Photo
Listing Photo
Listing Photo
Listing Photo
Listing Photo
Listing Photo
Listing Photo
Listing Photo
Listing Photo
Listing Photo
Listing Photo
Listing Photo
Listing Photo
Listing Photo
Listing Photo
Listing Photo
Listing Photo
Listing Photo
Listing Photo
Listing Photo
Listing Photo
Listing Photo
Listing Photo
Listing Photo
Listing Photo
Listing Photo
Listing Photo
Listing Photo
Listing Photo
Listing Photo
Listing Photo
Listing Photo
Listing Photo
Listing Photo
Listing Photo
Listing Photo
Listing Photo
Listing Photo
Listing Photo
Listing Photo
Listing Photo
Listing Photo
Listing Photo
Listing Photo
Listing Photo
Listing Photo
Listing Photo
Listing Photo
Listing Photo
Listing Photo
Listing Photo
Listing Photo
Listing Photo
Listing Photo
Listing Photo
Listing Photo
Listing Photo
Listing Photo
Listing Photo
Listing Photo
Listing Photo
Listing Photo
Listing Photo
Listing Photo
Listing Photo
Listing Photo
Listing Photo
Listing Photo
Listing Photo
Listing Photo
Listing Photo
Listing Photo
Listing Photo
Listing Photo
Listing Photo
Listing Photo
Listing Photo
Listing Photo
Listing Photo
Listing Photo
Listing Photo
Listing Photo
Listing Photo
Listing Photo
Listing Photo
Listing Photo
Listing Photo
Listing Photo
Listing Photo
Listing Photo
Listing Photo
Listing Photo
Listing Photo
Listing Photo
Listing Photo
Listing Photo
Listing Photo
Listing Photo
Listing Photo
Listing Photo
Listing Photo
Listing Photo
Listing Photo
Listing Photo
Listing Photo
Listing Photo
Listing Photo
Listing Photo
Listing Photo
Listing Photo
Listing Photo
Listing Photo
Listing Photo
Listing Photo
Listing Photo
Listing Photo
Listing Photo
Listing Photo
Listing Photo
Listing Photo
Listing Photo
Listing Photo
Listing Photo
Listing Photo
Listing Photo
Listing Photo
Listing Photo
Listing Photo
Listing Photo
Listing Photo
Listing Photo
Listing Photo

MLS #MFRFC317863 Listing courtesy of Trademark Realty Group Llc provided by Stellar MLS.

Similar Listings

$689,000
23 Christopher Court
Palm Coast
3BR/2BA
| Active
$689,000
9 Coolidge Court
Palm Coast
3BR/2BA
| Active
$689,000
60 Surfview Drive
Palm Coast
3BR/2BA
| Active
$699,000
35 Edgely Lane
Palm Coast
3BR/2BA
| Active



All listing information is deemed reliable but not guaranteed and should be independently verified through personal inspection by appropriate professionals. Listings displayed on this website may be subject to prior sale or removal from sale; availability of any listing should always be independent verified. Listing information is provided for consumer personal, non-commercial use, solely to identify potential properties for potential purchase; all other use is strictly prohibited and may violate relevant federal and state law. The source of the listing data is as follows: Stellar MLS (updated 4/24/26 10:58 PM) |

Listing Search



Translate Tool

Featured Listings
Clermont Real Estate
$920,000
4 BED
2 BATH
This remodeled lakefront home in Clermont has everything you’re looking for and more. Inside, no detail was overlooked. ... Read More
Lakeland Real Estate
$1,295,000
5 BED
3 BATH
Welcome to 6538 Eagle View Loop, an exceptional 5-bedroom, 3-bath luxury pool home nestled within the gated golf communi... Read More
Sarasota Real Estate
$965,000
2 BED
2 BATH
Most people see a house; the wise buyer sees the checklist of things they won't have to deal with for the next twenty ye... Read More
Clearwater Real Estate
$899,000
2 BED
2 BATH
Welcome to Water’s Edge, a premier luxury condominium complex in the heart of Downtown Clearwater, offering refined wate... Read More
Venice Real Estate
$1,300,000
4 BED
3 BATH
Once in a generation does a property like this come to market. Commanding over 2 acres of private waterfront land at the... Read More
Sarasota Real Estate
$1,260,000
3 BED
2 BATH
Welcome home to the heart of Sarasota's Southgate neighborhood! This stunning, fully rebuilt residence blends modern com... Read More
Madeira Beach Real Estate
$839,900
3 BED
2 BATH
Live where every day feels like a vacation—just three blocks from the sugar-white sands of Madeira Beach and a breezy 5-... Read More
Reunion Real Estate
$909,900
5 BED
4 BATH
***ACTIVE MEMBERSHIP AVAILABLE*** MUST SEE HOME!!! Located in the beautiful Reunion Resort in the desirable Homestead co... Read More
Mount Dora Real Estate
$899,000
4 BED
3 BATH
One-of-a-kind Mediterranean-style estate on a private 1-acre homesite in the desirable Elysium community of Mount Dora, ... Read More
Lecanto Real Estate
$1,099,900
4 BED
4 BATH
STATELY AND IMPRESSIVE, this Wheeler-built estate home welcomes you with a circular drive & grand double door entry, set... Read More
Contact Sandra Pardo

407-990-2746

Wendy Morris LLC

Licensed in the State of Florida
BK 3146762
16797 Broadwater Avenue
Winter Garden, Florida 34787

Your privacy is our utmost concern. We will never sell your personal information. Privacy Policy
©2026 sandrapardohomes.com - all rights reserved. | Site Map