407-990-2746
Menu

290 Cocoanut Avenue Unit: Unit: 601, Sarasota, FL

NEXT
PREV
$3,270,000

($1,000/sqft)

List Status: Active
290 Cocoanut Avenue
Sarasota, FL 34236


3 beds
3 baths
3270 living sqft
Top Features
  • View: Water, Park/Greenbelt, Trees/Woods, Pool, City
  • Subdivision: The Edge Sarasota
  • Built in  2025
  • Condominium
Description
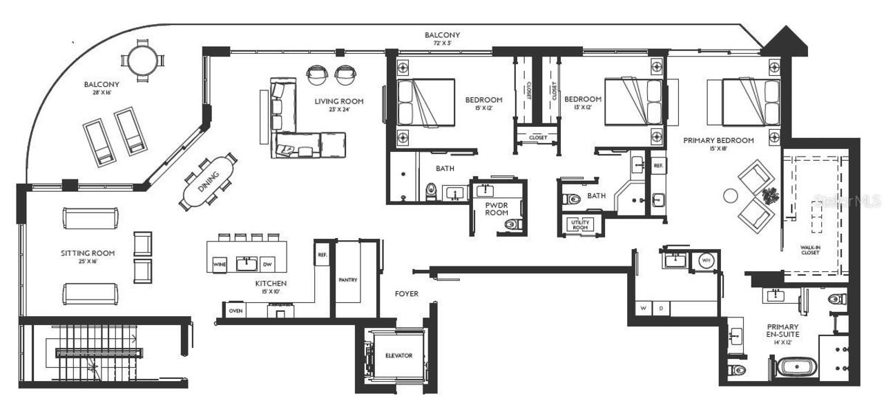
Pre-Construction. To be built. Discover a rare opportunity at The Edge Sarasota—where boutique living meets vibrant city life. Residence A is a premier 3-bedroom, 3-bathroom corner residence offering over 3,200 square feet of open, modern living in one of Sarasota’s most in-demand downtown locations. From the 6th floor, this light-filled residence wraps the northwest side of the building offers exceptional natural light with floor-to-ceiling walls of glass. Step out onto your generous wraparound terrace and watch the sunset over the city. Designed to be as unique as you, the home features a great room and separate living room that connects to a chef’s kitchen with Italian cabinetry, Wolf and Sub-Zero appliances including a gas cooktop, a large island with waterfall edge and a butler’s pantry for easy entertaining. A thoughtfully designed owners’ suite provides a true retreat with a gracious foyer, midnight bar, walk-in closet and en suite bathroom featuring dual vanities, private water closets, glass enclosed shower and soaking tub. Beyond your residence, enjoy a curated collection of luxury amenities including a resort-style pool deck with hot and cold plunge pools, cabanas and two outdoor kitchens. The owners’ club focuses on wellness and entertainment with a fully equipped fitness center complete with a yoga room and infrared sauna. Two treatments rooms afford plenty of space for your personal massage therapist or a physical therapy session. The social room includes a lounge, bar, game room and catering kitchen. For more intimate gatherings, reserve the private dining room featuring resident wine lockers and a separate bar area. The building’s boutique size—only 27 residences—creates a community feel in the heart of Sarasota’s vibrant Arts District. Walk to acclaimed restaurants, galleries, boutiques, and the Bayfront, embracing a lifestyle that combines culture, convenience, and sophistication. Construction is progressing with limited opportunities to customize
Property Details
Additional Information
Additional Lease Restrictions
See condo docs
Additional Parcels YN
false
Additional Rooms
Inside Utility
Appliances
Built-In Oven, Cooktop, Dishwasher, Disposal, Dryer, Electric Water Heater, Exhaust Fan, Indoor Grill, Range Hood, Refrigerator, Washer, Wine Refrigerator
Approval Process
See condo docs
Architectural Style
Contemporary
Association Amenities
Clubhouse, Elevator(s), Fitness Center, Gated, Lobby Key Required, Maintenance, Other, Pool, Recreation Facilities, Security, Spa/Hot Tub, Storage, Vehicle Restrictions, Wheelchair Access
Association Fee Frequency
Quarterly
Association Fee Includes
Common Area Taxes, Pool, Escrow Reserves Fund, Fidelity Bond, Insurance, Maintenance Structure, Maintenance Grounds, Management, Pest Control, Recreational Facilities, Sewer, Trash, Water
Association YN
true
Attached Garage YN
true
Available For Lease YN
1
Bathrooms Total Integer
4
Building Area Source
Builder
Building Area Total
3934
Building Area Total Srch SqM
365.48
Building Area Units
Square Feet
Building Elevator YN
1
Calculated List Price By Calculated SqFt
1000.00
Carport YN
false
Community Features
Deed Restrictions, Fitness Center, Pool, Sidewalks, Special Community Restrictions, Wheelchair Access
Condo Fees
3564
Condo Fees Term
Monthly
Condo Land Included YN
1
Construction Materials
Block, Concrete, Stucco
Cooling
Central Air, Zoned
Country
US
Cumulative Days On Market
229
Current Price
3270000.00
Direction Faces
Northwest
Elementary School
Alta Vista Elementary
Exterior Features
Balcony, Dog Run, Lighting, Sidewalk, Sliding Doors
Fencing
Fenced
Fireplace YN
false
Flood Zone Code
X500
Flood Zone Date
2016-11-04
Flood Zone Panel
12115C0133F
Floor Number
6
Flooring
Tile
Foundation Details
Slab
Furnished
Unfurnished
Garage Dimensions
09x19
Garage Spaces
2
Garage YN
true
Green Verification Count
1
Heating
Central, Exhaust Fan, Natural Gas, Zoned
High School
Booker High
Home Warranty YN
true
Interior Features
Eat-in Kitchen, Elevator, High Ceilings, Living Room/Dining Room Combo, Open Floorplan, Primary Bedroom Main Floor, Solid Surface Counters, Split Bedroom, Stone Counters, Walk-In Closet(s), Wet Bar
Internet Address Display YN
true
Internet Automated Valuation Display YN
true
Internet Consumer Comment YN
true
Internet Entire Listing Display YN
true
Laundry Features
Inside, Laundry Room
Lease Restrictions YN
1
Levels
One
List AOR
Sarasota - Manatee
Living Area Meters
303.79
Living Area Source
Builder
Living Area Units
Square Feet
Lot Features
Corner Lot, City Limits, Near Golf Course, Near Marina, Near Public Transit, Oversized Lot, Sidewalk, Paved
Lot Size Acres
0.55
Lot Size Square Feet
24133
Lot Size Square Meters
2242
Middle Or Junior School
Booker Middle
Minimum Lease
6 Months
Modification Timestamp
2026-01-31T21:06:13.225Z
Monthly Condo Fee Amount
3564
New Construction YN
true
Number Of Pets
2
Occupant Type
Vacant
Other Equipment
Generator
Other Structures
Cabana
Ownership
Condominium
Parcel Number
2026130021
Patio And Porch Features
Covered
Pet Restrictions
see condo docs for restrictions
Pet Size
Extra Large (101+ Lbs.)
Pets Allowed
Number Limit
Pool Dimensions
30 x 18
Pool Private YN
false
Postal Code Plus 4
4918
Projected Completion Date
2026-11-01T00:00:00.000
Property Condition
Pre-Construction
Property Description
Corner Unit, High Rise
Public Survey Range
18
Public Survey Section
19
RATIO Current Price By Calculated SqFt
1000.00
Realtor Info
Brochure Available, Floor Plan Available, Lease Restrictions, See Attachments
Road Responsibility
Public Maintained Road
Road Surface Type
Concrete, Paved
Roof
Concrete, Other
Room Count
8
SW Subdiv Community Name
Not Applicable
Security Features
Fire Alarm, Fire Sprinkler System, Gated Community, Key Card Entry, Secured Garage/Parking, Security Gate, Smoke Detector(s)
Senior Community YN
false
Sewer
Public Sewer
Showing Requirements
Appointment Only, Call Listing Agent
Spa Features
Heated, In Ground
Spa YN
true
Status Change Timestamp
2025-06-16T14:31:44.000Z
Stories Total
10
Tax Block
17
Tax Book Number
A-30
Tax Legal Description
LOTS 1, 3, 5, 7 & 9, BLK 17, LESS R/W FOR FRUITVILLE RD DESC IN OR 2059/2402, PLAT OF SARASOTA
Tax Lot
1
Tax Year
2025
Total Acreage
1/2 to less than 1
Total Annual Fees
42768.00
Total Monthly Fees
3564.00
Township
36
Universal Property Id
US-12115-N-2026130021-S-6A
Unparsed Address
290 COCOANUT AVE #601
Utilities
BB/HS Internet Available, Cable Available, Electricity Connected, Natural Gas Connected, Public, Sewer Connected, Water Connected
Water Body Name
SARASOTA BAY
Water Source
Public
Water View
Bay/Harbor - Partial, Marina
Water View YN
1
Waterfront YN
false
Zoning
DTC
Zoning Compatible YN
1
Neighborhood Map
Popup

Property Photos
Listing Photo
Listing Photo
Listing Photo
Listing Photo
Listing Photo
Listing Photo
Listing Photo
Listing Photo
Listing Photo
Listing Photo
Listing Photo
Listing Photo
Listing Photo
Listing Photo
Listing Photo
Listing Photo
Listing Photo
Listing Photo
Listing Photo
Listing Photo
Listing Photo
Listing Photo
Listing Photo
Listing Photo
Listing Photo
Listing Photo
Listing Photo
Listing Photo
Listing Photo
Listing Photo
Listing Photo
Listing Photo
Listing Photo
Listing Photo
Listing Photo
Listing Photo
Listing Photo
Listing Photo
Listing Photo
Listing Photo
Listing Photo
Listing Photo
Listing Photo
Listing Photo
Listing Photo
Listing Photo
Listing Photo
Listing Photo
Listing Photo
Listing Photo
Listing Photo
Listing Photo

MLS #MFRA4655024 Listing courtesy of Michael Saunders & Company provided by Stellar MLS.

Similar Listings

$2,950,000
3127 Bay Shore Road
Sarasota
3BR/3BA
| Active
$2,950,000
223 Golden Gate Point
Sarasota
3BR/3BA
| Active
$2,988,000
688 Golden Gate Point
Sarasota
3BR/3BA
| Pending
$2,995,000
258 Golden Gate Point
Sarasota
3BR/3BA
| Pending



All listing information is deemed reliable but not guaranteed and should be independently verified through personal inspection by appropriate professionals. Listings displayed on this website may be subject to prior sale or removal from sale; availability of any listing should always be independent verified. Listing information is provided for consumer personal, non-commercial use, solely to identify potential properties for potential purchase; all other use is strictly prohibited and may violate relevant federal and state law. The source of the listing data is as follows: Stellar MLS (updated 3/27/26 11:46 PM) |

Listing Search



Translate Tool

Featured Listings
Winter Springs Real Estate
$899,999
4 BED
3 BATH
Price Improvement! Now offered at $899,000 — Exceptional opportunity in the Tuskawilla / Winter Springs area. This beaut... Read More
Maitland Real Estate
$995,000
3 BED
2 BATH
Rare opportunity to own a private 0.66-acre estate lot in Maitland with deeded direct Lake Sybelia access. 790 S Lake Sy... Read More
Winter Garden Real Estate
$850,000
5 BED
3 BATH
PROFESSIONAL PHOTOS AND 360 TOUR COMING SOON! Nestled on a premier corner lot within the guard-gated enclave of STONEYBR... Read More
Orlando Real Estate
$875,000
4 BED
3 BATH
Welcome to a timeless masterpiece near the heart of Delaney Park—where historic charm meets elevated luxury living. Orig... Read More
St Petersburg Real Estate
$975,000
4 BED
3 BATH
Welcome to this beautiful Mediterranean-style, two-story home offering 2,761 sq ft of well-maintained living space, feat... Read More
Mount Dora Real Estate
$899,900
3 BED
3 BATH
WELCOME to your exquisite, UPSCALE RETREAT, in the prestigious GATED community of LOCH LEVEN. This stunning 3-bedroom, 3... Read More
Fort Myers Real Estate
$1,075,000
5 BED
4 BATH
Beautifully updated along the McGregor corridor with calming views of the Caloosahatchee, this Old Whiskey Creek residen... Read More
Hernando Beach Real Estate
$1,100,000
3 BED
3 BATH
One or more photo(s) has been virtually staged. GORGEOUS TROPICAL PARADISE !!! PANORAMIC VIEW from this Direct Gulf Acce... Read More
Lakeland Real Estate
$810,000
4 BED
3 BATH
This exceptional South Lakeland estate is the definition of luxury living, offering 4 bedrooms, 3 bathrooms, a dedicated... Read More
Tampa Real Estate
$999,000
3 BED
2 BATH
Here’s your chance to own a coveted South Tampa bungalow for UNDER A MILLION dollars. Located in one of South Tampa’s mo... Read More
Contact Sandra Pardo

407-990-2746

Wendy Morris LLC

Licensed in the State of Florida
BK 3146762
16797 Broadwater Avenue
Winter Garden, Florida 34787

Your privacy is our utmost concern. We will never sell your personal information. Privacy Policy
©2026 sandrapardohomes.com - all rights reserved. | Site Map