407-990-2746
Menu

9168 Sinatra Lane, Orlando, FL

NEXT
PREV
$575,000

($308/sqft)

List Status: Active
9168 Sinatra Lane
Orlando, FL 32827


3 beds
3 baths
1867 living sqft
Top Features
  • View: City
  • Subdivision: Alora
  • Built in  2026
  • Townhouse
Description
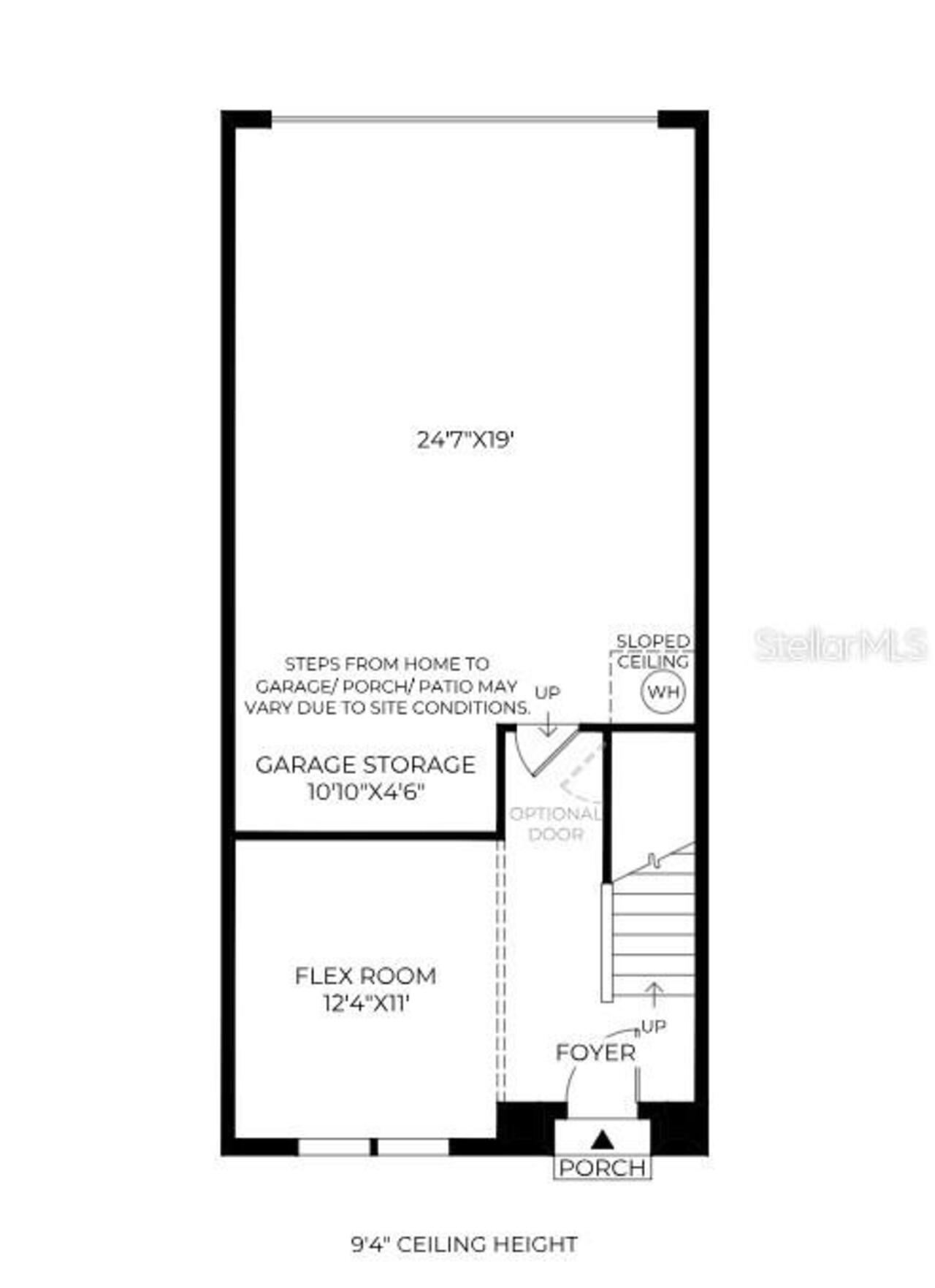
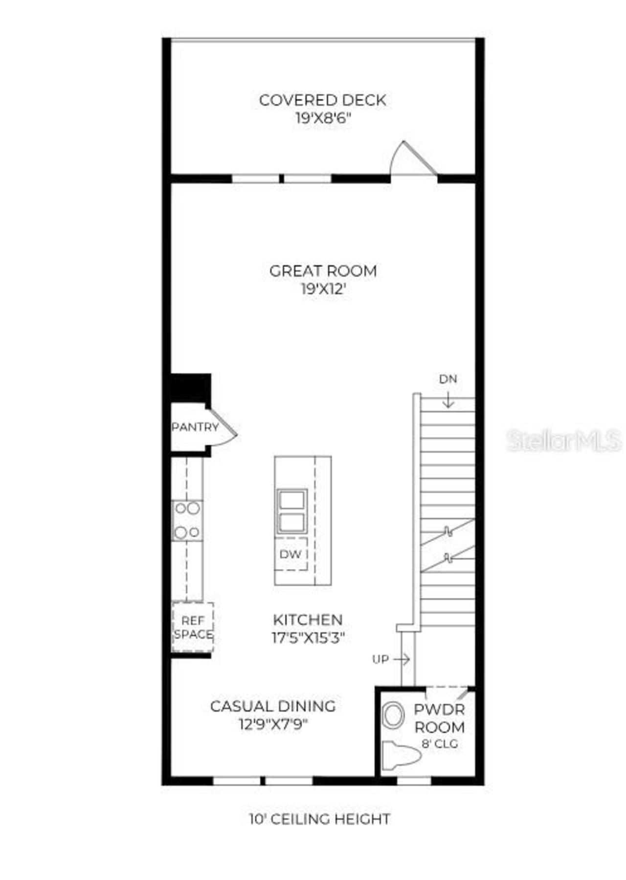
The Atwood is a stylish and thoughtfully planned home design. The foyer opens to a versatile flex room and stairs leading to the main living level. On the second floor, a charming casual dining area overlooks the well-equipped kitchen, which features an island with a breakfast bar and ample counter space and cabinets. Relax in the comfortable great room, or out on the beautiful covered deck. The third floor reveals a loft space ideal for a variety of uses. The lovely primary bedroom suite is enhanced by a walk-in closet and a serene bath with a dual-sink vanity, a luxe shower, and a private water closet. A charming secondary bedroom offers a private bath. Other highlights include an everyday entry off the two-car garage, a second-floor powder room, and convenient bedroom-level laundry.
Property Details
Additional Information
Additional Lease Restrictions
No short term rental allowed
Additional Parcels YN
false
Additional Rooms
Den/Library/Office, Loft
Appliances
Built-In Oven, Cooktop, Dishwasher, Disposal, Dryer, Electric Water Heater, Exhaust Fan, Microwave, Range Hood, Refrigerator, Washer
Architectural Style
Contemporary
Association Amenities
Fitness Center, Pool
Association Email
isabel.diaz@fsresidential.com
Association Fee
432
Association Fee Frequency
Quarterly
Association Fee Includes
Maintenance Grounds, Recreational Facilities
Association Fee Requirement
Required
Association URL
www.fsresidential.com
Association YN
true
Attached Garage YN
true
Available For Lease YN
1
Bathrooms Total Integer
4
Builder Model
ATWOOD
Builder Name
Toll Brothers
Building Area Source
Builder
Building Area Total
2599
Building Area Total Srch SqM
241.45
Building Area Units
Square Feet
CDDYN
1
Calculated List Price By Calculated SqFt
307.98
Carport YN
false
Community Features
Community Mailbox, Deed Restrictions, Dog Park, Irrigation-Reclaimed Water, Street Lights
Complex Community Name NCCB
ALORA
Construction Materials
Block, Stucco, Vinyl Siding, Frame
Cooling
Central Air
Country
US
Cumulative Days On Market
119
Current Price
575000.00
Direction Faces
North
Exterior Features
Balcony, Lighting, Rain Gutters, Sidewalk
Fireplace YN
false
Flood Zone Code
X
Flooring
Carpet, Ceramic Tile, Hardwood, Luxury Vinyl
Foundation Details
Slab
Furnished
Unfurnished
Garage Spaces
2
Garage YN
true
Heating
Heat Pump
High School
Lake Nona High
Home Warranty YN
true
Interior Features
In Wall Pest System, Living Room/Dining Room Combo, PrimaryBedroom Upstairs, Solid Surface Counters, Thermostat, Tray Ceiling(s), Walk-In Closet(s)
Internet Address Display YN
true
Internet Automated Valuation Display YN
true
Internet Consumer Comment YN
true
Internet Entire Listing Display YN
true
Laundry Features
Laundry Room, Upper Level
Lease Restrictions YN
1
Levels
Three Or More
List AOR
Orlando Regional
Living Area Meters
173.45
Living Area Source
Builder
Living Area Units
Square Feet
Lot Features
Cleared
Lot Size Acres
0.03
Lot Size Square Feet
1300
Lot Size Square Meters
121
Minimum Lease
7 Months
Modification Timestamp
2026-05-10T21:05:15.742Z
Monthly HOA Amount
144.00
New Construction YN
true
Occupant Type
Vacant
Other Equipment
Irrigation Equipment
Ownership
Fee Simple
Parcel Number
30-24-36-7794-02-0032
Pet Restrictions
See county restrictions
Pets Allowed
Yes
Pool Private YN
false
Previous List Price
609000
Price Change Timestamp
2026-05-06T14:55:14.000Z
Property Condition
Completed
Public Survey Range
30
Public Survey Section
36
RATIO Current Price By Calculated SqFt
307.98
Realtor Info
CDD Addendum required
Road Surface Type
Asphalt
Roof
Shingle
Room Count
8
Security Features
Fire Sprinkler System, Security System Owned, Smoke Detector(s)
Senior Community YN
false
Sewer
Public Sewer
Showing Requirements
Appointment Only, Call Listing Agent
Status Change Timestamp
2026-01-11T22:52:06.000Z
Stories Total
3
Tax Annual Amount
9744
Tax Block
0000
Tax Book Number
118/148
Tax Legal Description
Lot 2, poitras parcel N-4 west, according to the plat thereof as recorded in plat book 111, pages 83 through 86 of the public records of orange county, Florida, lying in section 36, township 24 south, range 30 east
Tax Lot
0032
Tax Other Annual Assessment Amount
1500
Tax Year
2025
Total Acreage
0 to less than 1/4
Total Annual Fees
3872.00
Total Monthly Fees
322.67
Township
24
Universal Property Id
US-12095-N-3024367794020032-R-N
Unparsed Address
9168 SINATRA LN
Utilities
Cable Available, Sewer Connected, Underground Utilities
Water Source
Public
Waterfront YN
false
Window Features
Double Pane Windows, Low-Emissivity Windows
Zoning
PUD
Neighborhood Map
Popup

Property Photos
Listing Photo
Listing Photo
Listing Photo
Listing Photo
Listing Photo
Listing Photo
Listing Photo
Listing Photo
Listing Photo
Listing Photo
Listing Photo
Listing Photo
Listing Photo
Listing Photo
Listing Photo
Listing Photo
Listing Photo
Listing Photo
Listing Photo
Listing Photo
Listing Photo
Listing Photo
Listing Photo
Listing Photo
Listing Photo
Listing Photo
Listing Photo
Listing Photo
Listing Photo
Listing Photo
Listing Photo
Listing Photo
Listing Photo
Listing Photo
Listing Photo
Listing Photo
Listing Photo
Listing Photo
Listing Photo
Listing Photo
Listing Photo
Listing Photo
Listing Photo
Listing Photo
Listing Photo
Listing Photo
Listing Photo
Listing Photo
Listing Photo
Listing Photo
Listing Photo
Listing Photo
Listing Photo
Listing Photo
Listing Photo
Listing Photo
Listing Photo
Listing Photo
Listing Photo
Listing Photo
Listing Photo
Listing Photo
Listing Photo
Listing Photo
Listing Photo
Listing Photo
Listing Photo
Listing Photo

MLS #MFRO6372886 Listing courtesy of Orlando Tbi Realty Llc provided by Stellar MLS.

Similar Listings

$517,500
2419 Kilgore Street
Orlando
3BR/3BA
| Active
$519,000
4831 Tidecrest Avenue
Orlando
3BR/3BA
| Active
$519,000
4815 Tidecrest Avenue
Orlando
3BR/3BA
| Active
$519,900
117 E Concord Street
Orlando
3BR/3BA
| Active



All listing information is deemed reliable but not guaranteed and should be independently verified through personal inspection by appropriate professionals. Listings displayed on this website may be subject to prior sale or removal from sale; availability of any listing should always be independent verified. Listing information is provided for consumer personal, non-commercial use, solely to identify potential properties for potential purchase; all other use is strictly prohibited and may violate relevant federal and state law. The source of the listing data is as follows: Stellar MLS (updated 5/11/26 4:14 PM) |

Listing Search



Translate Tool

Featured Listings
Ocala Real Estate
$1,399,000
4 BED
2 BATH
Rare Opportunity: 7.9-Acre Business Flex Site. This expansive, fully cleared parcel offers unmatched versatility with B4... Read More
North Redington Beach Real Estate
$1,249,000
3 BED
2 BATH
Luxury beachfront penthouse level three-bedroom, two-bath residence at the exclusive Tides Beach Club. The spacious 1,58... Read More
Sarasota Real Estate
$1,010,000
4 BED
3 BATH
One or more photo(s) has been virtually staged. Now offered at $1,010,000, 7321 Links Court represents a rare opportunit... Read More
Clearwater Real Estate
$1,125,000
3 BED
3 BATH
One or more photo(s) has been virtually staged. EXCEPTIONAL WATERFRONT CONDO IN CLEARWATER, FLORIDA! Experience refined ... Read More
Kissimmee Real Estate
$874,900
3 BED
2 BATH
This private 2.32-acre lakefront estate (split into two ~1-acre parcels) offers an excellent opportunity to build a seco... Read More
Apollo Beach Real Estate
$937,997
4 BED
3 BATH
One or more photo(s) has been virtually staged. Welcome to your slice of paradise in the highly sought-after Waterfront,... Read More
Weirsdale Real Estate
$1,150,000
2 BED
2 BATH
Experience serene lakefront living on 3 wooded acres along the shores of Lake Weir. Surrounded by natural beauty, this p... Read More
St Petersburg Real Estate
$1,495,000
5 BED
4 BATH
Under Construction. Introducing the Folk Vernacular plan at 5204 10th St N, a newly built home by Canopy Builders set on... Read More
Sarasota Real Estate
$1,199,900
5 BED
4 BATH
One of a kind, Custom Built Home with Large Multi-Generational Attached Casita. Features of this incredible, Multi-Gen H... Read More
Tarpon Springs Real Estate
$1,500,000
3 BED
3 BATH
Stunning, newly constructed single-story custom home built in 2024 and tucked behind the gates of the exclusive enclave ... Read More
Contact Sandra Pardo

407-990-2746

Wendy Morris LLC

Licensed in the State of Florida
BK 3146762
16797 Broadwater Avenue
Winter Garden, Florida 34787

Your privacy is our utmost concern. We will never sell your personal information. Privacy Policy
©2026 sandrapardohomes.com - all rights reserved. | Site Map