407-990-2746
Menu

838 Monterey Ne Boulevard, St Petersburg, FL

NEXT
PREV
$4,750,000

($1,096/sqft)

List Status: Active
838 Monterey Ne Boulevard
St Petersburg, FL 33704


5 beds
5 baths
4334 living sqft
Top Features
  • Frontage: Bayou
  • Subdivision: Snell Isle Shores
  • Built in  2005
  • Single Family Residence
Description
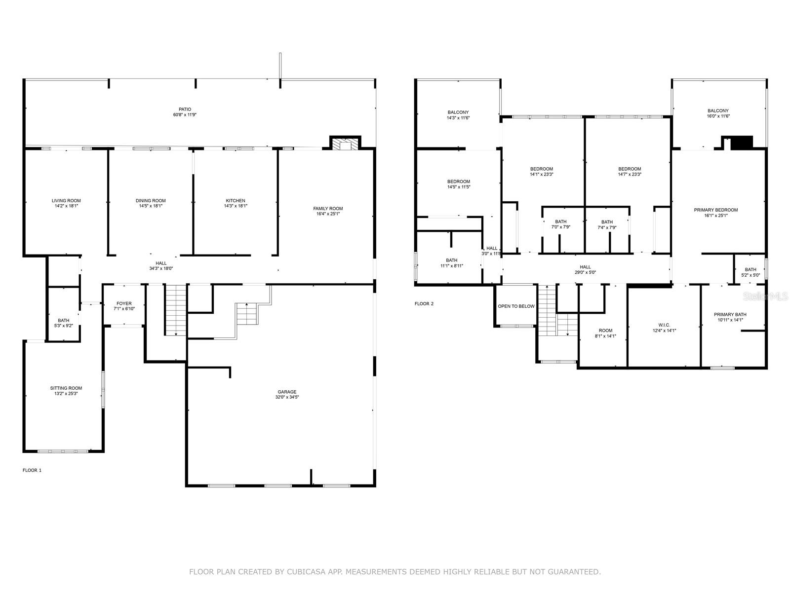
Designed by renowned Architect William Harvard Jr and built in 2005, this waterfront modern marvel boasts a beautiful layout and a wonderful view in a highly desirable location of Snell Isle. This home was built like a bunker. The home sits above the flood plane, and the exterior walls are concrete block with filled cells, and with structural steel studs. Interior walls are also concrete block with prestressed concrete planks for ceiling and roof support. The floor construction is concrete under the beautiful hardwoods. The home also features a new roof in summer of 2024, hurricane windows and doors throughout, and a whole house generator so you don't lose power in any storm. Beyond the best construction, this is an artist's home, where natural light fills the spacious rooms, and provides grand wall space with 10' ceilings on the first floor. Enter through the custom metal front doors into a two story foyer. To the left is a beautiful formal living room and large hall closet that could be turned into a butler's pantry or wet bar. The large first floor den also features a full bath, and could be used as a downstairs primary or guest room. For the ultimate entertainer, the formal dining room connects to the chef's kitchen, featuring a professional 6 burner Thermador range and large eat-at island with custom red quartz. The cozy family room features a gas fireplace and inlaid wood floors. Every living space features french doors that open to the Spanish tiled porch that spans the width of the home, the ideal place to enjoy the morning air or evening beauty of Coffee Pot Bayou. When it is time to retire for the night, take the elevator to the second floor, featuring 8' ceilings, wood and carpet floors. Three bedrooms upstairs all feature en-suite bathrooms with cast iron tubs, custom vanities and countertops, and waterfront views. Down the hall is a large laundry room with great storage. The master suite features a large walk-in closet and large bathroom with shower, ga
Property Details
Additional Information
Additional Parcels YN
false
Alternate Key Folio Num
083117836640030140
Appliances
Convection Oven, Dishwasher, Disposal, Dryer, Exhaust Fan, Gas Water Heater, Microwave, Range Hood, Refrigerator, Tankless Water Heater, Washer
Association YN
false
Attached Garage YN
true
Available For Lease YN
1
Bathrooms Total Integer
5
Building Area Source
Public Records
Building Area Total
6522
Building Area Total Srch SqM
605.91
Building Area Units
Square Feet
Calculated List Price By Calculated SqFt
1095.99
Carport YN
false
Construction Materials
Block, Concrete
Cooling
Central Air
Country
US
Cumulative Days On Market
103
Current Price
4750000.00
Direction Faces
Northwest
Exterior Features
Balcony, Lighting
Fireplace Features
Gas, Living Room
Fireplace YN
true
Flood Zone Code
AE
Flooring
Carpet, Tile, Wood
Foundation Details
Slab
Furnished
Negotiable
Garage Spaces
3
Garage YN
true
Heating
Central
Homestead YN
1
Interior Features
Elevator, High Ceilings, Thermostat, Walk-In Closet(s), Window Treatments
Internet Address Display YN
true
Internet Automated Valuation Display YN
true
Internet Consumer Comment YN
false
Internet Entire Listing Display YN
true
Laundry Features
Laundry Room
Levels
Two
List AOR
Suncoast Tampa
Living Area Meters
402.64
Living Area Source
Public Records
Living Area Units
Square Feet
Lot Size Acres
0.28
Lot Size Dimensions
78x148
Lot Size Square Feet
12166
Lot Size Square Meters
1130
Minimum Lease
No Minimum
Modification Timestamp
2026-03-13T19:46:09.384Z
New Construction YN
false
Occupant Type
Owner
Other Equipment
Irrigation Equipment
Ownership
Fee Simple
Parcel Number
08-31-17-83664-003-0140
Pool Private YN
false
Postal Code Plus 4
2306
Previous List Price
4990000
Price Change Timestamp
2026-03-08T17:47:10.000Z
Public Survey Range
17
Public Survey Section
08
RATIO Current Price By Calculated SqFt
1095.99
Realtor Info
As-Is, List Agent is Related to Owner
Road Surface Type
Asphalt
Roof
Built-Up, Concrete
Room Count
9
Senior Community YN
false
Sewer
Public Sewer
Showing Requirements
Appointment Only, Call Listing Agent, See Remarks
Status Change Timestamp
2025-11-30T08:31:40.000Z
Stories Total
2
Tax Annual Amount
15112.53
Tax Block
3
Tax Book Number
25-31
Tax Legal Description
SNELL ISLE SHORES BLK 3, LOT 14
Tax Lot
14
Tax Year
2023
Total Acreage
1/4 to less than 1/2
Total Annual Fees
0.00
Total Monthly Fees
0.00
Township
31
Universal Property Id
US-12103-N-083117836640030140-R-N
Unparsed Address
838 MONTEREY BLVD NE
Utilities
BB/HS Internet Available, Cable Connected, Electricity Connected, Fiber Optics, Natural Gas Connected, Phone Available
Water Access
Bayou
Water Access YN
1
Water Body Name
COFFEE POT BAYOU
Water Extras
Lift, No Wake Zone
Water Extras YN
1
Water Frontage Feet Bayou
69
Water Source
Public
Water View
Bayou
Water View YN
1
Waterfront Feet Total
69
Waterfront YN
true
Window Features
Blinds, Low-Emissivity Windows, Storm Window(s), Window Treatments, Wood Frames
Neighborhood Map
Popup

Property Photos
Listing Photo
Listing Photo
Listing Photo
Listing Photo
Listing Photo
Listing Photo
Listing Photo
Listing Photo
Listing Photo
Listing Photo
Listing Photo
Listing Photo
Listing Photo
Listing Photo
Listing Photo
Listing Photo
Listing Photo
Listing Photo
Listing Photo
Listing Photo
Listing Photo
Listing Photo
Listing Photo
Listing Photo
Listing Photo
Listing Photo
Listing Photo
Listing Photo
Listing Photo
Listing Photo
Listing Photo
Listing Photo
Listing Photo
Listing Photo
Listing Photo
Listing Photo
Listing Photo
Listing Photo
Listing Photo
Listing Photo
Listing Photo
Listing Photo
Listing Photo
Listing Photo
Listing Photo
Listing Photo
Listing Photo
Listing Photo
Listing Photo
Listing Photo
Listing Photo
Listing Photo
Listing Photo
Listing Photo
Listing Photo
Listing Photo
Listing Photo
Listing Photo
Listing Photo
Listing Photo
Listing Photo
Listing Photo
Listing Photo
Listing Photo
Listing Photo
Listing Photo
Listing Photo
Listing Photo
Listing Photo
Listing Photo
Listing Photo
Listing Photo
Listing Photo
Listing Photo
Listing Photo
Listing Photo
Listing Photo
Listing Photo
Listing Photo
Listing Photo
Listing Photo
Listing Photo
Listing Photo
Listing Photo
Listing Photo
Listing Photo
Listing Photo
Listing Photo
Listing Photo
Listing Photo
Listing Photo
Listing Photo
Listing Photo
Listing Photo
Listing Photo
Listing Photo
Listing Photo
Listing Photo
Listing Photo
Listing Photo
Listing Photo
Listing Photo
Listing Photo
Listing Photo
Listing Photo
Listing Photo
Listing Photo
Listing Photo
Listing Photo
Listing Photo
Listing Photo
Listing Photo

MLS #MFRTB8452164 Listing courtesy of Southern Roots Realty, Llc provided by Stellar MLS.

Similar Listings

$4,295,000
1097 Eden Isle Ne Drive
St Petersburg
5BR/5BA
| Active
$4,358,800
5811 Bayou Grande Ne Boulevard
St Petersburg
5BR/5BA
| Active
$4,500,000
7680 Paradise Pointe S Circle
St Petersburg
5BR/5BA
| Active
$4,750,000
2121 Bayou Grande Ne Boulevard
St Petersburg
5BR/5BA
| Active



All listing information is deemed reliable but not guaranteed and should be independently verified through personal inspection by appropriate professionals. Listings displayed on this website may be subject to prior sale or removal from sale; availability of any listing should always be independent verified. Listing information is provided for consumer personal, non-commercial use, solely to identify potential properties for potential purchase; all other use is strictly prohibited and may violate relevant federal and state law. The source of the listing data is as follows: Stellar MLS (updated 3/14/26 3:21 AM) |

Listing Search



Translate Tool

Featured Listings
South Daytona Real Estate
$1,400,000
3 BED
3 BATH
Auction Property. Luxury waterfront living on the Halifax River with stunning water views and private boating access. El... Read More
Hawthorne Real Estate
$1,150,000
5 BED
3 BATH
One or more photo(s) has been virtually staged. This exceptional 43+ acre lakefront estate on Lake Mason offers a rare o... Read More
Ormond Beach Real Estate
$850,000
3 BED
2 BATH
One or more photo(s) has been virtually staged. Unique 3-story Spanish Mediterranean townhome offering expansive panoram... Read More
Ormond Beach Real Estate
$830,000
3 BED
2 BATH
One or more photo(s) has been virtually staged. Experience coastal luxury in this stunning three-story Spanish Mediterra... Read More
Orlando Real Estate
$1,500,000
4 BED
4 BATH
Welcome to a one-of-a-kind masterpiece in the coveted gated community of Phillips Grove—a fully customized, renovated re... Read More
Longwood Real Estate
$1,095,000
4 BED
3 BATH
Located in the highly sought-after community of The Springs, this stunning estate offers an exceptional opportunity to e... Read More
Bradenton Real Estate
$815,000
3 BED
2 BATH
Discover the perfect blend of convenience and tranquility at our 3BR/2BA retreat. Nestled just a 6-minute drive from vib... Read More
Indian Shores Real Estate
$1,325,000
3 BED
3 BATH
Rare Gulf Front & Intracoastal Retreat – Perfect for Beach Lovers and Boaters Alike! Take in breathtaking Gulf and Intra... Read More
Winter Park Real Estate
$929,900
3 BED
2 BATH
Rare opportunity to own a beautifully upgraded lakefront property on half acre in one of Winter Park's most desirable lo... Read More
Sarasota Real Estate
$1,200,000
2 BED
2 BATH
Gulf-Front Views at the Gulf & Bay Club — Resort living on Siesta Key! Ideally located on the 5th floor of the A Buildin... Read More
Contact Sandra Pardo

407-990-2746

Wendy Morris LLC

Licensed in the State of Florida
BK 3146762
16797 Broadwater Avenue
Winter Garden, Florida 34787

Your privacy is our utmost concern. We will never sell your personal information. Privacy Policy
©2026 sandrapardohomes.com - all rights reserved. | Site Map