407-990-2746
Menu

7909 Rio Bella Place, Bradenton, FL

NEXT
PREV
$565,000

($297/sqft)

List Status: Active
7909 Rio Bella Place
Bradenton, FL 34201


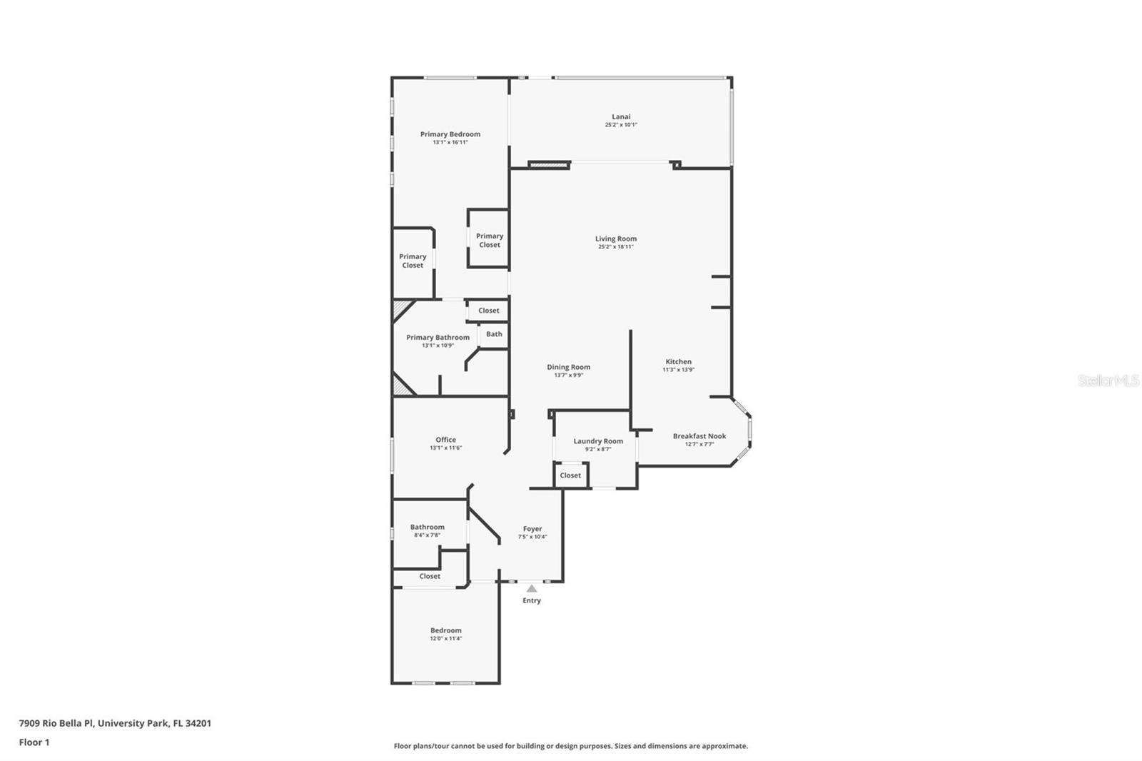
2 beds
2 baths
1901 living sqft
Top Features
  • View: Water
  • Subdivision: Riva Trace
  • Built in  2014
  • Single Family Residence
Description
One or more photo(s) has been virtually staged. Step into a beautifully kept, move-in-ready home in the private, gated community of Riva Trace. This two-bedroom, two-bath residence includes a separate office/den and has had one meticulous owner who maintained it with real care. The exterior was recently refreshed, the AC is newer, and the windows feature custom-built-in shutters and quality treatments throughout. The floor plan flows easily, offering warm hardwood in the main living spaces, tile where you need it, and soft carpet in the bedrooms for comfort. Several rooms look out toward the water, bringing in calm, natural views. The screened lanai extends your living space and gives you a quiet place to relax outdoors. The eat-in kitchen provides granite countertops, tile flooring, and a bright bay-window breakfast nook. A full laundry room and a two-car garage add daily convenience and storage. Riva Trace is tucked away and quiet, yet minutes from University Town Center, Whole Foods, medical services, and a wide range of dining options. SRQ airport is roughly a 12-minute drive. A well-cared-for home in a prime location with immediate livability. Buyers will feel the pride of ownership the moment they walk in.
Property Details
Additional Information
Additional Lease Restrictions
See HOA rules and regulations
Additional Parcels YN
false
Additional Rooms
Den/Library/Office
Alternate Key Folio Num
1918914809
Appliances
Dishwasher, Dryer, Electric Water Heater, Ice Maker, Microwave, Refrigerator, Washer
Approval Process
See HOA rules and regulations
Architectural Style
Florida
Association Approval Required YN
1
Association Fee
789
Association Fee Frequency
Quarterly
Association Fee Requirement
Required
Association YN
true
Attached Garage YN
true
Available For Lease YN
1
Bathrooms Total Integer
2
Building Area Source
Public Records
Building Area Total
2661
Building Area Total Srch SqM
247.21
Building Area Units
Square Feet
Calculated List Price By Calculated SqFt
297.21
Carport YN
false
Community Features
Deed Restrictions, Gated Community - No Guard, Sidewalks
Construction Materials
Block, Stucco
Cooling
Central Air
Country
US
Cumulative Days On Market
96
Current Price
565000.00
Direction Faces
South
Elementary School
Robert E Willis Elementary
Exterior Features
Sidewalk, Sliding Doors
Fireplace YN
false
Flood Zone Code
x500
Flood Zone Date
2021-08-10
Flooring
Carpet, Tile, Wood
Foundation Details
Slab
Furnished
Unfurnished
Garage Spaces
2
Garage YN
true
Heating
Central, Electric
High School
Braden River High
Homestead YN
1
Interior Features
Ceiling Fans(s), Dry Bar, Living Room/Dining Room Combo, Primary Bedroom Main Floor, Walk-In Closet(s), Window Treatments
Internet Address Display YN
true
Internet Automated Valuation Display YN
true
Internet Consumer Comment YN
false
Internet Entire Listing Display YN
true
Laundry Features
Laundry Room
Lease Restrictions YN
1
Levels
One
List AOR
Sarasota - Manatee
Living Area Meters
176.61
Living Area Source
Public Records
Living Area Units
Square Feet
Lot Features
Private
Lot Size Acres
0.16
Lot Size Square Feet
6909
Lot Size Square Meters
642
Middle Or Junior School
Braden River Middle
Minimum Lease
6 Months
Modification Timestamp
2026-03-22T20:06:23.927Z
Monthly HOA Amount
263.00
New Construction YN
false
Num Of Own Years Prior To Lease
2
Number Of Pets
2
Occupant Type
Owner
Ownership
Fee Simple
Parcel Number
1918914809
Patio And Porch Features
Covered, Enclosed, Patio, Rear Porch, Screened
Pets Allowed
Yes
Pool Private YN
false
Postal Code Plus 4
2207
Previous List Price
575000
Price Change Timestamp
2026-03-10T17:05:20.000Z
Public Survey Range
18E
Public Survey Section
25
RATIO Current Price By Calculated SqFt
297.21
Realtor Info
Lease Restrictions, See Attachments, Sign
Road Surface Type
Asphalt
Roof
Tile
Room Count
5
SW Subdiv Community Name
Riva Trace
Security Features
Gated Community
Senior Community YN
false
Sewer
Public Sewer
Showing Requirements
Supra Lock Box, Appointment Only, Call Before Showing, ShowingTime
Status Change Timestamp
2025-12-16T19:53:23.000Z
Stories Total
1
Tax Annual Amount
6412.68
Tax Legal Description
LOT 76 RIVA TRACE PI#19189.1480/9
Tax Lot
76
Tax Year
2024
Total Acreage
0 to less than 1/4
Total Annual Fees
3156.00
Total Monthly Fees
263.00
Township
35S
Universal Property Id
US-12081-N-1918914809-R-N
Unparsed Address
7909 RIO BELLA PL
Utilities
Cable Available, Electricity Connected, Public, Sewer Connected
Water Access
River
Water Access YN
1
Water Source
Public
Water View
Lake
Water View YN
1
Waterfront YN
false
Window Features
Shutters
Years Of Owner Prior To Leasing Req YN
1
Zoning
PDR/WPE/
Neighborhood Map
Popup

Property Photos
Listing Photo
Listing Photo
Listing Photo
Listing Photo
Listing Photo
Listing Photo
Listing Photo
Listing Photo
Listing Photo
Listing Photo
Listing Photo
Listing Photo
Listing Photo
Listing Photo
Listing Photo
Listing Photo
Listing Photo
Listing Photo
Listing Photo
Listing Photo
Listing Photo
Listing Photo
Listing Photo
Listing Photo
Listing Photo
Listing Photo
Listing Photo
Listing Photo
Listing Photo
Listing Photo
Listing Photo
Listing Photo
Listing Photo
Listing Photo
Listing Photo
Listing Photo
Listing Photo
Listing Photo
Listing Photo
Listing Photo
Listing Photo
Listing Photo
Listing Photo
Listing Photo
Listing Photo
Listing Photo
Listing Photo
Listing Photo
Listing Photo
Listing Photo
Listing Photo
Listing Photo
Listing Photo
Listing Photo
Listing Photo
Listing Photo
Listing Photo
Listing Photo
Listing Photo
Listing Photo
Listing Photo
Listing Photo
Listing Photo
Listing Photo
Listing Photo
Listing Photo
Listing Photo
Listing Photo

MLS #MFRA4675410 Listing courtesy of Premier Sotheby's International Realty provided by Stellar MLS.

Similar Listings

$509,900
13334 Torresina Terrace
Bradenton
2BR/2BA
| Active
$509,990
15672 Sacile Lane
Bradenton
2BR/2BA
| Pending
$510,000
1323 Perico Point Circle
Bradenton
2BR/2BA
| Active
$510,000
3044 Formia Court
Bradenton
2BR/2BA
| Active



All listing information is deemed reliable but not guaranteed and should be independently verified through personal inspection by appropriate professionals. Listings displayed on this website may be subject to prior sale or removal from sale; availability of any listing should always be independent verified. Listing information is provided for consumer personal, non-commercial use, solely to identify potential properties for potential purchase; all other use is strictly prohibited and may violate relevant federal and state law. The source of the listing data is as follows: Stellar MLS (updated 4/29/26 11:18 AM) |

Listing Search



Translate Tool

Featured Listings
Maitland Real Estate
$850,000
5 BED
2 BATH
One or more photo(s) has been virtually staged. Tucked into the highly sought-after Dommerich Hills neighborhood, this b... Read More
St Petersburg Real Estate
$1,010,100
3 BED
3 BATH
Discover modern luxury in the heart of St. Petersburg with Onyx+East’s newest townhome community, located in the charmin... Read More
St Petersburg Real Estate
$874,900
3 BED
3 BATH
Discover modern luxury in the heart of St. Petersburg with Onyx+East’s newest townhome community, located in the charmin... Read More
Placida Real Estate
$995,000
3 BED
2 BATH
Three bedroom, 2 and 1/2 bath beach house across the road from the Gulf. Stunning Gulf Views from the front deck and poo... Read More
Wildwood Real Estate
$875,000
6 BED
4 BATH
One or more photo(s) has been virtually staged. RARE OPPORTUNITY: Sprawling 6-bedroom Fox Hollow Estate w/Media & Game r... Read More
New Port Richey Real Estate
$850,000
3 BED
2 BATH
WOW… WOW… WOW…Welcome to 4969 Marlin Drive, a waterfront retreat offering 3 bedrooms, 2 bathrooms, a 2-car garage, and 2... Read More
Lake Mary Real Estate
$1,199,000
4 BED
3 BATH
Save Big: 1% lender credit (based on loan amount) toward closing costs or rate buy-down with seller’s preferred lender. ... Read More
Winter Garden Real Estate
$899,000
4 BED
3 BATH
One or more photo(s) has been virtually staged. Welcome to this truly exceptional home offering space,flexibility, & an ... Read More
Celebration Real Estate
$1,199,990
6 BED
4 BATH
Under Construction. The Marco is a spacious home with plenty of space to grow into and host friends and family. This 2-s... Read More
Geneva Real Estate
$1,115,000
4 BED
3 BATH
Ask about a lender provided RATE BUY-DOWN CREDIT on this home! **WELCOME HOME** In the perfect location, on an oversized... Read More
Contact Sandra Pardo

407-990-2746

Wendy Morris LLC

Licensed in the State of Florida
BK 3146762
16797 Broadwater Avenue
Winter Garden, Florida 34787

Your privacy is our utmost concern. We will never sell your personal information. Privacy Policy
©2026 sandrapardohomes.com - all rights reserved. | Site Map