407-990-2746
Menu

7649 Fairfax Drive, Kissimmee, FL

NEXT
PREV
$844,900

($234/sqft)

List Status: Active
7649 Fairfax Drive
Kissimmee, FL 34747


8 beds
6 baths
3609 living sqft
Top Features
  • Subdivision: Reunion West Ph 2b West
  • Built in  2019
  • Single Family Residence
Description
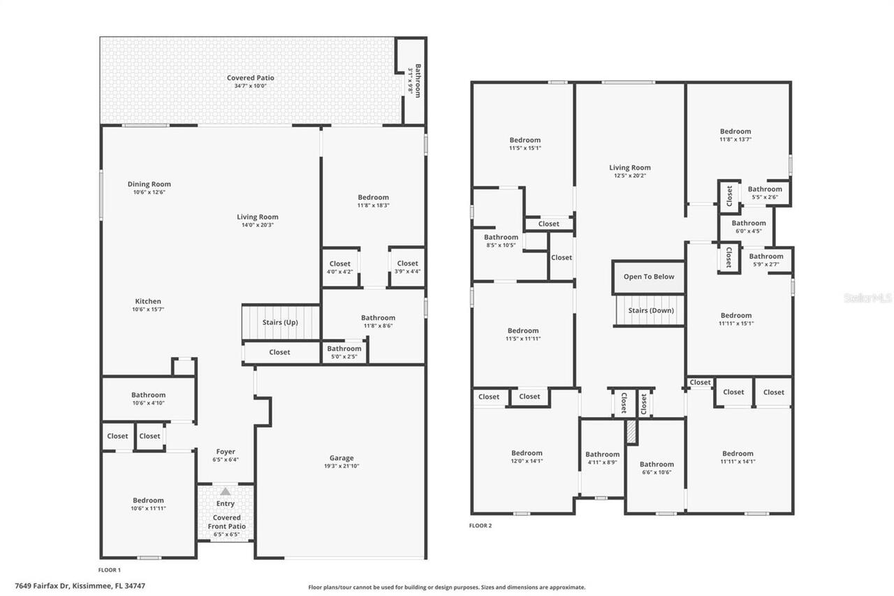
3D Home Tour & floor plan available by clicking on Virtual Tour 2 above. Tastefully decorated with contemporary finishes, this exceptional 8-bedroom, 6.5-bathroom home is a great short-term rental opportunity in the sought-after Encore Resort. Designed to comfortably SLEEP UP TO 17 GUESTS, with an OPEN- CONCEPT FLOOR PLAN it is ideal for entertaining large families and groups. The main level features two bedrooms downstairs along with a seamless flow between the GOURMET kitchen, dining, and living areas. Tile flooring spans all main living spaces, while the bedrooms and loft are finished with plush carpet for added comfort. The garage game room, painted in a fun Mario Brothers theme, includes a ping pong table and basketball toss—perfect for guests of all ages. Step outside to your private lanai and enjoy the GORGEOUS HEATED IN-GROUND POOL WITH SPILLOVER SPA, ideal for relaxing after a day at the parks. A convenient poolside half bath adds functionality and enhances the guest experience. Upstairs, a large loft/media area serves as the ultimate entertainment hub, complete with 8 theater-style seats, three TVs, Xbox, PlayStation, and surround sound system—the perfect space for movie nights and game days. The second floor also includes six additional bedrooms, two with private en-suite baths, while the remaining four share two Jack-and-Jill bathrooms. Themed bedrooms featuring Disney Princesses and Star Wars add strong rental appeal. In addition, this residence is equipped with a NAPCO Commercial Firewolf fire alarm system. This system offers life saving benefits with early fire detection, Immediate audible & visual alerts (horns and strobes). It helps ensure safe evacuation. Designed to connect to a central monitoring station even works when the home is unoccupied. This FULLY FURNISHED, move-in-ready home offers an excellent opportunity for investors or second-home buyers looking for a high-demand vacation rental close to world-class attractions. Encore at Reunion Res
Property Details
Additional Information
Additional Parcels YN
false
Additional Rooms
Loft
Alternate Key Folio Num
222527493100010380
Appliances
Dishwasher, Disposal, Dryer, Gas Water Heater, Microwave, Range, Refrigerator, Tankless Water Heater, Washer
Architectural Style
Contemporary, Florida
Association Amenities
Clubhouse, Fitness Center, Gated, Playground, Pool
Association Email
customerservice@artemislifestyles.com
Association Fee
697
Association Fee Frequency
Monthly
Association Fee Includes
Guard - 24 Hour, Cable TV, Pool, Internet, Maintenance Grounds, Pest Control, Private Road, Recreational Facilities, Security, Trash
Association Fee Requirement
Required
Association URL
artemislifestyles.com
Association YN
true
Attached Garage YN
true
Available For Lease YN
1
Bathrooms Total Integer
7
Building Area Source
Public Records
Building Area Total
7405
Building Area Total Srch SqM
687.95
Building Area Units
Square Feet
CDDYN
1
Calculated List Price By Calculated SqFt
234.11
Carport YN
false
Community Features
Clubhouse, Fitness Center, Gated Community - Guard, Playground, Pool, Restaurant, Sidewalks, Street Lights
Construction Materials
Block, Stucco, Frame
Cooling
Central Air
Country
US
Cumulative Days On Market
63
Current Price
844900.00
Direction Faces
South
Exterior Features
Lighting, Outdoor Shower, Sidewalk, Sliding Doors
Fencing
Fenced, Other
Fireplace YN
false
Flood Zone Code
X
Flood Zone Date
2013-06-18
Flood Zone Panel
12097C0040G
Flooring
Carpet, Luxury Vinyl, Tile
Foundation Details
Slab
Furnished
Furnished
Garage Dimensions
22x20
Garage Spaces
2
Garage YN
true
Heating
Central, Electric
Home Warranty YN
false
Interior Features
High Ceilings, Living Room/Dining Room Combo, Open Floorplan, Primary Bedroom Main Floor, Split Bedroom, Stone Counters, Walk-In Closet(s)
Internet Address Display YN
true
Internet Automated Valuation Display YN
true
Internet Consumer Comment YN
true
Internet Entire Listing Display YN
true
Laundry Features
Laundry Closet, Upper Level
Levels
Two
List AOR
Orlando Regional
Living Area Meters
335.29
Living Area Source
Public Records
Living Area Units
Square Feet
Lot Features
Sidewalk, Paved, Private
Lot Size Acres
0.17
Lot Size Dimensions
50x150x50x150
Lot Size Square Feet
7405
Lot Size Square Meters
688
Minimum Lease
No Minimum
Modification Timestamp
2026-03-03T14:08:09.882Z
Monthly HOA Amount
697.00
New Construction YN
false
Occupant Type
Vacant
Other Equipment
Irrigation Equipment
Other Fees Amount
119
Other Fees Term
Monthly
Ownership
Fee Simple
Parcel Number
22-25-27-4931-0001-0380
Patio And Porch Features
Covered, Rear Porch
Pet Restrictions
Please verify with HOA.
Pets Allowed
Breed Restrictions
Pool Private YN
true
Postal Code Plus 4
1601
Previous List Price
849900
Price Change Timestamp
2026-03-03T14:08:04.000Z
Property Attached YN
false
Property Condition
Completed
Public Survey Range
27E
Public Survey Section
22
RATIO Current Price By Calculated SqFt
234.11
Realtor Info
As-Is, Docs Available, Floor Plan Available, No Sign, See Attachments, Short Term Rental Allowed
Road Responsibility
Private Maintained Road
Road Surface Type
Asphalt
Roof
Shingle
Room Count
11
Security Features
Fire Alarm, Gated Community, Security Lights, Smoke Detector(s)
Senior Community YN
false
Sewer
Public Sewer
Showing Requirements
ShowingTime
Spa Features
Heated, In Ground
Spa YN
true
Status Change Timestamp
2025-12-30T13:12:57.000Z
Stories Total
2
Tax Annual Amount
12297.99
Tax Book Number
26-1-4
Tax Legal Description
REUNION WEST PH 2B WEST PB 26 PGS 1-4 LOT 38
Tax Lot
38
Tax Other Annual Assessment Amount
3162
Tax Year
2024
Total Acreage
0 to less than 1/4
Total Annual Fees
9792.00
Total Monthly Fees
816.00
Township
25S
Universal Property Id
US-12097-N-222527493100010380-R-N
Unparsed Address
7649 FAIRFAX DR
Utilities
BB/HS Internet Available, Cable Available, Cable Connected, Electricity Available, Electricity Connected, Natural Gas Available, Natural Gas Connected, Phone Available, Sewer Available, Sewer Connected, Underground Utilities, Water Available, Water Connected
Vegetation
Mature Landscaping
Water Source
Public
Waterfront YN
false
Window Features
Blinds, Drapes, Rods
Zoning
RES
Neighborhood Map
Popup

Property Photos
Listing Photo
Listing Photo
Listing Photo
Listing Photo
Listing Photo
Listing Photo
Listing Photo
Listing Photo
Listing Photo
Listing Photo
Listing Photo
Listing Photo
Listing Photo
Listing Photo
Listing Photo
Listing Photo
Listing Photo
Listing Photo
Listing Photo
Listing Photo
Listing Photo
Listing Photo
Listing Photo
Listing Photo
Listing Photo
Listing Photo
Listing Photo
Listing Photo
Listing Photo
Listing Photo
Listing Photo
Listing Photo
Listing Photo
Listing Photo
Listing Photo
Listing Photo
Listing Photo
Listing Photo
Listing Photo
Listing Photo
Listing Photo
Listing Photo
Listing Photo
Listing Photo
Listing Photo
Listing Photo
Listing Photo
Listing Photo
Listing Photo
Listing Photo
Listing Photo
Listing Photo
Listing Photo
Listing Photo
Listing Photo
Listing Photo
Listing Photo
Listing Photo
Listing Photo
Listing Photo
Listing Photo
Listing Photo
Listing Photo
Listing Photo
Listing Photo
Listing Photo
Listing Photo
Listing Photo
Listing Photo
Listing Photo
Listing Photo
Listing Photo
Listing Photo
Listing Photo
Listing Photo
Listing Photo
Listing Photo
Listing Photo
Listing Photo
Listing Photo
Listing Photo
Listing Photo
Listing Photo
Listing Photo
Listing Photo
Listing Photo
Listing Photo
Listing Photo
Listing Photo
Listing Photo
Listing Photo
Listing Photo
Listing Photo
Listing Photo
Listing Photo
Listing Photo
Listing Photo
Listing Photo
Listing Photo
Listing Photo
Listing Photo
Listing Photo
Listing Photo
Listing Photo
Listing Photo
Listing Photo
Listing Photo
Listing Photo
Listing Photo
Listing Photo
Listing Photo
Listing Photo
Listing Photo
Listing Photo
Listing Photo
Listing Photo
Listing Photo
Listing Photo
Listing Photo
Listing Photo
Listing Photo
Listing Photo
Listing Photo
Listing Photo
Listing Photo
Listing Photo
Listing Photo
Listing Photo
Listing Photo
Listing Photo
Listing Photo
Listing Photo
Listing Photo
Listing Photo
Listing Photo
Listing Photo
Listing Photo
Listing Photo
Listing Photo
Listing Photo
Listing Photo
Listing Photo
Listing Photo
Listing Photo
Listing Photo
Listing Photo

MLS #MFRO6369507 Listing courtesy of Kelly French Real Estate Inc provided by Stellar MLS.

Similar Listings

$789,000
8844 Corcovado Drive
Kissimmee
8BR/6BA
| Active
$790,000
1885 Gobi Drive
Kissimmee
8BR/6BA
| Active
$793,990
1626 Lima Avenue
Kissimmee
8BR/6BA
| Active
$795,995
7716 Fairfax Drive
Kissimmee
8BR/6BA
| Active



All listing information is deemed reliable but not guaranteed and should be independently verified through personal inspection by appropriate professionals. Listings displayed on this website may be subject to prior sale or removal from sale; availability of any listing should always be independent verified. Listing information is provided for consumer personal, non-commercial use, solely to identify potential properties for potential purchase; all other use is strictly prohibited and may violate relevant federal and state law. The source of the listing data is as follows: Stellar MLS (updated 3/6/26 12:05 AM) |

Listing Search



Translate Tool

Featured Listings
Sarasota Real Estate
$877,539
2 BED
2 BATH
short stories"......... IF ?..EVER WANTED HOUSE ON THE WATER NOW IS THE TIME"...YOU HAVE POOL ..BOAT DOCK...and in 31 mi... Read More
Kissimmee Real Estate
$849,999
4 BED
3 BATH
If you are looking for a home that provides Tranquility and an Oasis outdoor living space this is the home for you. This... Read More
Bradenton Real Estate
$1,000,000
3 BED
3 BATH
Under contract-accepting backup offers. Tucked away on nearly 1.5 acres at the end of a quiet cul-de-sac, this beautiful... Read More
Indian Rocks Beach Real Estate
$895,000
2 BED
1 BATH
Investor special, cash only in Indian Rocks Beach! Opportunity awaits on this can't miss Intracoastal waterfront propert... Read More
Nokomis Real Estate
$925,000
3 BED
2 BATH
Welcome to a home where pride of ownership truly shines. Lovingly maintained by its original owner, this custom-built re... Read More
Lake Mary Real Estate
$830,000
4 BED
2 BATH
Welcome to a lifestyle of unparalleled serenity and sophistication within the exclusive Lake Dawson Estates of Timacuan,... Read More
St Petersburg Real Estate
$1,199,000
3 BED
3 BATH
In the highly desirable Historic Old Northeast neighborhood, this 2512 sf architect-owned home is a rare gem that effort... Read More
Lutz Real Estate
$1,400,000
5 BED
4 BATH
Under contract-accepting backup offers. Luxurious Single-Story Estate on 1.24 Acres Welcome to this stunning 3,555 SF cu... Read More
Bradenton Real Estate
$905,000
4 BED
3 BATH
Welcome to a private tropical retreat where refined design, thoughtful upgrades, and resort-style outdoor living come to... Read More
Apollo Beach Real Estate
$1,129,900
4 BED
3 BATH
High and dry and by far the best value on the water in MiraBay, this light, bright, and move-in-ready Classic Coastal ho... Read More
Contact Sandra Pardo

407-990-2746

Wendy Morris LLC

Licensed in the State of Florida
BK 3146762
16797 Broadwater Avenue
Winter Garden, Florida 34787

Your privacy is our utmost concern. We will never sell your personal information. Privacy Policy
©2026 sandrapardohomes.com - all rights reserved. | Site Map