407-990-2746
Menu

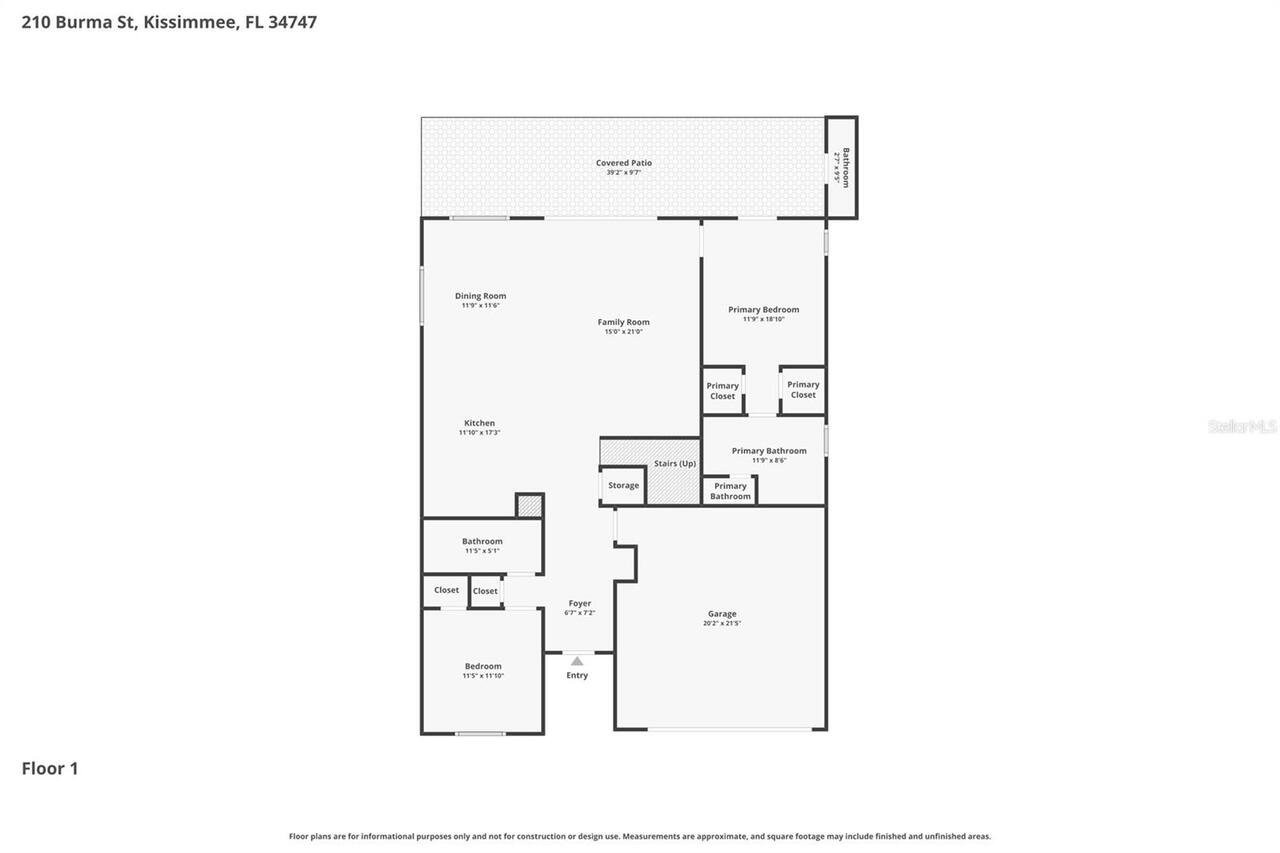
210 Burma Street, Kissimmee, FL

NEXT
PREV
$889,000

($246/sqft)

List Status: Active
210 Burma Street
Kissimmee, FL 34747


8 beds
6 baths
3612 living sqft
Top Features
  • Subdivision: Reunion West Ph 2b
  • Built in  2018
  • Single Family Residence
Description
Exceptional turnkey opportunity in the highly sought after gated Encore community! This fully furnished, high-performing 8-bedroom, 6.5-bath vacation home is perfectly optimized for short-term rentals, with bookings already secured well into 2026. At the same time, it’s an ideal luxurious second home or a welcoming primary for true resort-style living. Step inside to an immersive and delightful experience, complete with a private movie theater perfect for cozy family movie nights and stunning themed bedrooms that spark joy and wonder. Outside, your own private oasis awaits: a sparkling pool, comfortable veranda sets, pergola-covered patio with a firepit and plenty of loungers, plus an oversized fenced yard offering plenty of space for personal touches or additional features. Just a short walk away lies the resort-style clubhouse and the impressive 10-acre waterpark, featuring thrilling slides, a lazy river, splash pads, sports courts, and so much more. Encore elevates every stay with exclusive amenities including a fitness center, arcade, dining options, and beyond—all conveniently located minutes from Disney World, Universal, SeaWorld, top-rated dining, and shopping. Fully turnkey and ready for immediate enjoyment—don’t miss this rare gem!
Property Details
Additional Information
Additional Parcels YN
false
Appliances
Dishwasher, Disposal, Dryer, Freezer, Microwave, Refrigerator, Washer
Association Email
azelada@artimislifestyles.com
Association Fee
857
Association Fee Frequency
Monthly
Association Fee Includes
Guard - 24 Hour, Pool, Maintenance Grounds, Recreational Facilities
Association Fee Requirement
Required
Association URL
artemislifestyleswww..com
Association YN
true
Attached Garage YN
true
Available For Lease YN
1
Bathrooms Total Integer
7
Building Area Source
Public Records
Building Area Total
4588
Building Area Total Srch SqM
426.24
Building Area Units
Square Feet
CDDYN
1
Calculated List Price By Calculated SqFt
246.12
Carport YN
false
Community Features
Deed Restrictions, Pool, Sidewalks
Construction Materials
Block, Stucco, Frame
Cooling
Central Air
Country
US
Current Price
889000.00
Direction Faces
North
Exterior Features
Sidewalk
Fireplace YN
false
Flood Zone Code
X
Flooring
Carpet, Ceramic Tile
Foundation Details
Slab
Furnished
Furnished
Garage Dimensions
21X21
Garage Spaces
2
Garage YN
true
Heating
Central
Interior Features
Kitchen/Family Room Combo
Internet Address Display YN
true
Internet Automated Valuation Display YN
true
Internet Consumer Comment YN
true
Internet Entire Listing Display YN
true
Laundry Features
Inside
Levels
Two
List AOR
Orlando Regional
Living Area Meters
335.57
Living Area Source
Public Records
Living Area Units
Square Feet
Lot Size Acres
0.17
Lot Size Square Feet
7405
Lot Size Square Meters
688
Minimum Lease
1-7 Days
Modification Timestamp
2026-03-06T02:01:09.059Z
Monthly HOA Amount
857.00
New Construction YN
false
Occupant Type
Vacant
Other Equipment
Irrigation Equipment
Other Exemptions YN
1
Ownership
Fee Simple
Parcel Number
22-25-27-4931-0001-0480
Pet Restrictions
See HOA Docs
Pets Allowed
Breed Restrictions, Yes
Pool Private YN
true
Public Survey Range
27E
Public Survey Section
22
RATIO Current Price By Calculated SqFt
246.12
Realtor Info
As-Is
Road Surface Type
Paved
Roof
Shingle
Room Count
4
Senior Community YN
false
Sewer
Public Sewer
Showing Requirements
Appointment Only, Call Listing Agent 2, See Remarks
Spa Features
Heated, In Ground
Spa YN
true
Status Change Timestamp
2026-03-06T01:32:08.000Z
Stories Total
2
Tax Annual Amount
10754.23
Tax Block
00
Tax Book Number
26-1-4
Tax Legal Description
REUNION WEST PH 2B WEST PB 26 PGS 1-4 LOT 48
Tax Lot
48
Tax Other Annual Assessment Amount
1153
Tax Year
2025
Total Acreage
0 to less than 1/4
Total Annual Fees
10284.00
Total Monthly Fees
857.00
Township
25S
Universal Property Id
US-12097-N-222527493100010480-R-N
Unparsed Address
210 BURMA ST
Utilities
BB/HS Internet Available, Cable Available, Electricity Available, Public
Water Source
Public
Waterfront YN
false
Zoning
PUD
Neighborhood Map
Popup

Property Photos
Listing Photo
Listing Photo
Listing Photo
Listing Photo
Listing Photo
Listing Photo
Listing Photo
Listing Photo
Listing Photo
Listing Photo
Listing Photo
Listing Photo
Listing Photo
Listing Photo
Listing Photo
Listing Photo
Listing Photo
Listing Photo
Listing Photo
Listing Photo
Listing Photo
Listing Photo
Listing Photo
Listing Photo
Listing Photo
Listing Photo
Listing Photo
Listing Photo
Listing Photo
Listing Photo
Listing Photo
Listing Photo
Listing Photo
Listing Photo
Listing Photo
Listing Photo
Listing Photo
Listing Photo
Listing Photo
Listing Photo
Listing Photo
Listing Photo
Listing Photo
Listing Photo
Listing Photo
Listing Photo
Listing Photo
Listing Photo
Listing Photo
Listing Photo
Listing Photo
Listing Photo
Listing Photo
Listing Photo
Listing Photo
Listing Photo
Listing Photo
Listing Photo
Listing Photo
Listing Photo
Listing Photo
Listing Photo
Listing Photo
Listing Photo
Listing Photo
Listing Photo
Listing Photo
Listing Photo
Listing Photo
Listing Photo
Listing Photo
Listing Photo
Listing Photo
Listing Photo
Listing Photo
Listing Photo
Listing Photo
Listing Photo
Listing Photo
Listing Photo
Listing Photo
Listing Photo
Listing Photo
Listing Photo
Listing Photo
Listing Photo
Listing Photo
Listing Photo
Listing Photo
Listing Photo
Listing Photo
Listing Photo
Listing Photo
Listing Photo
Listing Photo
Listing Photo
Listing Photo
Listing Photo
Listing Photo
Listing Photo
Listing Photo
Listing Photo
Listing Photo
Listing Photo
Listing Photo
Listing Photo
Listing Photo
Listing Photo
Listing Photo
Listing Photo
Listing Photo
Listing Photo
Listing Photo
Listing Photo
Listing Photo
Listing Photo
Listing Photo
Listing Photo
Listing Photo
Listing Photo
Listing Photo
Listing Photo
Listing Photo
Listing Photo
Listing Photo
Listing Photo
Listing Photo
Listing Photo
Listing Photo
Listing Photo
Listing Photo
Listing Photo
Listing Photo
Listing Photo
Listing Photo
Listing Photo
Listing Photo
Listing Photo
Listing Photo
Listing Photo

MLS #MFRO6388166 Listing courtesy of Keller Williams Advantage Iii provided by Stellar MLS.

Similar Listings

$825,000
7450 Marker Avenue
Kissimmee
8BR/6BA
| Active
$844,900
7649 Fairfax Drive
Kissimmee
8BR/6BA
| Active
$850,000
7602 Mackinaw Lane
Kissimmee
8BR/6BA
| Active
$850,000
7457 Marker Avenue
Kissimmee
8BR/6BA
| Active



All listing information is deemed reliable but not guaranteed and should be independently verified through personal inspection by appropriate professionals. Listings displayed on this website may be subject to prior sale or removal from sale; availability of any listing should always be independent verified. Listing information is provided for consumer personal, non-commercial use, solely to identify potential properties for potential purchase; all other use is strictly prohibited and may violate relevant federal and state law. The source of the listing data is as follows: Stellar MLS (updated 3/5/26 10:35 PM) |

Listing Search



Translate Tool

Featured Listings
Lake Mary Real Estate
$830,000
4 BED
2 BATH
Welcome to a lifestyle of unparalleled serenity and sophistication within the exclusive Lake Dawson Estates of Timacuan,... Read More
Orlando Real Estate
$1,245,000
4 BED
3 BATH
Your Dream Home in Baldwin Park. Welcome to 3838 Haws Lane, a beautifully updated 4-bedroom, 3-bath residence nestled in... Read More
Lake Helen Real Estate
$849,000
4 BED
3 BATH
Discover charm and modern comfort at 351 W Main Street, Lake Helen, FL—your slice of small-town paradise just minutes fr... Read More
Seffner Real Estate
$950,000
4 BED
3 BATH
Private Florida Estate with Resort-Style Saltwater Pool & Spa Experience serene, sun-soaked living just 20 minutes from ... Read More
Apollo Beach Real Estate
$1,449,000
5 BED
4 BATH
Welcome to 6526 Simone Shores Dr, Apollo Beach, FL – Brand-New Custom Waterfront Pool Home with Contemporary Design! Ste... Read More
Apollo Beach Real Estate
$1,029,000
3 BED
3 BATH
6532 Simone Shores Circle | The Marlin Floorplan 3 Beds | 3 Baths | Saltwater Pool, Spa & Dock with 10K Lift | 2-Car Gar... Read More
Apollo Beach Real Estate
$1,229,000
5 BED
3 BATH
6538 Simone Shores Circle | The Orion Floorplan 5 Beds | 4 Baths | 2,654 Living Sq. Ft. | 12 ft Elevation Welcome to 653... Read More
Anna Maria Real Estate
$1,325,000
3 BED
2 BATH
Lovingly held by the same family since the 1970s, this north end Anna Maria Island bungalow presents a rare opportunity ... Read More
Apollo Beach Real Estate
$1,449,000
5 BED
3 BATH
Welcome to 6520 Simone Shores Dr, Apollo Beach, FL – Brand-New Custom Waterfront Pool Home with Contemporary Design! Ste... Read More
Apollo Beach Real Estate
$1,069,000
4 BED
3 BATH
6542 Simone Shore Circle | The Marlin Floorplan 4 Beds | 3 Baths | 2-Car Garage | 2,139 Living Sq. Ft. | 12 ft Elevation... Read More
Contact Sandra Pardo

407-990-2746

Wendy Morris LLC

Licensed in the State of Florida
BK 3146762
16797 Broadwater Avenue
Winter Garden, Florida 34787

Your privacy is our utmost concern. We will never sell your personal information. Privacy Policy
©2026 sandrapardohomes.com - all rights reserved. | Site Map