407-990-2746
Menu

416 W Socrum Loop Road, Lakeland, FL

NEXT
PREV
$1,290,000

($377/sqft)

List Status: Active
416 W Socrum Loop Road
Lakeland, FL 33809


4 beds
3 baths
3418 living sqft
Top Features
  • Subdivision: N/a
  • Built in  2023
  • Single Family Residence
Description
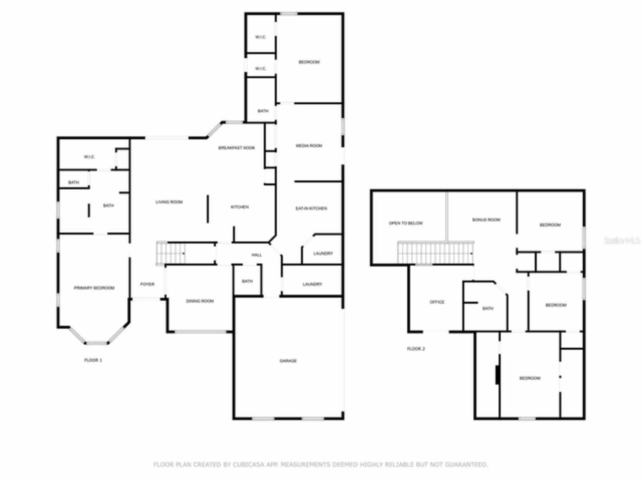
Nestled between Tampa and Orlando, this stunning contemporary home offers the perfect blend of sophistication, comfort, and entertainment. Situated on over an acre of beautifully manicured grounds, this property is more than just a house—it’s a private retreat designed for living, entertaining, and creating unforgettable memories. From the moment you arrive, you’ll be welcomed by a paved circular driveway, meticulously landscaped gardens, and a grand water fountain that sets the tone for the elegance inside. Vaulted ceilings and abundant natural light create an open, airy ambiance, while crown molding throughout adds a refined touch of craftsmanship. A stunning staircase with tempered glass makes a bold architectural statement. The home has an owners retreat and a spa like bathroom on the first floor. Upstairs you will find three additional spacious bedrooms, a full bathroom, and a bonus room providing ample space for family and guests. The second floor also has an office which includes a private balcony that overlooks the lush garden and fountain, making it an inspiring space for work or relaxation. Designed for entertainment and leisure, the backyard offers endless possibilities with an expansive paved patio for gatherings, a private soccer field, and a beach volleyball court. You’ll also find a separate fire pit patio for those cozy evenings under the stars. This property isn’t just a place to live—it’s a lifestyle investment. With its modern design, functional layout, and resort-style amenities, it’s ideal for families, professionals, and anyone who loves to entertain.
Property Details
Additional Information
Additional Parcels YN
false
Additional Rooms
Bonus Room, Den/Library/Office, Family Room, Formal Dining Room Separate, Interior In-Law Suite w/Private Entry, Loft
Alternate Key Folio Num
12-27-23-000000-014010
Appliances
Dishwasher, Electric Water Heater, Microwave, Range, Refrigerator, Water Filtration System
Architectural Style
Contemporary
Association YN
false
Attached Garage YN
true
Available For Lease YN
1
Bathrooms Total Integer
4
Building Area Source
Owner
Building Area Total
3605
Building Area Total Srch SqM
334.92
Building Area Units
Square Feet
Calculated List Price By Calculated SqFt
377.41
Carport Spaces
1
Carport YN
true
Construction Materials
Block, Brick, Stucco
Cooling
Central Air
Country
US
Cumulative Days On Market
158
Current Price
1290000.00
Direction Faces
North
Elementary School
R. Clem Churchwell Elem
Exterior Features
Balcony, Other, Sliding Doors
Fencing
Fenced, Masonry
Fireplace YN
false
Flood Zone Code
X
Flood Zone Date
2016-12-22
Flood Zone Panel
12105C0165G
Flooring
Ceramic Tile, Laminate, Marble
Foundation Details
Slab
Garage Spaces
2
Garage YN
true
Heating
Electric
High School
Lake Gibson High
Homestead YN
1
Interior Features
Cathedral Ceiling(s), Ceiling Fans(s), Crown Molding, Eat-in Kitchen, High Ceilings, Primary Bedroom Main Floor, Solid Surface Counters, Solid Wood Cabinets, Stone Counters, Thermostat, Tray Ceiling(s), Vaulted Ceiling(s), Walk-In Closet(s), Window Treatments
Internet Address Display YN
true
Internet Automated Valuation Display YN
true
Internet Consumer Comment YN
true
Internet Entire Listing Display YN
true
Laundry Features
Electric Dryer Hookup, Laundry Room, Washer Hookup
Levels
Two
List AOR
Suncoast Tampa
Living Area Meters
317.54
Living Area Source
Appraiser
Living Area Units
Square Feet
Lot Features
Oversized Lot
Lot Size Acres
1.1
Lot Size Square Feet
47759
Lot Size Square Meters
4437
Middle Or Junior School
Lake Gibson Middle/Junio
Minimum Lease
No Minimum
Modification Timestamp
2026-02-10T21:51:09.062Z
New Construction YN
false
Number Of Septics
1
Occupant Type
Owner
Other Equipment
Irrigation Equipment
Other Structures
Gazebo, Guest House
Ownership
Fee Simple
Parcel Number
23-27-12-000000-014010
Patio And Porch Features
Patio
Pool Private YN
false
Postal Code Plus 4
2229
Previous List Price
1390000
Price Change Timestamp
2025-11-11T15:50:07.000Z
Public Survey Range
23
Public Survey Section
12
RATIO Current Price By Calculated SqFt
377.41
Road Surface Type
Paved
Roof
Shingle
Room Count
12
Security Features
Closed Circuit Camera(s), Security Gate, Security System, Security System Owned, Smoke Detector(s)
Senior Community YN
false
Sewer
Septic Tank
Showing Requirements
Combination Lock Box
Status Change Timestamp
2025-09-05T20:52:12.000Z
Tax Annual Amount
10279
Tax Book Number
P-81
Tax Legal Description
N1/2 OF NE1/4 OF SW1/4 OF NE1/4 LESS W 120 FT & LESS MAINT R/W & LESS BEG NE COR OF SW1/4 OF NE1/4 RUN S89-47-49W ALONG S R/W LINE W SOCRUM LOOP RD 400.54 FT S00-16-04E 324.51 FT S89-50-44E 401.04 FT N00-16-04W 327.01 FT TO POB
Tax Year
2024
Total Acreage
1 to less than 2
Total Annual Fees
0.00
Total Monthly Fees
0.00
Township
27
Universal Property Id
US-12105-N-232712000000014010-R-N
Unparsed Address
416 W SOCRUM LOOP RD
Utilities
Cable Available, Electricity Connected, Public, Sprinkler Well, Water Connected
Vegetation
Trees/Landscaped
Water Source
Public
Waterfront YN
false
Window Features
Blinds, Double Pane Windows, Insulated Windows, Window Treatments
Zoning
RE-2
Neighborhood Map
Popup

Property Photos
Listing Photo
Listing Photo
Listing Photo
Listing Photo
Listing Photo
Listing Photo
Listing Photo
Listing Photo
Listing Photo
Listing Photo
Listing Photo
Listing Photo
Listing Photo
Listing Photo
Listing Photo
Listing Photo
Listing Photo
Listing Photo
Listing Photo
Listing Photo
Listing Photo
Listing Photo
Listing Photo
Listing Photo
Listing Photo
Listing Photo
Listing Photo
Listing Photo
Listing Photo
Listing Photo
Listing Photo
Listing Photo
Listing Photo
Listing Photo
Listing Photo
Listing Photo
Listing Photo
Listing Photo
Listing Photo
Listing Photo
Listing Photo
Listing Photo
Listing Photo
Listing Photo
Listing Photo
Listing Photo
Listing Photo
Listing Photo
Listing Photo
Listing Photo
Listing Photo
Listing Photo
Listing Photo
Listing Photo
Listing Photo
Listing Photo
Listing Photo
Listing Photo
Listing Photo
Listing Photo
Listing Photo
Listing Photo
Listing Photo
Listing Photo
Listing Photo
Listing Photo
Listing Photo
Listing Photo
Listing Photo
Listing Photo
Listing Photo
Listing Photo
Listing Photo
Listing Photo
Listing Photo
Listing Photo
Listing Photo
Listing Photo
Listing Photo
Listing Photo
Listing Photo
Listing Photo
Listing Photo
Listing Photo
Listing Photo
Listing Photo
Listing Photo
Listing Photo
Listing Photo
Listing Photo
Listing Photo
Listing Photo
Listing Photo
Listing Photo
Listing Photo
Listing Photo
Listing Photo
Listing Photo
Listing Photo
Listing Photo
Listing Photo
Listing Photo
Listing Photo
Listing Photo
Listing Photo
Listing Photo
Listing Photo
Listing Photo
Listing Photo
Listing Photo
Listing Photo
Listing Photo
Listing Photo
Listing Photo
Listing Photo
Listing Photo
Listing Photo
Listing Photo
Listing Photo
Listing Photo
Listing Photo
Listing Photo
Listing Photo
Listing Photo
Listing Photo
Listing Photo
Listing Photo
Listing Photo
Listing Photo
Listing Photo

MLS #MFRTB8424357 Listing courtesy of Charles Rutenberg Realty Inc provided by Stellar MLS.

Similar Listings

$1,175,000
685 Whisper Woods Drive
Lakeland
4BR/3BA
| Pending
$1,175,000
1310 Rolling Woods Lane
Lakeland
4BR/3BA
| Active
$1,295,000
2961 Sanctuary Circle
Lakeland
4BR/3BA
| Active
$1,395,000
2961 Sanctuary Circle
Lakeland
4BR/3BA
| Active



All listing information is deemed reliable but not guaranteed and should be independently verified through personal inspection by appropriate professionals. Listings displayed on this website may be subject to prior sale or removal from sale; availability of any listing should always be independent verified. Listing information is provided for consumer personal, non-commercial use, solely to identify potential properties for potential purchase; all other use is strictly prohibited and may violate relevant federal and state law. The source of the listing data is as follows: Stellar MLS (updated 4/16/26 1:34 AM) |

Listing Search



Translate Tool

Featured Listings
Bradenton Real Estate
$1,200,000
2 BED
2 BATH
One or more photo(s) has been virtually staged. Spectacular, dazzling and breath-taking…are just a few words that could ... Read More
Winter Park Real Estate
$1,300,000
3 BED
3 BATH
Beauifully rennovated property on coveted brick street in PRIME Winter Park Location! This exceptional 3-bedroom, 3.5-ba... Read More
Clearwater Beach Real Estate
$969,000
4 BED
4 BATH
Spacious Renovated Clearwater Beach with a renovated in-law cottage located just steps from the sands of Clearwater Beac... Read More
Clearwater Beach Real Estate
$849,000
3 BED
2 BATH
Welcome to coastal living at its finest in the highly sought-after South Beach community on Sand Key Beach. This gorgeou... Read More
Orlando Real Estate
$1,125,000
6 BED
5 BATH
*****PRICE IMPROVEMENT!!!******Ask about a lender provided rate buy-down credit on this home! ****Welcome to Eagle Creek... Read More
Palm Coast Real Estate
$839,900
3 BED
3 BATH
Pre-Construction. To be built. Experience refined Florida living with this To-Be-Built Magnolia Luxury Collection reside... Read More
Oldsmar Real Estate
$1,270,000
4 BED
3 BATH
One or more photo(s) has been virtually staged. This stunning new three-story residence by Danva Construction perfectly ... Read More
Plant City Real Estate
$940,000
4 BED
3 BATH
Stunning executive pool home with luxury upgrades throughout! Step into a world of refined elegance and sophistication a... Read More
Hernando Beach Real Estate
$1,100,000
3 BED
3 BATH
One or more photo(s) has been virtually staged. GORGEOUS TROPICAL PARADISE !!! PANORAMIC VIEW from this Direct Gulf Acce... Read More
Lakeland Real Estate
$950,000
4 BED
3 BATH
Welcome to this stunning 4-bedroom, 3-bath, 3 car garage custom-built home offering over 3,000 sf of beautifully designe... Read More
Contact Sandra Pardo

407-990-2746

Wendy Morris LLC

Licensed in the State of Florida
BK 3146762
16797 Broadwater Avenue
Winter Garden, Florida 34787

Your privacy is our utmost concern. We will never sell your personal information. Privacy Policy
©2026 sandrapardohomes.com - all rights reserved. | Site Map