407-990-2746
Menu

171 Live Oak Court, New Smyrna Beach, FL

NEXT
PREV
$539,900

($255/sqft)

List Status: Active
171 Live Oak Court
New Smyrna Beach, FL 32168


3 beds
2 baths
2119 living sqft
Top Features
  • Subdivision: Sugar Mill Country Club & Estates Unit 0
  • Built in  1991
  • Single Family Residence
Description
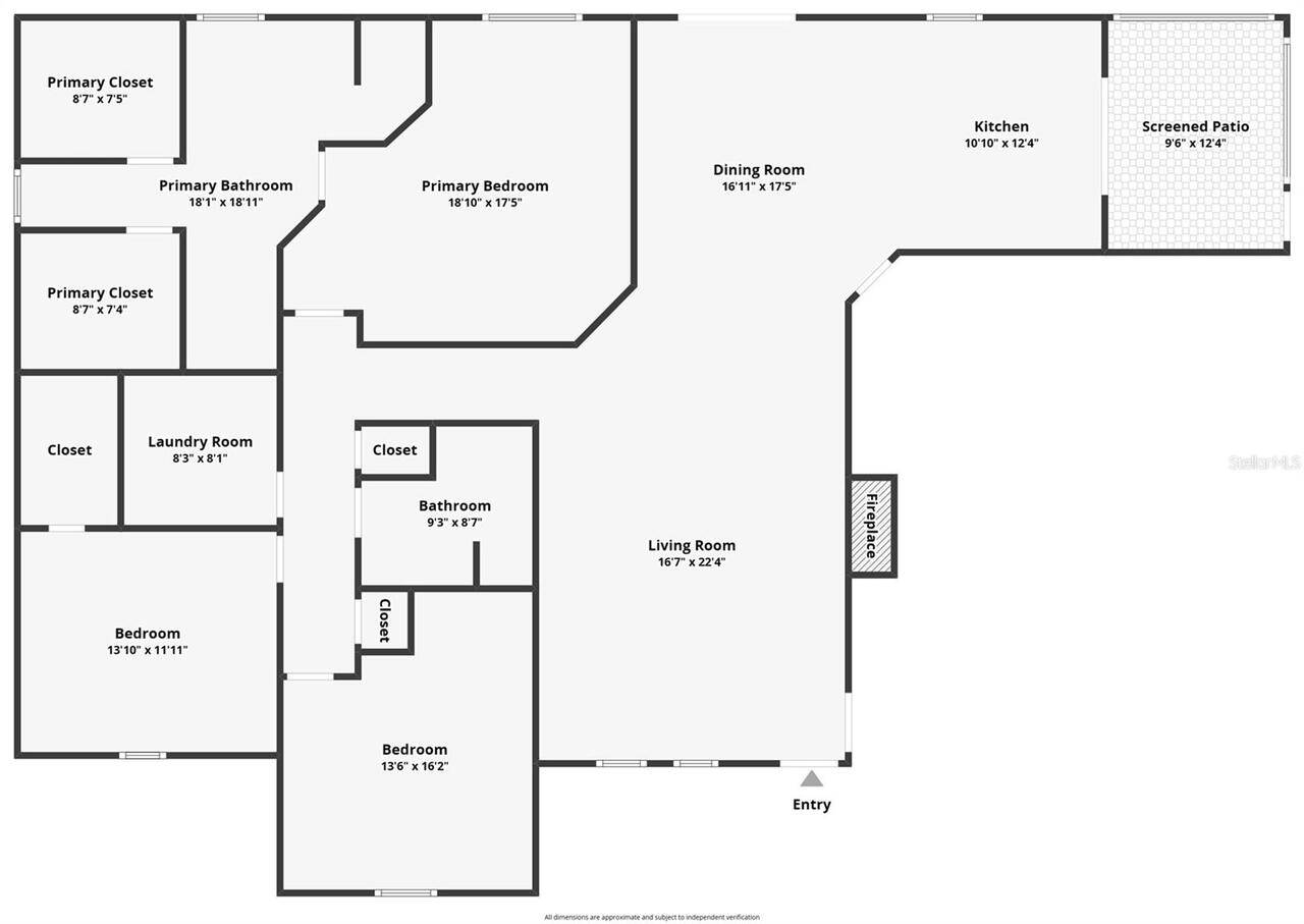
Welcome to a beautifully updated home located within the gated community of Sugar Mill Country Club—one of the area’s premier golf destinations known for its lush surroundings and active lifestyle. Tucked away on a quiet cul-de-sac, this residence offers a perfect blend of privacy, modern upgrades, and everyday comfort. Inside, you’ll immediately notice the fresh, clean feel created by recently refinished walls and ceilings, along with a striking accent wall and new hardwood flooring in all bedrooms that adds warmth and style. The primary suite has been completely transformed into a luxurious retreat, featuring a modern bathroom with a soaking tub, a spacious walk-in shower, dual walk-in closets. The kitchen, renovated in 2018, remains both functional and inviting, ideal for entertaining or daily living, while Andersen double-hung impact glass windows throughout the home provide natural light installed in 2018, energy efficiency, and peace of mind. Step outside to enjoy a screened-in lanai overlooking a fully fenced backyard, creating a private outdoor space perfect for relaxing or hosting guests. Additional highlights include an oversized three-car garage with a recently finished Shark floor coating and an HVAC system installed in June 2023 for added efficiency and comfort, the irrigation system was rebuilt in 2024. Beyond the home, residents have access to an exceptional lifestyle with optional memberships offering a 27-hole championship golf course, multiple dining options, tennis and pickleball courts, a resort-style pool, and a state-of-the-art fitness center. Ideally located just a short drive from the beaches and the shops and restaurants of New Smyrna Beach, this home combines luxury living with convenience, making it a rare opportunity in one of the most sought-after communities in the area.
Property Details
Additional Information
Additional Lease Restrictions
ALL INFORMATION IS ASSUMED ACCURATE BUT NOT GUARANTEED. ALL MEASUREMENTS ARE ESTIMATED. BUYERS AND THEIR AGENTS TO VERIFY ALL INFORMATION DEEMED IMPORTANT TO THEM.
Additional Parcels YN
false
Alternate Key Folio Num
734203000530
Appliances
Dishwasher, Dryer, Range, Refrigerator, Washer
Association Email
kscpoa@gmail.com
Association Fee
609
Association Fee Frequency
Annually
Association Fee Requirement
Required
Association YN
true
Attached Garage YN
true
Available For Lease YN
1
Bathrooms Total Integer
2
Building Area Source
Public Records
Building Area Total
3321
Building Area Total Srch SqM
308.53
Building Area Units
Square Feet
Calculated List Price By Calculated SqFt
254.79
Carport YN
false
Construction Materials
Brick, Frame
Cooling
Central Air
Country
US
Cumulative Days On Market
4
Current Price
539900.00
Direction Faces
Southwest
Exterior Features
French Doors, Lighting, Rain Gutters
Fencing
Vinyl
Fireplace Features
Wood Burning
Fireplace YN
true
Flood Zone Code
X
Flood Zone Date
2017-09-29
Flood Zone Panel
12127C0540J
Flooring
Tile, Wood
Foundation Details
Slab
Furnished
Negotiable
Garage Spaces
3
Garage YN
true
Heating
Central
Homestead YN
1
Interior Features
Ceiling Fans(s), High Ceilings, L Dining, Living Room/Dining Room Combo, Open Floorplan, Primary Bedroom Main Floor, Solid Surface Counters, Solid Wood Cabinets, Stone Counters, Thermostat
Internet Address Display YN
true
Internet Automated Valuation Display YN
false
Internet Consumer Comment YN
false
Internet Entire Listing Display YN
true
Laundry Features
Laundry Room
Lease Restrictions YN
1
Levels
One
List AOR
Orlando Regional
Living Area Meters
196.86
Living Area Source
Public Records
Living Area Units
Square Feet
Lot Size Acres
0.26
Lot Size Dimensions
113x101
Lot Size Square Feet
11413
Lot Size Square Meters
1060
Minimum Lease
1 Month
Modification Timestamp
2026-03-31T16:52:10.852Z
Monthly HOA Amount
50.75
New Construction YN
false
Occupant Type
Owner
Other Equipment
Irrigation Equipment
Ownership
Fee Simple
Parcel Number
7342-03-00-0530
Patio And Porch Features
Patio, Porch, Rear Porch, Screened
Pets Allowed
Yes
Pool Private YN
false
Postal Code Plus 4
7923
Public Survey Range
33E
Public Survey Section
42
RATIO Current Price By Calculated SqFt
254.79
Road Surface Type
Asphalt, Paved
Roof
Shingle
Room Count
6
Senior Community YN
false
Sewer
Public Sewer
Showing Requirements
Call Listing Agent, ShowingTime
Status Change Timestamp
2026-03-27T19:38:07.000Z
Stories Total
1
Tax Annual Amount
6168.33
Tax Block
00
Tax Book Number
33-110
Tax Legal Description
LOT 53 SUGAR MILL COUNTRY CLUB & ESTATES UNIT II MB 33 PGS 110-112 PER OR 4063 PG 0163 PER OR 5912 PGS 0023-0034 PER OR 5945 PGS 2335-2346 PER OR 5968 PGS 2395-2406 PER OR 7107 PG 1850 PER OR 7344 PG 0506 PER OR 7424 PG 1343 PER OR 8567 PG 0553 PER O R 867
Tax Lot
53
Tax Year
2025
Total Acreage
1/4 to less than 1/2
Total Annual Fees
609.00
Total Monthly Fees
50.75
Township
17S
Universal Property Id
US-12127-N-734203000530-R-N
Unparsed Address
171 LIVE OAK CT
Utilities
Public
Water Source
Public
Waterfront YN
false
Zoning
10R3
Neighborhood Map
Popup

Property Photos
Listing Photo
Listing Photo
Listing Photo
Listing Photo
Listing Photo
Listing Photo
Listing Photo
Listing Photo
Listing Photo
Listing Photo
Listing Photo
Listing Photo
Listing Photo
Listing Photo
Listing Photo
Listing Photo
Listing Photo
Listing Photo
Listing Photo
Listing Photo
Listing Photo
Listing Photo
Listing Photo
Listing Photo
Listing Photo
Listing Photo
Listing Photo
Listing Photo
Listing Photo
Listing Photo
Listing Photo
Listing Photo
Listing Photo
Listing Photo
Listing Photo
Listing Photo
Listing Photo
Listing Photo
Listing Photo
Listing Photo
Listing Photo
Listing Photo
Listing Photo
Listing Photo
Listing Photo
Listing Photo
Listing Photo
Listing Photo
Listing Photo
Listing Photo
Listing Photo
Listing Photo
Listing Photo
Listing Photo
Listing Photo
Listing Photo
Listing Photo
Listing Photo
Listing Photo
Listing Photo
Listing Photo
Listing Photo
Listing Photo
Listing Photo
Listing Photo
Listing Photo
Listing Photo
Listing Photo
Listing Photo
Listing Photo
Listing Photo
Listing Photo
Listing Photo
Listing Photo
Listing Photo
Listing Photo
Listing Photo
Listing Photo
Listing Photo
Listing Photo
Listing Photo
Listing Photo
Listing Photo
Listing Photo
Listing Photo
Listing Photo
Listing Photo
Listing Photo
Listing Photo
Listing Photo
Listing Photo
Listing Photo
Listing Photo
Listing Photo
Listing Photo
Listing Photo
Listing Photo
Listing Photo
Listing Photo
Listing Photo
Listing Photo
Listing Photo
Listing Photo
Listing Photo
Listing Photo
Listing Photo
Listing Photo
Listing Photo
Listing Photo
Listing Photo
Listing Photo
Listing Photo
Listing Photo
Listing Photo
Listing Photo
Listing Photo
Listing Photo
Listing Photo
Listing Photo
Listing Photo
Listing Photo
Listing Photo
Listing Photo
Listing Photo
Listing Photo
Listing Photo
Listing Photo
Listing Photo
Listing Photo
Listing Photo
Listing Photo
Listing Photo
Listing Photo
Listing Photo
Listing Photo
Listing Photo
Listing Photo
Listing Photo
Listing Photo
Listing Photo
Listing Photo
Listing Photo
Listing Photo
Listing Photo

MLS #MFRNS1087757 Listing courtesy of Collado Real Estate provided by Stellar MLS.

Similar Listings

$495,000
5300 S Atlantic Avenue
New Smyrna Beach
3BR/2BA
| Active
$499,000
585 Corbin Park Road
New Smyrna Beach
3BR/2BA
| Active
$499,000
1024 Club House Boulevard
New Smyrna Beach
3BR/2BA
| Active
$499,900
421 Phillips Creek Lane
New Smyrna Beach
3BR/2BA
| Pending



All listing information is deemed reliable but not guaranteed and should be independently verified through personal inspection by appropriate professionals. Listings displayed on this website may be subject to prior sale or removal from sale; availability of any listing should always be independent verified. Listing information is provided for consumer personal, non-commercial use, solely to identify potential properties for potential purchase; all other use is strictly prohibited and may violate relevant federal and state law. The source of the listing data is as follows: Stellar MLS (updated 4/22/26 6:37 AM) |

Listing Search



Translate Tool

Featured Listings
Winter Garden Real Estate
$1,325,000
5 BED
4 BATH
Tucked away on a Private Street within a quiet cul-de-sac in the highly sought-after Gated community of Hickory Hammock,... Read More
Lakeland Real Estate
$1,150,000
5 BED
4 BATH
Luxury Citrus Legacy Estate | Exclusive Gated Community Experience the perfect harmony of refined elegance and unparalle... Read More
Tarpon Springs Real Estate
$830,000
5 BED
3 BATH
THE ULTIMATE COASTAL ESTATE | LUXURY MEETS THE GULF Experience the perfect blend of architectural prestige and modern ef... Read More
Dunedin Real Estate
$1,200,000
3 BED
3 BATH
Priced 80k BELOW appraised value! Clean 4 point inspection! Seller motivated! Key West–inspired conch-style elegance mee... Read More
Land O Lakes Real Estate
$1,125,000
5 BED
3 BATH
Nestled within the prestigious gated village of Rose Pointe in Connerton—this extraordinary custom estate sits majestica... Read More
Indian Shores Real Estate
$1,110,000
4 BED
3 BATH
This is a rare, waterfront, four-bedroom, 3.5-bath, intracoastal townhome with 2,300 square feet of pure Florida coastal... Read More
The Villages Real Estate
$1,250,000
3 BED
2 BATH
Live the lifestyle you’ve earned in this stunning golf course view premier home with a private pool, outdoor entertainin... Read More
Orlando Real Estate
$985,000
4 BED
4 BATH
This totally upgraded gorgeous home sits in a beautiful open but private setting that boasts a wonderful private and rel... Read More
St Petersburg Real Estate
$1,099,500
3 BED
2 BATH
One or more photo(s) has been virtually staged. Stunning New Construction Home on a Prime Corner Lot in Bayou Bonita! We... Read More
Plant City Real Estate
$1,200,000
5 BED
4 BATH
LARGE LOT - 4.9 Acres with a 2023 built Pool Home, 5bd 4bth Plus Bonus Room, 2+ Car Garage. This home offers 3044sqft wi... Read More
Contact Sandra Pardo

407-990-2746

Wendy Morris LLC

Licensed in the State of Florida
BK 3146762
16797 Broadwater Avenue
Winter Garden, Florida 34787

Your privacy is our utmost concern. We will never sell your personal information. Privacy Policy
©2026 sandrapardohomes.com - all rights reserved. | Site Map