407-990-2746
Menu

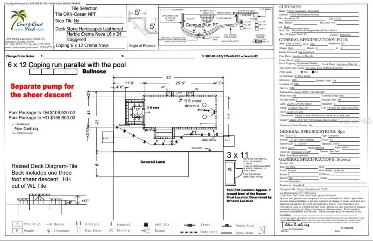
7653 Moonbeam Avenue, Sarasota, FL

NEXT
PREV
$793,019

($430/sqft)

List Status: Active
7653 Moonbeam Avenue
Sarasota, FL 34241


3 beds
2 baths
1843 living sqft
Top Features
  • Subdivision: Esplanade At Skye Ranch
  • Built in  2025
  • Single Family Residence
Description
Under Construction. What's Special: Close to Amenities | Close to Trails | West Facing Patio. New Construction – June Completion! Built by America's Most Trusted Homebuilder. Welcome to the Sereno at 7653 Moonbeam Avenue in Esplanade at Skye Ranch! Sun-soaked spaces and effortless living. Step through the inviting porch and airy foyer into an open-concept design where the great room flows into the kitchen, dining area, and a lanai—perfect for savoring Florida’s natural beauty. Tucked away, the private primary suite offers a spa-inspired bath and a generous walk-in closet, creating a serene retreat. Toward the front of the home, you’ll find two welcoming bedrooms, a full bath, a convenient powder room, and a laundry space to keep life organized. Additional Highlights Include: Gourmet kitchen, waterfall edge island, powder bath in place of storage, 8' interior doors, covered extended lanai, pool, and outdoor kitchen rough-in. MLS#A4677159 Live your dream vacation every day in Esplanade at Skye Ranch! Esplanade offers a vibrant, resort-style lifestyle with endless opportunities to energize your body, mind, and spirit. From the moment you arrive, you’ll experience a world of fun and relaxation, with access to the Hub, Rendezvous Park, and Turner Park and soon, The Venue! Get ready for exciting amenities like a Bahama Bar and Grill, resort-style pool, state-of-the-art fitness center, bocce ball courts, bark park, and more. With community parks, sports fields, and a pet park, Esplanade is your personal playground. Stay active, stay relaxed, and embrace a lifestyle filled with adventure, every single day!
Property Details
Property Features
Property Sub Type
Single Family Residence
Parking
Driveway, Garage Door Opener
Pool
In Ground
County
Sarasota
Subdivision
ESPLANADE AT SKYE RANCH
Building Name
TAYLOR MORRISON
Additional Information
Additional Lease Restrictions
Please see Community Sales Manager for additional information.
Additional Parcels YN
false
Additional Rooms
Great Room, Inside Utility
Appliances
Built-In Oven, Cooktop, Dishwasher, Disposal, Exhaust Fan, Gas Water Heater, Microwave, Range Hood, Refrigerator, Tankless Water Heater
Approval Process
Please see Community Sales Manager for additional information.
Architectural Style
Other
Association Fee
389.95
Association Fee Frequency
Monthly
Association Fee Requirement
Required
Association YN
true
Attached Garage YN
true
Available For Lease YN
1
Bathrooms Total Integer
2
Builder License Number
1261486
Builder Model
Sereno
Builder Name
Taylor Morrison
Building Area Source
Builder
Building Area Total
2460
Building Area Total Srch SqM
228.54
Building Area Units
Square Feet
CDDYN
1
Calculated List Price By Calculated SqFt
430.29
Carport YN
false
Construction Materials
Block, Concrete
Cooling
Central Air
Country
US
Cumulative Days On Market
131
Current Price
793019.00
Direction Faces
North
Elementary School
Lakeview Elementary
Fireplace YN
false
Flood Zone Code
A
Flooring
Carpet, Laminate
Foundation Details
Slab
Furnished
Unfurnished
Garage Spaces
2
Garage YN
true
Heating
Central
High School
Riverview High
Home Warranty YN
true
Interior Features
Open Floorplan, Primary Bedroom Main Floor, Split Bedroom, Tray Ceiling(s), Walk-In Closet(s), Window Treatments
Internet Address Display YN
true
Internet Automated Valuation Display YN
false
Internet Consumer Comment YN
false
Internet Entire Listing Display YN
true
Laundry Features
Inside, Laundry Room
Lease Restrictions YN
1
Levels
One
List AOR
Sarasota - Manatee
Living Area Meters
171.22
Living Area Source
Builder
Living Area Units
Square Feet
Lot Size Acres
0.17
Lot Size Square Feet
7280
Lot Size Square Meters
676
Middle Or Junior School
Sarasota Middle
Minimum Lease
1 Month
Modification Timestamp
2026-05-17T20:05:21.643Z
Monthly HOA Amount
389.95
New Construction YN
true
Num Times per Year
4
Number Of Pets
3
Occupant Type
Vacant
Other Equipment
Irrigation Equipment
Ownership
Fee Simple
Parcel Number
0305-14-4022
Permit Number
NA
Pet Restrictions
Please see Community Sales Manager for additional information.
Pets Allowed
Breed Restrictions, Number Limit, Yes
Pool Private YN
true
Previous List Price
743464
Price Change Timestamp
2026-04-23T17:26:45.000Z
Projected Completion Date
2026-06-30T00:00:00.000
Property Attached YN
true
Property Condition
Under Construction
Public Survey Range
19
Public Survey Section
28
RATIO Current Price By Calculated SqFt
430.29
Road Surface Type
Asphalt
Roof
Tile
Room Count
6
SW Subdiv Community Name
Not Applicable
Security Features
Gated Community
Senior Community YN
false
Sewer
Public Sewer
Showing Requirements
Appointment Only, Call Before Showing, Call Listing Office, See Remarks
Spa YN
false
Status Change Timestamp
2026-01-06T21:02:58.000Z
Tax Block
NA
Tax Book Number
54/218
Tax Legal Description
LOT 4022, SKYE RANCH NEIGHBORHOOD FOUR SOUTH, PB 57 PG 508-525
Tax Lot
4022
Tax Other Annual Assessment Amount
4394
Tax Year
2025
Total Acreage
0 to less than 1/4
Total Annual Fees
4679.40
Total Monthly Fees
389.95
Township
37
Universal Property Id
US-12115-N-0305144022-R-N
Unparsed Address
7653 MOONBEAM AVE
Utilities
Cable Available, Electricity Connected, Fiber Optics, Fire Hydrant, Natural Gas Connected, Sewer Connected, Underground Utilities, Water Connected
Water Source
Public
Water View
Pond
Water View YN
1
Waterfront YN
false
Zoning
RES
Neighborhood Map
Popup

Property Photos
Listing Photo
Listing Photo
Listing Photo
Listing Photo
Listing Photo
Listing Photo
Listing Photo
Listing Photo
Listing Photo
Listing Photo
Listing Photo
Listing Photo
Listing Photo
Listing Photo
Listing Photo
Listing Photo
Listing Photo
Listing Photo
Listing Photo
Listing Photo
Listing Photo
Listing Photo
Listing Photo
Listing Photo
Listing Photo
Listing Photo
Listing Photo
Listing Photo
Listing Photo
Listing Photo
Listing Photo
Listing Photo
Listing Photo
Listing Photo
Listing Photo
Listing Photo
Listing Photo
Listing Photo
Listing Photo
Listing Photo
Listing Photo
Listing Photo
Listing Photo
Listing Photo
Listing Photo
Listing Photo
Listing Photo
Listing Photo
Listing Photo
Listing Photo
Listing Photo
Listing Photo

MLS #MFRA4677159 Listing courtesy of Taylor Morrison Rlty Of Fla provided by Stellar MLS.

Similar Listings

$715,000
1900 Colleen Street
Sarasota
3BR/2BA
| Active
$715,000
3537 S School Avenue
Sarasota
3BR/2BA
| Active
$720,000
1821 Racimo Drive
Sarasota
3BR/2BA
| Active
$720,000
1903 Oak Street
Sarasota
3BR/2BA
| Active



All listing information is deemed reliable but not guaranteed and should be independently verified through personal inspection by appropriate professionals. Listings displayed on this website may be subject to prior sale or removal from sale; availability of any listing should always be independent verified. Listing information is provided for consumer personal, non-commercial use, solely to identify potential properties for potential purchase; all other use is strictly prohibited and may violate relevant federal and state law. The source of the listing data is as follows: Stellar MLS (updated 5/22/26 3:17 PM) |

Listing Search



Translate Tool

Featured Listings
Wesley Chapel Real Estate
$1,250,000
4 BED
5 BATH
Renovated 4-bedroom, 5-bathroom pool home with 2,998 square feet on a half-acre lot in the gated Saddlebrook Resort comm... Read More
Tampa Real Estate
$924,000
4 BED
3 BATH
Tucked away in a peaceful Citrus Park/Carrollwood setting, this stunningly transformed 4-bedroom, 3-bath home is the ret... Read More
Orlando Real Estate
$949,000
4 BED
3 BATH
Welcome to Courtleigh Park, a tranquil and private enclave offering exceptional value and a prime location just minutes ... Read More
Clearwater Real Estate
$875,000
5 BED
5 BATH
Looking for a great rental complex with 5 units and solid rental income??? Welcome to 409 and 411 Pleasant Street (sold ... Read More
Palm Harbor Real Estate
$975,000
5 BED
3 BATH
WATERFRONT BEAUTY on a POND and LAKE TARPON this beautifully REMODELED and METICULOUSLY MAINTAINED residence is tucked a... Read More
Wildwood Real Estate
$974,900
4 BED
3 BATH
Welcome to your private retreat in the heart of Oxford—an exceptional custom-built estate offering the perfect blend of ... Read More
Orlando Real Estate
$980,000
3 BED
3 BATH
BRAND NEW! NOW AVAILABLE! 3 bed/3.5-bathroom residence featuring an open loft-style living and kitchen design. An except... Read More
Sarasota Real Estate
$995,000
3 BED
2 BATH
This is the one * Location, location, location * This EXQUISITE EXECUTIVE HOME features PANORAMIC VIEWS of a VERY LARGE ... Read More
Sarasota Real Estate
$949,000
3 BED
2 BATH
This is the one * QUALITY BUILT BY CUSTOM HOME BUILDERS, CHRISTNER BROTHERS * A VERY PRIVATE SETTING on ALMOST 1 ACRE an... Read More
Bradenton Beach Real Estate
$1,099,000
5 BED
3 BATH
Turnkey Airbnb investment opportunity or perfect for your very own beach retreat! Only a 2 minute walk to the sunny Anna... Read More
Contact Sandra Pardo

407-990-2746

Wendy Morris LLC

Licensed in the State of Florida
BK 3146762
16797 Broadwater Avenue
Winter Garden, Florida 34787

Your privacy is our utmost concern. We will never sell your personal information. Privacy Policy
©2026 sandrapardohomes.com - all rights reserved. | Site Map