407-990-2746
Menu

7015 Pleasant Hill Road, Bradenton, FL

NEXT
PREV
$589,900

($283/sqft)

List Status: Active
7015 Pleasant Hill Road
Bradenton, FL 34203


3 beds
3 baths
2087 living sqft
Top Features
  • View: Golf Course
  • Subdivision: Tara Ph I
  • Built in  1990
  • Single Family Residence
Description
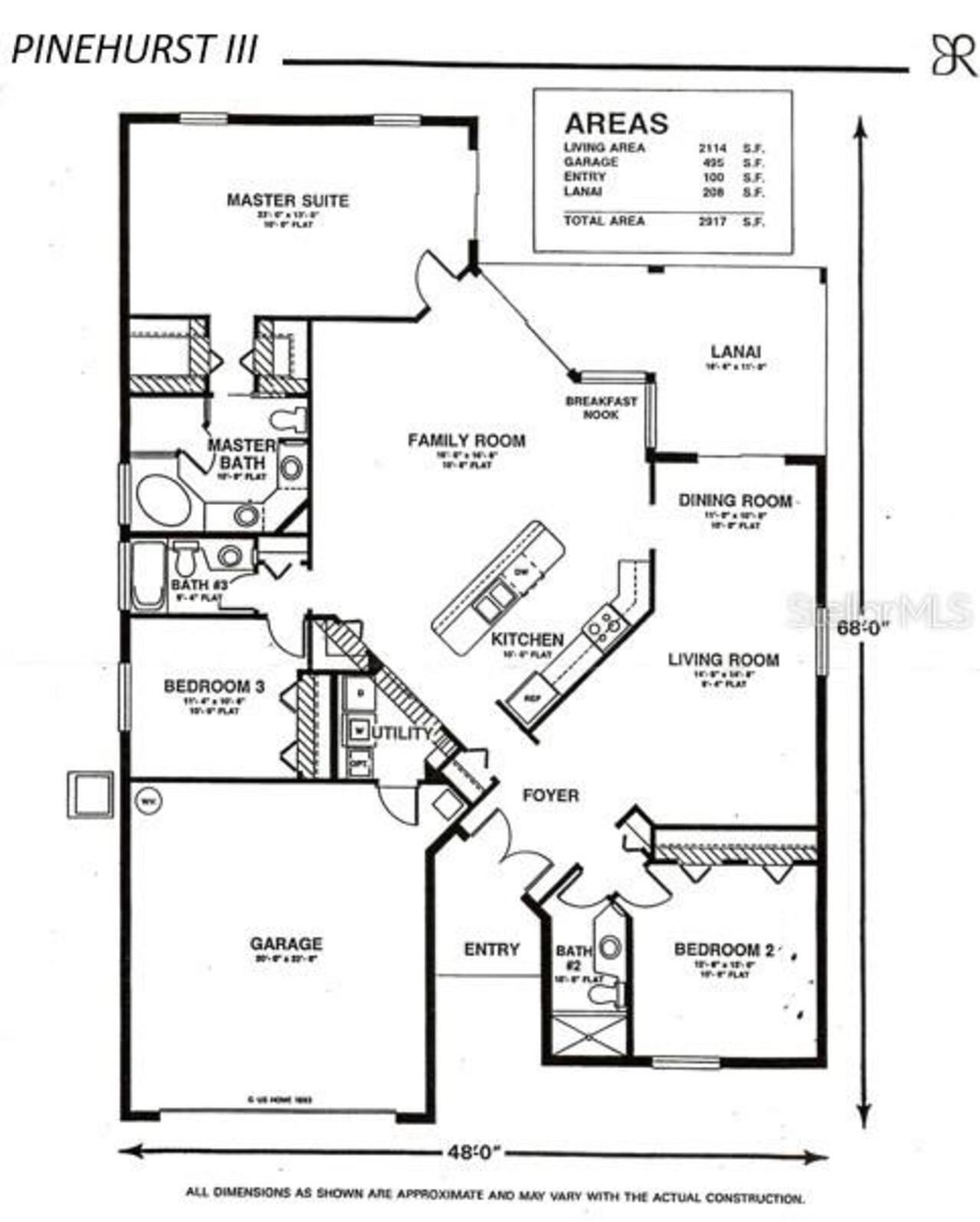
MUST SEE beautiful golf course, pool home in Tara Golf and Country Club was originally a model home. Tara is a private member only country club. The deeded Class ’A’ equity golf membership transfers to the new owner. Located on the 11th hole, this open, bright, and spacious 3 Bedroom plus family room, 3 full bath, 2 car garage home offers a beautiful view of the 11th tee box at Tara. It features many updates and extras, including central vacuum system and extra storage above the garage. From the elegant entry foyer and spacious formal living and dining room combination to the open kitchen and family room, you’ll love the spacious rooms and pool with golf course views. As you enter the foyer the primary living room and dining room is the first thing you see. To the right the third bedroom, shown as the den-office, is light and bright featuring large arched window. This bedroom is perfect for guests as the third bath is next to it providing separation from the rest of the home and privacy for guests. The split floorplan positions the kitchen and family room at the center as the heart of the home with the primary and second bedrooms beyond the kitchen and family rooms. The fully updated kitchen with large island, eat in breakfast nook, and stainless appliances is decorated with a nod to European hospitality and warmth inspired by the owner’s many travels abroad. You enter the primary bedroom and ensuite bath at the back of the home from the family room. This private owner’s domain is large enough to host a full entertainment center, king bed, chaise lounge, dressers, nightstands and more. The primary bedroom sliders lead to the lanai and pool with spa. The second bedroom is furnished as a relaxing bedroom that seems to hug you as you settle in this lovely space. All three baths feature walk-in showers. Outside the pool and spa are surrounded by a stamped concrete lanai surface, and large under roof area for outdoor dining and entertaining at the wet bar with bar refrig
Property Details
Additional Information
Additional Lease Restrictions
See Rules & Regs
Additional Parcels YN
false
Additional Rooms
Attic, Florida Room, Inside Utility
Alternate Key Folio Num
1731521108
Appliances
Convection Oven, Dishwasher, Disposal, Dryer, Electric Water Heater, Exhaust Fan, Microwave, Range, Range Hood
Approval Process
See Rules & Regs
Architectural Style
Florida
Association Amenities
Cable TV, Clubhouse, Fence Restrictions, Fitness Center, Golf Course, Maintenance, Pickleball Court(s), Recreation Facilities, Sauna, Security, Spa/Hot Tub, Tennis Court(s), Vehicle Restrictions
Association Approval Required YN
1
Association Email
jorologio@taragcc.com
Association Fee
547.62
Association Fee Frequency
Monthly
Association Fee Includes
Cable TV, Pool, Escrow Reserves Fund, Insurance, Internet, Maintenance Grounds, Management, Recreational Facilities
Association Fee Requirement
Required
Association URL
www.taragcc.com
Association YN
true
Attached Garage YN
true
Available For Lease YN
1
Bathrooms Total Integer
3
Building Area Source
Public Records
Building Area Total
2917
Building Area Total Srch SqM
271.00
Building Area Units
Square Feet
Calculated List Price By Calculated SqFt
282.65
Carport YN
false
Community Features
Association Recreation - Owned, Clubhouse, Deed Restrictions, Fitness Center, Golf Carts OK, Golf, No Truck/RV/Motorcycle Parking, Pool, Restaurant, Sidewalks, Special Community Restrictions, Tennis Court(s), Street Lights
Construction Materials
Block, Stucco
Cooling
Central Air
Country
US
Cumulative Days On Market
5
Current Price
589900.00
Direction Faces
South
Elementary School
Braden River Elementary
Exterior Features
Private Entrance, Private Mailbox, Sliding Doors
Fireplace YN
false
Flood Zone Code
X
Flood Zone Date
2021-08-10
Flood Zone Panel
12081C0336F
Floor Number
1
Flooring
Carpet, Ceramic Tile
Foundation Details
Slab
Furnished
Partially
Garage Dimensions
20x22
Garage Spaces
2
Garage YN
true
Heating
Central, Electric, Heat Pump
High School
Braden River High
Home Warranty YN
false
Homestead YN
1
Interior Features
Ceiling Fans(s), Central Vaccum, Chair Rail, Eat-in Kitchen, High Ceilings, L Dining, Living Room/Dining Room Combo, Primary Bedroom Main Floor, Solid Surface Counters, Split Bedroom, Stone Counters, Thermostat, Vaulted Ceiling(s), Walk-In Closet(s)
Internet Address Display YN
true
Internet Automated Valuation Display YN
true
Internet Consumer Comment YN
true
Internet Entire Listing Display YN
true
Laundry Features
Electric Dryer Hookup, Inside, Laundry Room, Washer Hookup
Lease Restrictions YN
1
Levels
One
List AOR
Suncoast Tampa
Living Area Meters
193.89
Living Area Source
Public Records
Living Area Units
Square Feet
Lot Features
Landscaped, Near Public Transit, On Golf Course, Sidewalk, Paved
Lot Size Acres
0.2
Lot Size Square Feet
8494
Lot Size Square Meters
789
Max Pet Weight
60
Middle Or Junior School
Braden River Middle
Minimum Lease
1 Month
Modification Timestamp
2026-04-19T19:06:53.658Z
Monthly HOA Amount
547.62
New Construction YN
false
Num Times per Year
12
Number Of Pets
1
Occupant Type
Owner
Other Equipment
Irrigation Equipment, Private Entrance
Other Fees Amount
60
Other Fees Term
Monthly
Ownership
Fee Simple
Parcel Number
1731521108
Patio And Porch Features
Covered, Front Porch, Patio, Screened
Pet Restrictions
See Rules & Regs
Pet Size
Medium (36-60 Lbs.)
Pets Allowed
Breed Restrictions, Cats OK, Dogs OK, Number Limit, Size Limit
Pool Dimensions
30x20
Pool Private YN
true
Postal Code Plus 4
7807
Public Survey Range
18
Public Survey Section
14
RATIO Current Price By Calculated SqFt
282.65
Realtor Info
As-Is, Docs Available, Floor Plan Available, Lease Restrictions, Sign
Road Responsibility
Public Maintained Road
Road Surface Type
Asphalt, Paved
Roof
Shingle
Room Count
10
SW Subdiv Community Name
Tara Golf and Country club
Security Features
Fire Alarm, Secured Garage/Parking, Security System, Security System Owned, Smoke Detector(s)
Senior Community YN
false
Sewer
Public Sewer
Showing Requirements
Supra Lock Box, 24 Hour Notice, Appointment Only, Listing Agent Must Accompany, See Remarks, ShowingTime
Spa Features
In Ground
Spa YN
true
Status Change Timestamp
2026-04-14T17:02:29.000Z
Tax Annual Amount
3066
Tax Book Number
25-154
Tax Legal Description
LOT 21 TARA PHASE I, UNIT 3 SUB; TOGETHER WITH A CLASS "A" MEMBERSHIP IN THE TARA GOLF & COUNTRY CLUB INC PI#17315.2110/8
Tax Lot
21
Tax Year
2025
Total Acreage
0 to less than 1/4
Total Annual Fees
8462.25
Total Monthly Fees
705.19
Township
35
Universal Property Id
US-12081-N-1731521108-R-N
Unparsed Address
7015 PLEASANT HILL RD
Utilities
Cable Connected, Electricity Connected, Public, Sewer Connected, Underground Utilities, Water Connected
Vegetation
Mature Landscaping
Water Source
Public
Waterfront YN
false
Window Features
Aluminum Frames, Blinds, Drapes, Rods, Window Treatments
Zoning
PDR/WPE/
Zoning Compatible YN
1
Neighborhood Map
Popup

Property Photos
Listing Photo
Listing Photo
Listing Photo
Listing Photo
Listing Photo
Listing Photo
Listing Photo
Listing Photo
Listing Photo
Listing Photo
Listing Photo
Listing Photo
Listing Photo
Listing Photo
Listing Photo
Listing Photo
Listing Photo
Listing Photo
Listing Photo
Listing Photo
Listing Photo
Listing Photo
Listing Photo
Listing Photo
Listing Photo
Listing Photo
Listing Photo
Listing Photo
Listing Photo
Listing Photo
Listing Photo
Listing Photo
Listing Photo
Listing Photo
Listing Photo
Listing Photo
Listing Photo
Listing Photo
Listing Photo
Listing Photo
Listing Photo
Listing Photo
Listing Photo
Listing Photo
Listing Photo
Listing Photo
Listing Photo
Listing Photo
Listing Photo
Listing Photo
Listing Photo
Listing Photo
Listing Photo
Listing Photo
Listing Photo
Listing Photo
Listing Photo
Listing Photo
Listing Photo
Listing Photo
Listing Photo
Listing Photo
Listing Photo
Listing Photo
Listing Photo
Listing Photo
Listing Photo
Listing Photo
Listing Photo
Listing Photo
Listing Photo
Listing Photo
Listing Photo
Listing Photo
Listing Photo
Listing Photo
Listing Photo
Listing Photo
Listing Photo
Listing Photo
Listing Photo
Listing Photo
Listing Photo
Listing Photo
Listing Photo
Listing Photo
Listing Photo
Listing Photo
Listing Photo
Listing Photo
Listing Photo
Listing Photo
Listing Photo
Listing Photo
Listing Photo
Listing Photo
Listing Photo
Listing Photo
Listing Photo
Listing Photo
Listing Photo
Listing Photo
Listing Photo
Listing Photo
Listing Photo
Listing Photo
Listing Photo
Listing Photo
Listing Photo
Listing Photo
Listing Photo
Listing Photo
Listing Photo
Listing Photo
Listing Photo
Listing Photo
Listing Photo
Listing Photo
Listing Photo
Listing Photo
Listing Photo
Listing Photo
Listing Photo
Listing Photo
Listing Photo
Listing Photo
Listing Photo
Listing Photo
Listing Photo
Listing Photo
Listing Photo
Listing Photo
Listing Photo
Listing Photo
Listing Photo
Listing Photo
Listing Photo
Listing Photo
Listing Photo
Listing Photo
Listing Photo
Listing Photo
Listing Photo
Listing Photo

MLS #MFRA4689940 Listing courtesy of Dalton Wade Inc provided by Stellar MLS.

Similar Listings

$548,000
17241 Blue Ridge Place
Bradenton
3BR/3BA
| Active
$549,000
3701 54th W Drive
Bradenton
3BR/3BA
| Active
$549,000
4407 67th E Street
Bradenton
3BR/3BA
| Active
$549,000
618 19th W Street
Bradenton
3BR/3BA
| Active



All listing information is deemed reliable but not guaranteed and should be independently verified through personal inspection by appropriate professionals. Listings displayed on this website may be subject to prior sale or removal from sale; availability of any listing should always be independent verified. Listing information is provided for consumer personal, non-commercial use, solely to identify potential properties for potential purchase; all other use is strictly prohibited and may violate relevant federal and state law. The source of the listing data is as follows: Stellar MLS (updated 4/19/26 9:48 PM) |

Listing Search



Translate Tool

Featured Listings
Winter Garden Real Estate
$800,000
5 BED
4 BATH
Fenced Corner Lot | Oversized 3+ Car Garage | Yard Maintenance Included | This home offers a functional layout with mult... Read More
Dunedin Real Estate
$999,000
4 BED
2 BATH
Under contract-accepting backup offers. Price IMPROVEMENT! Live the Ultimate Dunedin Lifestyle! Experience the true esse... Read More
St Petersburg Real Estate
$924,900
4 BED
3 BATH
SELLERS MOTIVATED!! Pridefully maintained and located in the idyllic neighborhood of Historic Roser Park, this elevated ... Read More
Windermere Real Estate
$1,500,000
4 BED
3 BATH
Completely Remodeled 2022 | Single Story |Gated Windermere Community | Set on nearly three-quarters of an acre in the ga... Read More
Inglis Real Estate
$999,000
5 BED
3 BATH
Welcome to your dream property! This brand-new, custom-built 2025 home sits on 10 picturesque acres and offers the perfe... Read More
Bradenton Real Estate
$949,000
4 BED
4 BATH
Under contract-accepting backup offers. Positioned within the gates of GreyHawk Landing, this former Homes by Towne Sawg... Read More
Venice Real Estate
$849,000
3 BED
2 BATH
Under contract-accepting backup offers. Vintage Venice charmer with pool on oversized lot! In the historic district of V... Read More
Port Charlotte Real Estate
$1,295,000
4 BED
4 BATH
**PLEASE ENJOY THE 3D INTERACTIVE VIRTUAL TOUR ASSOCIATED WITH THIS FABULOUS PROPERTY – Welcome to South Bayview Estates... Read More
Orlando Real Estate
$1,179,000
4 BED
4 BATH
NEW UPDATED ROOF BEFORE CLOSING, UPDATED DRAIN FIELD BEFORE CLOSING TO ACCOMMODATE THE FULLY UPDATED HOME! PRIVATE ESTAT... Read More
Morriston Real Estate
$1,475,000
5 BED
2 BATH
Set on 10 acres in the heart of Central Florida’s renowned horse country, this turnkey show farm offers an inviting bala... Read More
Contact Sandra Pardo

407-990-2746

Wendy Morris LLC

Licensed in the State of Florida
BK 3146762
16797 Broadwater Avenue
Winter Garden, Florida 34787

Your privacy is our utmost concern. We will never sell your personal information. Privacy Policy
©2026 sandrapardohomes.com - all rights reserved. | Site Map