407-990-2746
Menu

5252 Oakbourne Avenue, Davenport, FL

NEXT
PREV
$720,000

($170/sqft)

List Status: Active
5252 Oakbourne Avenue
Davenport, FL 33837


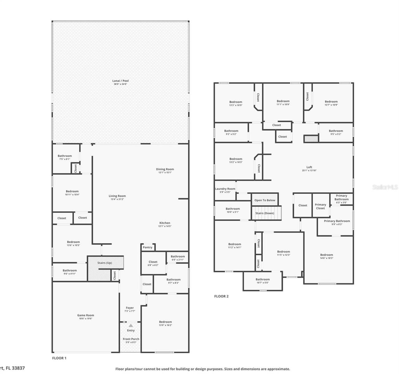
10 beds
8 baths
4231 living sqft
Top Features
  • View: Garden, Park/Greenbelt, Trees/Woods
  • Subdivision: Oakmont Ph 01
  • Built in  2017
  • Single Family Residence
Description
Back on Market, buyer backed out due to unforeseeable circumstances. Welcome to Palacio Paraíso, a stunning 10-bedroom estate inside the guard-gated Solterra Resort — a royal retreat just minutes from the magic of Disney. Designed to host guests with style and comfort, this home offers bright open living spaces, 5 en-suite bedrooms, and room for everyone (and we do mean everyone) to relax, recharge, and revel in the Florida sunshine. *** This home combines luxury, scale, and comfort with thoughtful upgrades throughout, including two refrigerators, two dishwashers, two laundry rooms (upstairs and downstairs), and an upstairs built-in bar/service area perfect for hosting. *** The main level features durable wood-grain plank ceramic tile for beauty and practicality, while the second floor offers luxury vinyl for comfort and quiet. The only carpet? Just the stairs — for safety, softness, and a neutral, timeless look. *** Step into your private screened-in pool/heated spa oasis, the perfect antidote to long park days and even longer group chats. *** Solterra Resort elevates everyday living with 24/7 guard-gated security, a resort-style pool with 10’ curving water slide, lazy river, pickleball, tennis, sand volleyball, an on-site café, and a fully refurbished fitness center with brand-new equipment. The community is also undergoing a fresh landscaping transformation — because even paradise appreciates a little pampering. *** Just over 20 minutes from Disney, and near restaurants, shopping, golf, and entertainment, Palacio Paraíso blends luxury, whimsy, and comfort in one unforgettable address.
Property Details
Additional Information
Additional Parcels YN
false
Additional Rooms
Bonus Room, Great Room, Inside Utility, Loft
Alternate Key Folio Num
272610701302001320
Appliances
Dishwasher, Disposal, Dryer, Gas Water Heater, Microwave, Range, Refrigerator, Washer, Wine Refrigerator
Architectural Style
Florida
Association Amenities
Clubhouse, Fence Restrictions, Fitness Center, Gated, Park, Pickleball Court(s), Playground, Pool, Recreation Facilities, Security, Spa/Hot Tub, Tennis Court(s), Vehicle Restrictions
Association Email
jbullins@artemislifestyles.com
Association Fee
832.19
Association Fee Frequency
Quarterly
Association Fee Includes
Guard - 24 Hour, Pool, Internet, Maintenance Grounds, Recreational Facilities, Security, Trash
Association Fee Requirement
Required
Association URL
www.artemislifestyles.com
Association YN
true
Attached Garage YN
true
Available For Lease YN
1
Bathrooms Total Integer
8
Building Area Source
Public Records
Building Area Total
4996
Building Area Total Srch SqM
464.14
Building Area Units
Square Feet
CDDYN
1
Calculated List Price By Calculated SqFt
170.17
Carport YN
false
Community Features
Association Recreation - Owned, Clubhouse, Deed Restrictions, Fitness Center, Gated Community - Guard, Irrigation-Reclaimed Water, No Truck/RV/Motorcycle Parking, Park, Playground, Pool, Restaurant, Sidewalks, Special Community Restrictions, Tennis Court(s), Street Lights
Complex Community Name NCCB
SOLTERRA RESORT
Construction Materials
Block, Frame
Cooling
Central Air, Zoned
Country
US
Cumulative Days On Market
104
Current Price
720000.00
Direction Faces
West
Disaster Mitigation
Above Flood Plain
Exterior Features
Sidewalk, Sliding Doors, Sprinkler Metered
Fireplace YN
false
Flood Zone Code
X
Flood Zone Date
2016-12-22
Flood Zone Panel
12105C0230H
Flooring
Carpet, Ceramic Tile, Luxury Vinyl
Foundation Details
Slab
Furnished
Furnished
Garage Spaces
2
Garage YN
true
Green Energy Efficient
Appliances, Insulation, Thermostat, Water Heater, Windows
Heating
Central
Interior Features
Ceiling Fans(s), Eat-in Kitchen, Kitchen/Family Room Combo, Living Room/Dining Room Combo, Open Floorplan, Primary Bedroom Main Floor, PrimaryBedroom Upstairs, Split Bedroom, Stone Counters, Walk-In Closet(s), Window Treatments
Internet Address Display YN
true
Internet Automated Valuation Display YN
true
Internet Consumer Comment YN
true
Internet Entire Listing Display YN
true
Laundry Features
Inside, Laundry Closet, Laundry Room, Upper Level
Levels
Two
List AOR
Orlando Regional
Living Area Meters
393.07
Living Area Source
Public Records
Living Area Units
Square Feet
Lot Features
Conservation Area, Greenbelt, In County, Landscaped, Level, Sidewalk, Paved
Lot Size Acres
0.14
Lot Size Dimensions
120x50
Lot Size Square Feet
5998
Lot Size Square Meters
557
Minimum Lease
1-7 Days
Modification Timestamp
2026-03-16T03:49:08.870Z
Monthly HOA Amount
277.40
New Construction YN
false
Occupant Type
Vacant
Other Equipment
Irrigation Equipment
Ownership
Fee Simple
Parcel Number
27-26-10-701302-001320
Patio And Porch Features
Covered, Enclosed, Patio, Rear Porch, Screened
Pet Restrictions
Buyer to verify with HOA
Pets Allowed
Yes
Pool Private YN
true
Postal Code Plus 4
8422
Public Survey Range
27
Public Survey Section
10
RATIO Current Price By Calculated SqFt
170.17
Realtor Info
As-Is, CDD Addendum required, Floor Plan Available, No Sign, Short Term Rental Allowed
Road Responsibility
Private Maintained Road
Road Surface Type
Asphalt
Roof
Tile
Room Count
13
Security Features
Gated Community, Security Gate, Security System, Security System Owned, Smoke Detector(s)
Senior Community YN
false
Sewer
Public Sewer
Showing Requirements
24 Hour Notice, Appointment Only, Call Listing Agent, Listing Agent Must Accompany, No Lockbox, ShowingTime
Spa Features
Heated, In Ground
Spa YN
true
Status Change Timestamp
2026-03-16T03:45:28.000Z
Stories Total
2
Tax Annual Amount
12399.39
Tax Book Number
148-16-30
Tax Legal Description
OAKMONT PHASE 1 PB 148 PG 16-30 LOT 132
Tax Lot
132
Tax Other Annual Assessment Amount
4158
Tax Year
2024
Total Acreage
0 to less than 1/4
Total Annual Fees
3328.76
Total Monthly Fees
277.40
Township
26
Universal Property Id
US-12105-N-272610701302001320-R-N
Unparsed Address
5252 OAKBOURNE AVE
Utilities
BB/HS Internet Available, Cable Connected, Electricity Connected, Fiber Optics, Natural Gas Connected, Public, Sewer Connected, Sprinkler Meter, Sprinkler Recycled, Underground Utilities, Water Connected
Vegetation
Mature Landscaping, Oak Trees, Trees/Landscaped
Water Source
Public
Waterfront YN
false
Window Features
Aluminum Frames, Blinds, Double Pane Windows, Drapes, ENERGY STAR Qualified Windows, Rods, Window Treatments
Neighborhood Map
Popup

Property Photos
Listing Photo
Listing Photo
Listing Photo
Listing Photo
Listing Photo
Listing Photo
Listing Photo
Listing Photo
Listing Photo
Listing Photo
Listing Photo
Listing Photo
Listing Photo
Listing Photo
Listing Photo
Listing Photo
Listing Photo
Listing Photo
Listing Photo
Listing Photo
Listing Photo
Listing Photo
Listing Photo
Listing Photo
Listing Photo
Listing Photo
Listing Photo
Listing Photo
Listing Photo
Listing Photo
Listing Photo
Listing Photo
Listing Photo
Listing Photo
Listing Photo
Listing Photo
Listing Photo
Listing Photo
Listing Photo
Listing Photo
Listing Photo
Listing Photo
Listing Photo
Listing Photo
Listing Photo
Listing Photo
Listing Photo
Listing Photo
Listing Photo
Listing Photo
Listing Photo
Listing Photo
Listing Photo
Listing Photo
Listing Photo
Listing Photo
Listing Photo
Listing Photo
Listing Photo
Listing Photo
Listing Photo
Listing Photo
Listing Photo
Listing Photo
Listing Photo
Listing Photo
Listing Photo
Listing Photo
Listing Photo
Listing Photo
Listing Photo
Listing Photo
Listing Photo
Listing Photo
Listing Photo
Listing Photo
Listing Photo
Listing Photo
Listing Photo
Listing Photo
Listing Photo
Listing Photo
Listing Photo
Listing Photo
Listing Photo
Listing Photo
Listing Photo
Listing Photo
Listing Photo
Listing Photo
Listing Photo
Listing Photo
Listing Photo
Listing Photo
Listing Photo
Listing Photo
Listing Photo
Listing Photo
Listing Photo
Listing Photo
Listing Photo
Listing Photo
Listing Photo
Listing Photo
Listing Photo
Listing Photo
Listing Photo
Listing Photo
Listing Photo
Listing Photo
Listing Photo
Listing Photo
Listing Photo
Listing Photo
Listing Photo
Listing Photo
Listing Photo
Listing Photo
Listing Photo
Listing Photo
Listing Photo
Listing Photo
Listing Photo
Listing Photo
Listing Photo
Listing Photo
Listing Photo
Listing Photo
Listing Photo
Listing Photo
Listing Photo
Listing Photo
Listing Photo
Listing Photo
Listing Photo
Listing Photo
Listing Photo
Listing Photo
Listing Photo
Listing Photo
Listing Photo
Listing Photo
Listing Photo
Listing Photo
Listing Photo
Listing Photo
Listing Photo
Listing Photo
Listing Photo
Listing Photo
Listing Photo
Listing Photo
Listing Photo
Listing Photo
Listing Photo
Listing Photo
Listing Photo
Listing Photo
Listing Photo
Listing Photo
Listing Photo
Listing Photo
Listing Photo
Listing Photo
Listing Photo
Listing Photo
Listing Photo
Listing Photo
Listing Photo
Listing Photo
Listing Photo
Listing Photo
Listing Photo
Listing Photo
Listing Photo
Listing Photo
Listing Photo
Listing Photo
Listing Photo
Listing Photo
Listing Photo
Listing Photo
Listing Photo
Listing Photo
Listing Photo
Listing Photo
Listing Photo
Listing Photo
Listing Photo
Listing Photo
Listing Photo
Listing Photo

MLS #MFRO6357699 Listing courtesy of Coldwell Banker Realty provided by Stellar MLS.

Similar Listings

$775,000
3029 Mahalo Drive
Davenport
10BR/8BA
| Active



All listing information is deemed reliable but not guaranteed and should be independently verified through personal inspection by appropriate professionals. Listings displayed on this website may be subject to prior sale or removal from sale; availability of any listing should always be independent verified. Listing information is provided for consumer personal, non-commercial use, solely to identify potential properties for potential purchase; all other use is strictly prohibited and may violate relevant federal and state law. The source of the listing data is as follows: Stellar MLS (updated 5/4/26 9:49 AM) |

Listing Search



Translate Tool

Featured Listings
St Petersburg Real Estate
$1,195,000
4 BED
3 BATH
Elevated Luxury Meets Coastal Living. Welcome to a truly exceptional new construction home in the heart of Shore Acres. ... Read More
Sarasota Real Estate
$1,100,000
2 BED
2 BATH
Siesta Key offer this Two Bedroom, Two Bath home with Full Views of the Gulf of Mexico. Turnkey furnished. Carport and s... Read More
Sarasota Real Estate
$999,900
3 BED
2 BATH
Experience Coastal Living at its finest in this turnkey-furnished, three-bedroom, two-bath retreat tucked away on a quie... Read More
Maitland Real Estate
$849,000
4 BED
2 BATH
ENTERTAINING MAITLAND GROVE POOL HOME. Step inside to discover oversized rooms, including a spacious great room overlook... Read More
Starke Real Estate
$825,000
5 BED
3 BATH
Discover the perfect blend of space, comfort, and rural charm in this beautifully updated 3,000+ sq ft home set on 6+ pe... Read More
Sarasota Real Estate
$949,000
4 BED
3 BATH
Come live the Florida lifestyle to the fullest in this truly exceptional CUSTOM -BUILT residence, ideally positioned beh... Read More
Longboat Key Real Estate
$1,250,000
3 BED
2 BATH
Under contract-accepting backup offers. It's all about location. Just a short drive from Sarasota, Longboat Key offers u... Read More
Alachua Real Estate
$1,300,000
4 BED
3 BATH
Set behind a private electric gate on more than 66 breathtaking acres, this extraordinary estate offers a rare blend of ... Read More
Alachua Real Estate
$995,000
4 BED
3 BATH
Set behind a private electric gate on 5 acres, this extraordinary estate offers a rare blend of luxury, self-sufficiency... Read More
The Villages Real Estate
$1,100,000
4 BED
2 BATH
One or more photo(s) has been virtually staged. EXPERIENCE REFINED ELEGANCE in this EXQUISITE, EXPANDED 4-bedroom, 2-bat... Read More
Contact Sandra Pardo

407-990-2746

Wendy Morris LLC

Licensed in the State of Florida
BK 3146762
16797 Broadwater Avenue
Winter Garden, Florida 34787

Your privacy is our utmost concern. We will never sell your personal information. Privacy Policy
©2026 sandrapardohomes.com - all rights reserved. | Site Map