407-990-2746
Menu

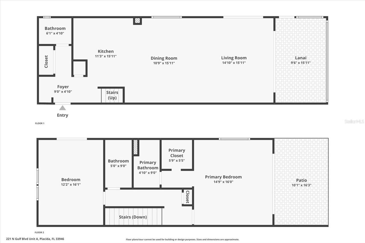
221 N Gulf Boulevard Unit: Unit: A, Placida, FL

NEXT
PREV
$1,395,000

($939/sqft)

List Status: Active
221 N Gulf Boulevard
Placida, FL 33946


2 beds
2 baths
1486 living sqft
Top Features
  • Frontage: Beach Front
  • View: Water
  • Subdivision: Palm Island Estates Un 1
  • Built in  1986
  • Townhouse
Description
DIRECT BEACHFRONT TOWNHOME on "Palm" Island! If you’re dreaming of an island getaway with your toes in the sand instead of the snow, this beautifully renovated end-unit townhome delivers the ultimate coastal escape. Located on magical Palm Island, along the sparkling Gulf of America, you’ll enjoy front-row seats to breathtaking sunsets and miles of pristine, shell-strewn white-sand beaches. This 2-bedroom, 2.5-bath residence has been thoughtfully updated inside and out and is truly move-in ready. Features include hurricane-rated windows and sliders, a 2025 standing-seam metal roof, Hardy Board siding, newer A/C, plumbing, electrical, and appliances, plus an open, inviting floor plan filled with natural light. Step outside to an expansive and private beachfront deck—perfect for entertaining, dining, or simply soaking in the views. The primary suite also offers its own private deck, ideal for savoring nightly sunsets. Whether you’re seeking a personal island retreat or a high-performing investment property, this townhome checks all the boxes and has excellent rental potential. Palm Island is a bridgeless barrier island accessible by a short car ferry ride, preserving its laid-back Old Florida charm. Once here, enjoy golf cart rides, kayaking, boating, fishing, biking, and long, peaceful beach walks—far from the hustle and bustle of everyday life.
Property Details
Additional Information
Additional Parcels YN
false
Additional Rooms
Inside Utility
Alternate Key Folio Num
412031476017
Appliances
Dishwasher, Dryer, Electric Water Heater, Microwave, Range, Refrigerator, Washer
Architectural Style
Coastal, Elevated, Florida, Key West
Association Fee Includes
Other
Association YN
false
Available For Lease YN
1
Bathrooms Total Integer
3
Building Area Source
Public Records
Building Area Total
1860
Building Area Total Srch SqM
172.80
Building Area Units
Square Feet
Calculated List Price By Calculated SqFt
938.76
Carport YN
false
Community Features
Golf Carts OK
Construction Materials
Cement Siding, Frame
Cooling
Central Air
Country
US
Cumulative Days On Market
6
Current Price
1395000.00
Direction Faces
East
Exterior Features
Lighting, Sliding Doors
Fireplace YN
false
Flood Zone Code
AE
Flood Zone Date
2022-11-17
Flood Zone Panel
12071C0182G
Flooring
Ceramic Tile, Luxury Vinyl
Foundation Details
Stilt/On Piling
Furnished
Negotiable
Garage YN
false
Heating
Central, Electric
Interior Features
Ceiling Fans(s), Eat-in Kitchen, Kitchen/Family Room Combo, Living Room/Dining Room Combo, PrimaryBedroom Upstairs, Solid Surface Counters, Thermostat, Window Treatments
Internet Address Display YN
true
Internet Automated Valuation Display YN
false
Internet Consumer Comment YN
false
Internet Entire Listing Display YN
true
Laundry Features
Laundry Closet
Levels
Two
List AOR
Englewood
Living Area Meters
138.05
Living Area Source
Public Records
Living Area Units
Square Feet
Lot Features
CoastalConstruction Control Line, FloodZone, In County
Lot Size Acres
0.1
Lot Size Square Feet
4288
Lot Size Square Meters
398
Minimum Lease
No Minimum
Modification Timestamp
2026-02-25T19:19:10.834Z
New Construction YN
false
Occupant Type
Owner
Ownership
Fee Simple
Parcel Number
412031476017
Patio And Porch Features
Covered, Deck, Rear Porch, Screened, Side Porch
Pool Private YN
false
Property Description
Corner Unit, Elevated, End Unit, Stilt Home
Public Survey Range
20E
Public Survey Section
29
RATIO Current Price By Calculated SqFt
938.76
Realtor Info
See Attachments
Road Responsibility
Public Maintained Road
Road Surface Type
Paved
Roof
Metal
Room Count
6
SW Subdiv Community Name
Palm Island Estates
Senior Community YN
false
Sewer
Septic Tank
Showing Requirements
Appointment Only, Call Listing Agent
Status Change Timestamp
2026-02-19T17:33:04.000Z
Stories Total
2
Tax Annual Amount
7818.28
Tax Block
A
Tax Book Number
6-4
Tax Legal Description
PIE 001 000A 0003A PALM ISLAND ESTATES UN 1 BLK A LT 3 LESS NW/LY 67.75 FT MEASURED AT RIGHT ANGLES TO COMMON LINE BETWEEN LTS 3 & 4 ALSO LESS NE/LY 75 FT MEASURED AT RIGHT ANGLES TO LINE COMMON TO LT 3 AND GULF BLVD AKA UNIT A OF UNREC SAVANNAH TOWN HOUSES 1091/1855
Tax Lot
3
Tax Year
2025
Total Acreage
0 to less than 1/4
Total Annual Fees
0.00
Total Monthly Fees
0.00
Township
41S
Universal Property Id
US-12015-N-412031476017-S-A
Unparsed Address
221 N GULF BLVD #A
Utilities
BB/HS Internet Available, Electricity Connected, Water Connected
Water Access
Beach, Beach - Access Deeded, Gulf/Ocean
Water Access YN
1
Water Body Name
GULF OF AMERICA
Water Source
Public
Water View
Beach, Gulf/Ocean - Full
Water View YN
1
Waterfront Feet Total
33
Waterfront YN
true
Window Features
Insulated Windows, Storm Window(s)
Zoning
BBI
Neighborhood Map
Popup

Property Photos
Listing Photo
Listing Photo
Listing Photo
Listing Photo
Listing Photo
Listing Photo
Listing Photo
Listing Photo
Listing Photo
Listing Photo
Listing Photo
Listing Photo
Listing Photo
Listing Photo
Listing Photo
Listing Photo
Listing Photo
Listing Photo
Listing Photo
Listing Photo
Listing Photo
Listing Photo
Listing Photo
Listing Photo
Listing Photo
Listing Photo
Listing Photo
Listing Photo
Listing Photo
Listing Photo
Listing Photo
Listing Photo
Listing Photo
Listing Photo
Listing Photo
Listing Photo
Listing Photo
Listing Photo
Listing Photo
Listing Photo
Listing Photo
Listing Photo
Listing Photo
Listing Photo
Listing Photo
Listing Photo
Listing Photo
Listing Photo
Listing Photo
Listing Photo
Listing Photo
Listing Photo
Listing Photo
Listing Photo
Listing Photo
Listing Photo
Listing Photo
Listing Photo
Listing Photo
Listing Photo
Listing Photo
Listing Photo
Listing Photo
Listing Photo
Listing Photo
Listing Photo
Listing Photo
Listing Photo
Listing Photo
Listing Photo
Listing Photo
Listing Photo
Listing Photo
Listing Photo
Listing Photo
Listing Photo
Listing Photo
Listing Photo
Listing Photo
Listing Photo
Listing Photo
Listing Photo
Listing Photo
Listing Photo
Listing Photo
Listing Photo
Listing Photo
Listing Photo
Listing Photo
Listing Photo
Listing Photo
Listing Photo

MLS #MFRD6146245 Listing courtesy of Paradise Exclusive Inc provided by Stellar MLS.

Similar Listings

$1,275,000
301 S Gulf Boulevard
Placida
2BR/2BA
| Active
$1,295,000
301 S Gulf Boulevard
Placida
2BR/2BA
| Active
$1,299,000
8772 Little Gasparilla Island
Placida
2BR/2BA
| Active
$1,495,000
97 Kettle Harbor Drive
Placida
2BR/2BA
| Active



All listing information is deemed reliable but not guaranteed and should be independently verified through personal inspection by appropriate professionals. Listings displayed on this website may be subject to prior sale or removal from sale; availability of any listing should always be independent verified. Listing information is provided for consumer personal, non-commercial use, solely to identify potential properties for potential purchase; all other use is strictly prohibited and may violate relevant federal and state law. The source of the listing data is as follows: Stellar MLS (updated 2/25/26 3:17 PM) |

Listing Search



Translate Tool

Featured Listings
Bradenton Real Estate
$1,295,000
4 BED
2 BATH
Welcome to this exceptional luxury residence in the sought-after community of Lakewood National Golf Club. This beautifu... Read More
Sarasota Real Estate
$825,000
3 BED
3 BATH
Discover exceptional Sarasota living in this exclusive gated enclave of just 11 homes, where privacy, elegance, and conv... Read More
Boca Grande Real Estate
$999,999
2 BED
2 BATH
Welcome to Boca Grande’s most coveted shoreline—a stretch of sugar-like sand where the Gulf of America shimmers in teal ... Read More
Windermere Real Estate
$1,199,000
4 BED
3 BATH
Discover the charm of the Town of Windermere, Tree City USA, where the sparkling lakes, mature tree canopies, and a quai... Read More
Riverview Real Estate
$899,000
5 BED
2 BATH
One or more photo(s) has been virtually staged. Welcome to RIVERFRONT LIVING! Nestled along the peaceful Alafia River, t... Read More
Riverview Real Estate
$839,000
5 BED
5 BATH
One or more photo(s) has been virtually staged. Private heated pool and spa overlooking a peaceful pond define this 4,00... Read More
Orlando Real Estate
$849,000
5 BED
3 BATH
Exceptional corner-lot residence with two-sided water views in the exclusive community of "The Pointeat" at Hunters Cree... Read More
Parrish Real Estate
$1,095,000
4 BED
3 BATH
Welcome to a refined Florida lifestyle where elegant design, privacy, and effortless indoor-outdoor living come together... Read More
Nokomis Real Estate
$1,095,000
3 BED
4 BATH
MOTIVATED SELLER! Immediate occupancy & move in ready. This beautifully appointed 3-bedroom, 6-bath home in the gated co... Read More
Merritt Island Real Estate
$925,000
3 BED
3 BATH
Welcome to luxury living in the heart of Merritt Island at The Plantation! This stunning 3-Bed/3-Bath home on an expansi... Read More
Contact Sandra Pardo

407-990-2746

Wendy Morris LLC

Licensed in the State of Florida
BK 3146762
16797 Broadwater Avenue
Winter Garden, Florida 34787

Your privacy is our utmost concern. We will never sell your personal information. Privacy Policy
©2026 sandrapardohomes.com - all rights reserved. | Site Map