407-990-2746
Menu

2074 Nw 11th Road, Gainesville, FL

NEXT
PREV
$1,055,000

($265/sqft)

List Status: Active
2074 Nw 11th Road
Gainesville, FL 32605


5 beds
3 baths
3980 living sqft
Top Features
  • View: Water, Garden, Park/Greenbelt, Trees/Woods, Pool
  • Subdivision: Florida Park
  • Built in  1957
  • Single Family Residence
Description
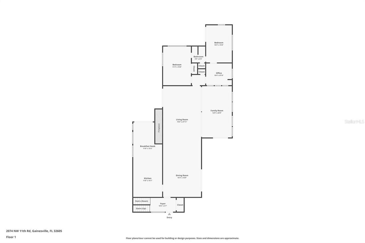
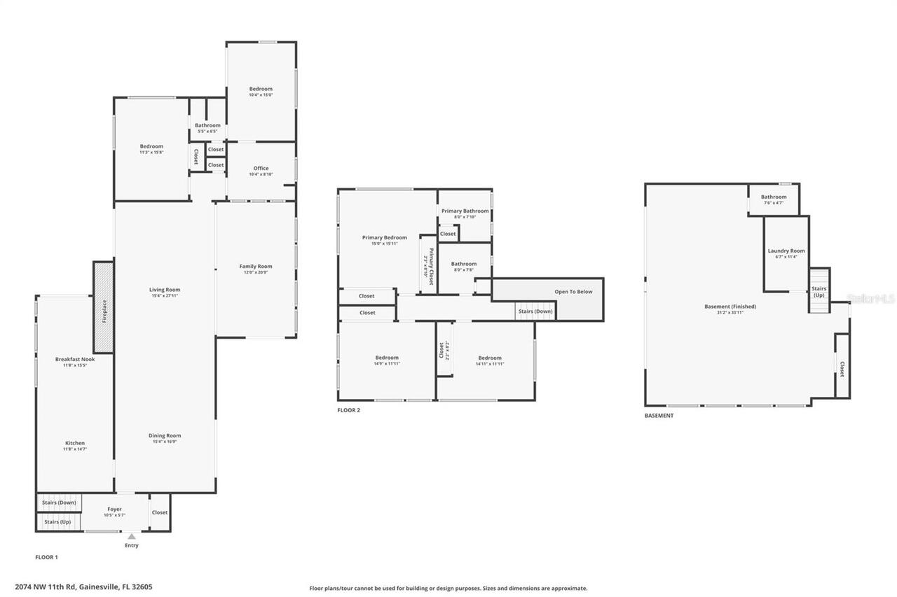
Creekside Mid-Century Modern with a pool, presence, and personality — ready for its next chapter. Located just minutes from the University of Florida, this home offers convenience for faculty, medical professionals, and anyone seeking proximity to campus. With five bedrooms and flexible living spaces, it also presents a compelling opportunity for a parent investing in Gainesville real estate while providing housing for their Baby Gator — or for someone envisioning a true Gators game day headquarters with space to host your whole crew in style. Set on over ¾ of an acre along Hogtown Creek, this beautifully designed Mid-Century Modern home offers just under 4,000 square feet of preserved character and meaningful updates. Built in 1957, the 5-bedroom plus office, 3.5-bath residence showcases many original features, including Ocala block construction, exposed wood beams, ornate ceilings, terrazzo floors, clerestory windows, and rich wood paneling. A lush tropical approach leads to the front porch and tiled foyer. Straight ahead, the living and dining spaces open beneath beamed ceiling with a cozy wood-burning fireplace. Wood floors and sliding glass doors connect seamlessly to a private walled courtyard. Just off the living room, the Florida Room features high ceilings, clerestory windows, skylights, and additional courtyard access. Nearby are a private office, two guest bedrooms, and a Jack-and-Jill bath. The thoughtfully updated kitchen offers custom wood cabinetry, Silestone countertops, a gas range, breakfast nook, a distinctive wood-burning oven framed by mosaic columns, and new appliances. Walls of glass and sliding doors open to the covered screened porch and overlook the pool, filling the home with natural light. Upstairs, two guest bedrooms share a vintage-inspired hall bath. At the end of the corridor, the Primary Suite serves as a private retreat, showcasing preserved mid-century character and a beautifully maintained tile bath. A separate stairway leads to a
Property Details
Property Features
Property Sub Type
Single Family Residence
View
Water, Garden, Park/Greenbelt, Trees/Woods, Pool
Frontage
Creek
Pool
Screen Enclosure, Gunite, Deck, In Ground
County
Alachua
Subdivision
FLORIDA PARK
Additional Information
Additional Parcels YN
false
Additional Rooms
Den/Library/Office, Family Room, Florida Room, Great Room, Storage Rooms
Appliances
Dishwasher, Disposal, Electric Water Heater, Gas Water Heater, Refrigerator
Architectural Style
Mid-Century Modern
Association YN
false
Available For Lease YN
1
Bathrooms Total Integer
4
Building Area Source
Owner
Building Area Total
3994
Building Area Total Srch SqM
371.05
Building Area Units
Square Feet
Calculated List Price By Calculated SqFt
265.08
Carport Spaces
2
Carport YN
true
Community Features
Street Lights
Complex Community Name NCCB
FLORIDA PARK
Construction Materials
Block, Wood Siding
Cooling
Central Air
Country
US
Cumulative Days On Market
71
Current Price
1055000.00
Direction Faces
South
Elementary School
Carolyn Beatrice Parker Elementary
Exterior Features
Courtyard, Dog Run, Garden, Outdoor Shower, Private Mailbox, Sliding Doors, Storage
Fencing
Chain Link
Fireplace Features
Living Room, Wood Burning
Fireplace YN
true
Flood Zone Code
A, B, X
Flooring
Carpet, Terrazzo, Tile, Wood
Foundation Details
Slab
Furnished
Unfurnished
Garage YN
false
Heating
Central
High School
Gainesville High School-AL
Home Warranty YN
false
Homestead YN
1
Interior Features
Built-in Features, Ceiling Fans(s), Eat-in Kitchen, Living Room/Dining Room Combo, Open Floorplan, PrimaryBedroom Upstairs, Split Bedroom, Thermostat, Window Treatments
Internet Address Display YN
true
Internet Automated Valuation Display YN
false
Internet Consumer Comment YN
false
Internet Entire Listing Display YN
true
Laundry Features
Laundry Room
Levels
Multi/Split
List AOR
Gainesville-Alachua
Living Area Meters
369.75
Living Area Source
Owner
Living Area Units
Square Feet
Lot Features
City Limits, Landscaped, Oversized Lot, Sidewalk, Paved
Lot Size Acres
0.77
Lot Size Square Feet
32000
Lot Size Square Meters
2973
Middle Or Junior School
Westwood Middle School-AL
Minimum Lease
No Minimum
Modification Timestamp
2026-04-29T18:06:11.924Z
New Construction YN
false
Occupant Type
Owner
Other Equipment
Irrigation Equipment, Generator
Ownership
Fee Simple
Parcel Number
09137-001-000
Patio And Porch Features
Covered, Front Porch, Patio, Screened
Pets Allowed
Cats OK, Dogs OK
Pool Private YN
true
Property Attached YN
false
Property Condition
Completed
Public Survey Range
20
Public Survey Section
31
RATIO Current Price By Calculated SqFt
265.08
Realtor Info
Owner Motivated
Road Surface Type
Paved
Roof
Other
Room Count
3
SW Subdiv Community Name
Not Applicable
Security Features
Security System
Senior Community YN
false
Sewer
Public Sewer
Showing Requirements
Supra Lock Box, Appointment Only, Lock Box Electronic, ShowingTime
Spa YN
false
Status Change Timestamp
2026-02-17T14:57:06.000Z
Tax Annual Amount
5378.7
Tax Legal Description
Lot Eight (8) of Block Four (4) of FLORIDA PARK UNIT NO FOUR (4) LESS the East 132 feet thereof according to the Plat thereof, as recorded in Plat Book "D", Page 5, of the Public Records of Alachua County, Florida.
Tax Lot
8
Tax Year
2025
Total Acreage
1/2 to less than 1
Total Annual Fees
0.00
Total Monthly Fees
0.00
Township
9
Universal Property Id
US-12001-N-09137001000-R-N
Unparsed Address
2074 NW 11TH RD
Utilities
Cable Connected, Electricity Connected, Natural Gas Connected, Phone Available, Sewer Connected, Water Connected
Vegetation
Bamboo, Fruit Trees, Mature Landscaping, Oak Trees, Trees/Landscaped, Wooded
Water Access
Creek
Water Access YN
1
Water Extras
Bridges - Fixed
Water Extras YN
1
Water Frontage Feet Creek
130
Water Source
Public
Water View
Creek
Water View YN
1
Waterfront Feet Total
130
Waterfront YN
true
Window Features
Skylight(s), Shutters
Zoning
SF!
Zoning Compatible YN
1
Neighborhood Map
Popup

Property Photos
Listing Photo
Listing Photo
Listing Photo
Listing Photo
Listing Photo
Listing Photo
Listing Photo
Listing Photo
Listing Photo
Listing Photo
Listing Photo
Listing Photo
Listing Photo
Listing Photo
Listing Photo
Listing Photo
Listing Photo
Listing Photo
Listing Photo
Listing Photo
Listing Photo
Listing Photo
Listing Photo
Listing Photo
Listing Photo
Listing Photo
Listing Photo
Listing Photo
Listing Photo
Listing Photo
Listing Photo
Listing Photo
Listing Photo
Listing Photo
Listing Photo
Listing Photo
Listing Photo
Listing Photo
Listing Photo
Listing Photo
Listing Photo
Listing Photo
Listing Photo
Listing Photo
Listing Photo
Listing Photo
Listing Photo
Listing Photo
Listing Photo
Listing Photo
Listing Photo
Listing Photo
Listing Photo
Listing Photo
Listing Photo
Listing Photo
Listing Photo
Listing Photo
Listing Photo
Listing Photo
Listing Photo
Listing Photo
Listing Photo
Listing Photo
Listing Photo
Listing Photo
Listing Photo
Listing Photo
Listing Photo
Listing Photo
Listing Photo
Listing Photo
Listing Photo
Listing Photo
Listing Photo
Listing Photo
Listing Photo
Listing Photo
Listing Photo
Listing Photo
Listing Photo
Listing Photo
Listing Photo
Listing Photo
Listing Photo
Listing Photo
Listing Photo
Listing Photo
Listing Photo
Listing Photo
Listing Photo
Listing Photo
Listing Photo
Listing Photo
Listing Photo
Listing Photo
Listing Photo
Listing Photo
Listing Photo
Listing Photo
Listing Photo
Listing Photo
Listing Photo
Listing Photo
Listing Photo
Listing Photo
Listing Photo
Listing Photo
Listing Photo
Listing Photo
Listing Photo
Listing Photo
Listing Photo
Listing Photo
Listing Photo
Listing Photo
Listing Photo
Listing Photo
Listing Photo
Listing Photo
Listing Photo
Listing Photo
Listing Photo
Listing Photo
Listing Photo
Listing Photo
Listing Photo
Listing Photo

MLS #MFRGC537601 Listing courtesy of Engel & Volkers Gainesville provided by Stellar MLS.

Similar Listings

$950,000
10320 Sw 17th Place
Gainesville
5BR/3BA
| Active
$980,000
13404 Nw 36th Avenue
Gainesville
5BR/3BA
| Pending
$1,020,000
10778 Sw 34th Road
Gainesville
5BR/3BA
| Active
$1,099,000
9208 Nw 64th Terrace
Gainesville
5BR/3BA
| Active



All listing information is deemed reliable but not guaranteed and should be independently verified through personal inspection by appropriate professionals. Listings displayed on this website may be subject to prior sale or removal from sale; availability of any listing should always be independent verified. Listing information is provided for consumer personal, non-commercial use, solely to identify potential properties for potential purchase; all other use is strictly prohibited and may violate relevant federal and state law. The source of the listing data is as follows: Stellar MLS (updated 5/17/26 1:17 PM) |

Listing Search



Translate Tool

Featured Listings
Land O Lakes Real Estate
$849,900
4 BED
3 BATH
Designed for luxury living, this lovely single-level custom home in the spring-fed lake community of Silver Lakes featur... Read More
Tampa Real Estate
$1,124,990
4 BED
4 BATH
Recently completed gorgeous modern new construction home Featuring IMPACT WINDOWS, 50-Amp Generator inlet, elevated luxu... Read More
Punta Gorda Real Estate
$979,000
3 BED
2 BATH
Expansive Open Water Views, 100 Ft Seawall, New Dock, PGI waterfront Living! Experience exceptional waterfront living in... Read More
Tavares Real Estate
$1,299,000
4 BED
3 BATH
Experience Luxury Country living on this stunning 5-acre estate in Tavares, Florida. Built in 2019, this custom 4-bedroo... Read More
Longwood Real Estate
$924,500
4 BED
3 BATH
Under contract-accepting backup offers. Exceptional custom estate pool home offering luxurious indoor-outdoor living, ex... Read More
Gainesville Real Estate
$1,020,000
5 BED
3 BATH
One or more photo(s) has been virtually staged. This is not just another Oakmont listing, it is the only Brooke model on... Read More
Tampa Real Estate
$1,299,990
5 BED
4 BATH
AVAIABLE NOW 2026 NEW CONSTRUCTION - Builder incentives available- Home features IMPACT WINDOWS throughout, 1-2-10 build... Read More
Fernandina Beach Real Estate
$1,485,000
3 BED
3 BATH
BRING OFFERS NOW! Direct Oceanfront Condo with VERY RARE GROUND FLOOR WITH YARD, nestled beneath a majestic canopy of oa... Read More
Odessa Real Estate
$1,299,000
5 BED
3 BATH
Private lakefront home on Lake Ann, a nearly 100-acre private ski lake in Odessa’s Wyndham Lakes community with no publi... Read More
Tavares Real Estate
$1,200,000
4 BED
3 BATH
Set along the shore of Lake Dora, this waterfront estate offers a rare blend of privacy, comfort, and relaxed luxury on ... Read More
Contact Sandra Pardo

407-990-2746

Wendy Morris LLC

Licensed in the State of Florida
BK 3146762
16797 Broadwater Avenue
Winter Garden, Florida 34787

Your privacy is our utmost concern. We will never sell your personal information. Privacy Policy
©2026 sandrapardohomes.com - all rights reserved. | Site Map