407-990-2746
Menu

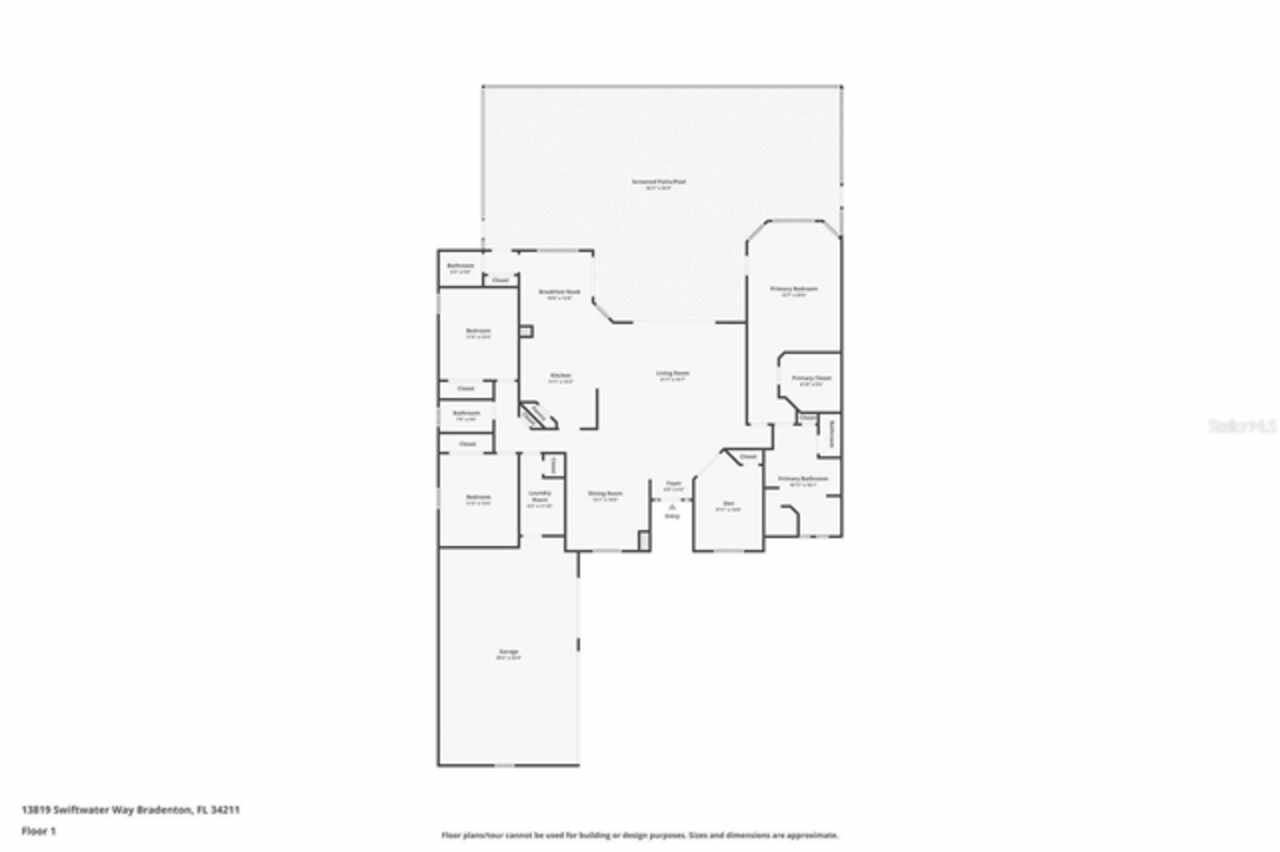
13819 Swiftwater Way, Bradenton, FL

NEXT
PREV
$829,000

($346/sqft)

List Status: Active
13819 Swiftwater Way
Bradenton, FL 34211


4 beds
2 baths
2394 living sqft
Top Features
  • Frontage: Lake Front, Pond
  • View: Water
  • Subdivision: Bridgewater Ph Iii At Lakewood Ranch
  • Built in  2017
  • Single Family Residence
Description
OH, WHAT A VIEW !!! JUST REDUCED........ Welcome to 13819 Swiftwater Way.... NEW PRICE, NEWLY REMODELED KITCHEN AND BATHS......This beautifully maintained Cambridge model is perfectly situated towards the end of a cul de sac features warm dark hardwood floors and oversized tile flooring and features 4 bedrooms and 2 1/2 baths. Imagine yourself sitting out back on the expansive lanai and enjoying magnificent preserve and water views will take your breath away. The gourmet kitchen is a chef's dream with a 5 burner gas stovetop and double ovens. Deep sink with touch faucet, granite counters and more. Enjoy Amazing sunsets over the water from a large screened lanai with a heated in ground pool and spa. The outdoor kitchen has a gas grill and beverage fridge. An oversized master suite with his and hers vanities, a soaking tub and a walk-in shower. Two guest bedrooms plus home office/den with double doors for privacy and could double as a 4th bedroom if needed. Large 3 car garage is ideal for storage. Bridgewater is a Gated community where landscaping is included in the low HOA. This home is conveniently located adjacent to James L Patton Park, with a lake, boat launch, and trails for outdoor activities. Close to shopping and restaurants...Bridgewater is centrally located, gated and a maintenance assisted community. Great place to call home....Will not last !!! SOME PHOTOS VIRTUALLY STAGED
Property Details
Additional Information
Additional Lease Restrictions
Speak to Management
Additional Parcels YN
false
Additional Rooms
Breakfast Room Separate, Den/Library/Office, Formal Dining Room Separate, Great Room
Alternate Key Folio Num
579961709
Appliances
Bar Fridge, Built-In Oven, Convection Oven, Cooktop, Dishwasher, Disposal, Dryer, Exhaust Fan, Gas Water Heater, Microwave, Range, Range Hood, Refrigerator, Washer, Water Softener
Approval Process
Speak to Management
Architectural Style
Mediterranean
Association Amenities
Gated, Maintenance
Association Approval Required YN
1
Association Fee
355.45
Association Fee Frequency
Monthly
Association Fee Includes
Maintenance Grounds
Association Fee Requirement
Required
Association YN
true
Attached Garage YN
true
Available For Lease YN
1
Bathrooms Total Integer
3
Builder Model
Cambridge
Builder Name
Lennar
Building Area Source
Public Records
Building Area Total
3419
Building Area Total Srch SqM
317.64
Building Area Units
Square Feet
CDDYN
1
Calculated List Price By Calculated SqFt
346.28
Carport YN
false
Community Features
Gated Community - No Guard, Golf Carts OK, Park, Sidewalks
Construction Materials
Block, Stucco
Cooling
Central Air
Country
US
Cumulative Days On Market
397
Current Price
829000.00
Direction Faces
East
Elementary School
Gullett Elementary
Exterior Features
Hurricane Shutters, Lighting, Outdoor Grill, Outdoor Kitchen, Rain Gutters, Sidewalk, Sliding Doors
Fireplace YN
false
Flood Zone Code
AE
Flooring
Carpet, Hardwood, Tile
Foundation Details
Slab
Garage Dimensions
20x32
Garage Spaces
3
Garage YN
true
Heating
Central, Heat Pump
High School
Lakewood Ranch High
Home Warranty YN
false
Interior Features
Ceiling Fans(s), Crown Molding, Eat-in Kitchen, High Ceilings, In Wall Pest System, Open Floorplan, Pest Guard System, Solid Wood Cabinets, Stone Counters, Thermostat, Tray Ceiling(s), Walk-In Closet(s)
Internet Address Display YN
true
Internet Automated Valuation Display YN
true
Internet Consumer Comment YN
true
Internet Entire Listing Display YN
true
Laundry Features
Laundry Room
Lease Restrictions YN
1
Levels
One
List AOR
Sarasota - Manatee
Living Area Meters
222.41
Living Area Source
Owner
Living Area Units
Square Feet
Lot Features
Cul-De-Sac, Sidewalk, Paved
Lot Size Acres
0.24
Lot Size Square Feet
10411
Lot Size Square Meters
967
Middle Or Junior School
Dr Mona Jain Middle
Minimum Lease
No Minimum
Modification Timestamp
2026-02-19T11:52:10.006Z
Monthly HOA Amount
355.45
New Construction YN
false
Num Times per Year
2
Number Of Pets
3
Occupant Type
Vacant
Other Equipment
Irrigation Equipment
Ownership
Fee Simple
Parcel Number
579961709
Patio And Porch Features
Covered, Front Porch, Patio, Porch, Screened
Pet Restrictions
Speak to Management
Pet Size
Large (61-100 Lbs.)
Pets Allowed
Cats OK, Dogs OK, Yes
Pool Private YN
true
Postal Code Plus 4
4084
Previous List Price
849900
Price Change Timestamp
2026-02-18T14:03:21.000Z
Public Survey Range
19E
Public Survey Section
16
RATIO Current Price By Calculated SqFt
346.28
Realtor Info
No Sign
Road Surface Type
Paved
Roof
Tile
Room Count
7
SW Subdiv Community Name
Bridgewater Townhomes
Security Features
Gated Community, Security System Owned
Senior Community YN
false
Sewer
Public Sewer
Showing Requirements
Appointment Only, Call Listing Agent, Listing Agent Must Accompany
Spa Features
Heated, In Ground
Spa YN
true
Status Change Timestamp
2025-07-18T13:47:26.000Z
Stories Total
1
Tax Annual Amount
9969
Tax Legal Description
LOT 233 BRIDGEWATER PH III AT LAKEWOOD RANCH PI#5799.6170/9
Tax Lot
233
Tax Other Annual Assessment Amount
2201
Tax Year
2024
Total Acreage
0 to less than 1/4
Total Annual Fees
4265.40
Total Monthly Fees
355.45
Township
35S
Universal Property Id
US-12081-N-579961709-R-N
Unparsed Address
13819 SWIFTWATER WAY
Utilities
Cable Connected, Electricity Connected, Fiber Optics, Natural Gas Connected, Sewer Connected, Sprinkler Recycled, Underground Utilities, Water Connected
Water Source
Canal/Lake For Irrigation, Public
Water View
Pond
Water View YN
1
Waterfront YN
true
Window Features
Blinds
Zoning
PDMU/A
Zoning Compatible YN
1
Neighborhood Map
Popup

Property Photos
Listing Photo
Listing Photo
Listing Photo
Listing Photo
Listing Photo
Listing Photo
Listing Photo
Listing Photo
Listing Photo
Listing Photo
Listing Photo
Listing Photo
Listing Photo
Listing Photo
Listing Photo
Listing Photo
Listing Photo
Listing Photo
Listing Photo
Listing Photo
Listing Photo
Listing Photo
Listing Photo
Listing Photo
Listing Photo
Listing Photo
Listing Photo
Listing Photo
Listing Photo
Listing Photo
Listing Photo
Listing Photo
Listing Photo
Listing Photo
Listing Photo
Listing Photo
Listing Photo
Listing Photo
Listing Photo
Listing Photo
Listing Photo
Listing Photo
Listing Photo
Listing Photo
Listing Photo
Listing Photo
Listing Photo
Listing Photo
Listing Photo
Listing Photo
Listing Photo
Listing Photo
Listing Photo
Listing Photo
Listing Photo
Listing Photo
Listing Photo
Listing Photo
Listing Photo
Listing Photo
Listing Photo
Listing Photo
Listing Photo
Listing Photo
Listing Photo
Listing Photo
Listing Photo
Listing Photo
Listing Photo
Listing Photo
Listing Photo
Listing Photo
Listing Photo
Listing Photo
Listing Photo
Listing Photo
Listing Photo
Listing Photo
Listing Photo
Listing Photo
Listing Photo
Listing Photo
Listing Photo
Listing Photo
Listing Photo
Listing Photo
Listing Photo
Listing Photo

MLS #MFRA4659282 Listing courtesy of Fine Properties provided by Stellar MLS.

Similar Listings

$749,000
438 Whistler Glen
Bradenton
4BR/2BA
| Active
$750,000
7143 Whittlebury Trail
Bradenton
4BR/2BA
| Pending
$759,000
1103 87th Nw Street
Bradenton
4BR/2BA
| Active
$775,000
111 41st Ne Street
Bradenton
4BR/2BA
| Active



All listing information is deemed reliable but not guaranteed and should be independently verified through personal inspection by appropriate professionals. Listings displayed on this website may be subject to prior sale or removal from sale; availability of any listing should always be independent verified. Listing information is provided for consumer personal, non-commercial use, solely to identify potential properties for potential purchase; all other use is strictly prohibited and may violate relevant federal and state law. The source of the listing data is as follows: Stellar MLS (updated 4/21/26 6:06 PM) |

Listing Search



Translate Tool

Featured Listings
New Port Richey Real Estate
$844,900
4 BED
3 BATH
WATERFRONT PARADISE! RARE OPPORTUNITY! GULF ACCESS! 2.3 PRIVATE ACRES! SALT WATER POOL! YOUR OWN BOAT RAMP! RV PARKING &... Read More
Bradenton Real Estate
$1,191,900
5 BED
4 BATH
Under Construction. Step off the front porch into this grand entryway featuring a two-story ceiling. French doors open i... Read More
St Petersburg Real Estate
$999,000
3 BED
2 BATH
Welcome to this MOVE-IN READY WATERFRONT HOME you’ve been waiting for in the highly desirable BROADWATER NEIGHBORHOOD. T... Read More
Madeira Beach Real Estate
$850,000
3 BED
2 BATH
This three-bedroom, two-bathroom residence boasts a meticulously renovated interior, blending contemporary elegance with... Read More
Dunedin Real Estate
$1,390,000
3 BED
3 BATH
Under contract-accepting backup offers. Price Improvement! Seller motivated! Below appraised value! Welcome to a truly e... Read More
Bradenton Real Estate
$998,000
4 BED
3 BATH
Located in the highly sought after Lakewood Ranch community of Country Club East, this exquisite residence has a view th... Read More
New Port Richey Real Estate
$1,290,000
5 BED
4 BATH
One or more photo(s) has been virtually staged. Exceptional Gulf Harbors Waterfront Estate with 221’ of Deep-Water Docka... Read More
Sarasota Real Estate
$1,135,000
2 BED
2 BATH
Rarely available beach-view residence with deeded access to the renowned shores of Siesta Key Beach. Located on the thir... Read More
Parrish Real Estate
$924,999
3 BED
3 BATH
Welcome to the sought-after gated community Reserve at Twin Rivers, a serene neighborhood where luxury, space, and lifes... Read More
Longboat Key Real Estate
$1,395,000
2 BED
2 BATH
Positioned on the south side and sixth floor of The Promenade on Longboat Key, Residence #610 delivers a true move-in-re... Read More
Contact Sandra Pardo

407-990-2746

Wendy Morris LLC

Licensed in the State of Florida
BK 3146762
16797 Broadwater Avenue
Winter Garden, Florida 34787

Your privacy is our utmost concern. We will never sell your personal information. Privacy Policy
©2026 sandrapardohomes.com - all rights reserved. | Site Map