407-990-2746
Menu

, Ocala, FL

NEXT
PREV
$275,000

($197/sqft)

List Status: Active

Ocala, FL 34472


3 beds
3 baths
1396 living sqft
Top Features
  • Subdivision: Silver Springs Shores
  • Built in  2026
  • Single Family Residence
Description
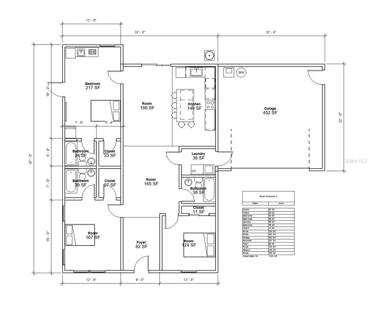
Pre-Construction. To be built. Experience the strength and efficiency of commercial-grade cold-formed steel construction in this beautifully designed pre-construction home offering 3 bedrooms, 3 bathrooms, and a metal roof! One of the bedrooms is set as a private mother-in-law suite with a private entrance, living space, and a kitchenette. Built for durability and long-term peace of mind, this home combines modern design with practical living spaces perfect for today’s lifestyle. The open-concept floor plan features a spacious living area, a well-appointed kitchen, and thoughtfully designed bedrooms that maximize comfort and functionality. The separate mother-in-law suite provides flexible living options—ideal for extended family, guests, or potential rental income. Buyers will enjoy the benefits of pre-construction, including the opportunity to personalize finishes and select upgrades to match their style. Steel construction offers enhanced structural integrity, energy efficiency, and reduced maintenance compared to traditional builds. Conveniently located near shopping, dining, and everyday amenities, this home delivers both quality craftsmanship and versatile living in one exceptional package. Secure your new home early and bring your vision to life from the ground up.
Property Details
Additional Information
Additional Parcels YN
false
Additional Rooms
Interior In-Law Suite w/Private Entry
Alternate Key Folio Num
9032-0872-28
Appliances
Microwave, Range, Refrigerator
Association YN
false
Attached Garage YN
true
Available For Lease YN
1
Bathrooms Total Integer
3
Building Area Source
Public Records
Building Area Total
1396
Building Area Total Srch SqM
129.69
Building Area Units
Square Feet
Calculated List Price By Calculated SqFt
196.99
Carport YN
false
Construction Materials
Stucco
Cooling
Central Air
Country
US
Cumulative Days On Market
61
Current Price
275000.00
Direction Faces
North
Fireplace YN
false
Flood Zone Code
X
Flooring
Luxury Vinyl
Foundation Details
Slab
Furnished
Unfurnished
Garage Spaces
2
Garage YN
true
Interior Features
Ninguno
Internet Address Display YN
false
Internet Automated Valuation Display YN
false
Internet Consumer Comment YN
false
Internet Entire Listing Display YN
false
Laundry Features
Laundry Room
Levels
One
List AOR
Ocala - Marion
Living Area Meters
129.69
Living Area Source
Public Records
Living Area Units
Square Feet
Lot Size Acres
0.23
Lot Size Dimensions
80x125
Lot Size Square Feet
10019
Lot Size Square Meters
931
Minimum Lease
No Minimum
Modification Timestamp
2026-04-15T19:32:11.557Z
New Construction YN
true
Occupant Type
Vacant
Ownership
Fee Simple
Parcel Number
9032-0872-28
Pool Private YN
false
Projected Completion Date
2027-02-13T00:00:00.000
Property Condition
Pre-Construction
Public Survey Range
23E
Public Survey Section
23
RATIO Current Price By Calculated SqFt
196.99
Road Surface Type
Paved
Roof
Metal
Room Count
3
Senior Community YN
false
Showing Requirements
See Remarks
Spa YN
false
Status Change Timestamp
2026-02-13T20:51:57.000Z
Stories Total
1
Tax Annual Amount
231.72
Tax Block
872
Tax Book Number
J-276SILVER
Tax Legal Description
SEC 23 TWP 16 RGE 23 PLAT BOOK J PAGE 276 SILVER SPRINGS SHORES UNIT 32 BLK 872 LOT 28
Tax Lot
28
Tax Year
2025
Total Acreage
0 to less than 1/4
Total Annual Fees
0.00
Total Monthly Fees
0.00
Township
16S
Universal Property Id
US-12083-N-9032087228-R-N
Utilities
Other
Waterfront YN
false
Zoning
R1
Neighborhood Map
Popup

Property Photos
Listing Photo
Listing Photo
Listing Photo
Listing Photo
Listing Photo
Listing Photo
Listing Photo
Listing Photo
Listing Photo
Listing Photo
Listing Photo
Listing Photo
Listing Photo
Listing Photo
Listing Photo
Listing Photo
Listing Photo
Listing Photo
Listing Photo
Listing Photo

MLS #MFROM718804 Listing courtesy of Coldwell Realty Sold Guarantee provided by Stellar MLS.

Similar Listings

$249,000
9770 Sw 97th Place
Ocala
3BR/3BA
| Active
$259,000
Tbd Sw 9th Place
Ocala
3BR/3BA
| Active
$259,800
10340 Se 25th Avenue
Ocala
3BR/3BA
| Active
$259,900
9770 Sw 97th Place
Ocala
3BR/3BA
| Active



All listing information is deemed reliable but not guaranteed and should be independently verified through personal inspection by appropriate professionals. Listings displayed on this website may be subject to prior sale or removal from sale; availability of any listing should always be independent verified. Listing information is provided for consumer personal, non-commercial use, solely to identify potential properties for potential purchase; all other use is strictly prohibited and may violate relevant federal and state law. The source of the listing data is as follows: Stellar MLS (updated 4/24/26 8:57 AM) |

Listing Search



Translate Tool

Featured Listings
Apollo Beach Real Estate
$899,900
5 BED
5 BATH
Unmatched WATERFRONT Paradise – Luxurious 5-Bedroom, 7-Bath Pool Home in the gated Community of Symphony Isles. Welcome ... Read More
St Petersburg Real Estate
$1,095,000
5 BED
4 BATH
Luxury Pool Home with ADU in Prime Old Pasadena Location Expertly curated for luxury living and effortless entertaining,... Read More
Tampa Real Estate
$975,000
4 BED
3 BATH
A Rare Opportunity in Coveted Lake Magdalene Manors In one of the most sought-after communities, on an oversized corner ... Read More
St Petersburg Real Estate
$1,249,000
3 BED
2 BATH
Luxurious Waterfront Oasis in Prime Waterfront Community Location- Bayway Isles Nestled on 75 feet of pristine waterfron... Read More
Eustis Real Estate
$1,060,000
3 BED
2 BATH
Custom Estate Living on Over 3 Acres – Luxury, Privacy, and Convenience! Welcome to a truly exceptional custom-built est... Read More
Winter Garden Real Estate
$875,000
5 BED
4 BATH
One or more photo(s) has been virtually staged. Positioned in one of Horizon West’s most desirable communities, this Sum... Read More
Trenton Real Estate
$1,035,000
3 BED
3 BATH
If you’re looking for something with real character and long-term value, this property delivers in a way most homes simp... Read More
Indian Rocks Beach Real Estate
$1,189,000
4 BED
3 BATH
Come see why Indian Rocks Beach is the best kept secret in the area - the benefits of gorgeous beaches and sunsets, shop... Read More
Venice Real Estate
$1,500,000
3 BED
3 BATH
Positioned on Venice Island, just moments from Venice Beach and within walking distance to dining, shopping, and the cul... Read More
Venice Real Estate
$845,000
3 BED
3 BATH
One or more photo(s) has been virtually staged. Featuring a fully independent poolside en-suite casita with exterior bui... Read More
Contact Sandra Pardo

407-990-2746

Wendy Morris LLC

Licensed in the State of Florida
BK 3146762
16797 Broadwater Avenue
Winter Garden, Florida 34787

Your privacy is our utmost concern. We will never sell your personal information. Privacy Policy
©2026 sandrapardohomes.com - all rights reserved. | Site Map