407-990-2746
Menu

1711 Magdalene Manor Drive, Tampa, FL

NEXT
PREV
$995,000

($281/sqft)

List Status: Active
1711 Magdalene Manor Drive
Tampa, FL 33613


4 beds
3 baths
3543 living sqft
Top Features
  • View: Water, Pool
  • Subdivision: Lake Magdalene Manors
  • Built in  1986
  • Single Family Residence
Description
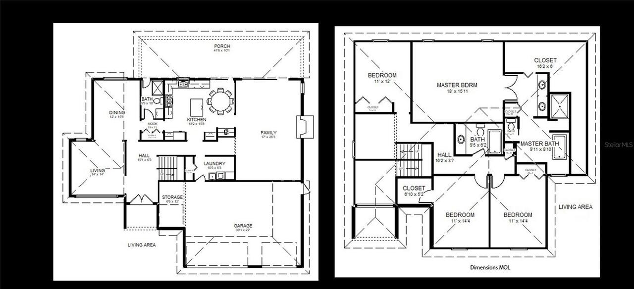
A Rare Opportunity in Coveted Lake Magdalene Manors In one of the most sought-after communities, on an oversized corner lot, this beautifully updated residence offers exceptional indoor–outdoor living with peaceful waterfront views. Lake Magdalene Manors is known for its serene tree-lined streets and community amenities, including clubhouse, tennis and pickleball courts, playground, and its unrivaled convenience to all of Tampa Bay. Expansive Living & Thoughtful Design With 3,543 square feet, 4 bedrooms, 3 full baths, and a versatile loft, this home welcomes you with a dramatic two-story foyer that sets the tone for the openness and elegance that follow. The generous primary suite provides a private retreat with a spa-inspired bath, while spacious secondary bedrooms comfortably accommodate guests. The loft offers flexibility for a home office, study area, fitness space, or creative studio. Perfect for Entertaining The heart of the home centers around an entertainment-ready kitchen and wet bar that flow seamlessly into a large family room anchored by a cozy fireplace. Serious chefs will appreciate the efficient kitchen layout, upscale stainless-steel gas range, convection oven, custom hood, and built-in refrigerator—ideal for efficient meal prep and hosting. Sliding doors open to a huge, screened lanai overlooking the updated heated pool and expansive deck—your year-round setting for casual gatherings, celebrations, game days, and relaxing weekends. The oversized yard adds abundant space for outdoor play and pets. Modern, Move-In Comforts & Recent Enhancements • Large, eat-in kitchen • Updated cabinetry and baths • Updated pool and deck • New roof and pool heater • Modern, low-maintenance flooring throughout • Updated, split air-conditioning systems • Digital cameras, thermostat, security and lighting controls • 3-car garage with workshop/storage space and easy attic access Unbeatable Tampa Bay Convenience Minutes from premier shopping and dining, top schools, major
Property Details
Additional Information
Additional Parcels YN
false
Additional Rooms
Attic, Family Room, Formal Dining Room Separate, Formal Living Room Separate, Inside Utility, Loft
Alternate Key Folio Num
0183015196
Appliances
Convection Oven, Dishwasher, Disposal, Electric Water Heater, Microwave, Range, Range Hood, Refrigerator
Architectural Style
Contemporary
Association Amenities
Clubhouse, Maintenance, Pickleball Court(s), Playground, Tennis Court(s)
Association Fee
80
Association Fee Frequency
Monthly
Association Fee Includes
Common Area Taxes, Escrow Reserves Fund, Insurance, Maintenance Grounds, Management, Recreational Facilities
Association Fee Requirement
Required
Association URL
https://www.greenacre.com/
Association YN
true
Attached Garage YN
true
Available For Lease YN
1
Bathrooms Total Integer
3
Building Area Source
Public Records
Building Area Total
4711
Building Area Total Srch SqM
437.67
Building Area Units
Square Feet
Calculated List Price By Calculated SqFt
280.84
Carport YN
false
Community Features
Association Recreation - Owned, Sidewalks, Street Lights
Construction Materials
Block, Stucco, Frame
Cooling
Central Air, Zoned
Country
US
Cumulative Days On Market
15
Current Price
995000.00
Direction Faces
North
Elementary School
Lake Magdalene-HB
Exterior Features
Rain Gutters, Sidewalk, Sliding Doors
Fireplace Features
Family Room, Wood Burning
Fireplace YN
true
Flood Zone Code
X*
Flood Zone Date
2008-08-28
Flood Zone Panel
12057C0205H
Flooring
Carpet, Other, Tile, Wood
Foundation Details
Slab
Furnished
Unfurnished
Garage Spaces
3
Garage YN
true
Heating
Central, Electric, Heat Pump, Zoned
High School
Chamberlain-HB
Homestead YN
1
Interior Features
Ceiling Fans(s), Eat-in Kitchen, Open Floorplan, Solid Surface Counters, Solid Wood Cabinets, Stone Counters, Thermostat, Vaulted Ceiling(s), Walk-In Closet(s), Wet Bar
Internet Address Display YN
true
Internet Automated Valuation Display YN
false
Internet Consumer Comment YN
true
Internet Entire Listing Display YN
true
Laundry Features
Inside, Laundry Closet, Laundry Room
Levels
One
List AOR
Suncoast Tampa
Living Area Meters
329.16
Living Area Source
Public Records
Living Area Units
Square Feet
Lot Features
Corner Lot, Level, Near Public Transit, Oversized Lot, Sidewalk, Paved, Unincorporated
Lot Size Acres
0.33
Lot Size Dimensions
110x113
Lot Size Square Feet
14300
Lot Size Square Meters
1329
Middle Or Junior School
Hill-HB
Minimum Lease
No Minimum
Modification Timestamp
2026-04-18T14:42:09.406Z
Monthly HOA Amount
80.00
New Construction YN
false
Occupant Type
Owner
Other Equipment
Irrigation Equipment
Ownership
Fee Simple
Parcel Number
U-02-28-18-0TM-000004-00001.0
Patio And Porch Features
Covered, Deck, Front Porch, Patio, Screened
Pets Allowed
Yes
Pool Dimensions
30x15
Pool Private YN
true
Postal Code Plus 4
1936
Property Attached YN
false
Property Condition
Completed
Public Survey Range
18
Public Survey Section
02
RATIO Current Price By Calculated SqFt
280.84
Realtor Info
As-Is, Docs Available, No Sign, See Attachments
Road Surface Type
Paved
Roof
Shingle
Room Count
12
Security Features
Fire Alarm, Secured Garage/Parking, Security Lights, Security System Owned, Smoke Detector(s)
Senior Community YN
false
Sewer
Public Sewer
Showing Requirements
Appointment Only, Call Owner
Spa YN
false
Status Change Timestamp
2026-04-03T19:32:44.000Z
Stories Total
2
Tax Annual Amount
5948.44
Tax Block
4
Tax Book Number
54-45
Tax Legal Description
LAKE MAGDALENE MANORS LOT 1 BLK 4
Tax Lot
1
Tax Year
2025
Total Acreage
1/4 to less than 1/2
Total Annual Fees
960.00
Total Monthly Fees
80.00
Township
28
Universal Property Id
US-12057-N-0228180000004000010-R-N
Unparsed Address
1711 MAGDALENE MANOR DR
Utilities
BB/HS Internet Available, Cable Available, Electricity Connected, Fiber Optics, Phone Available, Propane, Public, Sewer Connected, Sprinkler Meter, Underground Utilities, Water Connected
Vegetation
Mature Landscaping, Trees/Landscaped
Water Extras
Seawall - Concrete
Water Extras YN
1
Water Source
Public
Water View
Pond
Water View YN
1
Waterfront YN
false
Window Features
Blinds, Drapes, Rods
Zoning
RSC-4
Neighborhood Map
Popup

Property Photos
Listing Photo
Listing Photo
Listing Photo
Listing Photo
Listing Photo
Listing Photo
Listing Photo
Listing Photo
Listing Photo
Listing Photo
Listing Photo
Listing Photo
Listing Photo
Listing Photo
Listing Photo
Listing Photo
Listing Photo
Listing Photo
Listing Photo
Listing Photo
Listing Photo
Listing Photo
Listing Photo
Listing Photo
Listing Photo
Listing Photo
Listing Photo
Listing Photo
Listing Photo
Listing Photo
Listing Photo
Listing Photo
Listing Photo
Listing Photo
Listing Photo
Listing Photo
Listing Photo
Listing Photo
Listing Photo
Listing Photo
Listing Photo
Listing Photo
Listing Photo
Listing Photo
Listing Photo
Listing Photo
Listing Photo
Listing Photo
Listing Photo
Listing Photo
Listing Photo
Listing Photo
Listing Photo
Listing Photo
Listing Photo
Listing Photo
Listing Photo
Listing Photo
Listing Photo
Listing Photo
Listing Photo
Listing Photo
Listing Photo
Listing Photo
Listing Photo
Listing Photo
Listing Photo
Listing Photo
Listing Photo
Listing Photo
Listing Photo
Listing Photo
Listing Photo
Listing Photo
Listing Photo
Listing Photo
Listing Photo
Listing Photo
Listing Photo
Listing Photo
Listing Photo
Listing Photo
Listing Photo
Listing Photo

MLS #MFRTB8492899 Listing courtesy of Homecoin.com provided by Stellar MLS.

Similar Listings

$899,000
5351 Bridge Street
Tampa
4BR/3BA
| Active
$899,000
4203 W Cleveland Street
Tampa
4BR/3BA
| Active
$899,000
1810 W Erna Drive
Tampa
4BR/3BA
| Active
$899,990
3024 W Cass Street
Tampa
4BR/3BA
| Active



All listing information is deemed reliable but not guaranteed and should be independently verified through personal inspection by appropriate professionals. Listings displayed on this website may be subject to prior sale or removal from sale; availability of any listing should always be independent verified. Listing information is provided for consumer personal, non-commercial use, solely to identify potential properties for potential purchase; all other use is strictly prohibited and may violate relevant federal and state law. The source of the listing data is as follows: Stellar MLS (updated 4/18/26 12:14 PM) |

Listing Search



Translate Tool

Featured Listings
Clearwater Beach Real Estate
$1,095,000
2 BED
2 BATH
Seller Financing RENOVATED Gulf & Intracoastal Paradise Awaits at The Grande Recently completed renovations include new ... Read More
Winter Park Real Estate
$845,000
4 BED
3 BATH
One or more photo(s) has been virtually staged. This luxurious Modern Style home epitomizes maintenance-free living, fea... Read More
Bradenton Real Estate
$989,000
4 BED
4 BATH
Welcome to this exceptional 4 bedroom 4 and half bath luxury home located in the highly sought after Greyhawk Landing co... Read More
Minneola Real Estate
$929,000
3 BED
2 BATH
12606 S Grassy Lake Rd, Minneola 5 acres for sale in Minneola, Florida with no HOA, featuring a 3-bedroom, 2-bath manufa... Read More
Punta Gorda Real Estate
$1,274,900
4 BED
2 BATH
Don’t miss your opportunity to own this custom built ARTHUR RUTENBERG home located in the highly desirable community of ... Read More
Tampa Real Estate
$1,299,860
5 BED
3 BATH
One or more photo(s) has been virtually staged. LOCATION LOCATION LOCATION. This custom-built home is situated on over t... Read More
New Smyrna Beach Real Estate
$889,000
3 BED
2 BATH
Wake up to breathtaking ocean views and experience the best of coastal living in this exceptional New Smyrna Beach retre... Read More
Winter Garden Real Estate
$1,258,000
4 BED
3 BATH
One or more photo(s) has been virtually staged. PANORAMIC LAKE VIEWS • DISNEY FIREWORKS • EXPANSIVE SCREENED LANAI • FUL... Read More
Lutz Real Estate
$925,000
5 BED
4 BATH
A rare blend of timeless character and multi-generational flexibility—this extraordinary Lutz estate offers space, priva... Read More
Palm Harbor Real Estate
$1,075,000
5 BED
3 BATH
“Designed for those who expect the extraordinary.” Beautifully renovated and meticulously maintained, this 5-bedroom hom... Read More
Contact Sandra Pardo

407-990-2746

Wendy Morris LLC

Licensed in the State of Florida
BK 3146762
16797 Broadwater Avenue
Winter Garden, Florida 34787

Your privacy is our utmost concern. We will never sell your personal information. Privacy Policy
©2026 sandrapardohomes.com - all rights reserved. | Site Map