407-990-2746
Menu

9285 Galaxie Circle, Port Charlotte, FL

NEXT
PREV
$409,900

($188/sqft)

List Status: Active
9285 Galaxie Circle
Port Charlotte, FL 33981


3 beds
2 baths
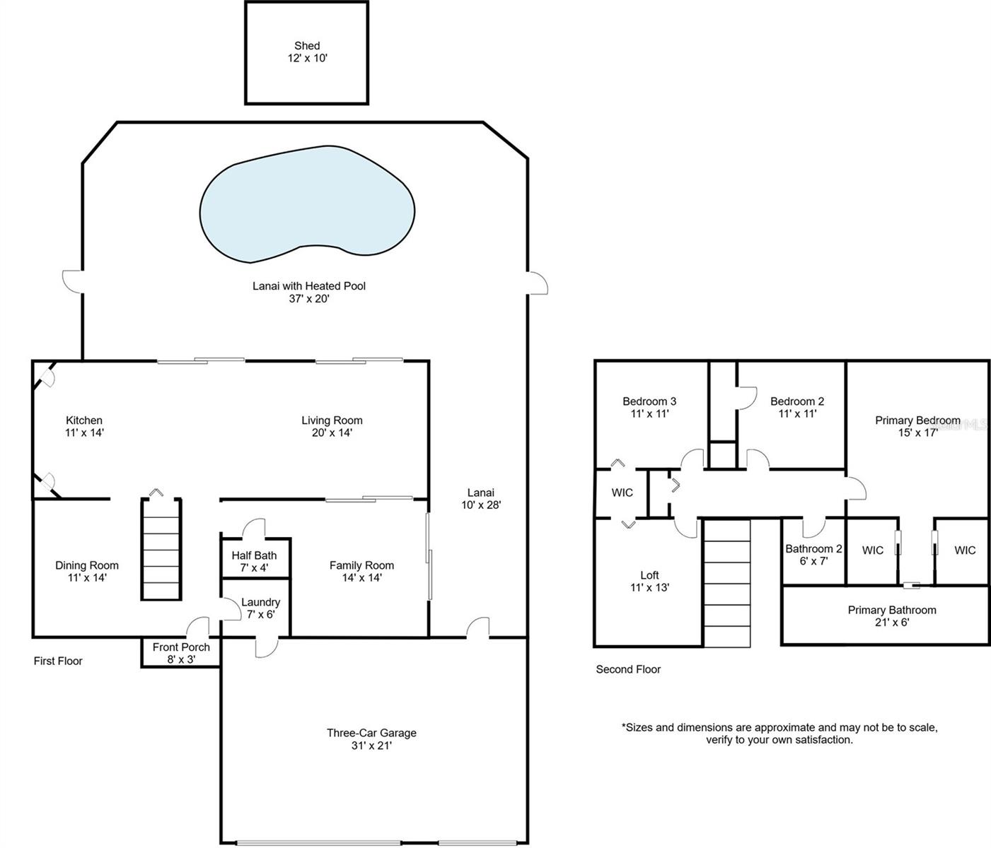
2176 living sqft
Top Features
  • View: Pool
  • Subdivision: Port Charlotte Sec 071
  • Built in  2006
  • Single Family Residence
Description
Dive into this beautifully designed two-story home where modern style meets everyday comfort, with a HEATED POOL perfect for year-round enjoyment. Thoughtfully laid out for both entertaining and relaxing, this home boasts luxury vinyl plank flooring throughout, contemporary finishes, and flexible rooms ideal for family, guests, or your dream floor plan. PLUS a generator hook-up and HURRICANE IMPACT WINDOWS & THREE CAR GARAGE! ***Step inside and appreciate the thoughtful layout and modern upgrades throughout, including the frosted glass-inlay sliding barn doors, custom blinds, plantation shutters, open floor plan, and luxury vinyl flooring spanning the entire home. The updated kitchen is ideal for everyday living and entertaining, featuring GRANITE countertops, a center island, a GAS STOVE, and a convenient serving window to the pool and screened lanai for seamless indoor-outdoor gatherings. Serve your guests in the formal dining room or enjoy a more casual meal at the dinette overlooking the pool. Impact-rated hurricane windows and doors provide safety and energy efficiency, while SMART-HOME features, including WiFi-enabled Alexa outlets, lighting, and appliances, deliver modern convenience throughout. ~~~The oversized primary suite features DUAL WALK-IN closets with abundant storage, while natural light enhances the airy feel and showcases the home’s modern finishes. The en-suite bathroom is a private retreat, featuring a relaxing garden tub, upgraded tile finishes, and a dual-sink vanity for added convenience. Beyond the primary suite, the additional bedrooms continue the home’s thoughtful design,offering versatile spaces that can adapt to your lifestyle. The den space provides FLEXIBILITY to be used as a loft, home office, playroom, FOURTH BEDROOM, or creative space tailored to your needs. ***Located in the desirable South Gulf Cove community in Port Charlotte, Florida, residents enjoy a laid-back coastal lifestyle with access to community parks, a boat ramp, and
Property Details
Property Features
Property Sub Type
Single Family Residence
View
Pool
Parking
Driveway, Garage Door Opener, Golf Cart Parking, Ground Level, Covered, Open
Pool
Screen Enclosure, Heated, Gunite, Lighting, In Ground
County
Charlotte
Subdivision
PORT CHARLOTTE SEC 071
Additional Information
Additional Parcels YN
false
Additional Rooms
Bonus Room, Den/Library/Office, Family Room, Formal Dining Room Separate, Formal Living Room Separate, Inside Utility, Loft, Media Room, Storage Rooms
Appliances
Dishwasher, Disposal, Electric Water Heater, Microwave, Range, Refrigerator
Architectural Style
Florida
Association Fee Requirement
Optional
Association YN
true
Attached Garage YN
true
Available For Lease YN
1
Bathrooms Total Integer
3
Building Area Source
Public Records
Building Area Total
3301
Building Area Total Srch SqM
306.67
Building Area Units
Square Feet
Calculated List Price By Calculated SqFt
188.37
Carport YN
false
Community Features
Clubhouse, Golf Carts OK, Park, Playground
Complex Community Name NCCB
SOUTH GULF COVE
Construction Materials
Block, Concrete, Stucco
Cooling
Central Air
Country
US
Cumulative Days On Market
138
Current Price
409900.00
Direction Faces
West
Disaster Mitigation
Hurricane Shutters/Windows
Elementary School
Myakka River Elementary
Exterior Features
Awning(s), Dog Run, Hurricane Shutters, Lighting, Rain Gutters, Sliding Doors, Storage
Fencing
Fenced, Other
Fireplace YN
false
Flood Zone Code
8AE
Flood Zone Date
2022-12-15
Flood Zone Panel
0214G
Flooring
Luxury Vinyl, Wood
Foundation Details
Slab
Furnished
Unfurnished
Garage Dimensions
31x21
Garage Spaces
3
Garage YN
true
Green Energy Efficient
Windows
Heating
Central, Electric
High School
Lemon Bay High
Homestead YN
1
Interior Features
Built-in Features, Ceiling Fans(s), Eat-in Kitchen, High Ceilings, Kitchen/Family Room Combo, Open Floorplan, PrimaryBedroom Upstairs, Smart Home, Solid Surface Counters, Stone Counters, Thermostat, Walk-In Closet(s), Window Treatments
Internet Address Display YN
true
Internet Automated Valuation Display YN
false
Internet Consumer Comment YN
false
Internet Entire Listing Display YN
true
Laundry Features
Electric Dryer Hookup, Inside, Laundry Room, Washer Hookup
Levels
Two
List AOR
Englewood
Living Area Meters
202.16
Living Area Source
Public Records
Living Area Units
Square Feet
Lot Features
Flood Insurance Required, FloodZone, In County, Landscaped, Level, Paved
Lot Size Acres
0.23
Lot Size Square Feet
10000
Lot Size Square Meters
929
Middle Or Junior School
L.A. Ainger Middle
Minimum Lease
No Minimum
Modification Timestamp
2026-05-05T20:07:10.982Z
New Construction YN
false
Number Of Lots
1
Occupant Type
Owner
Other Structures
Other, Shed(s), Storage
Ownership
Fee Simple
Parcel Number
412121405007
Patio And Porch Features
Covered, Deck, Enclosed, Front Porch, Other, Patio, Porch, Rear Porch, Screened, Side Porch, Wrap Around
Pets Allowed
Yes
Pool Dimensions
20x13
Pool Private YN
true
Postal Code Plus 4
4016
Previous List Price
415000
Price Change Timestamp
2026-05-05T20:06:58.000Z
Property Condition
Completed
Public Survey Range
21E
Public Survey Section
21
RATIO Current Price By Calculated SqFt
188.37
Realtor Info
As-Is, Docs Available, Floor Plan Available, See Attachments, Sign, Survey Available
Road Responsibility
Public Maintained Road
Road Surface Type
Asphalt, Paved
Roof
Shingle
Room Count
12
SW Subdiv Community Name
South Gulf Cove
Security Features
Secured Garage/Parking, Security Lights, Security System, Security System Owned, Smoke Detector(s)
Senior Community YN
false
Sewer
Public Sewer
Showing Requirements
Appointment Only, No Lockbox, See Remarks, ShowingTime
Status Change Timestamp
2025-12-18T20:50:54.000Z
Stories Total
2
Tax Annual Amount
4005.27
Tax Block
4370
Tax Book Number
10-1
Tax Legal Description
PCH 071 4370 0003 PORT CHARLOTTE SEC71 BLK4370 LT 3 637/1479 2385/315 3036/721
Tax Lot
3
Tax Year
2025
Total Acreage
0 to less than 1/4
Total Annual Fees
0.00
Total Monthly Fees
0.00
Universal Property Id
US-12015-N-412121405007-R-N
Unparsed Address
9285 GALAXIE CIR
Utilities
Cable Connected, Electricity Connected, Propane, Public, Sewer Connected, Water Connected
Vegetation
Oak Trees, Trees/Landscaped
Water Source
Public
Waterfront YN
false
Window Features
Blinds, Double Pane Windows, Insulated Windows, Shades, Shutters, Storm Window(s), Window Treatments
Zoning
RSF3.5
Neighborhood Map
Popup

Property Photos
Listing Photo
Listing Photo
Listing Photo
Listing Photo
Listing Photo
Listing Photo
Listing Photo
Listing Photo
Listing Photo
Listing Photo
Listing Photo
Listing Photo
Listing Photo
Listing Photo
Listing Photo
Listing Photo
Listing Photo
Listing Photo
Listing Photo
Listing Photo
Listing Photo
Listing Photo
Listing Photo
Listing Photo
Listing Photo
Listing Photo
Listing Photo
Listing Photo
Listing Photo
Listing Photo
Listing Photo
Listing Photo
Listing Photo
Listing Photo
Listing Photo
Listing Photo
Listing Photo
Listing Photo
Listing Photo
Listing Photo
Listing Photo
Listing Photo
Listing Photo
Listing Photo
Listing Photo
Listing Photo
Listing Photo
Listing Photo
Listing Photo
Listing Photo
Listing Photo
Listing Photo
Listing Photo
Listing Photo
Listing Photo
Listing Photo
Listing Photo
Listing Photo
Listing Photo
Listing Photo
Listing Photo
Listing Photo
Listing Photo
Listing Photo
Listing Photo
Listing Photo
Listing Photo
Listing Photo
Listing Photo
Listing Photo
Listing Photo
Listing Photo
Listing Photo
Listing Photo
Listing Photo
Listing Photo
Listing Photo
Listing Photo
Listing Photo
Listing Photo
Listing Photo
Listing Photo
Listing Photo
Listing Photo
Listing Photo
Listing Photo
Listing Photo
Listing Photo
Listing Photo
Listing Photo
Listing Photo
Listing Photo
Listing Photo
Listing Photo
Listing Photo
Listing Photo
Listing Photo
Listing Photo
Listing Photo
Listing Photo
Listing Photo
Listing Photo
Listing Photo
Listing Photo
Listing Photo
Listing Photo
Listing Photo
Listing Photo
Listing Photo
Listing Photo
Listing Photo
Listing Photo
Listing Photo
Listing Photo
Listing Photo
Listing Photo
Listing Photo
Listing Photo
Listing Photo
Listing Photo
Listing Photo
Listing Photo
Listing Photo
Listing Photo
Listing Photo
Listing Photo
Listing Photo
Listing Photo
Listing Photo
Listing Photo
Listing Photo
Listing Photo
Listing Photo
Listing Photo
Listing Photo
Listing Photo

MLS #MFRD6145209 Listing courtesy of Kw Coastal Living provided by Stellar MLS.

Similar Listings

$368,996
2205 Wakefield Street
Port Charlotte
3BR/2BA
| Active
$369,000
109 Arlington Ne Court
Port Charlotte
3BR/2BA
| Pending
$369,000
16185 S Port Harbor Boulevard
Port Charlotte
3BR/2BA
| Active
$369,000
1199 Beacon Drive
Port Charlotte
3BR/2BA
| Active



All listing information is deemed reliable but not guaranteed and should be independently verified through personal inspection by appropriate professionals. Listings displayed on this website may be subject to prior sale or removal from sale; availability of any listing should always be independent verified. Listing information is provided for consumer personal, non-commercial use, solely to identify potential properties for potential purchase; all other use is strictly prohibited and may violate relevant federal and state law. The source of the listing data is as follows: Stellar MLS (updated 5/17/26 12:17 PM) |

Listing Search



Translate Tool

Featured Listings
Clearwater Real Estate
$875,000
4 BED
2 BATH
Refined Luxury Meets Florida Lifestyle in Countryside. Welcome to a home that truly has it all—style, sophistication, an... Read More
Land O Lakes Real Estate
$829,900
4 BED
3 BATH
Welcome to this exceptional David Weekley Tangelo floor plan, where spacious design and sophistication come together bea... Read More
Holmes Beach Real Estate
$1,485,000
3 BED
2 BATH
Experience refined coastal living in Holmes Beach. This exceptional turnkey 3BR/2.5BA residence showcases impressive cur... Read More
Tampa Real Estate
$1,050,000
3 BED
2 BATH
Now competitively priced to reflect current market conditions. An exceptional opportunity for buyers! Move in ready home... Read More
Ocala Real Estate
$910,000
4 BED
2 BATH
Come see this beautiful 5 acre farm, located just 5 minutes from the Florida Horse Park and Greenway trails in the lovel... Read More
Tierra Verde Real Estate
$939,000
3 BED
3 BATH
Discover the Waterfront Gem You've Been Dreaming Of! Welcome to a magnificent townhome on the serene island of TIERRA VE... Read More
Port Charlotte Real Estate
$889,000
3 BED
3 BATH
WELCOME TO YOUR WATERFRONT SHOWSTOPPER—STUNNING 4 BEDROOM, 3 BATH, plus DEN, GULF ACCESS HOME where LUXURY meets LIFESTY... Read More
Longboat Key Real Estate
$1,295,000
3 BED
2 BATH
One or more photo(s) has been virtually staged. Welcome to 550 De Narvaez Drive, a meticulously maintained WATERFRONT re... Read More
Clearwater Real Estate
$870,000
5 BED
3 BATH
One or more photo(s) has been virtually staged. This 5-bedroom, 3-bathroom home in Clearwater’s Countryside area offers ... Read More
Tampa Real Estate
$895,000
4 BED
3 BATH
Under contract-accepting backup offers. Recent price adjustment was made! Seller is motivated so bring a proposal. Unrep... Read More
Contact Sandra Pardo

407-990-2746

Wendy Morris LLC

Licensed in the State of Florida
BK 3146762
16797 Broadwater Avenue
Winter Garden, Florida 34787

Your privacy is our utmost concern. We will never sell your personal information. Privacy Policy
©2026 sandrapardohomes.com - all rights reserved. | Site Map