407-990-2746
Menu

9164 Sinatra Lane, Orlando, FL

NEXT
PREV
$672,000

($330/sqft)

List Status: Pending
9164 Sinatra Lane
Orlando, FL 32827


3 beds
3 baths
2037 living sqft
Top Features
  • View: City
  • Subdivision: Alora
  • Built in  2026
  • Townhouse
Description
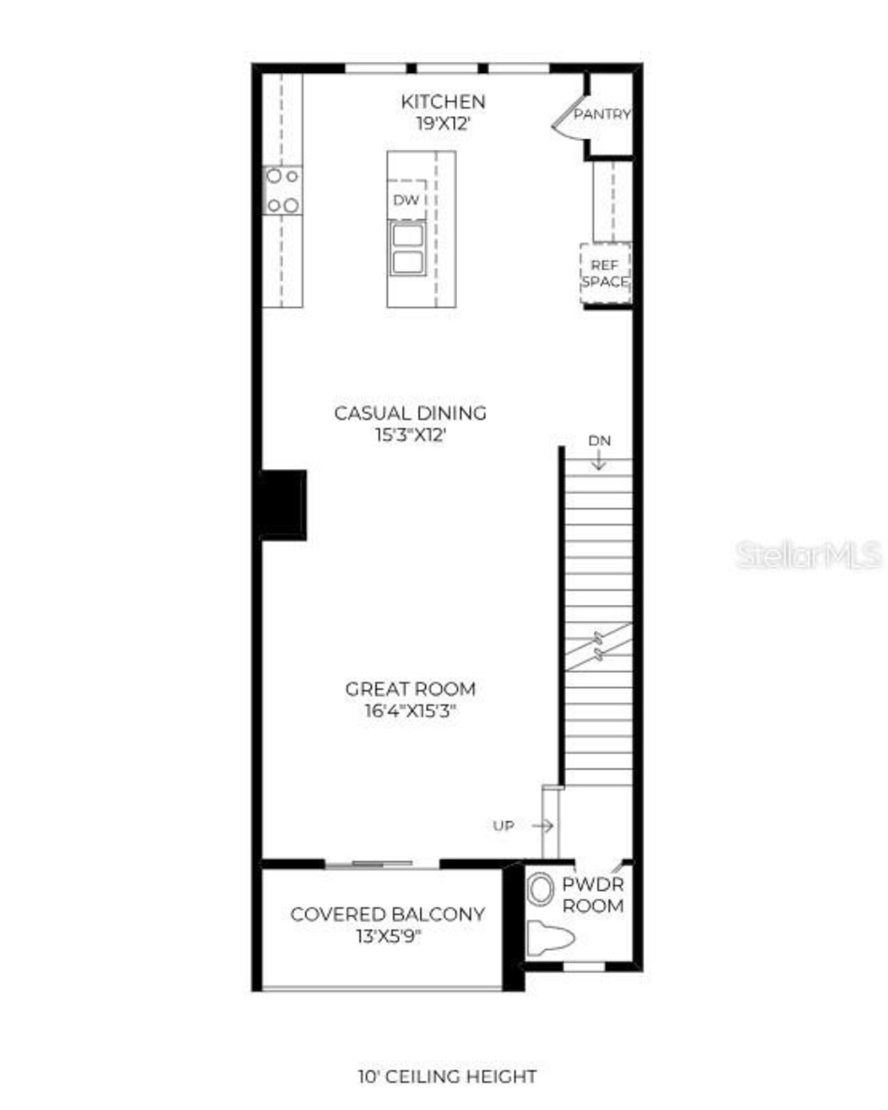
The Verne’s polished design emphasizes style and function. The welcoming foyer is flanked by a versatile flex room and stairs leading to the main living level. The second floor reveals a beautiful great room that opens to a delightful covered balcony and a charming casual dining area. The well-equipped kitchen features an island with breakfast bar, ample counter space, and a pantry cabinet. The third floor opens to a flexible loft, ideal as an additional living space or study area. The inviting primary bedroom offers a walk-in closet and a tranquil bath with a dual-sink vanity, a luxe shower, and a private water closet. A secondary bedroom has a desirable private bath. Additional highlights include an everyday entry off the two-car garage, a second-floor powder room, and convenient bedroom-level laundry.
Property Details
Additional Information
Additional Lease Restrictions
No short term rental allowed
Additional Parcels YN
false
Additional Rooms
Den/Library/Office, Loft
Appliances
Built-In Oven, Cooktop, Dishwasher, Disposal, Dryer, Electric Water Heater, Exhaust Fan, Microwave, Range Hood, Refrigerator, Washer
Architectural Style
Contemporary
Association Email
isabel.diaz@fsresidential.com
Association Fee
432
Association Fee Frequency
Quarterly
Association Fee Includes
Maintenance Grounds, Recreational Facilities
Association Fee Requirement
Required
Association URL
www.fsresidential.com
Association YN
true
Attached Garage YN
true
Available For Lease YN
1
Bathrooms Total Integer
4
Builder Model
Verne
Builder Name
Toll Brothers
Building Area Source
Builder
Building Area Total
2657
Building Area Total Srch SqM
246.84
Building Area Units
Square Feet
CDDYN
1
Calculated List Price By Calculated SqFt
329.90
Carport YN
false
Community Features
Community Mailbox, Deed Restrictions, Dog Park, Irrigation-Reclaimed Water, Street Lights
Complex Community Name NCCB
ALORA
Construction Materials
Block, Stucco, Vinyl Siding, Frame
Cooling
Central Air
Country
US
Cumulative Days On Market
34
Current Price
672000.00
Direction Faces
North
Expected Closing Date
2026-03-31T00:00:00.000
Exterior Features
Balcony, Lighting, Rain Gutters, Sidewalk
Fireplace YN
false
Flood Zone Code
X
Flooring
Carpet, Ceramic Tile, Hardwood, Luxury Vinyl
Foundation Details
Slab
Furnished
Unfurnished
Garage Spaces
2
Garage YN
true
Heating
Heat Pump
High School
Lake Nona High
Home Warranty YN
true
Interior Features
In Wall Pest System, Living Room/Dining Room Combo, PrimaryBedroom Upstairs, Solid Surface Counters, Thermostat, Tray Ceiling(s), Walk-In Closet(s)
Internet Address Display YN
true
Internet Automated Valuation Display YN
true
Internet Consumer Comment YN
true
Internet Entire Listing Display YN
true
Laundry Features
Laundry Room, Upper Level
Lease Restrictions YN
1
Levels
Three Or More
List AOR
Orlando Regional
Living Area Meters
189.24
Living Area Source
Builder
Living Area Units
Square Feet
Lot Features
Cleared
Lot Size Acres
0.03
Lot Size Square Feet
1300
Lot Size Square Meters
121
Minimum Lease
7 Months
Modification Timestamp
2026-02-14T21:26:09.118Z
Monthly HOA Amount
144.00
New Construction YN
true
Occupant Type
Vacant
Other Equipment
Irrigation Equipment
Ownership
Fee Simple
Parcel Number
30-24-36-7794-02-0031
Pet Restrictions
See county restrictions
Pets Allowed
Yes
Pool Private YN
false
Previous List Price
667000
Price Change Timestamp
2026-01-22T17:58:02.000Z
Property Condition
Completed
Public Survey Range
30
Public Survey Section
36
Purchase Contract Date
2026-02-14
RATIO Current Price By Calculated SqFt
329.90
Realtor Info
CDD Addendum required
Road Surface Type
Asphalt
Roof
Shingle
Room Count
8
Security Features
Fire Sprinkler System, Security System Owned, Smoke Detector(s)
Senior Community YN
false
Sewer
Public Sewer
Showing Requirements
Appointment Only, Call Listing Agent
Status Change Timestamp
2026-02-14T21:25:38.000Z
Tax Annual Amount
12312
Tax Block
0000
Tax Book Number
118/148
Tax Legal Description
Lot 2, poitras parcel N-4 west, according to the plat thereof as recorded in plat book 111, pages 83 through 86 of the public records of orange county, Florida, lying in section 36, township 24 south, range 30 east
Tax Lot
0031
Tax Other Annual Assessment Amount
1150
Tax Year
2025
Total Acreage
0 to less than 1/4
Total Annual Fees
3872.00
Total Monthly Fees
322.67
Township
24
Universal Property Id
US-12095-N-3024367794020031-R-N
Unparsed Address
9164 SINATRA LN
Utilities
Cable Available, Sewer Connected, Underground Utilities
Water Source
Public
Waterfront YN
false
Window Features
Double Pane Windows, Low-Emissivity Windows
Zoning
PUD
Neighborhood Map
Popup

Property Photos
Listing Photo
Listing Photo
Listing Photo
Listing Photo
Listing Photo
Listing Photo
Listing Photo
Listing Photo
Listing Photo
Listing Photo
Listing Photo
Listing Photo
Listing Photo
Listing Photo
Listing Photo
Listing Photo
Listing Photo
Listing Photo
Listing Photo
Listing Photo
Listing Photo
Listing Photo
Listing Photo
Listing Photo
Listing Photo
Listing Photo
Listing Photo
Listing Photo
Listing Photo
Listing Photo
Listing Photo
Listing Photo
Listing Photo
Listing Photo
Listing Photo
Listing Photo
Listing Photo
Listing Photo
Listing Photo
Listing Photo
Listing Photo
Listing Photo
Listing Photo
Listing Photo
Listing Photo
Listing Photo
Listing Photo
Listing Photo
Listing Photo
Listing Photo
Listing Photo
Listing Photo
Listing Photo
Listing Photo

MLS #MFRO6372879 Listing courtesy of Orlando Tbi Realty Llc provided by Stellar MLS.

Similar Listings

$609,000
9168 Sinatra Lane
Orlando
3BR/3BA
| Active
$610,000
1353 Chatfield Place
Orlando
3BR/3BA
| Active
$615,000
2743 Atherton Drive
Orlando
3BR/3BA
| Pending
$615,000
823 La Salle Avenue
Orlando
3BR/3BA
| Pending



All listing information is deemed reliable but not guaranteed and should be independently verified through personal inspection by appropriate professionals. Listings displayed on this website may be subject to prior sale or removal from sale; availability of any listing should always be independent verified. Listing information is provided for consumer personal, non-commercial use, solely to identify potential properties for potential purchase; all other use is strictly prohibited and may violate relevant federal and state law. The source of the listing data is as follows: Stellar MLS (updated 3/19/26 1:58 AM) |

Listing Search



Translate Tool

Featured Listings
Bartow Real Estate
$849,900
3 BED
2 BATH
Country with Class or County Chic—either way, this custom 2017 home delivers both style and serenity on 5.43 acres just ... Read More
Spring Hill Real Estate
$920,000
4 BED
3 BATH
Private Gated Estate on 2.59 Acres with Resort-Style Outdoor Living Welcome to your own private retreat—situated on 2.59... Read More
Orlando Real Estate
$1,099,000
5 BED
5 BATH
LIKE NEW WITH LUXURY UPGRADES IN EAGLE CREEK! Welcome to 10151 Henbury Street, ideally positioned within Lake Nona’s pre... Read More
Land O Lakes Real Estate
$815,000
4 BED
5 BATH
Located in the gated community of Pristine Lake Preserve, this beautifully maintained Biscayne II model from Homes by We... Read More
Sarasota Real Estate
$849,654
5 BED
3 BATH
Under Construction. What's Special: Corner Lot | Cul-de-Sac Lot | Game Room | New Floor Plan. New Construction - July Co... Read More
Sarasota Real Estate
$886,990
5 BED
4 BATH
Under Construction. New and exciting, this expansive 5-bedroom, 4.5-bath residence offers 3,483 square feet of thoughtfu... Read More
Dunedin Real Estate
$889,000
3 BED
2 BATH
Welcome to San Ruffino Phase II, an elegant three-story luxury townhome offering 3 bedrooms, 2.5 bathrooms, an in-home e... Read More
Sarasota Real Estate
$1,095,000
3 BED
3 BATH
Stunning and rare opportunity in Lido Towers on Lido Key. This completely renovated 3-bedroom, 3-bath residence offers a... Read More
Oviedo Real Estate
$1,200,000
3 BED
2 BATH
Welcome to 2468 Fawn Run. Situated in the Woodland Estates of Oviedo, Fl in Seminole county. A residential community est... Read More
Tampa Real Estate
$1,500,000
4 BED
3 BATH
Built in 2018 and located within the highly coveted Plant High School district, this South Tampa pool home pairs timeles... Read More
Contact Sandra Pardo

407-990-2746

Wendy Morris LLC

Licensed in the State of Florida
BK 3146762
16797 Broadwater Avenue
Winter Garden, Florida 34787

Your privacy is our utmost concern. We will never sell your personal information. Privacy Policy
©2026 sandrapardohomes.com - all rights reserved. | Site Map