407-990-2746
Menu

6115 Anchorage S Way, St Petersburg, FL

NEXT
PREV
$715,000

($372/sqft)

List Status: Active
6115 Anchorage S Way
St Petersburg, FL 33712


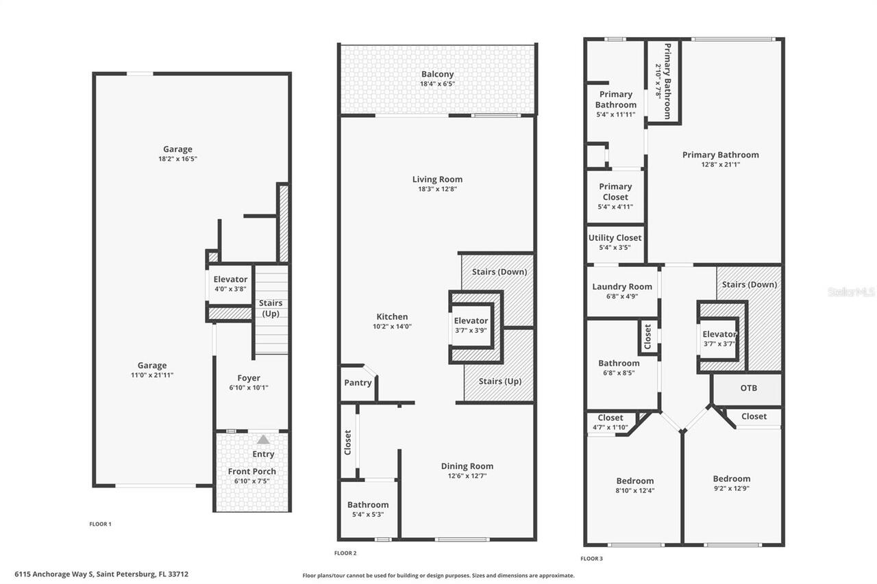
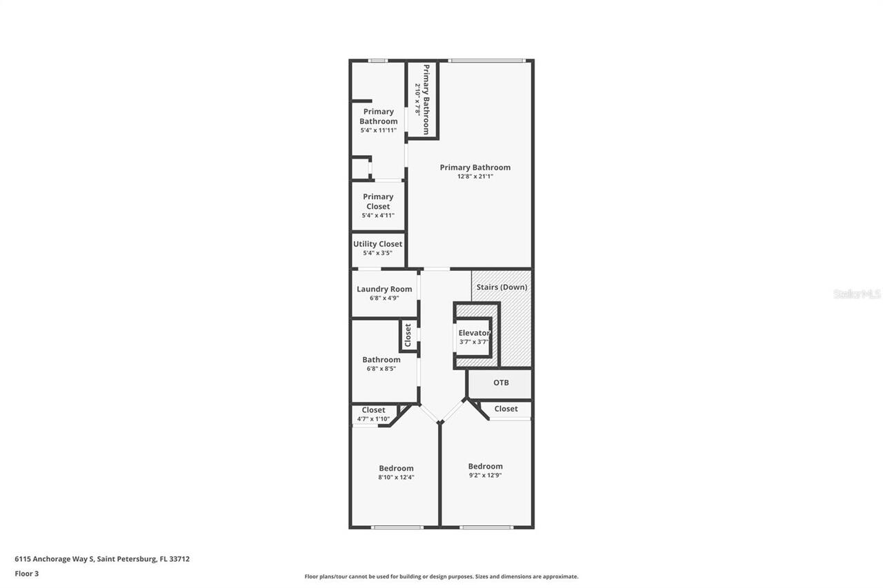
3 beds
2 baths
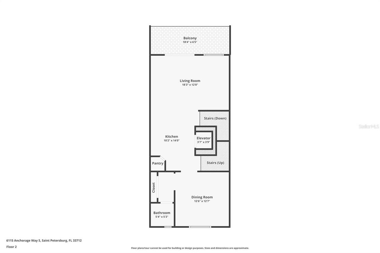
1920 living sqft
Top Features
  • View: Water
  • Subdivision: Cove At Loggerhead Marina
  • Built in  2015
  • Townhouse
Description
Experience elevated waterfront living in this impeccably updated three-level townhouse at Loggerhead Cove, where refined design meets serene canal views and glowing west-facing sunsets. Thoughtfully reimagined with high-end, stylish finishes & high ceilings throughout, this residence offers a sophisticated yet comfortable retreat for discerning buyers seeking both elegance and lifestyle. The placement of this unit is one of the best within this exclusive gated community. Best of all, the unit experienced NO FLOODING from 2024 storms. The main living level is designed for seamless entertaining and everyday luxury. A beautifully updated kitchen anchors the space, featuring premium finishes and a large, statement bar that serves as both a functional workspace and a natural gathering point. Whether hosting intimate dinners or lively evenings with friends, the open layout flows effortlessly into the dining and living areas, all framed by expansive windows that capture shimmering water views and dramatic sunset skies. Across three levels, the home provides a stylish array of bedrooms. The Primary overlooks the water and provides beautiful views of the sunset. Generous living spaces are complemented by refined details and modern aesthetic that feels timeless and upscale. A private elevator gets you and your belongings comfortably to any of the 3 levels. One of the standout features of this home is its canal-front setting, offering tranquil water views and a constant connection to the outdoors. The west-facing orientation ensures evenings are bathed in warm natural light, creating an ever-changing backdrop that enhances both daily living and entertaining. Enjoy peaceful mornings by the water and unwind at sunset as the sky reflects across the canal. The bottom floor is a tandem 2 car garage and work area. Walk out the back door and enjoy a ground floor terrace overlooking the water. The location is ideal, with quick access to 275, you can get anywhere you need to be with ea
Property Details
Additional Information
Additional Lease Restrictions
Confirm with HOA
Additional Parcels YN
false
Alternate Key Folio Num
113216187310000890
Appliances
Bar Fridge, Dishwasher, Disposal, Microwave, Range, Refrigerator, Wine Refrigerator
Approval Process
Confirm with HOA
Architectural Style
Key West
Association Amenities
Clubhouse, Gated
Association Approval Required YN
1
Association Email
lcorman@pbmfla.com
Association Fee
628.63
Association Fee Frequency
Monthly
Association Fee Includes
Pool, Insurance, Maintenance Structure, Maintenance Grounds, Sewer, Trash, Water
Association Fee Requirement
Required
Association URL
www.pbmfla.com
Association YN
true
Attached Garage YN
true
Available For Lease YN
1
Bathrooms Total Integer
3
Building Area Source
Public Records
Building Area Total
1920
Building Area Total Srch SqM
178.37
Building Area Units
Square Feet
Building Elevator YN
1
Calculated List Price By Calculated SqFt
372.40
Carport YN
false
Community Features
Pool
Construction Materials
Block
Cooling
Central Air
Country
US
Cumulative Days On Market
72
Current Price
715000.00
Direction Faces
East
Elementary School
Maximo Elementary-PN
Exterior Features
Sidewalk, Sliding Doors
Fireplace YN
false
Flood Zone Code
AE
Flood Zone Date
2021-08-24
Flood Zone Panel
12103C0283H
Flooring
Ceramic Tile, Vinyl
Foundation Details
Slab
Furnished
Unfurnished
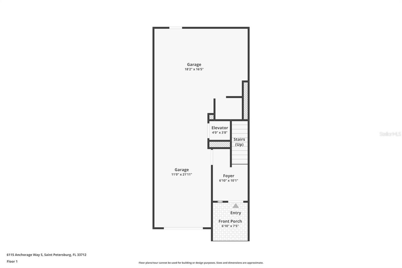
Garage Spaces
2
Garage YN
true
Heating
Central
High School
Lakewood High-PN
Homestead YN
1
Interior Features
Ceiling Fans(s), Elevator, High Ceilings, Stone Counters
Internet Address Display YN
true
Internet Automated Valuation Display YN
true
Internet Consumer Comment YN
true
Internet Entire Listing Display YN
true
Laundry Features
Inside, Laundry Room, Upper Level
Lease Restrictions YN
1
Levels
Three Or More
List AOR
Suncoast Tampa
Living Area Meters
178.37
Living Area Source
Public Records
Living Area Units
Square Feet
Lot Size Acres
0.02
Lot Size Square Feet
1059
Lot Size Square Meters
98
Middle Or Junior School
Bay Point Middle-PN
Minimum Lease
1 Month
Modification Timestamp
2026-03-28T19:06:24.211Z
Monthly HOA Amount
628.63
New Construction YN
false
Num Times per Year
12
Occupant Type
Owner
Ownership
Fee Simple
Parcel Number
11-32-16-18731-000-0890
Patio And Porch Features
Covered, Deck, Enclosed, Front Porch, Patio, Porch, Rear Porch, Screened
Pets Allowed
Dogs OK
Pool Private YN
false
Postal Code Plus 4
4882
Previous List Price
725000
Price Change Timestamp
2026-03-26T13:29:59.000Z
Property Condition
Completed
Public Survey Range
16
Public Survey Section
11
RATIO Current Price By Calculated SqFt
372.40
Realtor Info
As-Is, Docs Available, No Sign
Road Surface Type
Asphalt
Roof
Metal
Room Count
7
Senior Community YN
false
Sewer
Public Sewer
Showing Requirements
Supra Lock Box
Status Change Timestamp
2026-01-15T11:09:31.000Z
Stories Total
3
Tax Annual Amount
7856.31
Tax Book Number
138-86
Tax Legal Description
COVE AT LOGGERHEAD MARINA LOT 89
Tax Lot
89
Tax Year
2024
Total Acreage
0 to less than 1/4
Total Annual Fees
7543.56
Total Monthly Fees
628.63
Township
32
Universal Property Id
US-12103-N-113216187310000890-R-N
Unparsed Address
6115 ANCHORAGE WAY S
Utilities
Cable Connected, Electricity Connected, Sewer Connected, Water Connected
Water Access
Canal - Saltwater
Water Access YN
1
Water Frontage Feet Canal Fresh
30
Water Source
Public
Water View
Canal
Water View YN
1
Waterfront Feet Total
30
Waterfront YN
false
Window Features
Double Pane Windows
Neighborhood Map
Popup

Property Photos
Listing Photo
Listing Photo
Listing Photo
Listing Photo
Listing Photo
Listing Photo
Listing Photo
Listing Photo
Listing Photo
Listing Photo
Listing Photo
Listing Photo
Listing Photo
Listing Photo
Listing Photo
Listing Photo
Listing Photo
Listing Photo
Listing Photo
Listing Photo
Listing Photo
Listing Photo
Listing Photo
Listing Photo
Listing Photo
Listing Photo
Listing Photo
Listing Photo
Listing Photo
Listing Photo
Listing Photo
Listing Photo
Listing Photo
Listing Photo
Listing Photo
Listing Photo
Listing Photo
Listing Photo
Listing Photo
Listing Photo
Listing Photo
Listing Photo
Listing Photo
Listing Photo
Listing Photo
Listing Photo
Listing Photo
Listing Photo
Listing Photo
Listing Photo
Listing Photo
Listing Photo
Listing Photo
Listing Photo
Listing Photo
Listing Photo
Listing Photo
Listing Photo
Listing Photo
Listing Photo
Listing Photo
Listing Photo
Listing Photo
Listing Photo
Listing Photo
Listing Photo
Listing Photo
Listing Photo
Listing Photo
Listing Photo
Listing Photo
Listing Photo
Listing Photo
Listing Photo
Listing Photo
Listing Photo
Listing Photo
Listing Photo
Listing Photo
Listing Photo
Listing Photo
Listing Photo
Listing Photo
Listing Photo
Listing Photo
Listing Photo
Listing Photo
Listing Photo
Listing Photo
Listing Photo
Listing Photo
Listing Photo
Listing Photo
Listing Photo
Listing Photo
Listing Photo
Listing Photo
Listing Photo
Listing Photo
Listing Photo
Listing Photo
Listing Photo
Listing Photo
Listing Photo
Listing Photo
Listing Photo
Listing Photo
Listing Photo
Listing Photo
Listing Photo
Listing Photo
Listing Photo
Listing Photo
Listing Photo
Listing Photo
Listing Photo
Listing Photo
Listing Photo
Listing Photo
Listing Photo
Listing Photo
Listing Photo
Listing Photo
Listing Photo
Listing Photo
Listing Photo
Listing Photo
Listing Photo
Listing Photo
Listing Photo
Listing Photo
Listing Photo
Listing Photo
Listing Photo
Listing Photo
Listing Photo
Listing Photo
Listing Photo
Listing Photo
Listing Photo
Listing Photo
Listing Photo
Listing Photo
Listing Photo
Listing Photo
Listing Photo
Listing Photo
Listing Photo
Listing Photo
Listing Photo
Listing Photo
Listing Photo

MLS #MFRTB8464364 Listing courtesy of Dalton Wade Inc provided by Stellar MLS.

Similar Listings

$644,900
7085 Sunset S Drive
St Petersburg
3BR/2BA
| Active
$645,000
902 N 32nd Street
St Petersburg
3BR/2BA
| Active
$645,000
5426 Venetian Ne Boulevard
St Petersburg
3BR/2BA
| Active
$649,000
6069 4th N Avenue
St Petersburg
3BR/2BA
| Pending



All listing information is deemed reliable but not guaranteed and should be independently verified through personal inspection by appropriate professionals. Listings displayed on this website may be subject to prior sale or removal from sale; availability of any listing should always be independent verified. Listing information is provided for consumer personal, non-commercial use, solely to identify potential properties for potential purchase; all other use is strictly prohibited and may violate relevant federal and state law. The source of the listing data is as follows: Stellar MLS (updated 4/12/26 6:25 AM) |

Listing Search



Translate Tool

Featured Listings
Bradenton Real Estate
$800,000
5 BED
4 BATH
An exceptional residence that truly redefines elegance, comfort, and Florida living. Located in the sought-after gated c... Read More
Sarasota Real Estate
$824,900
4 BED
3 BATH
Don't wait to see this meticulously detailed - original owner - home, in The Enclave in Sarasota Florida. NEW ROOF in 20... Read More
Lake Mary Real Estate
$1,025,000
4 BED
3 BATH
Located in The Reserve at Heathrow, this custom built home is an impressive single-story floor plan featuring 4 bedrooms... Read More
St Cloud Real Estate
$1,290,000
6 BED
5 BATH
Welcome to an extraordinary lakefront retreat designed for luxury, flexibility, and multigenerational living. Built in 2... Read More
Sarasota Real Estate
$1,025,000
2 BED
2 BATH
Indulge in elevated coastal luxury within this exquisitely redesigned two-bedroom, two-bath residence, ideally positione... Read More
Orlando Real Estate
$938,000
4 BED
3 BATH
Beautifully updated Cypress Isle home located on a huge lot, just under an acre. Fully renovated to an exceptional stand... Read More
Morriston Real Estate
$1,500,000
3 BED
2 BATH
84+ ACRES ON HWY 41 IN MORRISTON – FARM, HOMESTEAD OR INVESTMENT OPPORTUNITY Unlock the potential of this expansive 84.4... Read More
St Petersburg Real Estate
$1,495,000
5 BED
4 BATH
Under Construction. Introducing the Folk Vernacular plan at 5204 10th St N, a newly built home by Canopy Builders set on... Read More
St Petersburg Real Estate
$1,175,000
5 BED
4 BATH
Brand-New Construction in Northeast St. Petersburg by Coastline Homes! Situated on an urban street in the Five Points Ne... Read More
Windermere Real Estate
$1,250,000
5 BED
4 BATH
INLAW A beautiful home located in the heart of downtown Windermere offering 4-bedrooms, 3-bathrooms, with a perfect blen... Read More
Contact Sandra Pardo

407-990-2746

Wendy Morris LLC

Licensed in the State of Florida
BK 3146762
16797 Broadwater Avenue
Winter Garden, Florida 34787

Your privacy is our utmost concern. We will never sell your personal information. Privacy Policy
©2026 sandrapardohomes.com - all rights reserved. | Site Map