407-990-2746
Menu

6003 16th S Avenue, Tampa, FL

NEXT
PREV
$1,509,000

($721/sqft)

List Status: Active
6003 16th S Avenue
Tampa, FL 33619


5 beds
3 baths
2094 living sqft
Top Features
  • Subdivision: South Tampa Sub
  • Built in  1960
  • Single Family Residence
Description
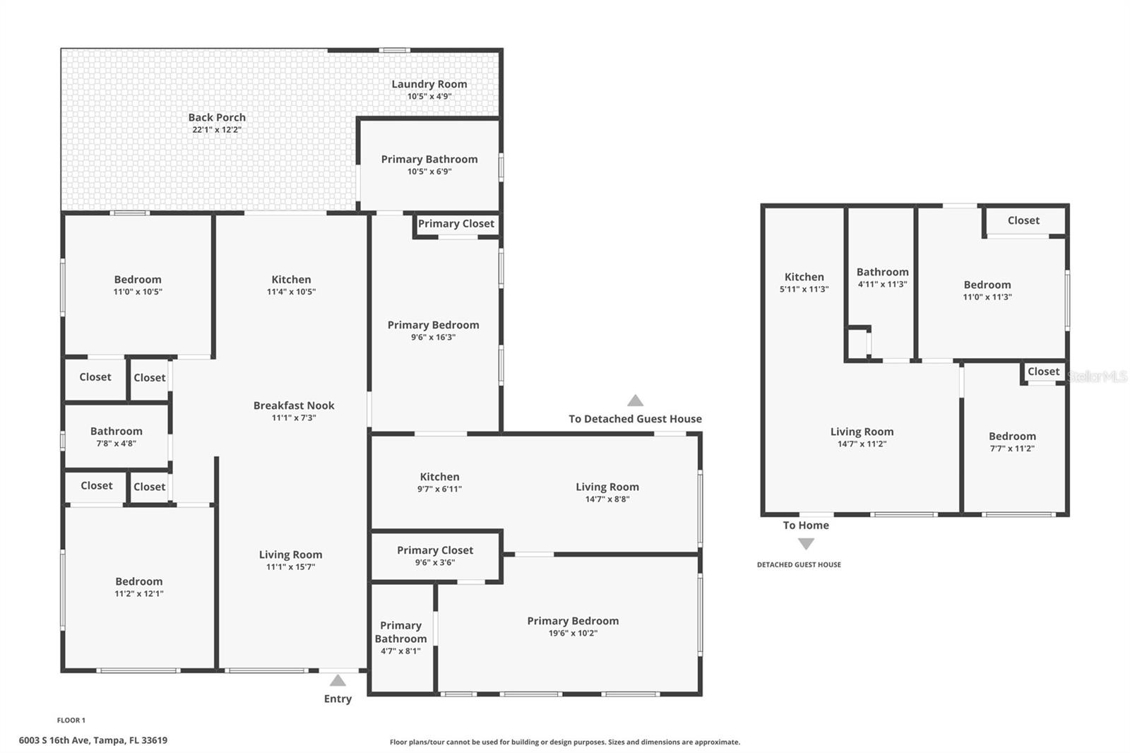
LOCATION! LOCATION! LOCATION! One-of-a-kind real estate opportunity now available! Don’t let it slip away. Are you seeking a private retreat with ample space? This stunning estate provides the serenity and seclusion you desire, all just a quick 10-minute drive to Downtown Tampa. Plus, it’s only 20 minutes to some of the area’s top shopping and dining destinations! The property spans 4.77 acres and is fully enclosed with fencing. It features a main residence alongside a separate 2-bedroom, 1-bath guesthouse. The primary home offers 3 bedrooms and 1 bathroom, with an additional attached in-law suite that includes an extra bedroom and bathroom with its own entrance—effectively making the main house a 4-bedroom, 2-bath home. Outside, you'll find a barn, a picturesque pond stocked with tilapia, and a spacious gazebo on a concrete pad equipped with a wood-fired oven, perfect for entertaining guests. Just steps away are two outdoor restrooms. A large metal storage building offers plenty of space for gardening tools, vehicles, boats, or sports gear—and it can easily serve as a workshop. The property boasts three electric meters, including one commercial. Additional highlights include a gated entrance, a peaceful wooded lot with a winding driveway, and barn keeper’s living quarters suitable for an RV. This versatile property opens up countless possibilities—bring your ideas! Whether enjoy it as a personal haven or explore income opportunities by renting out one or both homes, subdividing the land, or constructing additional units. Best of all, there are no HOA or CDD restrictions. Opportunities like this are rare, so act fast! Please note, the property is currently tenant-occupied; do not disturb the tenants. It is being sold AS IS. The seller has never lived in either the main or guest house. A portion of the property is actively generating $4,500 in monthly rental income, with potential for higher returns based on owner discretion.
Property Details
Additional Information
Additional Parcels YN
false
Alternate Key Folio Num
0462930000
Appliances
Microwave, Range, Refrigerator
Association YN
false
Available For Lease YN
1
Barn Features
Other
Bathrooms Total Integer
5
Building Area Source
Owner
Building Area Total
2238
Building Area Total Srch SqM
207.92
Building Area Units
Square Feet
Calculated List Price By Calculated SqFt
720.63
Carport YN
false
Construction Materials
Stucco
Cooling
Central Air
Country
US
Cumulative Days On Market
1
Currency Monthly Rent Amount
4500.00
Current Price
1509000.00
Days Notice To Tenant If Not Renew
30 days
Direction Faces
South
Exterior Features
Lighting, Outdoor Grill, Private Mailbox
Fireplace YN
false
Flood Zone Code
X500
Flood Zone Date
2021-10-07
Flood Zone Panel
12057C0367J
Flooring
Laminate
Foundation Details
Slab
Garage YN
false
Heating
Central
Interior Features
Primary Bedroom Main Floor
Internet Address Display YN
true
Internet Automated Valuation Display YN
true
Internet Consumer Comment YN
true
Internet Entire Listing Display YN
true
Laundry Features
Outside
Levels
One
List AOR
Suncoast Tampa
Living Area Meters
194.54
Living Area Source
Owner
Living Area Units
Square Feet
Lot Features
Farm
Lot Size Acres
4.77
Lot Size Square Feet
207781
Lot Size Square Meters
19303
Minimum Lease
No Minimum
Modification Timestamp
2025-10-23T10:48:32.892Z
Month To Month Or Weekly YN
1
New Construction YN
false
Occupant Type
Tenant
Other Structures
Barn(s), Finished RV Port, Gazebo, Guest House, Shed(s)
Ownership
Fee Simple
Parcel Number
U-27-29-19-663-000001-57590.0
Pool Private YN
false
Postal Code Plus 4
5427
Public Survey Range
19
Public Survey Section
27
RATIO Current Price By Calculated SqFt
720.63
Road Surface Type
Asphalt, Dirt, Gravel, Paved
Roof
Shingle
Room Count
3
Senior Community YN
false
Sewer
Septic Tank
Showing Requirements
24 Hour Notice, Appointment Only, ShowingTime
Status Change Timestamp
2025-10-22T17:48:42.000Z
Stories Total
1
Tax Annual Amount
8698.61
Tax Block
1
Tax Book Number
6-3
Tax Legal Description
SOUTH TAMPA SUBDIVISION LOT BEG AT NW COR OF TRACT 9 IN NE 1/4 AND RUN E 195 FT S 332.5 FT E 262 FT S 312.5 FT W 457 FT AND N TO BEG
Tax Lot
BEG
Tax Year
2024
Total Acreage
2 to less than 5
Total Annual Fees
0.00
Total Monthly Fees
0.00
Township
29
Universal Property Id
US-12057-N-272919663000001575900-R-N
Unparsed Address
6003 16TH AVE S
Utilities
Public
Water Source
Public, Well
Waterfront YN
false
Zoning
ASC-1
Neighborhood Map
Popup

Property Photos
Listing Photo
Listing Photo
Listing Photo
Listing Photo
Listing Photo
Listing Photo
Listing Photo
Listing Photo
Listing Photo
Listing Photo
Listing Photo
Listing Photo
Listing Photo
Listing Photo
Listing Photo
Listing Photo
Listing Photo
Listing Photo
Listing Photo
Listing Photo
Listing Photo
Listing Photo
Listing Photo
Listing Photo
Listing Photo
Listing Photo
Listing Photo
Listing Photo
Listing Photo
Listing Photo
Listing Photo
Listing Photo
Listing Photo
Listing Photo
Listing Photo
Listing Photo
Listing Photo
Listing Photo
Listing Photo
Listing Photo
Listing Photo
Listing Photo
Listing Photo
Listing Photo
Listing Photo
Listing Photo
Listing Photo
Listing Photo
Listing Photo
Listing Photo
Listing Photo
Listing Photo
Listing Photo
Listing Photo
Listing Photo
Listing Photo
Listing Photo
Listing Photo
Listing Photo
Listing Photo
Listing Photo
Listing Photo
Listing Photo
Listing Photo
Listing Photo
Listing Photo
Listing Photo
Listing Photo
Listing Photo
Listing Photo
Listing Photo
Listing Photo
Listing Photo
Listing Photo
Listing Photo
Listing Photo
Listing Photo
Listing Photo
Listing Photo
Listing Photo
Listing Photo
Listing Photo
Listing Photo
Listing Photo
Listing Photo
Listing Photo
Listing Photo
Listing Photo
Listing Photo
Listing Photo
Listing Photo
Listing Photo
Listing Photo
Listing Photo
Listing Photo
Listing Photo
Listing Photo
Listing Photo

MLS #MFRTB8440571 Listing courtesy of Florida Homes Rlty & Mortgage provided by Stellar MLS.

Similar Listings

$1,359,000
3706 W Vasconia Street
Tampa
5BR/3BA
| Active
$1,449,500
2914 W San Jose Street
Tampa
5BR/3BA
| Active
$1,450,000
1206 S Suffolk Drive
Tampa
5BR/3BA
| Active
$1,475,000
4305 N Branch Avenue
Tampa
5BR/3BA
| Active



All listing information is deemed reliable but not guaranteed and should be independently verified through personal inspection by appropriate professionals. Listings displayed on this website may be subject to prior sale or removal from sale; availability of any listing should always be independent verified. Listing information is provided for consumer personal, non-commercial use, solely to identify potential properties for potential purchase; all other use is strictly prohibited and may violate relevant federal and state law. The source of the listing data is as follows: Stellar MLS (updated 2/17/26 5:12 PM) |

Listing Search



Translate Tool

Featured Listings
Tampa Real Estate
$1,490,000
3 BED
3 BATH
Just moments from iconic Bayshore Boulevard, this custom-built three-story luxury pool residence with a private elevator... Read More
Clearwater Real Estate
$1,365,000
3 BED
3 BATH
DESIGNER FURNISHED Penthouse suitable for MOTHER IN LAW SUITE and Large Families. South Facing Gulffront Penthosue featu... Read More
St Petersburg Real Estate
$1,049,999
3 BED
2 BATH
Wake up to breathtaking Gulf of Mexico views in this stunning 3-bedroom, 2-bath beachfront condo located in the highly s... Read More
Madeira Beach Real Estate
$837,583
 
1 BATH
One or more photo(s) has been virtually staged. Pre-Construction. To be built. Welcome to The Marriott Autograph Collect... Read More
Valrico Real Estate
$855,000
5 BED
4 BATH
Welcome to luxury living on the fairway in the guard-gated golf course community of River Hills. This beautifully renova... Read More
The Villages Real Estate
$1,375,000
3 BED
2 BATH
**THE NEW RESTAURANT HARRY AND THE NATIVES IS NOW OPEN**Imagine waking up every day in your own private paradise—this 3-... Read More
Apollo Beach Real Estate
$929,000
5 BED
4 BATH
528 Islebay Blvd, Apollo Beach, FL | 5 Bed 4 Bath | 3,304 sq ft | Waterfront | Private Dock & 10,000-lb Boat Lift | Davi... Read More
Morriston Real Estate
$1,224,000
3 BED
2 BATH
Breathtaking farm surround by absolutely stunning views! This 10-acre ranch is perfect for a cattle or horse farm. Locat... Read More
Longboat Key Real Estate
$1,350,000
3 BED
3 BATH
Welcome to luxury Gulf-front living at The Players Club. This sophisticated furnished residence is a three-bedroom, thre... Read More
Sarasota Real Estate
$874,900
3 BED
3 BATH
Walk through the front gate and courtyard to discover refined Florida living in a beautifully updated 3 bedroom, 3 bath ... Read More
Contact Sandra Pardo

407-990-2746

Wendy Morris LLC

Licensed in the State of Florida
BK 3146762
16797 Broadwater Avenue
Winter Garden, Florida 34787

Your privacy is our utmost concern. We will never sell your personal information. Privacy Policy
©2026 sandrapardohomes.com - all rights reserved. | Site Map