407-990-2746
Menu

5442 E Hillsborough Boulevard, North Port, FL

NEXT
PREV
$389,900

($198/sqft)

List Status: Pending
5442 E Hillsborough Boulevard
North Port, FL 34288


3 beds
2 baths
1966 living sqft
Top Features
  • Frontage: Canal - Freshwater
  • View: Water, Pool
  • Subdivision: Port Charlotte Sub 44
  • Built in  1999
  • Single Family Residence
Description
Property Details
Additional Information
Additional Parcels YN
false
Alternate Key Folio Num
1146198306
Appliances
Dishwasher, Microwave, Range, Refrigerator
Architectural Style
Florida
Association YN
false
Attached Garage YN
true
Available For Lease YN
1
Bathrooms Total Integer
2
Building Area Source
Public Records
Building Area Total
2683
Building Area Total Srch SqM
249.26
Building Area Units
Square Feet
Calculated List Price By Calculated SqFt
198.32
Carport YN
false
Construction Materials
Block, Concrete, Stucco
Contract Status
Inspections
Cooling
Central Air
Country
US
Cumulative Days On Market
5
Current Price
389900.00
Direction Faces
South
Expected Closing Date
2025-12-19T00:00:00.000
Exterior Features
Lighting, Outdoor Shower, Rain Gutters, Sliding Doors
Fireplace YN
false
Flood Zone Code
X
Flood Zone Date
2016-11-04
Flood Zone Panel
12115C0411F
Flooring
Laminate, Tile
Foundation Details
Slab
Furnished
Unfurnished
Garage Spaces
2
Garage YN
true
Green Energy Generation
Solar
Heating
Central, Electric
Homestead YN
1
Interior Features
Ceiling Fans(s), Central Vaccum, High Ceilings, Open Floorplan, Solid Wood Cabinets, Split Bedroom, Thermostat, Walk-In Closet(s)
Internet Address Display YN
true
Internet Automated Valuation Display YN
true
Internet Consumer Comment YN
false
Internet Entire Listing Display YN
true
Laundry Features
Electric Dryer Hookup, Inside, Washer Hookup
Levels
One
List AOR
Port Charlotte
Living Area Meters
182.65
Living Area Source
Public Records
Living Area Units
Square Feet
Lot Size Acres
0.27
Lot Size Square Feet
11600
Lot Size Square Meters
1078
Minimum Lease
No Minimum
Modification Timestamp
2025-11-30T00:47:08.927Z
New Construction YN
false
Number Of Lots
1
Occupant Type
Vacant
Other Equipment
Irrigation Equipment
Ownership
Fee Simple
Parcel Number
1146198306
Patio And Porch Features
Screened
Pool Private YN
true
Postal Code Plus 4
3402
Public Remarks
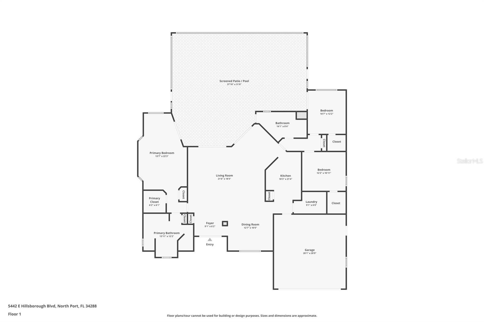
Welcome to 5442 E. Hillsborough Blvd, a spacious three bedroom, two bathroom, two car garage home with just under 2, 000 square feet of living space! This home is located on a •FRESHWATER CANAL• and has other great benefits such as a •HEATED POOL• with screened-in lanai and comes with •PAID OFF SOLAR PANELS• to help cut costs and save on energy consumption. You will also find a •GENERATOR PLUG & ABOVE GROUND PROPANE TANK• to give you power when you need it most! For those who need extra storage, to the rear of the home you will find a spacious shed that can be used for storage, workshop, or in-laws. Alright maybe not ideal for in-laws but once it’s your home you can let your creative mind run free! Imagine enjoying your own heated pool or kayaking/fishing right from your own backyard, this home is not only located on a desired lot, but also in a convenient location! You’re just minutes away from all the great shops, dining, and entertainment not only in North Port but in Port Charlotte as well. I75 is a short drive away as well for access to larger cities such as Sarasota and Fort Myers. Please see the attached •3D FLOORPLAN & VIRTUAL TOUR• to get a better understanding of this home before you call your favorite real estate agent to schedule a private tour of your own!
Public Survey Range
22E
Public Survey Section
33
Purchase Contract Date
2025-11-29
RATIO Current Price By Calculated SqFt
198.32
Realtor Info
As-Is, Floor Plan Available, See Attachments, Sign
Road Surface Type
Asphalt, Paved
Roof
Shingle
Room Count
10
SW Subdiv Community Name
North Port
Senior Community YN
false
Sewer
Septic Tank
Showing Requirements
Supra Lock Box, Appointment Only, See Remarks, ShowingTime
Status Change Timestamp
2025-11-30T00:46:08.000Z
Stories Total
1
Tax Annual Amount
5758.26
Tax Block
1983
Tax Book Number
19-33
Tax Legal Description
LOT 6 BLK 1983 44TH ADD TO PORT CHARLOTTE
Tax Lot
6
Tax Year
2024
Total Acreage
1/4 to less than 1/2
Total Annual Fees
0.00
Total Monthly Fees
0.00
Township
39S
Universal Property Id
US-12115-N-1146198306-R-N
Unparsed Address
5442 E HILLSBOROUGH BLVD
Utilities
Electricity Connected
Vegetation
Mature Landscaping
Water Access
Canal - Freshwater
Water Access YN
1
Water Body Name
COCOPLUM WATERWAY
Water Frontage Feet Canal Fresh
80
Water Source
Public
Water View
Canal
Water View YN
1
Waterfront Feet Total
80
Waterfront YN
true
Zoning
RSF2
Neighborhood Map
Popup

Property Photos
Listing Photo
Listing Photo
Listing Photo
Listing Photo
Listing Photo
Listing Photo
Listing Photo
Listing Photo
Listing Photo
Listing Photo
Listing Photo
Listing Photo
Listing Photo
Listing Photo
Listing Photo
Listing Photo
Listing Photo
Listing Photo
Listing Photo
Listing Photo
Listing Photo
Listing Photo
Listing Photo
Listing Photo
Listing Photo
Listing Photo
Listing Photo
Listing Photo
Listing Photo
Listing Photo
Listing Photo
Listing Photo
Listing Photo
Listing Photo
Listing Photo
Listing Photo
Listing Photo
Listing Photo
Listing Photo
Listing Photo
Listing Photo
Listing Photo
Listing Photo
Listing Photo
Listing Photo
Listing Photo
Listing Photo
Listing Photo
Listing Photo
Listing Photo
Listing Photo
Listing Photo
Listing Photo
Listing Photo
Listing Photo
Listing Photo
Listing Photo
Listing Photo
Listing Photo
Listing Photo
Listing Photo
Listing Photo
Listing Photo
Listing Photo
Listing Photo
Listing Photo
Listing Photo
Listing Photo
Listing Photo
Listing Photo
Listing Photo
Listing Photo
Listing Photo
Listing Photo
Listing Photo
Listing Photo
Listing Photo
Listing Photo
Listing Photo
Listing Photo
Listing Photo
Listing Photo
Listing Photo
Listing Photo
Listing Photo
Listing Photo
Listing Photo
Listing Photo
Listing Photo
Listing Photo
Listing Photo
Listing Photo
Listing Photo
Listing Photo
Listing Photo
Listing Photo
Listing Photo
Listing Photo
Listing Photo
Listing Photo
Listing Photo
Listing Photo
Listing Photo
Listing Photo
Listing Photo
Listing Photo
Listing Photo
Listing Photo
Listing Photo
Listing Photo
Listing Photo
Listing Photo

MLS #MFRC7517803 Listing courtesy of Kw Peace River Partners provided by Stellar MLS.

Similar Listings

$352,100
4510 Dakota Terrace
North Port
3BR/2BA
| Active
$353,000
2504 Averland Loop
North Port
3BR/2BA
| Active
$353,125
2684 Averland Loop
North Port
3BR/2BA
| Active
$353,500
2673 Mayflower Terrace
North Port
3BR/2BA
| Active



All listing information is deemed reliable but not guaranteed and should be independently verified through personal inspection by appropriate professionals. Listings displayed on this website may be subject to prior sale or removal from sale; availability of any listing should always be independent verified. Listing information is provided for consumer personal, non-commercial use, solely to identify potential properties for potential purchase; all other use is strictly prohibited and may violate relevant federal and state law. The source of the listing data is as follows: Stellar MLS (updated 12/18/25 10:50 PM) |

Listing Search



Translate Tool

Featured Listings
Bradenton Real Estate
$999,999
4 BED
3 BATH
Sarasota Real Estate
$927,000
3 BED
2 BATH
Winter Springs Real Estate
$1,099,000
5 BED
3 BATH
Dunedin Real Estate
$875,000
3 BED
3 BATH
Tampa Real Estate
$1,350,000
4 BED
2 BATH
Reunion Real Estate
$1,249,000
5 BED
5 BATH
Palm Harbor Real Estate
$859,000
4 BED
2 BATH
Longboat Key Real Estate
$830,000
2 BED
2 BATH
Sarasota Real Estate
$849,000
3 BED
2 BATH
Apopka Real Estate
$899,000
5 BED
4 BATH
Contact Sandra Pardo

407-990-2746

Wendy Morris LLC

Licensed in the State of Florida
BK 3146762
16797 Broadwater Avenue
Winter Garden, Florida 34787

Your privacy is our utmost concern. We will never sell your personal information. Privacy Policy
©2025 sandrapardohomes.com - all rights reserved. | Site Map