407-990-2746
Menu

4510 Dakota Terrace, North Port, FL

NEXT
PREV
$332,100

($179/sqft)

List Status: Active
4510 Dakota Terrace
North Port, FL 34286


3 beds
2 baths
1860 living sqft
Top Features
  • Subdivision: Port Charlotte Sub 07
  • Built in  2026
  • Single Family Residence
Description
Property Details
Additional Information
Additional Parcels YN
false
Alternate Key Folio Num
1006009111
Appliances
Dishwasher, Electric Water Heater, Exhaust Fan, Kitchen Reverse Osmosis System, Microwave, Range
Association YN
false
Attached Garage YN
true
Available For Lease YN
1
Bathrooms Total Integer
2
Builder License Number
CRC1330146
Builder Model
1860/A
Builder Name
Adams Homes
Building Area Source
Builder
Building Area Total
2460
Building Area Total Srch SqM
228.54
Building Area Units
Square Feet
Calculated List Price By Calculated SqFt
178.55
Carport YN
false
Construction Materials
Block, Stucco
Cooling
Central Air
Country
US
Cumulative Days On Market
93
Current Price
332100.00
Direction Faces
Northwest
Disaster Mitigation
Hurricane Shutters/Windows
Elementary School
Atwater Bay Elementary
Exterior Features
Hurricane Shutters
Fireplace YN
false
Flood Zone Code
AE
Flooring
Carpet, Ceramic Tile
Foundation Details
Slab
Garage Spaces
2
Garage YN
true
Heating
Central, Electric
High School
North Port High
Home Warranty YN
true
Interior Features
Eat-in Kitchen, In Wall Pest System, Kitchen/Family Room Combo, Open Floorplan, Pest Guard System, Primary Bedroom Main Floor, Split Bedroom, Stone Counters, Thermostat, Vaulted Ceiling(s), Walk-In Closet(s)
Internet Address Display YN
true
Internet Automated Valuation Display YN
true
Internet Consumer Comment YN
false
Internet Entire Listing Display YN
true
Laundry Features
Electric Dryer Hookup, Inside, Laundry Room, Washer Hookup
Levels
One
List AOR
Sarasota - Manatee
Living Area Meters
172.80
Living Area Source
Builder
Living Area Units
Square Feet
Lot Features
Cleared
Lot Size Acres
0.23
Lot Size Square Feet
10000
Lot Size Square Meters
929
Middle Or Junior School
Woodland Middle School
Minimum Lease
No Minimum
Modification Timestamp
2025-12-19T15:25:09.305Z
New Construction YN
true
Occupant Type
Vacant
Ownership
Fee Simple
Parcel Number
1006009111
Permit Number
On File
Pool Private YN
false
Previous List Price
352100
Price Change Timestamp
2025-12-19T15:24:15.000Z
Projected Completion Date
2025-12-31T00:00:00.000
Property Condition
Completed
Property Description
Walk-Up
Public Remarks
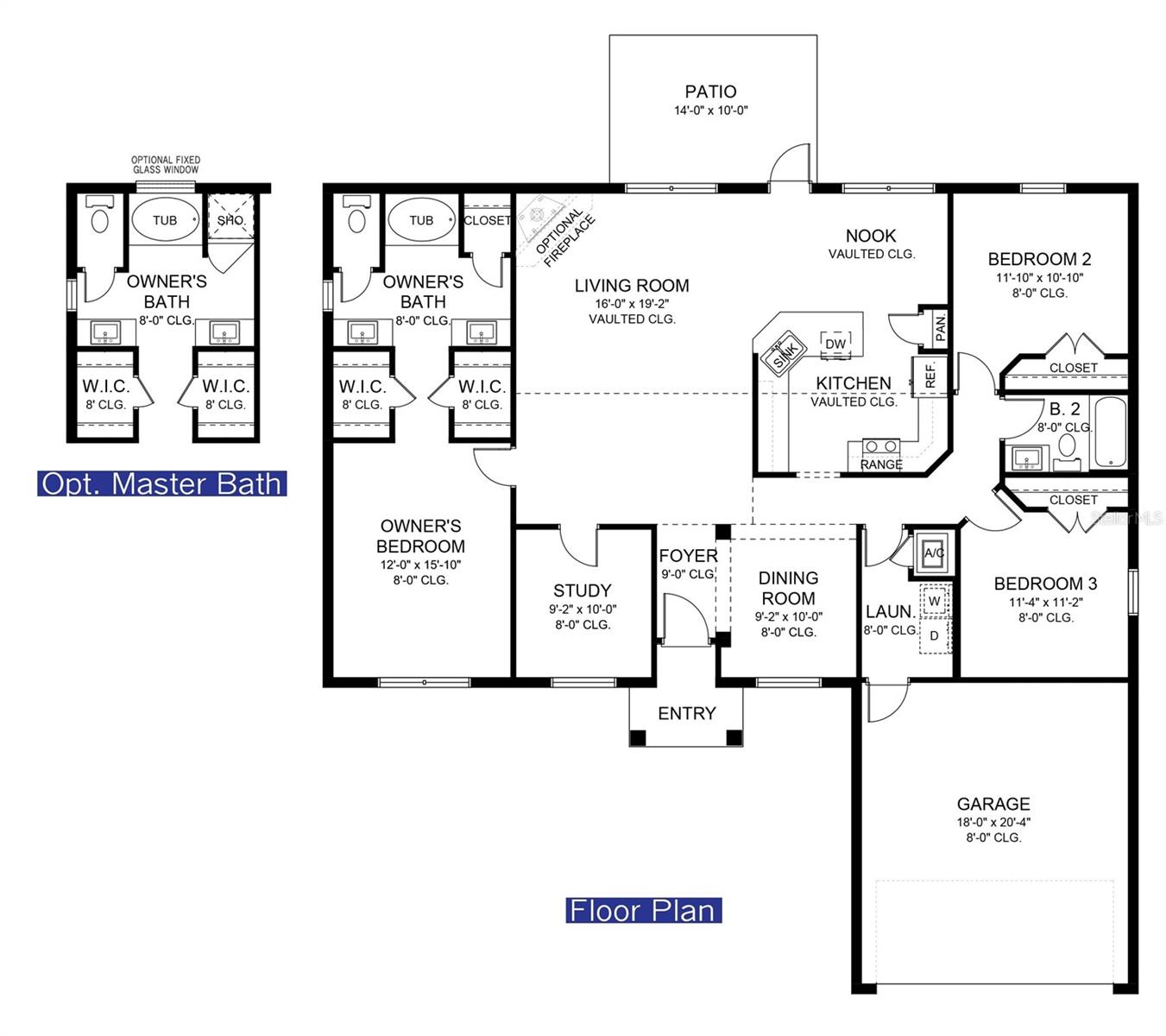
This New Construction home has 1860 square feet of living space allowing you much room for your family as well as guests. The covered patio space gives you extra room for outdoor enjoyment. Adams Homes provides great features such as architecturally designed elevations, updated window designs, ceramic tile flooring in the main living areas, stain-resistant carpet in the bedrooms, granite countertops in the kitchen & baths, brushed nickel door and bath hardware, designer LED recessed lighting, 36" upper cabinets with crown molding, double pane insulated tilt-in sash windows and much more. 10-year builder structural warranty included! This is the opportunity to make this affordable gem your new family home. Paid closing costs when using preferred lenders.
Public Survey Range
21E
Public Survey Section
35
RATIO Current Price By Calculated SqFt
178.55
Realtor Info
Owner Will Assist with closing costs
Road Surface Type
Asphalt
Roof
Shingle
Room Count
7
SW Subdiv Community Name
North Port
Senior Community YN
false
Sewer
Septic Tank
Showing Requirements
Call Listing Agent, Key/Agent, No Lockbox, See Remarks
Status Change Timestamp
2025-09-17T18:24:19.000Z
Tax Annual Amount
698.05
Tax Block
91
Tax Book Number
12-19
Tax Legal Description
LOT 11 BLK 91 7TH ADD TO PORT CHARLOTTE
Tax Lot
11
Tax Year
2024
Total Acreage
0 to less than 1/4
Total Annual Fees
0.00
Total Monthly Fees
0.00
Township
39S
Universal Property Id
US-12115-N-1006009111-R-N
Unparsed Address
4510 DAKOTA TER
Utilities
Electricity Connected, Phone Available, Private, Water Connected
Water Source
Private, Well
Waterfront YN
false
Window Features
Double Pane Windows, Insulated Windows, Shutters
Zoning
RSF2
Neighborhood Map
Popup

Property Photos
Listing Photo
Listing Photo
Listing Photo
Listing Photo
Listing Photo
Listing Photo
Listing Photo
Listing Photo
Listing Photo
Listing Photo

MLS #MFRA4665409 Listing courtesy of Adams Home Realty Inc provided by Stellar MLS.

Similar Listings

$298,900
4625 Vernell Street
North Port
3BR/2BA
| Pending
$299,000
4324 Knowles Lane
North Port
3BR/2BA
| Pending
$299,000
6341 Opa Locka Lane
North Port
3BR/2BA
| Active
$299,000
2485 Strawberry Terrace
North Port
3BR/2BA
| Pending



All listing information is deemed reliable but not guaranteed and should be independently verified through personal inspection by appropriate professionals. Listings displayed on this website may be subject to prior sale or removal from sale; availability of any listing should always be independent verified. Listing information is provided for consumer personal, non-commercial use, solely to identify potential properties for potential purchase; all other use is strictly prohibited and may violate relevant federal and state law. The source of the listing data is as follows: Stellar MLS (updated 12/19/25 4:36 PM) |

Listing Search



Translate Tool

Featured Listings
Clearwater Real Estate
$925,000
3 BED
2 BATH
Oviedo Real Estate
$1,125,000
5 BED
4 BATH
Indian Rocks Beach Real Estate
$859,900
2 BED
2 BATH
Tampa Real Estate
$1,175,000
5 BED
4 BATH
Tampa Real Estate
$975,000
4 BED
3 BATH
Bradenton Real Estate
$1,150,000
3 BED
3 BATH
Punta Gorda Real Estate
$840,000
3 BED
2 BATH
Dunedin Real Estate
$875,000
3 BED
2 BATH
Dunedin Real Estate
$899,000
4 BED
2 BATH
Sarasota Real Estate
$1,400,000
4 BED
3 BATH
Contact Sandra Pardo

407-990-2746

Wendy Morris LLC

Licensed in the State of Florida
BK 3146762
16797 Broadwater Avenue
Winter Garden, Florida 34787

Your privacy is our utmost concern. We will never sell your personal information. Privacy Policy
©2025 sandrapardohomes.com - all rights reserved. | Site Map