407-990-2746
Menu

540 9th N Avenue, St Petersburg, FL

NEXT
PREV
$624,900

($498/sqft)

List Status: Pending
540 9th N Avenue
St Petersburg, FL 33701


2 beds
2 baths
1254 living sqft
Top Features
  • Subdivision: Saffords Add Rev
  • Built in  1925
  • Single Family Residence
Description
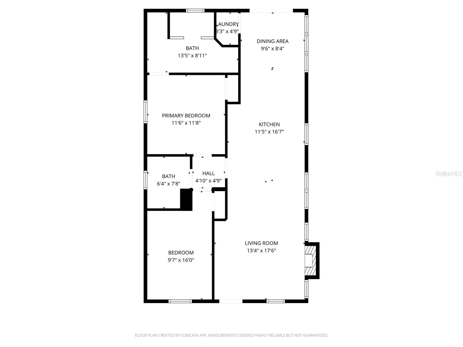
Under contract-accepting backup offers. Experience the perfect blend of historic charm and modern living in this beautifully updated bungalow, located in the historic uptown neighborhood walking distance to central avenue, crescent lake park, and various local shops and restaurants while still having the historic neighborhood feel!. This 2-bedroom, 2-bath home offers a thoughtfully designed layout that showcases original architectural character paired with today’s comforts and finishes. The open-concept living and dining areas flow seamlessly into a stylish, updated kitchen featuring sleek countertops, stainless steel appliances, and custom cabinetry. Both bathrooms are fully updated with contemporary fixtures and tile work. Step outside to discover a private, detached office offering an ADDITIONAL 300 sq ft of flexible space (total 1554sq ft of AC)— ideal for working from home, a creative studio, or a guest suite. Also included is a turfed dog run along side of the home! Enjoy the best of downtown living with shops, restaurants, cafes, Vinoy Park, crescent lake, and coffee pot bayou all just steps from your front door. Whether you’re looking for a full-time residence or a weekend retreat, this home offers the ultimate St. Pete lifestyle — walkable, vibrant, and full of character.
Property Details
Additional Information
Additional Lease Restrictions
NONE
Additional Parcels YN
false
Alternate Key Folio Num
183117778140030090
Appliances
Dishwasher, Disposal, Dryer, Range, Refrigerator, Tankless Water Heater, Washer
Association YN
false
Available For Lease YN
1
Bathrooms Total Integer
2
Building Area Source
Estimated
Building Area Total
1254
Building Area Total Srch SqM
116.50
Building Area Units
Square Feet
Calculated List Price By Calculated SqFt
498.33
Carport YN
false
Construction Materials
Frame, Wood Siding
Cooling
Central Air
Country
US
Cumulative Days On Market
107
Current Price
624900.00
Direction Faces
North
Expected Closing Date
2026-03-25T00:00:00.000
Exterior Features
Awning(s), Lighting
Fireplace YN
false
Flood Zone Code
X
Flood Zone Date
2021-08-24
Flood Zone Panel
12103C0219H
Flooring
Luxury Vinyl
Foundation Details
Crawlspace
Garage YN
false
Heating
Electric
Interior Features
Ceiling Fans(s), Living Room/Dining Room Combo, Open Floorplan, Primary Bedroom Main Floor
Internet Address Display YN
true
Internet Automated Valuation Display YN
true
Internet Consumer Comment YN
true
Internet Entire Listing Display YN
true
Laundry Features
Laundry Closet
Lease Restrictions YN
1
Levels
One
List AOR
Suncoast Tampa
Living Area Meters
116.50
Living Area Source
Estimated
Living Area Units
Square Feet
Lot Size Acres
0.1
Lot Size Dimensions
43x100
Lot Size Square Feet
4417
Lot Size Square Meters
410
Minimum Lease
3 Months
Modification Timestamp
2026-02-27T22:16:09.422Z
Month To Month Or Weekly YN
1
New Construction YN
false
Occupant Type
Vacant
Ownership
Fee Simple
Parcel Number
18-31-17-77814-003-0090
Pool Private YN
false
Postal Code Plus 4
1606
Previous List Price
645000
Price Change Timestamp
2026-02-12T20:40:09.000Z
Public Survey Range
17
Public Survey Section
18
Purchase Contract Date
2026-02-27
RATIO Current Price By Calculated SqFt
498.33
Road Surface Type
Asphalt
Roof
Shingle
Room Count
7
Senior Community YN
false
Sewer
Public Sewer
Showing Requirements
Appointment Only, Call Before Showing, Call Listing Agent
Status Change Timestamp
2026-02-27T22:16:03.000Z
Stories Total
1
Tax Annual Amount
3013.83
Tax Block
3
Tax Book Number
H1-77
Tax Legal Description
SAFFORD'S ADD REVISED BLK 3, E 43FT OF W 86FT OF LOTS 9 AND 10
Tax Lot
9
Tax Year
2024
Total Acreage
0 to less than 1/4
Total Annual Fees
0.00
Total Monthly Fees
0.00
Township
31
Universal Property Id
US-12103-N-183117778140030090-R-N
Unparsed Address
540 9TH AVE N
Utilities
Public
Waterfront YN
false
Neighborhood Map
Popup

Property Photos
Listing Photo
Listing Photo
Listing Photo
Listing Photo
Listing Photo
Listing Photo
Listing Photo
Listing Photo
Listing Photo
Listing Photo
Listing Photo
Listing Photo
Listing Photo
Listing Photo
Listing Photo
Listing Photo
Listing Photo
Listing Photo
Listing Photo
Listing Photo
Listing Photo
Listing Photo
Listing Photo
Listing Photo
Listing Photo
Listing Photo
Listing Photo
Listing Photo
Listing Photo
Listing Photo
Listing Photo
Listing Photo
Listing Photo
Listing Photo
Listing Photo
Listing Photo
Listing Photo
Listing Photo
Listing Photo
Listing Photo
Listing Photo
Listing Photo
Listing Photo
Listing Photo
Listing Photo
Listing Photo
Listing Photo
Listing Photo
Listing Photo
Listing Photo
Listing Photo
Listing Photo
Listing Photo
Listing Photo
Listing Photo
Listing Photo
Listing Photo
Listing Photo
Listing Photo
Listing Photo
Listing Photo
Listing Photo
Listing Photo
Listing Photo
Listing Photo
Listing Photo
Listing Photo
Listing Photo
Listing Photo
Listing Photo
Listing Photo
Listing Photo
Listing Photo
Listing Photo
Listing Photo
Listing Photo
Listing Photo
Listing Photo
Listing Photo
Listing Photo
Listing Photo
Listing Photo
Listing Photo
Listing Photo
Listing Photo
Listing Photo
Listing Photo
Listing Photo
Listing Photo
Listing Photo
Listing Photo
Listing Photo
Listing Photo
Listing Photo
Listing Photo
Listing Photo
Listing Photo
Listing Photo

MLS #MFRTB8444652 Listing courtesy of Impact Realty Tampa Bay provided by Stellar MLS.

Similar Listings

$565,000
427 Boca Ciega Point N Boulevard
St Petersburg
2BR/2BA
| Active
$569,500
5541 Puerta Del Sol S Boulevard
St Petersburg
2BR/2BA
| Active
$569,900
1803 42nd N Way
St Petersburg
2BR/2BA
| Active
$569,900
13999 Gulf Boulevard
St Petersburg
2BR/2BA
| Active



All listing information is deemed reliable but not guaranteed and should be independently verified through personal inspection by appropriate professionals. Listings displayed on this website may be subject to prior sale or removal from sale; availability of any listing should always be independent verified. Listing information is provided for consumer personal, non-commercial use, solely to identify potential properties for potential purchase; all other use is strictly prohibited and may violate relevant federal and state law. The source of the listing data is as follows: Stellar MLS (updated 3/16/26 8:43 AM) |

Listing Search



Translate Tool

Featured Listings
Orlando Real Estate
$1,025,000
4 BED
4 BATH
Walk to Kelly's Ice Cream. Stroll to Delaney Park. Come home to something extraordinary. Built in 2023, this 4-bed, 4-ba... Read More
Brooksville Real Estate
$1,149,900
4 BED
4 BATH
Under Construction. The covered front porch opens to an entryway with a coffered 14-foot ceiling. A private home office ... Read More
Nokomis Real Estate
$1,095,000
3 BED
4 BATH
MOTIVATED SELLER! Immediate occupancy & move in ready. This beautifully appointed 3-bedroom, 6-bath home in the gated co... Read More
Sarasota Real Estate
$1,240,000
5 BED
2 BATH
An exceptional custom home by Arthur Rutenberg, set on nearly one acre in the gated Woodlands of Bent Tree, offers space... Read More
Montverde Real Estate
$824,000
4 BED
3 BATH
Welcome to this beautifully custom-built 4-bedroom, 3 bath home. Offering upscale finishes, spacious design, and beautif... Read More
Sarasota Real Estate
$949,500
4 BED
3 BATH
Under Construction. New Construction Estimated Completion April 2026 / MLS# C7521548. Introducing the award-winning Wate... Read More
St Cloud Real Estate
$1,150,000
4 BED
3 BATH
Welcome to your private slice of paradise! This stunning 4-bedroom, 3-bath estate sits on 4.6 beautifully landscaped acr... Read More
Seminole Real Estate
$888,000
4 BED
3 BATH
Fully renovated 4/3/2 pool home located in the highly desirable Whispering Pines neighborhood of Seminole. This spacious... Read More
North Port Real Estate
$805,000
3 BED
2 BATH
Discover the privacy and space you’ve been searching for with this beautiful pool home situated on just over 3 acres in ... Read More
Trinity Real Estate
$1,425,000
4 BED
4 BATH
Welcome to an Extraordinary Lifestyle — Floresta at Champions Club. Nestled behind the exclusive gates of Floresta withi... Read More
Contact Sandra Pardo

407-990-2746

Wendy Morris LLC

Licensed in the State of Florida
BK 3146762
16797 Broadwater Avenue
Winter Garden, Florida 34787

Your privacy is our utmost concern. We will never sell your personal information. Privacy Policy
©2026 sandrapardohomes.com - all rights reserved. | Site Map