407-990-2746
Menu

539 Tabatha Drive, Osteen, FL

NEXT
PREV
$950,000

($301/sqft)

List Status: Active
539 Tabatha Drive
Osteen, FL 32764


6 beds
4 baths
3155 living sqft
Top Features
  • Frontage: Lake Privileges
  • View: Water
  • Subdivision: Cove At Lemon Bluff Unrec
  • Built in  1989
  • Single Family Residence
Description
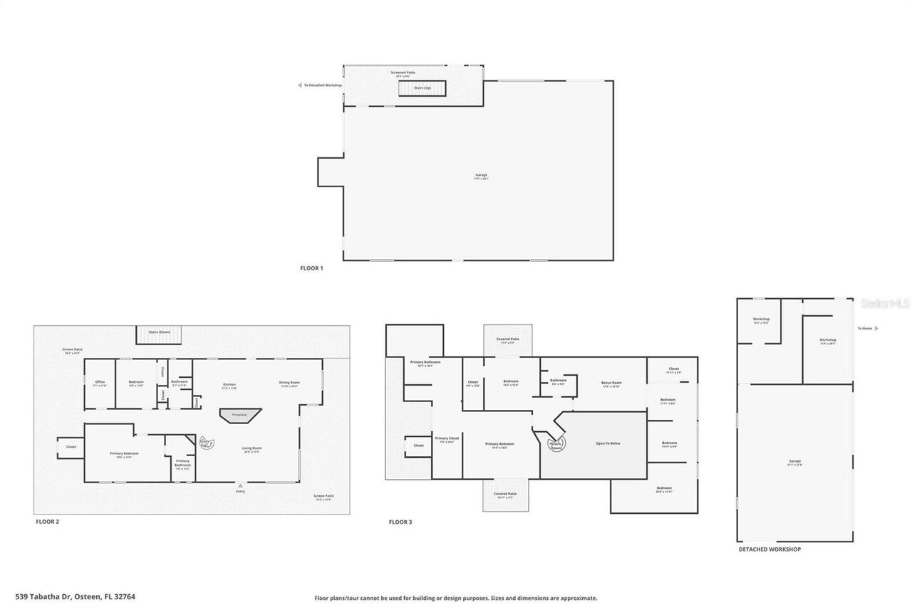
Welcome to your private 10-acre estate in Osteen Built for space, strength, and self-sufficiency. This impressive 3-story residence is constructed with durable red-iron framing and features a fully screened wraparound porch that’s perfect year-round for relaxing, entertaining, and enjoying the peaceful setting. A brand-new electric entry gate adds everyday convenience and extra security. Inside, enjoy the convenience of an elevator plus a dumbwaiter, making everyday living and hosting effortless. Power bills stay low with a fully paid-off Tesla solar system complete with 4 batteries, offering serious energy independence. Need room for toys, tools, or a workshop? You’ll love the 3-bay detached garage featuring a car lift, engine hoist, and a dedicated office—ideal for car enthusiasts, contractors, or anyone who wants a true flex space. If you’ve been searching for acreage, privacy, and a property with real infrastructure already in place—this one delivers. Schedule your private showing today.
Property Details
Additional Information
Additional Parcels YN
false
Alternate Key Folio Num
922901000060
Appliances
Convection Oven, Refrigerator
Architectural Style
Ranch
Association Fee Requirement
Optional
Association YN
true
Attached Garage YN
true
Available For Lease YN
1
Bathrooms Total Integer
4
Building Area Source
Public Records
Building Area Total
8763
Building Area Total Srch SqM
814.11
Building Area Units
Square Feet
Calculated List Price By Calculated SqFt
301.11
Carport YN
false
Construction Materials
Metal Frame
Cooling
Central Air
Country
US
Current Price
950000.00
Direction Faces
West
Exterior Features
Private Entrance, Private Yard, Storage
Fencing
Wire
Fireplace Features
Family Room, Masonry, Stone, Wood Burning
Fireplace YN
true
Flood Zone Code
AE
Flood Zone Date
2014-02-19
Flood Zone Panel
12127C0770H
Flooring
Ceramic Tile
Foundation Details
Slab, Stilt/On Piling
Furnished
Unfurnished
Garage Spaces
4
Garage YN
true
Heating
Central
Homestead YN
1
Interior Features
Ceiling Fans(s), Elevator, High Ceilings
Internet Address Display YN
true
Internet Automated Valuation Display YN
false
Internet Consumer Comment YN
false
Internet Entire Listing Display YN
true
Laundry Features
Inside
Levels
Three Or More
List AOR
West Volusia
Living Area Meters
293.11
Living Area Source
Public Records
Living Area Units
Square Feet
Lot Features
Zoned for Horses
Lot Size Acres
10.16
Lot Size Square Feet
442570
Lot Size Square Meters
41116
Minimum Lease
No Minimum
Modification Timestamp
2026-02-24T07:09:08.860Z
New Construction YN
false
Number Of Septics
1
Number Of Wells
1
Occupant Type
Vacant
Other Equipment
Private Entrance, Private Yard
Other Structures
Other
Ownership
Fee Simple
Parcel Number
9229-01-00-0060
Patio And Porch Features
Covered, Deck, Enclosed, Patio, Porch, Rear Porch, Screened, Side Porch, Wrap Around
Pets Allowed
Yes
Pool Private YN
false
Postal Code Plus 4
9311
Property Description
Elevated
Public Survey Range
32E
Public Survey Section
29
RATIO Current Price By Calculated SqFt
301.11
Realtor Info
As-Is
Road Responsibility
Private Maintained Road
Road Surface Type
Dirt
Roof
Metal
Room Count
11
Senior Community YN
false
Sewer
Septic Tank
Showing Requirements
Combination Lock Box, Gate Code Required
Status Change Timestamp
2026-02-24T05:50:51.000Z
Stories Total
2
Tax Annual Amount
16317.22
Tax Book Number
2755/19
Tax Legal Description
29-19-32 IRREG PARCEL MEAS 275 FT ON W/L & 1720.15 FT ON NE/L AKA LOT 6 THE COVE AT LEMON BLUFF UNREC SUB #1459 PER OR 2775 PG 1974 PER OR 7242 PG 1091 PER OR 8477 PG 3193
Tax Lot
6
Tax Year
2025
Total Acreage
10 to less than 20
Total Annual Fees
0.00
Total Monthly Fees
0.00
Township
19S
Universal Property Id
US-12127-N-922901000060-R-N
Unparsed Address
539 TABATHA DR
Utilities
Electricity Available
Water Access
Lake - Chain of Lakes
Water Access YN
1
Water Body Name
MUD LAKE/ST JOH'S RIVER
Water Extras
Skiing Allowed
Water Extras YN
1
Water Frontage Feet Lake Chain
342
Water Source
Well
Water View
Lake - Chain of Lakes
Water View YN
1
Waterfront Feet Total
342
Waterfront YN
true
Zoning
01A1
Neighborhood Map
Popup

Property Photos
Listing Photo
Listing Photo
Listing Photo
Listing Photo
Listing Photo
Listing Photo
Listing Photo
Listing Photo
Listing Photo
Listing Photo
Listing Photo
Listing Photo
Listing Photo
Listing Photo
Listing Photo
Listing Photo
Listing Photo
Listing Photo
Listing Photo
Listing Photo
Listing Photo
Listing Photo
Listing Photo
Listing Photo
Listing Photo
Listing Photo
Listing Photo
Listing Photo
Listing Photo
Listing Photo
Listing Photo
Listing Photo
Listing Photo
Listing Photo
Listing Photo
Listing Photo

MLS #MFRV4947521 Listing courtesy of Lpt Realty Llc provided by Stellar MLS.



All listing information is deemed reliable but not guaranteed and should be independently verified through personal inspection by appropriate professionals. Listings displayed on this website may be subject to prior sale or removal from sale; availability of any listing should always be independent verified. Listing information is provided for consumer personal, non-commercial use, solely to identify potential properties for potential purchase; all other use is strictly prohibited and may violate relevant federal and state law. The source of the listing data is as follows: Stellar MLS (updated 2/24/26 3:25 AM) |

Listing Search



Translate Tool

Featured Listings
St Pete Beach Real Estate
$1,248,000
3 BED
2 BATH
Under contract-accepting backup offers. Waterfront living at its finest on highly desirable Vina Del Mar Island. This be... Read More
Osteen Real Estate
$950,000
6 BED
4 BATH
Welcome to your private 10-acre estate in Osteen Built for space, strength, and self-sufficiency. This impressive 3-stor... Read More
Clearwater Real Estate
$849,000
4 BED
3 BATH
Discover modern living at its finest in this fully renovated 4-bedroom, 3.5-bathroom home, perfectly positioned on a qui... Read More
New Port Richey Real Estate
$875,000
5 BED
3 BATH
Welcome to your ultimate multi-generational Gulf-front retreat in the highly sought-after community of Gulf Harbors Sea ... Read More
Lakeland Real Estate
$975,000
4 BED
3 BATH
Exceptional four-bedroom, three-bathroom pool home located in one of South Lakeland's most sought-after neighborhoods, j... Read More
Lutz Real Estate
$1,400,000
5 BED
4 BATH
Luxurious Single-Story Estate on 1.24 Acres Welcome to this stunning 3,555 SF custom residence featuring 5 bedrooms and ... Read More
Sarasota Real Estate
$1,350,000
2 BED
2 BATH
Welcome home to Gulf & Bay Club, the premier condominium community on Siesta Key Beach. Enjoy stunning views of the fres... Read More
St Cloud Real Estate
$990,000
4 BED
2 BATH
We've reduced the price! Today I present this fabulous property, located in Saint Cloud, very close to Narcoosee Avenue,... Read More
St Petersburg Real Estate
$829,000
4 BED
3 BATH
LOCATION-LOCATION-LOCATION A luxury, meticulously crafted residence in the historic and charming Roser Park neighborhood... Read More
Orlando Real Estate
$930,000
4 BED
3 BATH
Built in 2022, this exceptional contemporary home is located in the highly desirable Downtown SODO district! Offering 4 ... Read More
Contact Sandra Pardo

407-990-2746

Wendy Morris LLC

Licensed in the State of Florida
BK 3146762
16797 Broadwater Avenue
Winter Garden, Florida 34787

Your privacy is our utmost concern. We will never sell your personal information. Privacy Policy
©2026 sandrapardohomes.com - all rights reserved. | Site Map