407-990-2746
Menu

5198 Moeller Avenue, Sarasota, FL

NEXT
PREV
$369,000

($246/sqft)

List Status: Active
5198 Moeller Avenue
Sarasota, FL 34233


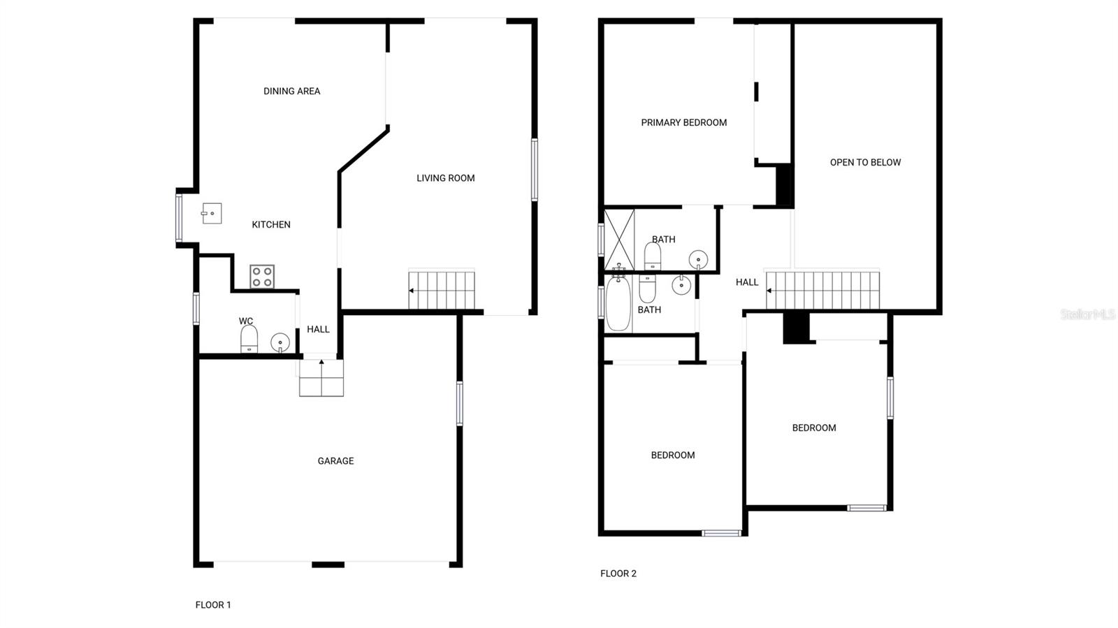
3 beds
2 baths
1499 living sqft
Top Features
  • Subdivision: Cedar Grove Of 1st Add To
  • Built in  1992
  • Single Family Residence
Description
Property Details
Additional Information
Additional Lease Restrictions
Buyer to verify.
Additional Parcels YN
false
Alternate Key Folio Num
0093130021
Appliances
Dishwasher, Electric Water Heater, Microwave, Other
Approval Process
Buyer to verify.
Association Approval Required YN
1
Association Fee
260
Association Fee Frequency
Annually
Association Fee Includes
Other
Association Fee Requirement
Required
Association YN
true
Attached Garage YN
true
Bathrooms Total Integer
3
Building Area Source
Public Records
Building Area Total
1499
Building Area Total Srch SqM
139.26
Building Area Units
Square Feet
Calculated List Price By Calculated SqFt
246.16
Carport YN
false
Construction Materials
Vinyl Siding
Cooling
Central Air
Country
US
Cumulative Days On Market
72
Current Price
369000.00
Direction Faces
East
Exterior Features
Other
Fencing
Other
Fireplace YN
false
Flood Zone Code
X
Flood Zone Date
2024-03-27
Flood Zone Panel
12115C0164G
Flooring
Carpet, Tile, Vinyl
Foundation Details
Slab
Garage Spaces
2
Garage YN
true
Heating
Central, Electric
Interior Features
Ceiling Fans(s), L Dining, Primary Bedroom Main Floor, Stone Counters
Internet Address Display YN
true
Internet Automated Valuation Display YN
false
Internet Consumer Comment YN
false
Internet Entire Listing Display YN
true
Laundry Features
Other
Lease Restrictions YN
1
Levels
Two
List AOR
Orlando Regional
Living Area Meters
139.26
Living Area Source
Public Records
Living Area Units
Square Feet
Lot Size Acres
0.14
Lot Size Square Feet
5935
Lot Size Square Meters
551
Max Pet Weight
999
Minimum Lease
1 Month
Modification Timestamp
2025-12-06T00:05:09.983Z
Monthly HOA Amount
21.67
New Construction YN
false
Occupant Type
Vacant
Ownership
Fee Simple
Parcel Number
0093130021
Pets Allowed
Yes
Pool Private YN
false
Postal Code Plus 4
3233
Previous List Price
372000
Price Change Timestamp
2025-10-16T03:35:28.000Z
Public Remarks
One or more photo(s) has been virtually staged. Welcome to this beautifully updated home! The interior boasts a fresh coat of neutral color paint, creating a calming and inviting atmosphere. The kitchen is a chef's dream with all stainless steel appliances and an accent backsplash adding a touch of elegance. The primary bedroom features a double closets for all your storage needs. Partial flooring replacement throughout the home adds a modern touch. Step outside to a spacious deck, perfect for entertaining or enjoying a quiet evening. The fenced-in backyard provides privacy and security. The exterior of the home has also been freshly painted, enhancing its curb appeal. This home is a must-see, offering a blend of style and comfort. Included 100-Day Home Warranty with buyer activation
Public Survey Range
18
Public Survey Section
12
RATIO Current Price By Calculated SqFt
246.16
Road Surface Type
Asphalt
Roof
Shingle
Room Count
3
SW Subdiv Community Name
Cedar Grove
Security Features
Security System Owned
Senior Community YN
false
Sewer
Septic Tank
Showing Requirements
Appointment Only, See Remarks, ShowingTime
Spa YN
false
Status Change Timestamp
2025-11-18T21:51:20.000Z
Tax Annual Amount
2218
Tax Block
E
Tax Book Number
1-65
Tax Legal Description
LOT 20 BLK E FIRST ADD TO CEDAR GROVE
Tax Lot
20
Tax Year
2024
Total Acreage
0 to less than 1/4
Total Annual Fees
260.00
Total Monthly Fees
21.67
Township
37
Universal Property Id
US-12115-N-0093130021-R-N
Unparsed Address
5198 MOELLER AVE
Utilities
Electricity Available, Water Available
Water Source
Public
Waterfront YN
false
Zoning
OUE
Neighborhood Map
Popup

Property Photos
Listing Photo
Listing Photo
Listing Photo
Listing Photo
Listing Photo
Listing Photo
Listing Photo
Listing Photo
Listing Photo
Listing Photo
Listing Photo
Listing Photo
Listing Photo
Listing Photo
Listing Photo
Listing Photo
Listing Photo
Listing Photo
Listing Photo
Listing Photo
Listing Photo
Listing Photo
Listing Photo
Listing Photo
Listing Photo
Listing Photo
Listing Photo
Listing Photo
Listing Photo
Listing Photo
Listing Photo
Listing Photo
Listing Photo
Listing Photo
Listing Photo
Listing Photo
Listing Photo
Listing Photo
Listing Photo
Listing Photo
Listing Photo
Listing Photo
Listing Photo
Listing Photo
Listing Photo
Listing Photo
Listing Photo
Listing Photo
Listing Photo
Listing Photo
Listing Photo
Listing Photo
Listing Photo
Listing Photo
Listing Photo
Listing Photo
Listing Photo
Listing Photo
Listing Photo
Listing Photo
Listing Photo
Listing Photo

MLS #MFRO6344649 Listing courtesy of Opendoor Brokerage Llc provided by Stellar MLS.

Similar Listings

$334,000
4211 Old Bradenton Road
Sarasota
3BR/2BA
| Pending
$335,000
7475 Oak Moss Drive
Sarasota
3BR/2BA
| Active
$339,000
1218 Grantham Drive
Sarasota
3BR/2BA
| Active
$339,000
4737 Vignette Way
Sarasota
3BR/2BA
| Active



All listing information is deemed reliable but not guaranteed and should be independently verified through personal inspection by appropriate professionals. Listings displayed on this website may be subject to prior sale or removal from sale; availability of any listing should always be independent verified. Listing information is provided for consumer personal, non-commercial use, solely to identify potential properties for potential purchase; all other use is strictly prohibited and may violate relevant federal and state law. The source of the listing data is as follows: Stellar MLS (updated 12/6/25 4:34 PM) |

Listing Search



Translate Tool

Featured Listings
Port Charlotte Real Estate
$1,050,000
3 BED
2 BATH
Port Charlotte Real Estate
$800,000
4 BED
3 BATH
Osprey Real Estate
$1,175,000
3 BED
3 BATH
Lutz Real Estate
$825,000
3 BED
3 BATH
Palm Coast Real Estate
$898,000
3 BED
3 BATH
Longboat Key Real Estate
$829,000
2 BED
2 BATH
Windermere Real Estate
$885,000
2 BED
1 BATH
Orlando Real Estate
$895,000
5 BED
3 BATH
Zephyrhills Real Estate
$1,250,000
6 BED
4 BATH
St Pete Beach Real Estate
$1,475,000
4 BED
3 BATH
Contact Sandra Pardo

407-990-2746

Wendy Morris LLC

Licensed in the State of Florida
BK 3146762
16797 Broadwater Avenue
Winter Garden, Florida 34787

Your privacy is our utmost concern. We will never sell your personal information. Privacy Policy
©2025 sandrapardohomes.com - all rights reserved. | Site Map