407-990-2746
Menu

5056 Oak Leaf Lane, Hernando Beach, FL

NEXT
PREV
$475,000

($283/sqft)

List Status: Active
5056 Oak Leaf Lane
Hernando Beach, FL 34607


3 beds
2 baths
1680 living sqft
Top Features
  • Subdivision: Gulf Coast Ret
  • Built in  2026
  • Single Family Residence
Description
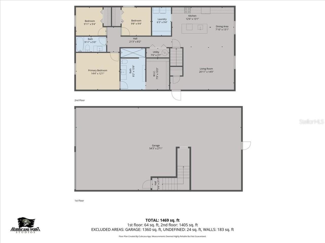
Brand New Coastal Stilt Home with 4+ Car Garage ONLY one block from the main Hernando Beach boat Ramp and Gulf Access! Welcome to your dream home in beautiful Hernando Beach. This brand-new 3 bedroom, 2 bathroom elevated coastal stilt home offers the perfect combination of modern design, functional space, and the relaxed Florida waterfront lifestyle. This NEW CONSTRUCTION home comes with a total of 3 combined lots totaling nearly half an acre, this unique property provides rare extra space and flexibility in one of the area's most desirable coastal communities. Located just minutes from the public boat ramp with direct access to the Gulf, this home is ideal for boaters, anglers, and outdoor enthusiasts who want to enjoy everything Florida living at its best . Durable composite wood stairs provide access from both the garage and exterior entry. Inside, the open great room floor plan showcases 9-foot ceilings and luxury vinyl plank flooring throughout, creating a bright and modern living space that flows seamlessly for everyday living and entertaining. The gourmet kitchen is beautifully appointed with a large center island, quartz countertops, stainless steel appliances including a built-in microwave and refrigerator, custom subway tile backsplash, a cast iron farmhouse sink, wood cabinetry, a built-in desk area, and a spacious pantry offering abundant storage. The dedicated laundry room includes cabinetry along with a front-load washer and dryer for added convenience. The guest bathroom features a tub and shower combination with stunning floor-to-ceiling custom tile. The spacious primary suite includes a huge walk-in closet and a luxurious en-suite bathroom with extensive cabinet storage and a beautifully designed floor-to-ceiling tiled snail shower. The expansive 4+ car garage spans the entire footprint of the home and offers incredible storage for boats, vehicles, golf carts, and recreational equipment. The garage features 8-foot garage doors, a 10-foot ceiling, br
Property Details
Additional Information
Additional Parcels YN
false
Alternate Key Folio Num
R1222316189000300040
Appliances
Dishwasher, Dryer, Electric Water Heater, Microwave, Range, Refrigerator, Washer
Architectural Style
Elevated
Association YN
false
Attached Garage YN
true
Bathrooms Total Integer
2
Building Area Source
Public Records
Building Area Total
3360
Building Area Total Srch SqM
312.15
Building Area Units
Square Feet
Calculated List Price By Calculated SqFt
282.74
Carport YN
false
Community Features
Golf Carts OK
Construction Materials
Concrete, Vinyl Siding, Frame
Cooling
Central Air
Country
US
Cumulative Days On Market
3
Current Price
475000.00
Direction Faces
West
Disaster Mitigation
Hurricane Shutters/Windows
Elementary School
Westside Elementary-HN
Exterior Features
Private Mailbox, Storage
Fireplace YN
false
Flood Zone Code
AE
Flooring
Ceramic Tile, Luxury Vinyl
Foundation Details
Stilt/On Piling
Furnished
Unfurnished
Garage Spaces
4
Garage YN
true
Heating
Central
High School
Weeki Wachee High School
Interior Features
Ceiling Fans(s), High Ceilings, Living Room/Dining Room Combo, Open Floorplan, Solid Surface Counters, Solid Wood Cabinets, Walk-In Closet(s)
Internet Address Display YN
true
Internet Automated Valuation Display YN
false
Internet Consumer Comment YN
false
Internet Entire Listing Display YN
true
Laundry Features
Electric Dryer Hookup, Inside, Laundry Room, Washer Hookup
Levels
Two
List AOR
Suncoast Tampa
Living Area Meters
156.08
Living Area Source
Public Records
Living Area Units
Square Feet
Lot Features
Cleared, Flood Insurance Required, FloodZone, Near Marina, Near Public Transit, Paved
Lot Size Acres
0.44
Lot Size Square Feet
19166
Lot Size Square Meters
1781
Middle Or Junior School
Fox Chapel Middle School
Modification Timestamp
2026-03-30T18:12:10.639Z
New Construction YN
false
Occupant Type
Vacant
Ownership
Fee Simple
Parcel Number
R12-223-16-1890-0030-0040
Pets Allowed
Yes
Pool Private YN
false
Postal Code Plus 4
2947
Property Description
Elevated
Public Survey Range
16E
Public Survey Section
12
RATIO Current Price By Calculated SqFt
282.74
Realtor Info
As-Is
Road Surface Type
Asphalt, Paved
Roof
Shingle
Room Count
4
Senior Community YN
false
Sewer
Public Sewer
Showing Requirements
Lock Box Coded, ShowingTime
Status Change Timestamp
2026-03-27T21:49:10.000Z
Tax Annual Amount
708.67
Tax Block
3
Tax Book Number
6-78
Tax Legal Description
GULF COAST RET UNIT 1 BLK 3 LOT 4
Tax Lot
4, 5, 15
Tax Year
2025
Total Acreage
1/4 to less than 1/2
Total Annual Fees
0.00
Total Monthly Fees
0.00
Township
23S
Universal Property Id
US-12053-N-1222316189000300040-R-N
Unparsed Address
5056 OAK LEAF LN
Utilities
Cable Available, Electricity Connected, Public, Sewer Connected, Water Connected
Water Source
Public
Waterfront YN
false
Window Features
Blinds, Storm Window(s)
Zoning
R1B
Neighborhood Map
Popup

Property Photos
Listing Photo
Listing Photo
Listing Photo
Listing Photo
Listing Photo
Listing Photo
Listing Photo
Listing Photo
Listing Photo
Listing Photo
Listing Photo
Listing Photo
Listing Photo
Listing Photo
Listing Photo
Listing Photo
Listing Photo
Listing Photo
Listing Photo
Listing Photo
Listing Photo
Listing Photo
Listing Photo
Listing Photo
Listing Photo
Listing Photo
Listing Photo
Listing Photo
Listing Photo
Listing Photo
Listing Photo
Listing Photo
Listing Photo
Listing Photo
Listing Photo
Listing Photo
Listing Photo
Listing Photo
Listing Photo
Listing Photo
Listing Photo
Listing Photo
Listing Photo
Listing Photo
Listing Photo
Listing Photo
Listing Photo
Listing Photo
Listing Photo
Listing Photo
Listing Photo
Listing Photo
Listing Photo
Listing Photo
Listing Photo
Listing Photo
Listing Photo
Listing Photo
Listing Photo
Listing Photo
Listing Photo
Listing Photo
Listing Photo
Listing Photo
Listing Photo
Listing Photo
Listing Photo
Listing Photo
Listing Photo
Listing Photo
Listing Photo
Listing Photo
Listing Photo
Listing Photo
Listing Photo
Listing Photo
Listing Photo
Listing Photo
Listing Photo
Listing Photo

MLS #MFRTB8491060 Listing courtesy of Jt Realty & Associates provided by Stellar MLS.

Similar Listings

$431,900
3312 Holly Springs Drive
Hernando Beach
3BR/2BA
| Active
$438,000
3381 Minnow Creek Drive
Hernando Beach
3BR/2BA
| Active
$448,000
3391 Mangrove Drive
Hernando Beach
3BR/2BA
| Active
$450,000
3368 Fernleaf Drive
Hernando Beach
3BR/2BA
| Active



All listing information is deemed reliable but not guaranteed and should be independently verified through personal inspection by appropriate professionals. Listings displayed on this website may be subject to prior sale or removal from sale; availability of any listing should always be independent verified. Listing information is provided for consumer personal, non-commercial use, solely to identify potential properties for potential purchase; all other use is strictly prohibited and may violate relevant federal and state law. The source of the listing data is as follows: Stellar MLS (updated 4/1/26 3:47 PM) |

Listing Search



Translate Tool

Featured Listings
Bradenton Real Estate
$1,075,000
4 BED
3 BATH
Under contract-accepting backup offers. Located in River Club, this stunning property offers not just a place to live, b... Read More
New Smyrna Beach Real Estate
$925,000
2 BED
2 BATH
Welcome to this spacious and beautifully renovated oceanfront 2/2 condo in The Inlet at Minorca. Seldom do these units w... Read More
Englewood Real Estate
$979,999
4 BED
3 BATH
Under contract-accepting backup offers. GULF ACCESS WATERFRONT ESTATE – PRIVATE DOCK & HEATED POOL. Experience the ultim... Read More
Mount Dora Real Estate
$1,120,000
6 BED
4 BATH
Under contract-accepting backup offers. Welcome to this extraordinary 6-bedroom custom estate home in the highly sought-... Read More
Land O Lakes Real Estate
$1,475,000
5 BED
3 BATH
Private executive lakefront estate, located on a peninsula giving you waterfront access to lake frontage as well as the ... Read More
Brandon Real Estate
$1,075,000
5 BED
4 BATH
If you need a really BIG house zoned for one of the top high schools in the county, look no further! Sellers offering $1... Read More
Brooksville Real Estate
$1,200,000
3 BED
2 BATH
Under contract-accepting backup offers. Stunning custom-built 2022 Craftsman-style home situated on over 5 beautiful acr... Read More
Port Charlotte Real Estate
$850,000
5 BED
3 BATH
Priced adjusted to sell with seller $5000 concession to buyer...From the moment you arrive, this luxury waterfront home ... Read More
Sarasota Real Estate
$975,000
2 BED
2 BATH
Luxurious Coastal Living at its Finest. - Welcome to a lifestyle of unparalleled elegance in this impeccably renovated 9... Read More
Dade City Real Estate
$997,500
4 BED
3 BATH
Custom 2019 Home on 1 Acre | Guest Suite | RV Garage | Workshop | Massive Patio.... Dade City has a hidden gem! This rar... Read More
Contact Sandra Pardo

407-990-2746

Wendy Morris LLC

Licensed in the State of Florida
BK 3146762
16797 Broadwater Avenue
Winter Garden, Florida 34787

Your privacy is our utmost concern. We will never sell your personal information. Privacy Policy
©2026 sandrapardohomes.com - all rights reserved. | Site Map