407-990-2746
Menu

4834 Sw 69th Street, Gainesville, FL

NEXT
PREV
$288,070

($198/sqft)

List Status: Pending
4834 Sw 69th Street
Gainesville, FL 32608


3 beds
2 baths
1458 living sqft
Top Features
  • Subdivision: Tara Vista
  • Built in  2026
  • Townhouse
Description
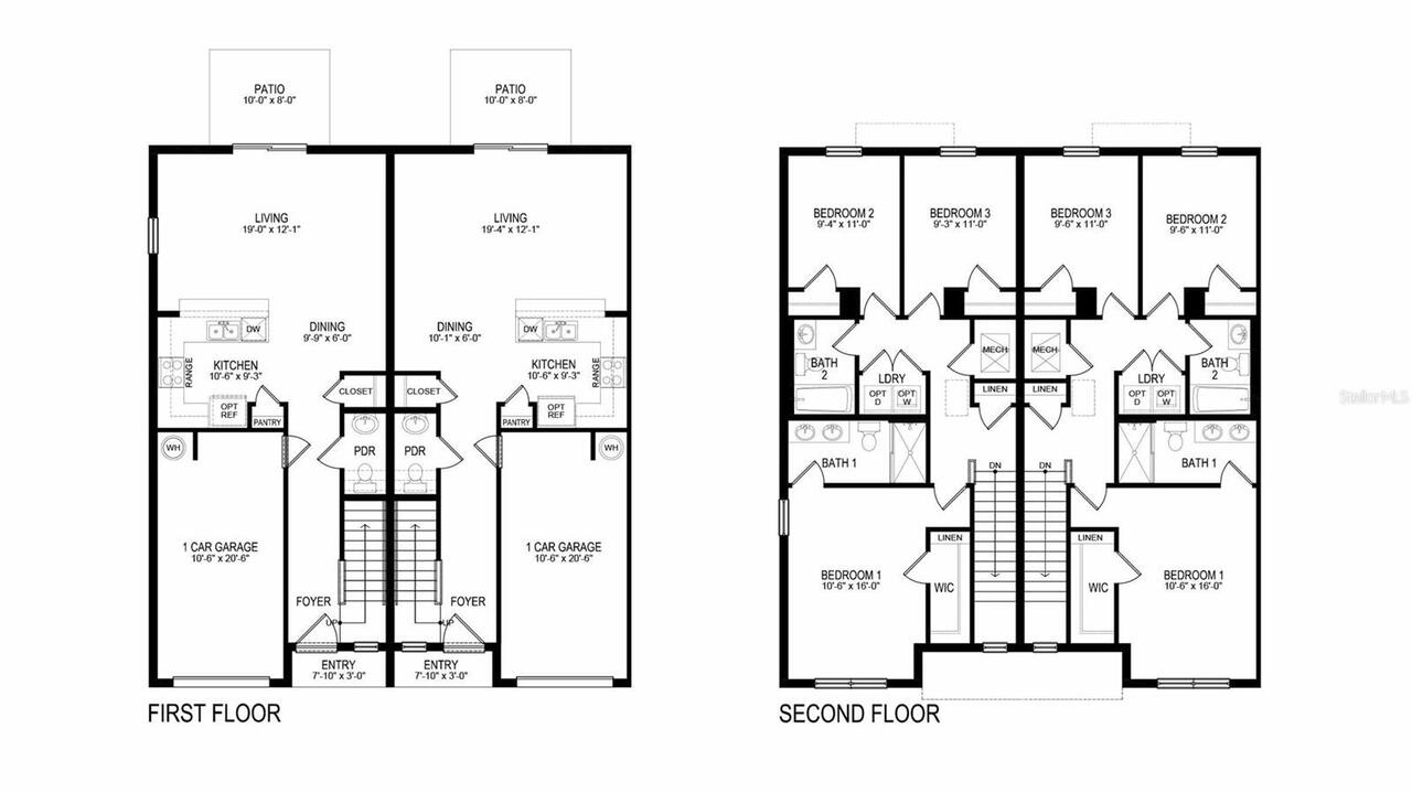
Under Construction. This two-story townhome has an open concept downstairs layout that includes a large open kitchen, a powder room, and spacious family room that overlooks a patio. The second floor includes a spacious Primary Suite with an ensuite bathroom, two additional bedrooms, a 2nd full bathroom, and a laundry area. This home comes with appliances including a built-in dishwasher, electric range, microwave. Pictures, photographs, colors, features, and sizes are for illustration purposes only and will vary from the homes as built. Home and community information including pricing, included features, terms, availability and amenities are subject to change and prior sale at any time without notice or obligation. CRC057592.
Property Details
Additional Information
Additional Lease Restrictions
Per HOA Guidelines
Additional Parcels YN
false
Appliances
Dishwasher, Microwave, Range
Approval Process
Per HOA Guidelines
Association Approval Required YN
1
Association Email
cam@affinityeverywhere.com
Association Fee
150
Association Fee Frequency
Monthly
Association Fee Includes
Maintenance Grounds, Management
Association Fee Requirement
Required
Association YN
true
Attached Garage YN
true
Available For Lease YN
1
Bathrooms Total Integer
3
Builder License Number
CRC057592
Builder Model
Pearson
Builder Name
DR Horton INC
Building Area Source
Builder
Building Area Total
1458
Building Area Total Srch SqM
135.45
Building Area Units
Square Feet
Calculated List Price By Calculated SqFt
197.58
Carport YN
false
Community Features
Community Mailbox
Construction Materials
Frame
Cooling
Central Air
Country
US
Cumulative Days On Market
19
Current Price
288070.00
Direction Faces
Northeast
Elementary School
Kimball Wiles Elementary School-AL
Expected Closing Date
2027-03-01T00:00:00.000
Fireplace YN
false
Flood Zone Code
X
Flooring
Carpet, Luxury Vinyl
Foundation Details
Slab
Furnished
Unfurnished
Garage Spaces
1
Garage YN
true
Heating
Electric, Heat Pump
High School
F. W. Buchholz High School-AL
Home Warranty YN
true
Interior Features
Open Floorplan
Internet Address Display YN
true
Internet Automated Valuation Display YN
true
Internet Consumer Comment YN
false
Internet Entire Listing Display YN
true
Laundry Features
Laundry Closet
Lease Restrictions YN
1
Levels
Two
List AOR
Ocala - Marion
Living Area Meters
135.45
Living Area Source
Builder
Living Area Units
Square Feet
Lot Size Acres
0.05
Lot Size Square Feet
2178
Lot Size Square Meters
202
Middle Or Junior School
Kanapaha Middle School-AL
Minimum Lease
7 Months
Modification Timestamp
2026-04-21T11:43:09.482Z
Monthly HOA Amount
150.00
New Construction YN
true
Occupant Type
Vacant
Other Equipment
Irrigation Equipment
Ownership
Fee Simple
Parcel Number
06877-600-166
Permit Number
B25-001739
Pet Restrictions
Per HOA Guidelines
Pets Allowed
Yes
Pool Private YN
false
Projected Completion Date
2026-07-06T00:00:00.000
Property Condition
Under Construction
Public Survey Range
19
Public Survey Section
21
Purchase Contract Date
2026-04-20
RATIO Current Price By Calculated SqFt
197.58
Road Surface Type
Asphalt
Roof
Shingle
Room Count
4
Senior Community YN
false
Sewer
Public Sewer
Showing Requirements
Contact Call Center
Status Change Timestamp
2026-04-21T11:42:59.000Z
Tax Block
-
Tax Book Number
40/85
Tax Legal Description
TARA VISTA PH 1 PB 40 PG 85 LOT 166 OR 5242/1432
Tax Lot
166
Tax Year
2025
Total Acreage
0 to less than 1/4
Total Annual Fees
1800.00
Total Monthly Fees
150.00
Township
10
Universal Property Id
US-12001-N-06877600166-R-N
Unparsed Address
4834 SW 69TH ST
Utilities
Other
Water Source
Public
Waterfront YN
false
Zoning
PUD
Neighborhood Map
Popup

Property Photos
Listing Photo
Listing Photo
Listing Photo
Listing Photo
Listing Photo
Listing Photo
Listing Photo
Listing Photo
Listing Photo
Listing Photo
Listing Photo
Listing Photo
Listing Photo
Listing Photo
Listing Photo
Listing Photo
Listing Photo
Listing Photo
Listing Photo
Listing Photo
Listing Photo
Listing Photo
Listing Photo
Listing Photo
Listing Photo
Listing Photo
Listing Photo
Listing Photo
Listing Photo
Listing Photo
Listing Photo
Listing Photo
Listing Photo
Listing Photo
Listing Photo
Listing Photo
Listing Photo
Listing Photo

MLS #MFROM721921 Listing courtesy of Dr Horton Realty Of West Central Florida provided by Stellar MLS.

Similar Listings

$259,750
1919 Ne 17th Drive
Gainesville
3BR/2BA
| Active
$259,900
3015 Ne 13th Drive
Gainesville
3BR/2BA
| Active
$259,900
2522 Se 11th Ave
Gainesville
3BR/2BA
| Active
$259,900
3742 Nw 26th Terrace
Gainesville
3BR/2BA
| Active



All listing information is deemed reliable but not guaranteed and should be independently verified through personal inspection by appropriate professionals. Listings displayed on this website may be subject to prior sale or removal from sale; availability of any listing should always be independent verified. Listing information is provided for consumer personal, non-commercial use, solely to identify potential properties for potential purchase; all other use is strictly prohibited and may violate relevant federal and state law. The source of the listing data is as follows: Stellar MLS (updated 4/27/26 11:50 AM) |

Listing Search



Translate Tool

Featured Listings
Reunion Real Estate
$1,359,000
6 BED
5 BATH
Welcome to 832 Desert Mountain - a line new, contemporary 6 bed, 5.5 bath home complete with REUNION MEMBERSHIP on a PRI... Read More
Mims Real Estate
$1,300,000
8 BED
6 BATH
STUNNING 5,500 SQ FT ESTATE IN DESIRED GATED COMMUNITY! 8 BEDROOMS - 6 BATHROOMS - 6 CAR GARAGE CAPACITY - GUEST APARTME... Read More
Land O Lakes Real Estate
$949,900
4 BED
3 BATH
Spacious 4-bedroom, 3-bath home on 1.2 acres with a 2-car garage and a massive 25x38 detached block workshop, offering r... Read More
St Petersburg Real Estate
$839,000
4 BED
2 BATH
One or more photo(s) has been virtually staged. Welcome to a beautifully redesigned luxury retreat in the highly desirab... Read More
Tampa Real Estate
$1,199,000
3 BED
3 BATH
NO FLOOD ZONE! PRIME location! Introducing a rare opportunity to own a move-in ready new construction residence in the h... Read More
Bradenton Real Estate
$999,000
2 BED
2 BATH
A Boat Owner's Dream! NO HOA and NO deed restrictions. Your boat will have easy access to the Manatee River, Tampa Bay a... Read More
Seminole Real Estate
$849,000
3 BED
2 BATH
Fully Remodeled Pool Home on Half Acre – No Flood Insurance Required! Welcome to this beautifully remodeled 3-bedroom, 2... Read More
Kissimmee Real Estate
$1,350,000
13 BED
12 BATH
Welcome to 308 Southfield Street, a standout luxury vacation estate home in the exclusive Encore Resort at Reunion—one o... Read More
New Smyrna Beach Real Estate
$1,099,999
3 BED
3 BATH
Welcome to 2659 Pioneer Trail, one of the most unique luxury properties in New Smyrna Beach. This exceptional estate ble... Read More
Winter Garden Real Estate
$1,085,000
5 BED
4 BATH
PRICE IMPROVEMENT..Exquisite! Enjoy the experience of living in the finest of modern luxury in this "architecturally" de... Read More
Contact Sandra Pardo

407-990-2746

Wendy Morris LLC

Licensed in the State of Florida
BK 3146762
16797 Broadwater Avenue
Winter Garden, Florida 34787

Your privacy is our utmost concern. We will never sell your personal information. Privacy Policy
©2026 sandrapardohomes.com - all rights reserved. | Site Map