407-990-2746
Menu

5932 Red Mangrove Lane, Bradenton, FL

NEXT
PREV
$1,170,000

($439/sqft)

List Status: Active
5932 Red Mangrove Lane
Bradenton, FL 34210


3 beds
3 baths
2668 living sqft
Top Features
  • Subdivision: Aqua Lagoon
  • Built in  2024
  • Single Family Residence
Description
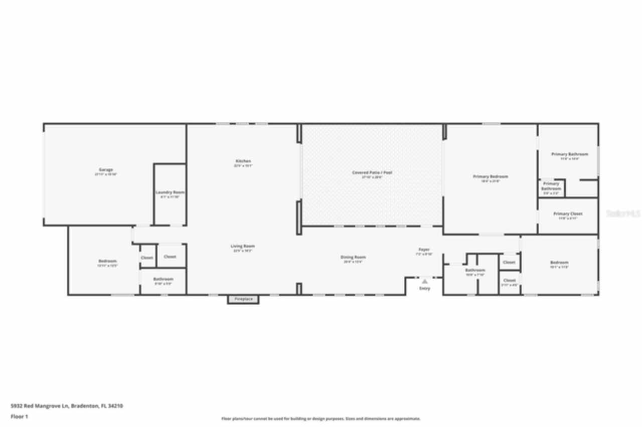
Welcome to this new construction home in the gated Aqua community – a prime opportunity offered BELOW the builder’s price! Built in a non-flood zone with solid block construction, a durable tile roof, and PGT impact windows and sliders, it meets current hurricane codes for true peace of mind. This could be a strong investment opportunity (8-9% cap rate based on actual rent). Aqua offers a private 4-acre tropical lagoon for swimming, paddleboarding, and kayaking, and the home is less than 5 minutes to IMG Academy. The property sits directly across from the lagoon for easy access. Set on an oversized extended lot, the home enjoys extra space, privacy, and more natural light inside thanks to wider side setbacks. This highly customized Sea Grape plan is approximately 250 sq ft larger than the standard model, creating more room where it matters. The single-level layout includes three bedrooms, three full bathrooms, and a two-car garage. The great room impresses with soaring 14 ft ceilings, while the rest of the home features 10 to 11 ft ceilings and tray accents. A dedicated laundry room adds everyday convenience. At the heart of the home is an oversized kitchen island surrounded by extended cabinetry, high-end appliances, a gas range, and a built-in wall oven with a convection microwave. Impact-rated sliders from the kitchen and the primary suite stack out of sight to connect the interior with a private courtyard designed for effortless indoor-outdoor living. The courtyard is a true retreat with a heated spool featuring six jets, smartphone controls, a tranquil waterfall, privacy fencing, and an outdoor kitchen with a gas grill for year-round entertaining. The primary suite showcases a distinctive blend of hardwood and tile flooring, a large walk-in closet, a free-standing soaking tub, and a shower with a dual-swing glass door. Additional upgrades include a feature fireplace, an extended garage with a 60-amp EV charging outlet, whole-home spray foam insulation, a micro-
Property Details
Additional Information
Additional Lease Restrictions
Please see the community docs for information on pet restrictions
Additional Parcels YN
false
Alternate Key Folio Num
6147126209
Appliances
Bar Fridge, Built-In Oven, Microwave, Range, Refrigerator, Tankless Water Heater, Wine Refrigerator
Approval Process
Please see the community docs for information on leasing restrictions
Association Approval Required YN
1
Association Email
sylvia@tropicalisles.net
Association Fee
417
Association Fee Frequency
Monthly
Association Fee Requirement
Required
Association YN
true
Attached Garage YN
true
Available For Lease YN
1
Bathrooms Total Integer
3
Builder Model
Sea Grape
Builder Name
Medallion Homes
Building Area Source
Builder
Building Area Total
3222
Building Area Total Srch SqM
299.33
Building Area Units
Square Feet
CDDYN
1
Calculated List Price By Calculated SqFt
438.53
Carport YN
false
Construction Materials
Block, Stucco
Cooling
Central Air
Country
US
Cumulative Days On Market
191
Current Price
1170000.00
Direction Faces
Southeast
Exterior Features
Courtyard, Outdoor Grill, Outdoor Kitchen, Rain Gutters
Fireplace Features
Living Room
Fireplace YN
true
Flood Zone Code
X
Flood Zone Date
2023-08-10
Flood Zone Panel
12081C0311F
Flooring
Ceramic Tile, Hardwood
Foundation Details
Slab
Garage Spaces
2
Garage YN
true
Heating
Electric
Interior Features
Dry Bar, High Ceilings, Living Room/Dining Room Combo, Open Floorplan, Primary Bedroom Main Floor, Tray Ceiling(s), Walk-In Closet(s)
Internet Address Display YN
true
Internet Automated Valuation Display YN
true
Internet Consumer Comment YN
true
Internet Entire Listing Display YN
true
Laundry Features
Laundry Room
Lease Restrictions YN
1
Levels
One
List AOR
Suncoast Tampa
Listing Exclusion YN
1
Living Area Meters
247.87
Living Area Source
Builder
Living Area Units
Square Feet
Lot Features
Landscaped
Lot Size Acres
0.19
Lot Size Square Feet
8438
Lot Size Square Meters
784
Minimum Lease
3 Months
Modification Timestamp
2026-03-06T20:37:09.170Z
Monthly HOA Amount
417.00
New Construction YN
true
Number Of Pets
3
Occupant Type
Vacant
Other Equipment
Irrigation Equipment
Ownership
Fee Simple
Parcel Number
6147126209
Pets Allowed
Cats OK, Dogs OK, Number Limit
Pool Private YN
true
Postal Code Plus 4
2354
Previous List Price
1150000
Price Change Timestamp
2026-01-30T22:47:53.000Z
Property Condition
Completed
Property Description
Elevated
Public Survey Range
17
Public Survey Section
17
RATIO Current Price By Calculated SqFt
438.53
Realtor Info
Owner Motivated, Owner Will Consider financing
Road Surface Type
Asphalt
Roof
Tile
Room Count
5
SW Subdiv Community Name
Not Applicable
Senior Community YN
false
Sewer
Public Sewer
Showing Requirements
Combination Lock Box, Listing Agent Must Accompany
Status Change Timestamp
2025-08-27T21:07:38.000Z
Tax Annual Amount
4261
Tax Legal Description
LOT 24, AQUA LAGOON PI #61471.2620/9
Tax Lot
24
Tax Other Annual Assessment Amount
2057
Tax Year
2024
Total Acreage
0 to less than 1/4
Total Annual Fees
5004.00
Total Monthly Fees
417.00
Township
35
Universal Property Id
US-12081-N-6147126209-R-N
Unparsed Address
5932 RED MANGROVE LN
Utilities
BB/HS Internet Available, Cable Connected, Electricity Connected, Natural Gas Connected, Sewer Connected, Water Connected
Water Source
Public
Waterfront YN
false
Zoning
RESI
Neighborhood Map
Popup

Property Photos
Listing Photo
Listing Photo
Listing Photo
Listing Photo
Listing Photo
Listing Photo
Listing Photo
Listing Photo
Listing Photo
Listing Photo
Listing Photo
Listing Photo
Listing Photo
Listing Photo
Listing Photo
Listing Photo
Listing Photo
Listing Photo
Listing Photo
Listing Photo
Listing Photo
Listing Photo
Listing Photo
Listing Photo
Listing Photo
Listing Photo
Listing Photo
Listing Photo
Listing Photo
Listing Photo
Listing Photo
Listing Photo
Listing Photo
Listing Photo
Listing Photo
Listing Photo
Listing Photo
Listing Photo
Listing Photo
Listing Photo
Listing Photo
Listing Photo
Listing Photo
Listing Photo
Listing Photo
Listing Photo
Listing Photo
Listing Photo
Listing Photo
Listing Photo
Listing Photo
Listing Photo
Listing Photo
Listing Photo
Listing Photo
Listing Photo
Listing Photo
Listing Photo
Listing Photo
Listing Photo
Listing Photo
Listing Photo
Listing Photo
Listing Photo
Listing Photo
Listing Photo
Listing Photo
Listing Photo
Listing Photo
Listing Photo
Listing Photo
Listing Photo
Listing Photo
Listing Photo
Listing Photo
Listing Photo
Listing Photo
Listing Photo
Listing Photo
Listing Photo
Listing Photo
Listing Photo
Listing Photo
Listing Photo
Listing Photo
Listing Photo
Listing Photo
Listing Photo
Listing Photo
Listing Photo

MLS #MFRTB8421558 Listing courtesy of Keller Williams St Pete Realty provided by Stellar MLS.

Similar Listings

$1,075,000
5024 37th E Street
Bradenton
3BR/3BA
| Pending
$1,075,000
4723 Trento Place
Bradenton
3BR/3BA
| Active
$1,075,000
13108 Treviso Drive
Bradenton
3BR/3BA
| Active
$1,095,000
12672 Fontana Loop
Bradenton
3BR/3BA
| Active



All listing information is deemed reliable but not guaranteed and should be independently verified through personal inspection by appropriate professionals. Listings displayed on this website may be subject to prior sale or removal from sale; availability of any listing should always be independent verified. Listing information is provided for consumer personal, non-commercial use, solely to identify potential properties for potential purchase; all other use is strictly prohibited and may violate relevant federal and state law. The source of the listing data is as follows: Stellar MLS (updated 3/28/26 6:02 AM) |

Listing Search



Translate Tool

Featured Listings
Winter Garden Real Estate
$950,000
3 BED
2 BATH
Welcome to 17549 Seidner, a remarkable lakefront property that invites you to experience the enchanting lifestyle of Win... Read More
Orlando Real Estate
$825,000
4 BED
3 BATH
Welcome to an expansive modern ranch with elegant interior finishes and remodeled living spaces thoughtfully designed to... Read More
Maitland Real Estate
$995,000
3 BED
2 BATH
Rare opportunity to own a private 0.66-acre estate lot in Maitland with deeded direct Lake Sybelia access. 790 S Lake Sy... Read More
Longboat Key Real Estate
$850,000
3 BED
2 BATH
YOUR SUNRISE SANCTUARY! YOUR SUNSET ESCAPE! An End Unit Villa—Steps From Both Shores! There’s a moment just before sunri... Read More
Tampa Real Estate
$1,215,900
4 BED
3 BATH
Welcome to this beautiful brand-new 2026 home with a modern design and high-end finishes, located in a prime area with n... Read More
Tierra Verde Real Estate
$850,000
2 BED
2 BATH
Experience refined waterfront living in this top-floor residence in desirable Tierra Verde’s Anchor Cove.This spacious r... Read More
Bradenton Real Estate
$1,300,000
3 BED
3 BATH
Indulge in elevated coastal living, set within the exclusive, double-gated enclave of Legends Bay. Built in 2019, this r... Read More
Lake Mary Real Estate
$849,900
4 BED
3 BATH
!-Seller says SELL-! Experience modern elegance and sustainable living in Lake Emma Sound, one of Lake Mary's newest gat... Read More
Deltona Real Estate
$899,900
4 BED
4 BATH
Under Construction. The photos on listing are from a model home that can be viewed. Under construction 4 bed 4 bath 3 ca... Read More
Homosassa Real Estate
$1,350,000
3 BED
2 BATH
REDUCED $150,000 from Original List Price! Stunning bay view situated across from unbuildable state lands at the interse... Read More
Contact Sandra Pardo

407-990-2746

Wendy Morris LLC

Licensed in the State of Florida
BK 3146762
16797 Broadwater Avenue
Winter Garden, Florida 34787

Your privacy is our utmost concern. We will never sell your personal information. Privacy Policy
©2026 sandrapardohomes.com - all rights reserved. | Site Map