407-990-2746
Menu

4470 Corso Venetia Boulevard, Venice, FL

NEXT
PREV
$385,000

($278/sqft)

List Status: Active
4470 Corso Venetia Boulevard
Venice, FL 34293


2 beds
2 baths
1385 living sqft
Top Features
  • Subdivision: Venetia Ph 5
  • Built in  2004
  • Villa
Description
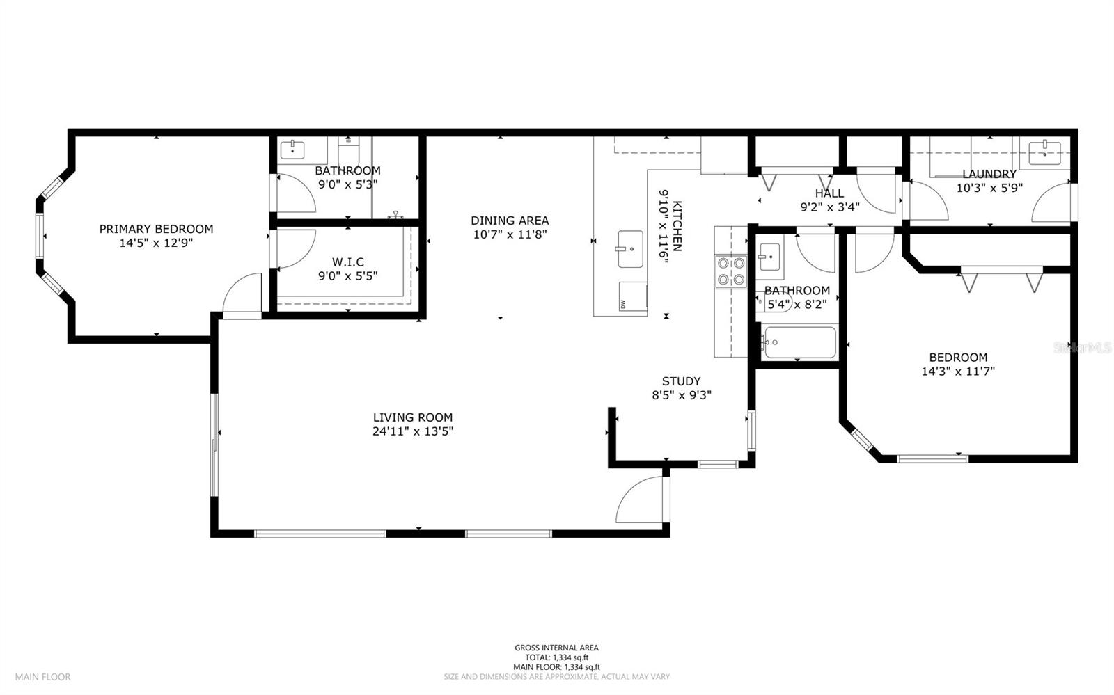
Fully Renovated Villa with New Roof & Impact Windows in Gated Venetia. Major updates make this villa truly stand out. Recent improvements include a 2025 NEW ROOF, hurricane-impact windows, luxury vinyl flooring throughout, updated appliances, Nest smart thermostat, new lanai screens, and a whole-house power surge protector—providing both modern style and peace of mind. This beautifully refreshed 2-bedroom, 2-bath villa with a 2-car attached garage lives like a brand-new home and offers the perfect blend of comfort and low-maintenance Florida living. The exterior has also been thoughtfully enhanced with an extended brick paver walkway leading from the front entry to the lanai, adding charm, convenience, and additional outdoor living appeal. Inside, the open layout feels bright and inviting, ideal for everyday living or seasonal enjoyment. For buyers seeking a turnkey option, furnishings are available for purchase separately, making this an easy move-in-ready opportunity. Located in the highly sought-after gated community of Venetia, residents enjoy resort-style amenities including a clubhouse, pool, spa, fitness center, tennis, pickleball, and an active social calendar. All of this is just minutes from Venice beaches, shopping, dining, and charming downtown Venice. Renovated, low-maintenance, and move-in ready—this villa delivers the Florida lifestyle buyers are looking for.
Property Details
Additional Information
Additional Parcels YN
false
Alternate Key Folio Num
0460080030
Appliances
Dishwasher, Disposal, Dryer, Electric Water Heater, Microwave, Range, Refrigerator, Washer
Approval Process
Application
Association Amenities
Gated, Pool
Association Approval Required YN
1
Association Email
brian@sunstatemanagement.com
Association Fee
600
Association Fee Frequency
Quarterly
Association Fee Includes
Cable TV, Pool, Escrow Reserves Fund, Maintenance Structure, Maintenance Grounds, Private Road, Recreational Facilities
Association Fee Requirement
Required
Association URL
www.sunstatemanagement.com
Association YN
true
Attached Garage YN
true
Available For Lease YN
1
Bathrooms Total Integer
2
Building Area Source
Public Records
Building Area Total
1958
Building Area Total Srch SqM
181.90
Building Area Units
Square Feet
Calculated List Price By Calculated SqFt
277.98
Carport YN
false
Community Features
Clubhouse, Community Mailbox, Deed Restrictions, Fitness Center, Gated Community - Guard, Golf, Pool
Complex Community Name NCCB
VENETIA
Construction Materials
Block, Stucco
Cooling
Central Air
Country
US
Cumulative Days On Market
145
Current Price
385000.00
Direction Faces
Northeast
Elementary School
Taylor Ranch Elementary
Fireplace YN
false
Flood Zone Code
X
Flooring
Luxury Vinyl
Foundation Details
Slab
Furnished
Negotiable
Garage Spaces
2
Garage YN
true
Heating
Electric
High School
Venice Senior High
Interior Features
Ceiling Fans(s), Open Floorplan, Solid Wood Cabinets, Split Bedroom, Stone Counters, Window Treatments
Internet Address Display YN
true
Internet Automated Valuation Display YN
false
Internet Consumer Comment YN
false
Internet Entire Listing Display YN
true
Laundry Features
Inside, Laundry Room
Levels
One
List AOR
Suncoast Tampa
Living Area Meters
128.67
Living Area Source
Public Records
Living Area Units
Square Feet
Lot Size Acres
0.09
Lot Size Square Feet
3900
Lot Size Square Meters
362
Middle Or Junior School
Venice Area Middle
Minimum Lease
3 Months
Modification Timestamp
2026-04-19T19:06:17.864Z
Monthly HOA Amount
200.00
New Construction YN
false
Occupant Type
Vacant
Other Equipment
Irrigation Equipment
Ownership
Fee Simple
Parcel Number
0460080030
Pets Allowed
Yes
Pool Private YN
false
Postal Code Plus 4
7089
Previous List Price
395000
Price Change Timestamp
2026-04-06T20:37:22.000Z
Public Survey Range
19E
Public Survey Section
34
RATIO Current Price By Calculated SqFt
277.98
Realtor Info
As-Is, No Sign, See Attachments
Road Surface Type
Asphalt
Roof
Tile
Room Count
6
SW Subdiv Community Name
Venetia
Senior Community YN
false
Sewer
Public Sewer
Showing Requirements
Supra Lock Box
Status Change Timestamp
2025-11-26T02:16:07.000Z
Stories Total
1
Tax Annual Amount
4173.85
Tax Legal Description
LOT 604, VENETIA PHASE 5
Tax Lot
604
Tax Year
2024
Total Acreage
0 to less than 1/4
Total Annual Fees
4424.00
Total Monthly Fees
368.67
Township
39S
Universal Property Id
US-12115-N-0460080030-R-N
Unparsed Address
4470 CORSO VENETIA BLVD
Utilities
Cable Connected, Electricity Connected, Public, Sewer Connected, Underground Utilities, Water Connected
Water Source
Public
Waterfront YN
false
Zoning
RSF4
Neighborhood Map
Popup

Property Photos
Listing Photo
Listing Photo
Listing Photo
Listing Photo
Listing Photo
Listing Photo
Listing Photo
Listing Photo
Listing Photo
Listing Photo
Listing Photo
Listing Photo
Listing Photo
Listing Photo
Listing Photo
Listing Photo
Listing Photo
Listing Photo
Listing Photo
Listing Photo
Listing Photo
Listing Photo
Listing Photo
Listing Photo
Listing Photo
Listing Photo
Listing Photo
Listing Photo
Listing Photo
Listing Photo
Listing Photo
Listing Photo
Listing Photo
Listing Photo
Listing Photo
Listing Photo
Listing Photo
Listing Photo
Listing Photo
Listing Photo
Listing Photo
Listing Photo
Listing Photo
Listing Photo
Listing Photo
Listing Photo
Listing Photo
Listing Photo
Listing Photo
Listing Photo
Listing Photo
Listing Photo
Listing Photo
Listing Photo
Listing Photo
Listing Photo
Listing Photo
Listing Photo
Listing Photo
Listing Photo
Listing Photo
Listing Photo
Listing Photo
Listing Photo
Listing Photo
Listing Photo
Listing Photo
Listing Photo
Listing Photo
Listing Photo
Listing Photo
Listing Photo
Listing Photo
Listing Photo
Listing Photo
Listing Photo
Listing Photo
Listing Photo
Listing Photo
Listing Photo
Listing Photo
Listing Photo
Listing Photo
Listing Photo
Listing Photo
Listing Photo
Listing Photo
Listing Photo
Listing Photo
Listing Photo
Listing Photo
Listing Photo
Listing Photo
Listing Photo
Listing Photo
Listing Photo
Listing Photo
Listing Photo
Listing Photo
Listing Photo
Listing Photo
Listing Photo
Listing Photo
Listing Photo
Listing Photo
Listing Photo
Listing Photo
Listing Photo
Listing Photo
Listing Photo
Listing Photo
Listing Photo
Listing Photo
Listing Photo
Listing Photo
Listing Photo
Listing Photo
Listing Photo
Listing Photo
Listing Photo
Listing Photo
Listing Photo
Listing Photo
Listing Photo
Listing Photo
Listing Photo
Listing Photo
Listing Photo
Listing Photo
Listing Photo
Listing Photo
Listing Photo
Listing Photo
Listing Photo
Listing Photo
Listing Photo
Listing Photo
Listing Photo
Listing Photo
Listing Photo
Listing Photo
Listing Photo
Listing Photo
Listing Photo
Listing Photo
Listing Photo
Listing Photo
Listing Photo
Listing Photo
Listing Photo
Listing Photo
Listing Photo
Listing Photo
Listing Photo

MLS #MFRN6141652 Listing courtesy of Homesmart provided by Stellar MLS.

Similar Listings

$348,000
260 Santa Maria Street
Venice
2BR/2BA
| Active
$349,000
20108 Pezzana Drive
Venice
2BR/2BA
| Pending
$349,000
17390 Moonflower Drive
Venice
2BR/2BA
| Active
$349,000
236 Cerromar S Way
Venice
2BR/2BA
| Active



All listing information is deemed reliable but not guaranteed and should be independently verified through personal inspection by appropriate professionals. Listings displayed on this website may be subject to prior sale or removal from sale; availability of any listing should always be independent verified. Listing information is provided for consumer personal, non-commercial use, solely to identify potential properties for potential purchase; all other use is strictly prohibited and may violate relevant federal and state law. The source of the listing data is as follows: Stellar MLS (updated 4/24/26 6:43 PM) |

Listing Search



Translate Tool

Featured Listings
Bradenton Real Estate
$929,000
5 BED
3 BATH
One of the best prices per square foot in Rosedale! Enjoy Active Living in Rosedale Golf & Country Club--Welcome to one ... Read More
Bradenton Real Estate
$849,000
4 BED
3 BATH
Discover Waterfront living in The Inlets at Riverdale, one of Bradenton’s most sought-after boating communities with Gul... Read More
Clearwater Real Estate
$899,000
2 BED
2 BATH
Welcome to Water’s Edge, a premier luxury condominium complex in the heart of Downtown Clearwater, offering refined wate... Read More
Wesley Chapel Real Estate
$1,199,000
6 BED
5 BATH
***WHERE LUXURY, LOCATION & LIFESTYLE ALIGN: THIS ELEGANT TURNKEY POOL HOME DELIVERS SPACE, SOPHISTICATION, AND TRULY CH... Read More
Orlando Real Estate
$835,000
3 BED
2 BATH
Fantastic opportunity to purchase a home in the highly desirable Spring Lake Terrace neighborhood adjacent to the Orland... Read More
Newberry Real Estate
$1,098,067
5 BED
3 BATH
Welcome to a rare opportunity in Lakota, an exclusive, sold-out gated enclave of just 15 homesites where privacy, nature... Read More
Orlando Real Estate
$949,000
4 BED
3 BATH
(Pictures coming soon!)Presenting a sophisticated 4-bedroom, 3.1-bath residence situated within the prestigious gated co... Read More
Bradenton Real Estate
$1,200,000
6 BED
4 BATH
Under contract-accepting backup offers. Your tee time starts at home. Welcome to one of the finest golf-front estates in... Read More
St Petersburg Real Estate
$899,000
3 BED
3 BATH
Stunning Modern New Construction Near Downtown St. Petersburg & the Beaches Welcome to this exceptional brand-new modern... Read More
Palm Harbor Real Estate
$850,000
4 BED
3 BATH
This BEAUTIFULLY-UPDATED home in the heart of East Lake’s much-loved community of Lansbrook is WARM and WELCOMING from t... Read More
Contact Sandra Pardo

407-990-2746

Wendy Morris LLC

Licensed in the State of Florida
BK 3146762
16797 Broadwater Avenue
Winter Garden, Florida 34787

Your privacy is our utmost concern. We will never sell your personal information. Privacy Policy
©2026 sandrapardohomes.com - all rights reserved. | Site Map