407-990-2746
Menu

405 Nw 123rd Street, Newberry, FL

NEXT
PREV
$339,900

($206/sqft)

List Status: Active
405 Nw 123rd Street
Newberry, FL 32669


4 beds
3 baths
1652 living sqft
Top Features
  • View: Trees/Woods
  • Subdivision: West End Estates
  • Built in  1974
  • Single Family Residence
Description
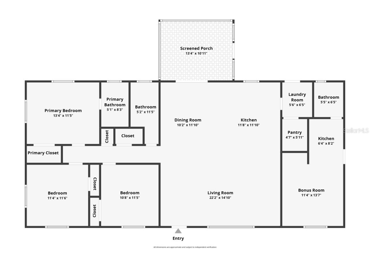
Seller will install a new roof with acceptable offer prior to closing. Updated 4-bedroom, 3-bath home on a spacious .94-acre lot in the NW side of town! The kitchen features quartz countertops, stainless steel appliances, a new sink, updated LED lighting, and modern plumbing fixtures. Luxury vinyl plank flooring runs throughout the home. The guest bathroom has been remodeled with a new vanity, shower tile, and tub. The 4th bedroom (no closet) and 3rd bath make up an attached in-law suite with a private entrance. The main house includes indoor laundry and a walk-in pantry. Enjoy the rear screened porch and large wood deck overlooking the expansive .94-acre lot. Additional updates include updated windows, HVAC replaced in 2014, water heater replaced in 2023 and a roof replaced in 2008. No HOA so bring your boat, RV & toys! Plenty of room to build a detached garage, workshop or carport. Paved road. Utilities include Clay Electric, GRU water, and septic. Conveniently located near Tioga Town Center, Publix Marketplace, Santa Fe College, North Florida Hospital, and numerous shopping and dining options. Currently zoned for Meadowbrook elementary, Kanapaha Middle school and Buchholz High school. Survey available.
Property Details
Additional Information
Additional Parcels YN
false
Additional Rooms
Bonus Room, Inside Utility, Interior In-Law Suite w/Private Entry
Appliances
Dishwasher, Disposal, Electric Water Heater, Microwave, Range, Refrigerator
Architectural Style
Ranch
Association YN
false
Available For Lease YN
1
Bathrooms Total Integer
3
Building Area Source
Public Records
Building Area Total
1652
Building Area Total Srch SqM
153.48
Building Area Units
Square Feet
Calculated List Price By Calculated SqFt
205.75
Carport YN
false
Community Features
Street Lights
Construction Materials
Vinyl Siding
Cooling
Central Air
Country
US
Cumulative Days On Market
145
Current Price
339900.00
Direction Faces
West
Elementary School
Meadowbrook Elementary School-AL
Exterior Features
French Doors
Fencing
Other, Wood
Fireplace YN
false
Flood Zone Code
X
Flooring
Luxury Vinyl, Tile
Foundation Details
Slab
Furnished
Unfurnished
Garage YN
false
Heating
Central, Electric
High School
F. W. Buchholz High School-AL
Homestead YN
1
Interior Features
Ceiling Fans(s), Open Floorplan, Solid Surface Counters, Thermostat, Window Treatments
Internet Address Display YN
true
Internet Automated Valuation Display YN
false
Internet Consumer Comment YN
true
Internet Entire Listing Display YN
true
Laundry Features
Electric Dryer Hookup, Inside, Laundry Room, Washer Hookup
Levels
One
List AOR
Gainesville-Alachua
Living Area Meters
153.48
Living Area Source
Public Records
Living Area Units
Square Feet
Lot Features
In County, Level, Paved
Lot Size Acres
0.94
Lot Size Square Feet
40400
Lot Size Square Meters
3753
Middle Or Junior School
Kanapaha Middle School-AL
Minimum Lease
No Minimum
Modification Timestamp
2026-03-24T17:01:24.236Z
New Construction YN
false
Number Of Septics
1
Number Of Wells
1
Occupant Type
Owner
Ownership
Fee Simple
Parcel Number
04337-024-000
Patio And Porch Features
Deck, Rear Porch, Screened
Pets Allowed
Cats OK, Dogs OK, Yes
Pool Private YN
false
Postal Code Plus 4
3007
Previous List Price
349900
Price Change Timestamp
2026-03-24T17:01:06.000Z
Public Survey Range
18
Public Survey Section
02
RATIO Current Price By Calculated SqFt
205.75
Realtor Info
Owner Will Assist with closing costs
Road Responsibility
Public Maintained Road
Road Surface Type
Asphalt, Paved
Roof
Shingle
Room Count
9
Senior Community YN
false
Sewer
Septic Tank
Showing Requirements
Call Before Showing, See Remarks
Status Change Timestamp
2025-10-30T11:45:20.000Z
Tax Annual Amount
3709
Tax Block
0/0
Tax Book Number
4945/1543
Tax Legal Description
WEST END ESTATES PB E-31 LOT 24 OR 890/812
Tax Lot
24
Tax Year
2025
Total Acreage
1/2 to less than 1
Total Annual Fees
0.00
Total Monthly Fees
0.00
Township
10
Universal Property Id
US-12001-N-04337024000-R-N
Unparsed Address
405 NW 123RD ST
Utilities
Cable Available, Electricity Available, Electricity Connected, Fiber Optics, Public, Water Available, Water Connected
Water Source
Public
Waterfront YN
false
Window Features
Blinds, Double Pane Windows
Zoning
R-1A
Neighborhood Map
Popup

Property Photos
Listing Photo
Listing Photo
Listing Photo
Listing Photo
Listing Photo
Listing Photo
Listing Photo
Listing Photo
Listing Photo
Listing Photo
Listing Photo
Listing Photo
Listing Photo
Listing Photo
Listing Photo
Listing Photo
Listing Photo
Listing Photo
Listing Photo
Listing Photo
Listing Photo
Listing Photo
Listing Photo
Listing Photo
Listing Photo
Listing Photo
Listing Photo
Listing Photo
Listing Photo
Listing Photo
Listing Photo
Listing Photo
Listing Photo
Listing Photo
Listing Photo
Listing Photo
Listing Photo
Listing Photo
Listing Photo
Listing Photo
Listing Photo
Listing Photo
Listing Photo
Listing Photo
Listing Photo
Listing Photo
Listing Photo
Listing Photo
Listing Photo
Listing Photo
Listing Photo
Listing Photo
Listing Photo
Listing Photo
Listing Photo
Listing Photo
Listing Photo
Listing Photo
Listing Photo
Listing Photo
Listing Photo
Listing Photo
Listing Photo
Listing Photo
Listing Photo
Listing Photo
Listing Photo
Listing Photo
Listing Photo
Listing Photo
Listing Photo
Listing Photo
Listing Photo
Listing Photo
Listing Photo
Listing Photo
Listing Photo
Listing Photo
Listing Photo
Listing Photo
Listing Photo
Listing Photo
Listing Photo
Listing Photo
Listing Photo
Listing Photo
Listing Photo
Listing Photo
Listing Photo
Listing Photo

MLS #MFRGC535077 Listing courtesy of Watson Realty Corp provided by Stellar MLS.

Similar Listings

$346,990
24239 Nw 13th Boulevard
Newberry
4BR/3BA
| Active
$346,990
24267 Nw 13th Boulevard
Newberry
4BR/3BA
| Active
$349,990
1221 Nw 242nd Drive
Newberry
4BR/3BA
| Active
$349,990
24225 Nw 13th Boulevard
Newberry
4BR/3BA
| Active



All listing information is deemed reliable but not guaranteed and should be independently verified through personal inspection by appropriate professionals. Listings displayed on this website may be subject to prior sale or removal from sale; availability of any listing should always be independent verified. Listing information is provided for consumer personal, non-commercial use, solely to identify potential properties for potential purchase; all other use is strictly prohibited and may violate relevant federal and state law. The source of the listing data is as follows: Stellar MLS (updated 4/3/26 2:33 PM) |

Listing Search



Translate Tool

Featured Listings
Oviedo Real Estate
$1,025,000
4 BED
3 BATH
Private. Private. Private. The perfect family home. This is a rare opportunity. Designed for elevated living Tucked away... Read More
Winter Garden Real Estate
$1,350,000
5 BED
4 BATH
Canopy Oaks, located in Winter Garden, Florida, is a unique blend of high-end luxury homes and suburban tranquillity. Th... Read More
Terra Ceia Real Estate
$1,265,000
4 BED
3 BATH
Tucked away on one of Terra Ceia’s most unique and sought-after streets, this exceptional Horseshoe Loop estate captures... Read More
Englewood Real Estate
$1,350,000
3 BED
3 BATH
One or more photo(s) has been virtually staged. Check out the new interior photos of this wonderful property. A truly RA... Read More
Apollo Beach Real Estate
$1,399,000
5 BED
4 BATH
Refined Coastal Luxury in MiraBay — Lagoon Lot with Designer Upgrades & Resort-Style Outdoor Living. Welcome to an excep... Read More
Sarasota Real Estate
$1,135,000
6 BED
5 BATH
A grand 5,077 sq. ft. multigenerational residence awaits in the highly sought-after community of Arbor Lakes in the hear... Read More
Apollo Beach Real Estate
$999,220
4 BED
3 BATH
Our award winning single-story Florenzo floor plan boasts 4 bedrooms, 3 1/2 baths, a spacious flex room, large pavered l... Read More
St Petersburg Real Estate
$1,250,000
3 BED
2 BATH
Why wait to build or rehab when you can *Move Right In* this Beautiful Venetian Isles Waterfront Pool Home on the Point ... Read More
Treasure Island Real Estate
$999,900
3 BED
2 BATH
Opportunity meets value on Paradise Island! Located on a quiet cul-de-sac in Treasure Island, this waterfront property s... Read More
New Smyrna Beach Real Estate
$1,299,000
6 BED
4 BATH
Enjoy tranquil water views, including a glimpse of the iconic Ponce Inlet Lighthouse with amazing views from the primary... Read More
Contact Sandra Pardo

407-990-2746

Wendy Morris LLC

Licensed in the State of Florida
BK 3146762
16797 Broadwater Avenue
Winter Garden, Florida 34787

Your privacy is our utmost concern. We will never sell your personal information. Privacy Policy
©2026 sandrapardohomes.com - all rights reserved. | Site Map