407-990-2746
Menu

24239 Nw 13th Boulevard, Newberry, FL

NEXT
PREV
$346,990

($177/sqft)

List Status: Active
24239 Nw 13th Boulevard
Newberry, FL 32669


4 beds
3 baths
1956 living sqft
Top Features
  • Subdivision: Avalon Woods
  • Built in  2026
  • Single Family Residence
Description
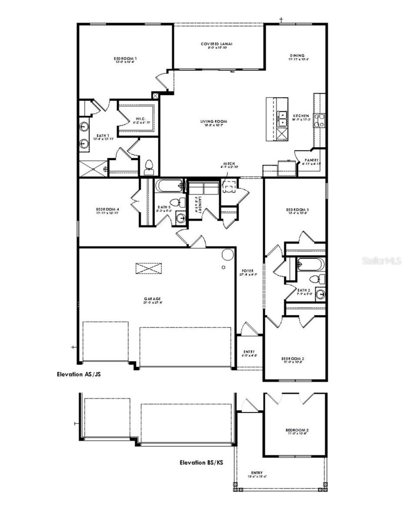
One or more photo(s) has been virtually staged. Under Construction. The Madison is a thoughtfully designed 3-car garage home with an inviting open-concept layout perfect for all families. As you enter the foyer, you're greeted with two guest bedrooms and a shared guest bathroom. Across the hallway you will find the laundry room, linen closet, and a third guest bedroom complete with an ensuite bathroom. Heading into the kitchen, there is a large kitchen island with quartz countertops, stainless-steel appliances, and a spacious walk-in pantry. The kitchen overlooks the great room and dining area flowing into the outdoor covered lanai. Next to the living room is the primary bedroom with a double vanity, quartz countertops, and two closets. Bedroom four has an ensuite bathroom and is located next to the designated laundry room. The Madison is the epitome of modern living and includes a state-of-the-art smart home system. Pictures, photographs, colors, features, and sizes are for illustration purposes only and will vary from the homes as built. Home and community information including pricing, included features, terms, availability and amenities are subject to change and prior sale at any time without notice or obligation. CRC057592.
Property Details
Additional Information
Additional Lease Restrictions
Per HOA Guidelines
Additional Parcels YN
false
Appliances
Dishwasher, Microwave, Range
Approval Process
Per HOA Guidelines
Association Approval Required YN
1
Association Email
Kburch@gainesvillegam.com
Association Fee
100
Association Fee Frequency
Monthly
Association Fee Requirement
Required
Association YN
true
Attached Garage YN
true
Available For Lease YN
1
Bathrooms Total Integer
3
Builder License Number
CRC 057592
Builder Model
Madison
Builder Name
DR Horton INC
Building Area Source
Builder
Building Area Total
1956
Building Area Total Srch SqM
181.72
Building Area Units
Square Feet
Calculated List Price By Calculated SqFt
177.40
Carport YN
false
Construction Materials
Frame
Cooling
Central Air
Country
US
Cumulative Days On Market
13
Current Price
346990.00
Direction Faces
West
Elementary School
Newberry Elementary School-AL
Fireplace YN
false
Flood Zone Code
X
Flooring
Carpet, Luxury Vinyl
Foundation Details
Slab
Furnished
Unfurnished
Garage Spaces
3
Garage YN
true
Heating
Central, Heat Pump
High School
Newberry High School-AL
Home Warranty YN
true
Interior Features
Open Floorplan
Internet Address Display YN
true
Internet Automated Valuation Display YN
true
Internet Consumer Comment YN
false
Internet Entire Listing Display YN
true
Laundry Features
Laundry Room
Lease Restrictions YN
1
Levels
One
List AOR
Ocala - Marion
Living Area Meters
181.72
Living Area Source
Builder
Living Area Units
Square Feet
Lot Size Acres
0.17
Lot Size Square Feet
7405
Lot Size Square Meters
688
Middle Or Junior School
Oak View Middle School
Minimum Lease
7 Months
Modification Timestamp
2026-03-03T17:08:18.241Z
Monthly HOA Amount
100.00
New Construction YN
true
Occupant Type
Vacant
Other Equipment
Irrigation Equipment
Ownership
Fee Simple
Parcel Number
01874-401-522
Permit Number
25-0671
Pet Restrictions
Per HOA Guidelines
Pets Allowed
Yes
Pool Private YN
false
Previous List Price
349070
Price Change Timestamp
2026-03-03T17:07:30.000Z
Projected Completion Date
2026-06-25T00:00:00.000
Property Condition
Under Construction
Public Survey Range
17
Public Survey Section
34
RATIO Current Price By Calculated SqFt
177.40
Road Surface Type
Paved
Roof
Shingle
Room Count
3
Senior Community YN
false
Sewer
Public Sewer
Showing Requirements
Contact Call Center
Status Change Timestamp
2026-02-18T13:35:55.000Z
Tax Block
-
Tax Book Number
40/35
Tax Legal Description
AVALON WOODS PH 4B PB 40 PG 35 LOT 522 OR 5242/3495
Tax Lot
522
Tax Year
2025
Total Acreage
0 to less than 1/4
Total Annual Fees
1200.00
Total Monthly Fees
100.00
Township
09
Universal Property Id
US-12001-N-01874401522-R-N
Unparsed Address
24239 NW 13TH BLVD
Utilities
Other
Water Source
Public
Waterfront YN
false
Zoning
PUD
Neighborhood Map
Popup

Property Photos
Listing Photo
Listing Photo
Listing Photo
Listing Photo
Listing Photo
Listing Photo
Listing Photo
Listing Photo
Listing Photo
Listing Photo
Listing Photo
Listing Photo
Listing Photo
Listing Photo
Listing Photo
Listing Photo
Listing Photo
Listing Photo
Listing Photo
Listing Photo
Listing Photo
Listing Photo
Listing Photo
Listing Photo
Listing Photo
Listing Photo
Listing Photo
Listing Photo
Listing Photo
Listing Photo
Listing Photo
Listing Photo
Listing Photo
Listing Photo
Listing Photo
Listing Photo
Listing Photo
Listing Photo
Listing Photo
Listing Photo
Listing Photo
Listing Photo
Listing Photo
Listing Photo
Listing Photo
Listing Photo

MLS #MFROM719061 Listing courtesy of Dr Horton Realty Of West Central Florida provided by Stellar MLS.

Similar Listings

$339,900
405 Nw 123rd Street
Newberry
4BR/3BA
| Active
$346,990
24267 Nw 13th Boulevard
Newberry
4BR/3BA
| Active
$349,990
1221 Nw 242nd Drive
Newberry
4BR/3BA
| Active
$349,990
24225 Nw 13th Boulevard
Newberry
4BR/3BA
| Active



All listing information is deemed reliable but not guaranteed and should be independently verified through personal inspection by appropriate professionals. Listings displayed on this website may be subject to prior sale or removal from sale; availability of any listing should always be independent verified. Listing information is provided for consumer personal, non-commercial use, solely to identify potential properties for potential purchase; all other use is strictly prohibited and may violate relevant federal and state law. The source of the listing data is as follows: Stellar MLS (updated 4/3/26 1:33 PM) |

Listing Search



Translate Tool

Featured Listings
St Petersburg Real Estate
$1,149,000
4 BED
3 BATH
Welcome to 2348 2nd Ave S! Imagine owning a private, single-family sanctuary at the epicenter of St. Petersburg’s most e... Read More
Lakewood Ranch Real Estate
$819,900
4 BED
3 BATH
Priced $20K BELOW appraisal! This home has been impeccably maintained and is in pristine, move-in-ready condition-truly ... Read More
Orlando Real Estate
$899,900
4 BED
3 BATH
CONSTRUCTION COMPLETE! Welcome to The Kauai, where bold design meets everyday livability in the heart of Lake Nona’s Lau... Read More
Longboat Key Real Estate
$850,000
3 BED
3 BATH
Embrace the island life style within the gates of Longboat Key's premier resort community of Bay Isles. You'll love this... Read More
Venice Real Estate
$925,350
4 BED
3 BATH
Welcome to the Costa Mesa at Oakbend, where thoughtful design meets everyday luxury in a boutique Wellen Park setting. T... Read More
Holmes Beach Real Estate
$1,270,000
2 BED
2 BATH
Steps to the Beach: A Deluxe Retreat with Massive Rental Power! Why choose between a vacation home and a smart investmen... Read More
Dade City Real Estate
$1,081,842
4 BED
4 BATH
A rare blend of privacy, elegance, and effortless modern living, without the wait. Welcome to The Monica, a showcase of ... Read More
Orlando Real Estate
$1,085,000
4 BED
3 BATH
WATERFRONT!!Welcome to this beautifully designed 4 bedroom, 3 1/2 bath with office, Baldwin Park home on a corner lot wi... Read More
Oviedo Real Estate
$1,375,000
6 BED
5 BATH
Welcome to Ravencliffe, a private gated enclave in the heart of Oviedo. Located off Alafaya Trail and Lake Hayes Road, t... Read More
Ocala Real Estate
$1,050,000
4 BED
3 BATH
Under contract-accepting backup offers. Exceptional opportunity in a premier, gated equestrian community located in the ... Read More
Contact Sandra Pardo

407-990-2746

Wendy Morris LLC

Licensed in the State of Florida
BK 3146762
16797 Broadwater Avenue
Winter Garden, Florida 34787

Your privacy is our utmost concern. We will never sell your personal information. Privacy Policy
©2026 sandrapardohomes.com - all rights reserved. | Site Map