407-990-2746
Menu

3904 Country View Court, Bradenton, FL

NEXT
PREV
$849,900

($338/sqft)

List Status: Active
3904 Country View Court
Bradenton, FL 34211


4 beds
3 baths
2517 living sqft
Top Features
  • Subdivision: Star Farms
  • Built in  2026
  • Single Family Residence
Description
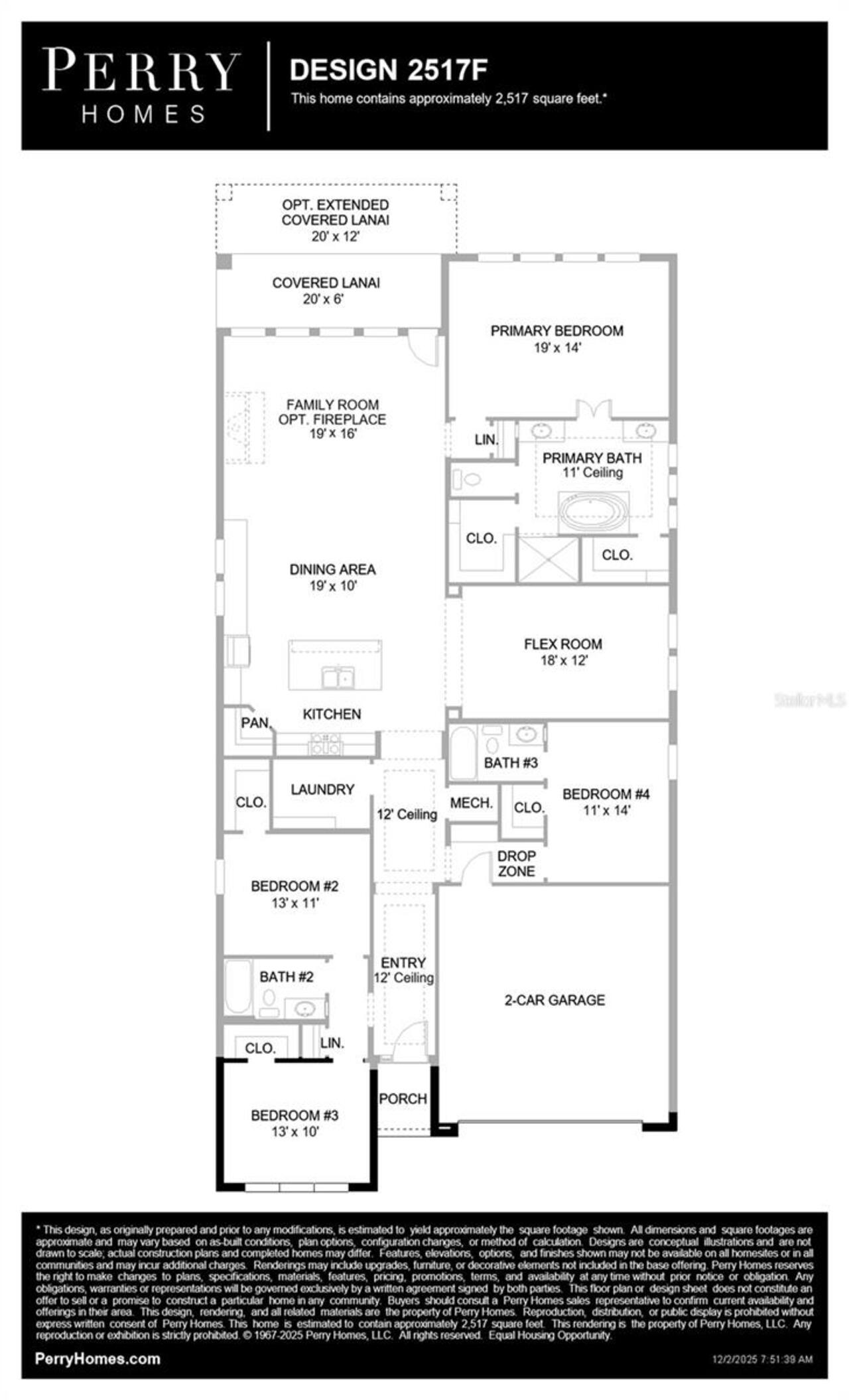
Under Construction. The front porch opens into a welcoming entryway with an extended tray ceiling that embraces the main hallway. Two secondary bedrooms with walk-in closets and full bathroom are off the main hall. A full guest suite with a private bathroom and ample closet space is adjacent. You pass the laundry room as you enter into the kitchen which features an island with built-in seating, a 5-burner gas cooktop, and corner pantry. A bonus flex room is across from the kitchen. The dining area flows from the kitchen to the connecting family room which offers abundance of natural light from its sliding glass doors and access to the backyard extended covered lanai. The primary bedroom has a wall of windows overlooking the backyard. Double doors lead into the bathroom which hosts dual vanities, a freestanding tub, glass enclosed shower and two walk-in closets. The drop zone is off the two-car garage.
Property Details
Additional Information
Additional Lease Restrictions
Please inquire about the HOA rules.
Additional Parcels YN
false
Appliances
Built-In Oven, Cooktop, Dishwasher, Disposal, Microwave, Tankless Water Heater
Approval Process
Please inquire about the HOA rules.
Association Approval Required YN
1
Association Fee
259.95
Association Fee Frequency
Monthly
Association Fee Requirement
Required
Association YN
true
Attached Garage YN
true
Available For Lease YN
1
Bathrooms Total Integer
3
Builder License Number
CQ1072019
Builder Model
2517
Builder Name
Perry Homes
Building Area Source
Builder
Building Area Total
3117
Building Area Total Srch SqM
289.58
Building Area Units
Square Feet
CDDYN
1
Calculated List Price By Calculated SqFt
337.66
Carport YN
false
Construction Materials
Block, Frame
Cooling
Central Air
Country
US
Current Price
849900.00
Direction Faces
East
Elementary School
Gullett Elementary
Exterior Features
Sliding Doors
Fireplace YN
false
Flood Zone Code
X
Flooring
Tile, Wood
Foundation Details
Slab
Furnished
Unfurnished
Garage Spaces
2
Garage YN
true
Heating
Electric
High School
Lakewood Ranch High
Interior Features
High Ceilings, Tray Ceiling(s), Walk-In Closet(s)
Internet Address Display YN
true
Internet Automated Valuation Display YN
false
Internet Consumer Comment YN
false
Internet Entire Listing Display YN
true
Laundry Features
Laundry Room
Lease Restrictions YN
1
Levels
One
List AOR
Suncoast Tampa
Living Area Meters
233.84
Living Area Source
Builder
Living Area Units
Square Feet
Lot Size Acres
0.17
Lot Size Square Feet
7528
Lot Size Square Meters
699
Middle Or Junior School
Dr Mona Jain Middle
Minimum Lease
8-12 Months
Modification Timestamp
2026-04-22T01:37:14.100Z
Monthly HOA Amount
259.95
New Construction YN
true
Num Of Own Years Prior To Lease
2
Occupant Type
Vacant
Ownership
Fee Simple
Parcel Number
305963509
Permit Number
NA
Pet Restrictions
Please inquire about the HOA rules.
Pets Allowed
Yes
Pool Private YN
false
Projected Completion Date
2026-09-30T00:00:00.000
Property Attached YN
false
Property Condition
Under Construction
Public Survey Range
20
Public Survey Section
06
RATIO Current Price By Calculated SqFt
337.66
Road Surface Type
Paved
Roof
Tile
Room Count
7
SW Subdiv Community Name
Not Applicable
Senior Community YN
false
Sewer
Public Sewer
Showing Requirements
Appointment Only, Call Listing Office
Status Change Timestamp
2026-04-21T18:51:56.000Z
Tax Annual Amount
2253.79
Tax Book Number
83/1
Tax Legal Description
LOT 270 SADDLESTONE AT STAR FARMS LAKEWOOD RANCH PH I SUBPH A-D PI#3059.6350/9
Tax Lot
270
Tax Other Annual Assessment Amount
2023
Tax Year
2025
Total Acreage
0 to less than 1/4
Total Annual Fees
6238.80
Total Monthly Fees
519.90
Township
35
Universal Property Id
US-12081-N-305963509-R-N
Unparsed Address
3904 COUNTRY VIEW CT
Utilities
Natural Gas Available, Public
Water Source
Public
Waterfront YN
false
Years Of Owner Prior To Leasing Req YN
1
Zoning
RESIDENTIA
Neighborhood Map
Popup

Property Photos
Listing Photo
Listing Photo
Listing Photo
Listing Photo
Listing Photo
Listing Photo
Listing Photo
Listing Photo
Listing Photo
Listing Photo
Listing Photo
Listing Photo
Listing Photo
Listing Photo
Listing Photo
Listing Photo
Listing Photo
Listing Photo
Listing Photo
Listing Photo
Listing Photo
Listing Photo
Listing Photo
Listing Photo
Listing Photo
Listing Photo
Listing Photo
Listing Photo
Listing Photo
Listing Photo
Listing Photo
Listing Photo
Listing Photo
Listing Photo
Listing Photo
Listing Photo
Listing Photo
Listing Photo
Listing Photo
Listing Photo
Listing Photo
Listing Photo
Listing Photo
Listing Photo
Listing Photo
Listing Photo
Listing Photo
Listing Photo
Listing Photo
Listing Photo

MLS #MFRTB8500283 Listing courtesy of Perry Homes provided by Stellar MLS.

Similar Listings

$765,000
16524 Paynes Mill Drive
Bradenton
4BR/3BA
| Active
$775,000
3431 Big Sky Way
Bradenton
4BR/3BA
| Pending
$775,000
4415 60th Street W Court
Bradenton
4BR/3BA
| Active
$775,000
16411 Slate Place
Bradenton
4BR/3BA
| Pending



All listing information is deemed reliable but not guaranteed and should be independently verified through personal inspection by appropriate professionals. Listings displayed on this website may be subject to prior sale or removal from sale; availability of any listing should always be independent verified. Listing information is provided for consumer personal, non-commercial use, solely to identify potential properties for potential purchase; all other use is strictly prohibited and may violate relevant federal and state law. The source of the listing data is as follows: Stellar MLS (updated 4/21/26 11:21 PM) |

Listing Search



Translate Tool

Featured Listings
New Port Richey Real Estate
$1,290,000
5 BED
4 BATH
One or more photo(s) has been virtually staged. Exceptional Gulf Harbors Waterfront Estate with 221’ of Deep-Water Docka... Read More
Plant City Real Estate
$1,200,000
5 BED
4 BATH
LARGE LOT - 4.9 Acres with Beautifull Newly Built Pool Home, 5bd 4bath Plus Bonus Room, 2+Car Garage, Heated Pool, 3044s... Read More
Clermont Real Estate
$1,200,000
5 BED
4 BATH
One or more photo(s) has been virtually staged. Welcome to a rare opportunity in the prestigious Magnolia Island communi... Read More
Apollo Beach Real Estate
$998,000
5 BED
5 BATH
Luxurious 5-Bedroom Estate in Guard-Gated Andalucia – Oversized Boat Slip Included! Motivated Seller! Welcome to this ex... Read More
Lakewood Ranch Real Estate
$949,000
4 BED
3 BATH
Set on a quiet cul-de-sac street in gated Country Club East, this lakefront residence offers a refined blend of comfort,... Read More
Punta Gorda Real Estate
$949,000
4 BED
3 BATH
Under contract-accepting backup offers. Private 5 acre estate in Punta Gorda offering exceptional space, privacy, and ve... Read More
Sorrento Real Estate
$875,000
3 BED
3 BATH
Lake and golf views! Breathtaking panoramic views from nearly every room define this beautiful 2018 custom-built 3 bedro... Read More
The Villages Real Estate
$1,499,999
3 BED
2 BATH
Modern LUXURY is Redefined in this Modified WILLIAMSBURG Premier located in the COVETED Bridgeport at Lake Sumter Landin... Read More
Orlando Real Estate
$1,100,000
3 BED
2 BATH
One or more photo(s) has been virtually staged. Nestled in the heart of the highly coveted Baldwin Park community, this ... Read More
Ponte Vedra Real Estate
$1,080,000
4 BED
3 BATH
Set on a rare 100-ft lot in Twenty Mile, this well-appointed 4-bedroom pool home features thoughtful upgrades and effort... Read More
Contact Sandra Pardo

407-990-2746

Wendy Morris LLC

Licensed in the State of Florida
BK 3146762
16797 Broadwater Avenue
Winter Garden, Florida 34787

Your privacy is our utmost concern. We will never sell your personal information. Privacy Policy
©2026 sandrapardohomes.com - all rights reserved. | Site Map