407-990-2746
Menu

311 59th Street Unit: Unit: A, Holmes Beach, FL

NEXT
PREV
$1,380,000

($909/sqft)

List Status: Active
311 59th Street
Holmes Beach, FL 34217


3 beds
2 baths
1518 living sqft
Top Features
  • Subdivision: Holmes Beach 15th Unit
  • Built in  2027
  • Single Family Residence
Description
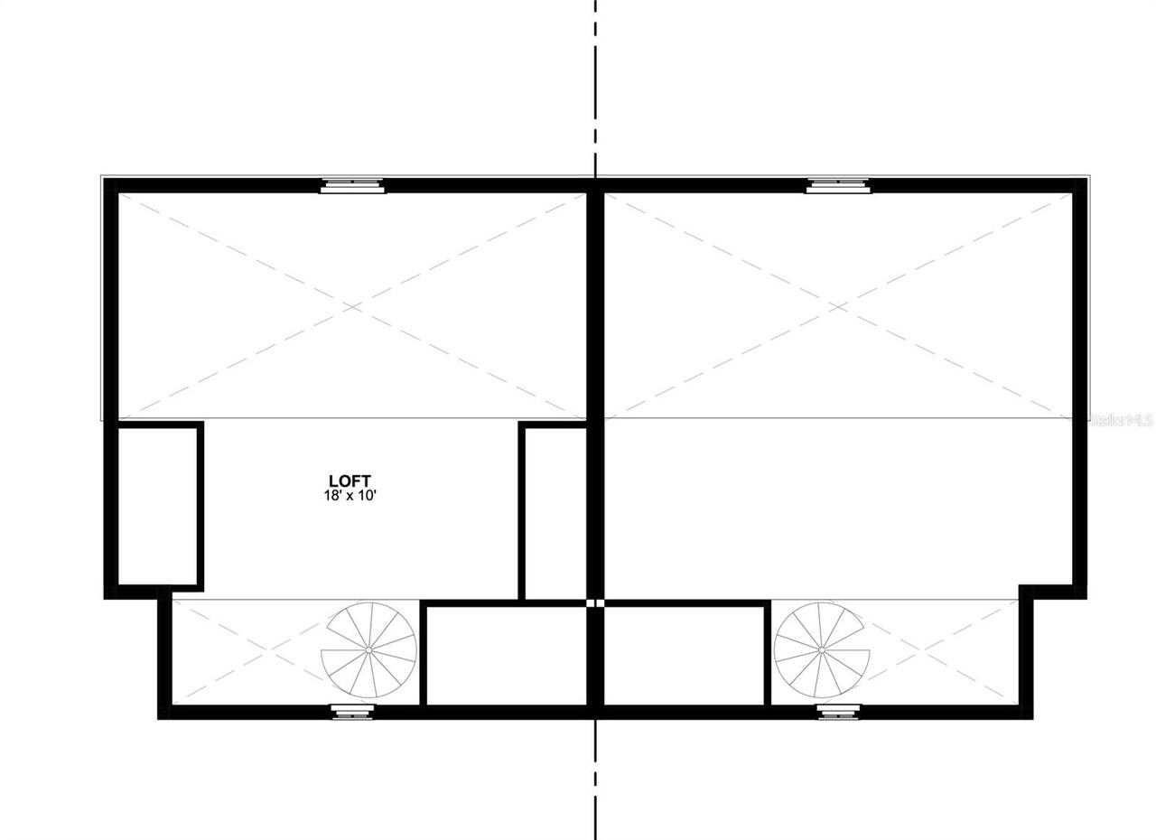
Pre-Construction. To be built. 45% down, 10% at drywall, the rest not due until Certificate of Occupancy, and a $10000 closing cost credit for the first buyer to move forward. A big splash for Green Street Builders into the Holmes Beach market. They bring 35+ years of experience, and refreshing coastal elegance at a more affordable price point. Not everyone has $10 million for a beach home, we think you'll like these offerings. This plan has 4 defined sleeping areas per side (including an open air loft), high-functionality, and open concept design with cathedral-like ceilings. Quartz waterfall counters, modern sleek cabinets, lots of glass. Same stuff everyone likes in new construction, just more obtainable. We step outside to the deck overlooking the pool area. Under-roof, a massive, shaded entertaining space. Room for Ping Pong, dining, other games, a great TV set up, lounging, or however you see it. It's a lush, tropical, vacation themed setting for you to enjoy... or for your guests to come back to year after year. See all bedrooms and living areas in attached floor plan.
Property Details
Additional Information
Additional Parcels YN
false
Additional Rooms
Loft
Alternate Key Folio Num
7227500001
Appliances
Dishwasher, Disposal, Dryer, Freezer, Microwave, Range, Refrigerator, Washer
Association YN
false
Attached Garage YN
true
Available For Lease YN
1
Bathrooms Total Integer
2
Builder Name
Green Street Home Builders
Building Area Source
Builder
Building Area Total
2846
Building Area Total Srch SqM
264.40
Building Area Units
Square Feet
Calculated List Price By Calculated SqFt
909.09
Carport YN
false
Construction Materials
Block
Cooling
Central Air
Country
US
Cumulative Days On Market
63
Current Price
1380000.00
Direction Faces
North
Exterior Features
Balcony, Lighting, Sliding Doors, Storage
Fireplace YN
false
Flood Zone Code
AE
Flood Zone Date
2021-08-10
Flood Zone Panel
12081C0139F
Flooring
Tile
Foundation Details
Slab
Furnished
Unfurnished
Garage Spaces
2
Garage YN
true
Heating
Central
Interior Features
Ceiling Fans(s), High Ceilings, Open Floorplan, Solid Wood Cabinets, Vaulted Ceiling(s)
Internet Address Display YN
true
Internet Automated Valuation Display YN
true
Internet Consumer Comment YN
true
Internet Entire Listing Display YN
true
Laundry Features
Inside
Levels
Two
List AOR
Sarasota - Manatee
Living Area Meters
141.03
Living Area Source
Builder
Living Area Units
Square Feet
Lot Size Acres
0.11
Lot Size Dimensions
45x100
Lot Size Square Feet
4500
Lot Size Square Meters
418
Minimum Lease
1 Week
Modification Timestamp
2026-04-15T20:07:13.645Z
New Construction YN
true
Occupant Type
Owner
Ownership
Fee Simple
Parcel Number
7227500001
Pool Private YN
false
Postal Code Plus 4
1549
Previous List Price
1395000
Price Change Timestamp
2026-04-15T17:55:26.000Z
Projected Completion Date
2027-02-11T00:00:00.000
Property Condition
Pre-Construction
Public Survey Range
16E
Public Survey Section
20
RATIO Current Price By Calculated SqFt
909.09
Road Surface Type
Asphalt
Roof
Metal
Room Count
3
SW Subdiv Community Name
Holmes Beach
Senior Community YN
false
Sewer
Public Sewer
Showing Requirements
Go Direct
Status Change Timestamp
2026-02-11T15:31:44.000Z
Stories Total
2
Tax Annual Amount
1
Tax Block
R
Tax Book Number
8-89
Tax Legal Description
LOT 11 BLK R HOLMES BEACH FIFTEENTH UNIT PI#72275.0000/1
Tax Lot
11
Tax Year
2025
Total Acreage
0 to less than 1/4
Total Annual Fees
0.00
Total Monthly Fees
0.00
Township
34S
Universal Property Id
US-12081-N-7227500001-S-A
Unparsed Address
311 59TH ST #A
Utilities
BB/HS Internet Available, Cable Available, Public
Water Source
Public
Waterfront YN
false
Zoning
R2
Neighborhood Map
Popup

Property Photos
Listing Photo
Listing Photo
Listing Photo
Listing Photo
Listing Photo
Listing Photo
Listing Photo
Listing Photo
Listing Photo
Listing Photo
Listing Photo
Listing Photo
Listing Photo
Listing Photo
Listing Photo
Listing Photo

MLS #MFRA4682143 Listing courtesy of Compass Florida Llc provided by Stellar MLS.

Similar Listings

$1,365,000
504 69th Street
Holmes Beach
3BR/2BA
| Active
$1,375,000
213 75th Street
Holmes Beach
3BR/2BA
| Active
$1,430,000
311 59th Street
Holmes Beach
3BR/2BA
| Active
$1,450,000
302 67th Street
Holmes Beach
3BR/2BA
| Active



All listing information is deemed reliable but not guaranteed and should be independently verified through personal inspection by appropriate professionals. Listings displayed on this website may be subject to prior sale or removal from sale; availability of any listing should always be independent verified. Listing information is provided for consumer personal, non-commercial use, solely to identify potential properties for potential purchase; all other use is strictly prohibited and may violate relevant federal and state law. The source of the listing data is as follows: Stellar MLS (updated 4/26/26 9:49 PM) |

Listing Search



Translate Tool

Featured Listings
Venice Real Estate
$1,350,000
3 BED
3 BATH
WELCOME to 10965 Bullrush Drive, a breathtaking WCI Pinehurst home located in the highly sought-after community of Saras... Read More
Sarasota Real Estate
$1,295,000
5 BED
4 BATH
BEST VALUE IN PALMER RANCH— Big House. Premium Lot. Private Pool. Impact Windows. New Roof. This is a Must See! One of o... Read More
Mount Dora Real Estate
$1,490,000
3 BED
2 BATH
Under contract-accepting backup offers. BACK ON THE MARKET! Previous contract fell through due to buyer's circumstances,... Read More
Nokomis Real Estate
$1,500,000
2 BED
2 BATH
Under contract-accepting backup offers. Living on Lyon's Bay is a dream! This property has 85 feet of water and view, no... Read More
Plant City Real Estate
$875,000
3 BED
3 BATH
Under contract-accepting backup offers. Stunning Custom-Built in 2024 Home on 5 Beautiful Acres | 3 Beds • 3 Baths • Agr... Read More
Maitland Real Estate
$1,100,000
5 BED
4 BATH
Your dream home awaits. Welcome to this exquisitely Renovated 4/4 PLUS OFFICE PLUS BONUS ROOM POOL HOME. Located in the ... Read More
Oviedo Real Estate
$1,100,000
5 BED
5 BATH
Pre-Construction. To be built. RARE GEM WITH A CHANCE TO BRING YOUR DESIGN OPTIONS TO COMPLETE AND IN EXCELLENT LOCATION... Read More
Geneva Real Estate
$1,199,000
3 BED
4 BATH
PRICE IMPROVEMENT! Discover the perfect blend of the ideal living space, privacy, and convenience with this stunning ran... Read More
Lakeland Real Estate
$1,179,999
6 BED
5 BATH
Welcome to 6510 Eagle Ridge Way – a stunning smart home that blends modern convenience with resort-style living. This sp... Read More
Kissimmee Real Estate
$995,000
5 BED
5 BATH
The Magical Estate is a 5 bedroom (all en-suite), 3,200 sq foot treasure that features countless activities for all ages... Read More
Contact Sandra Pardo

407-990-2746

Wendy Morris LLC

Licensed in the State of Florida
BK 3146762
16797 Broadwater Avenue
Winter Garden, Florida 34787

Your privacy is our utmost concern. We will never sell your personal information. Privacy Policy
©2026 sandrapardohomes.com - all rights reserved. | Site Map