407-990-2746
Menu

3011 W Mason Street Unit: Unit: B, Tampa, FL

NEXT
PREV
$775,000

($351/sqft)

List Status: Active
3011 W Mason Street
Tampa, FL 33629


3 beds
2 baths
2205 living sqft
Top Features
  • Subdivision: Oakmont Twnhms
  • Built in  1994
  • Townhouse
Description
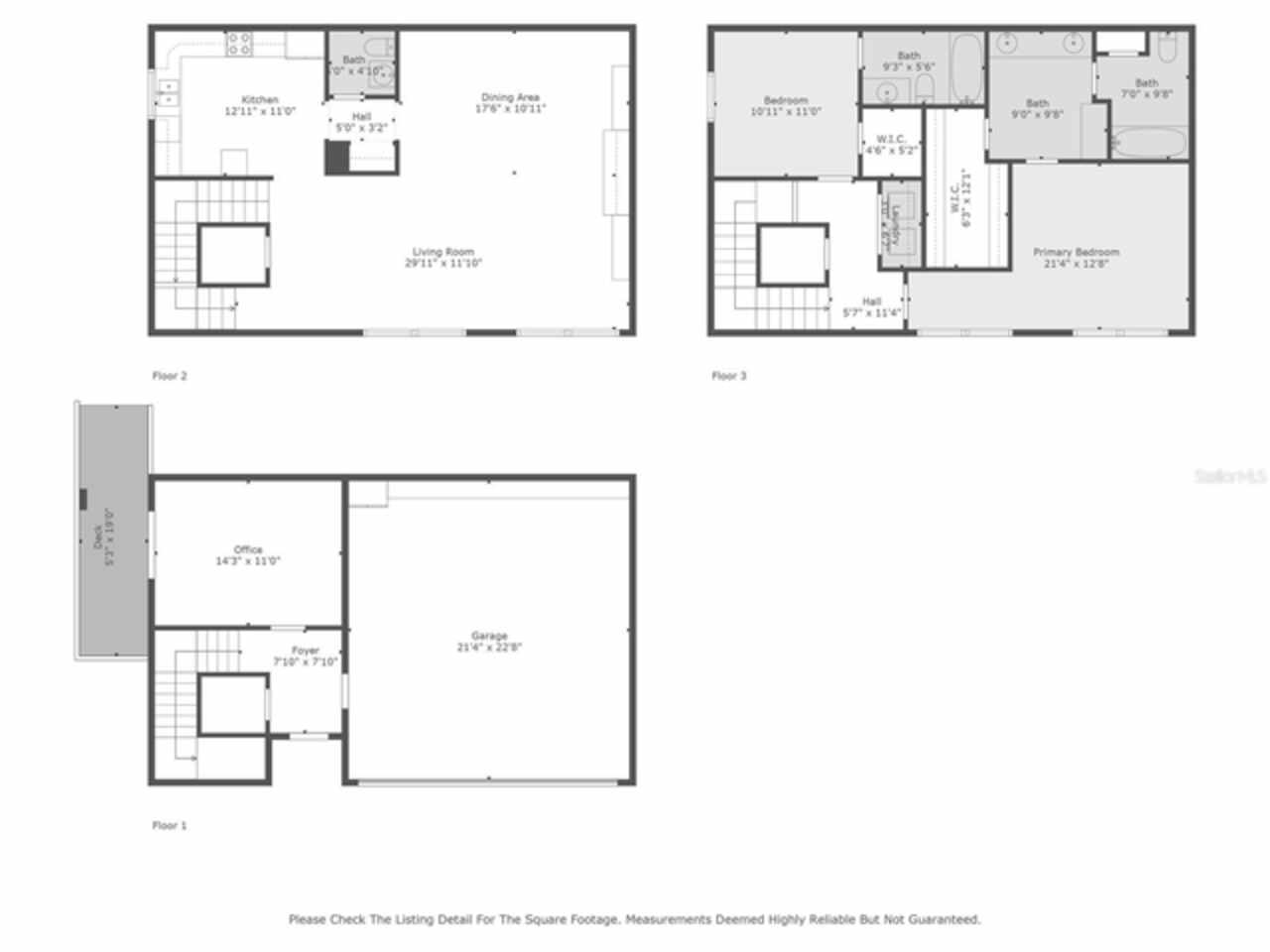
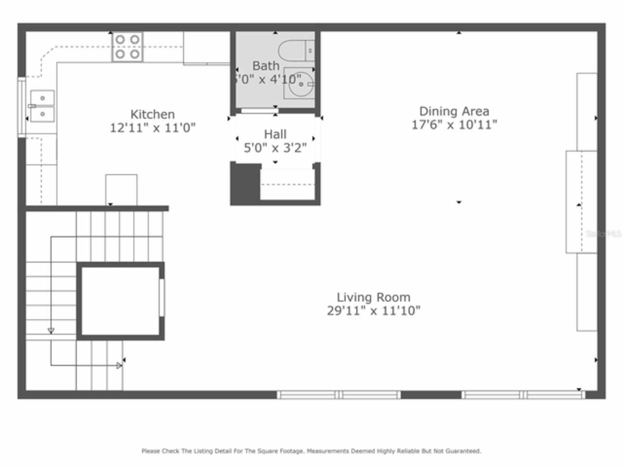
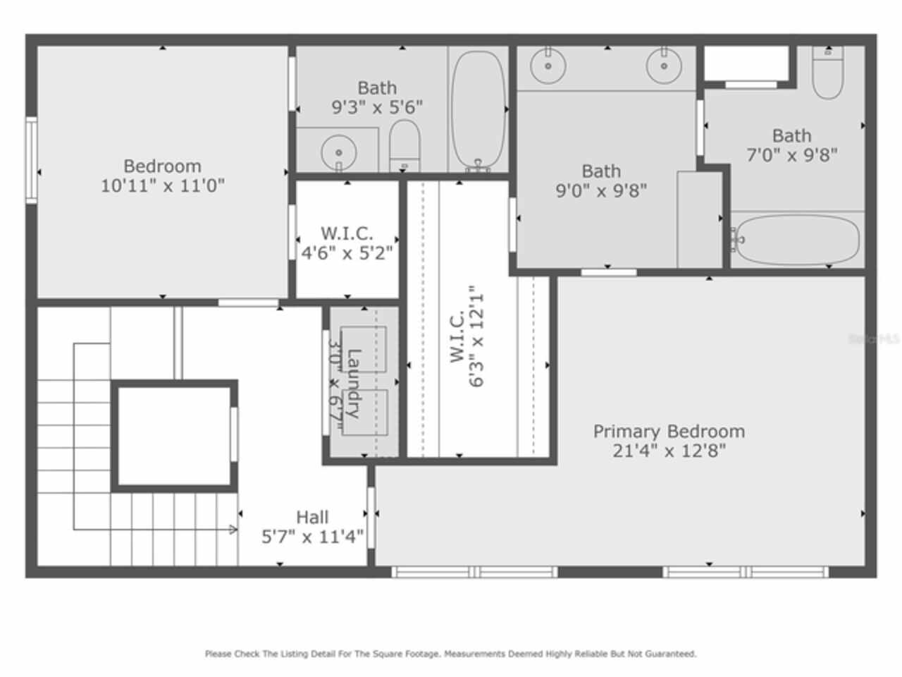
Welcome to Oakmont Townhomes located within 1 block of Bayshore Boulevard. Here’s your chance to own a very solid all concrete block and stucco townhome that's over 2,200 sq ft in an area where you can walk to many shops and restaurants on MacDill Ave and Bay to Bay Boulevard. This property is HIGH AND DRY and had no water damage from the 2024 storms and is in an area that does not require flood insurance. This unit is conveniently located on the street side of the community where your guests have plenty of parking right in front of your home. There is a wonderfully large 2 car garage that is big enough to park your oversized SUV or pickup truck and measures 21.4 x 22.8 ft. Enter through the 1st floor foyer and you will find a large hall closet and a first floor bedroom (currently being used as a office) with french doors to the small side deck. The second floor contains all the living and dining spaces and a half bath. The living room has tall ceilings, large windows and an open layout containing the dining area and kitchen. The living room is a very generous size allowing you many possible options for your seating arrangements. Both bedrooms are on the third floor. The master bath is quite spacious with separate sink, vanity, and shower areas as well as a large walk-in closet. The second guest bedroom has a walk-in closet and ensuite full bath as well. The wood floors are original and in great shape. Put your personal touches on this property to make it your own! And here’s some great news……although there isn’t an elevator presently, this unit was designed with a future elevator in mind and an elevator shaft was worked into the original design. There is a floorplan available and on it you will notice a very large closet in the same spot on all three floors in the middle of the stairwell where an elevator could be installed. The building is insurance through the HOA and the cost is included in the monthly fee. Located in very highly rated school zones Roosevelt Ele
Property Details
Additional Information
Additional Lease Restrictions
Verify leasing requirements with HOA.
Additional Parcels YN
false
Alternate Key Folio Num
1271651308
Appliances
Dishwasher, Disposal, Dryer, Microwave, Range, Refrigerator, Washer
Association Email
pfiskio@gmail.com Peter Fiskio
Association Fee
700
Association Fee Frequency
Monthly
Association Fee Includes
Escrow Reserves Fund, Insurance, Maintenance Structure, Maintenance Grounds
Association Fee Requirement
Required
Association YN
true
Attached Garage YN
true
Available For Lease YN
1
Bathrooms Total Integer
3
Building Area Source
Public Records
Building Area Total
2275
Building Area Total Srch SqM
211.35
Building Area Units
Square Feet
Calculated List Price By Calculated SqFt
351.47
Carport YN
false
Community Features
Deed Restrictions
Construction Materials
Block, Stucco
Cooling
Central Air
Country
US
Cumulative Days On Market
100
Current Price
775000.00
Direction Faces
South
Elementary School
Roosevelt-HB
Exterior Features
French Doors, Sidewalk
Fireplace YN
false
Flood Zone Code
X
Flooring
Tile, Wood
Foundation Details
Slab
Garage Spaces
2
Garage YN
true
Heating
Central
High School
Plant-HB
Homestead YN
1
Interior Features
Ceiling Fans(s)
Internet Address Display YN
true
Internet Automated Valuation Display YN
false
Internet Consumer Comment YN
false
Internet Entire Listing Display YN
true
Laundry Features
Laundry Closet
Lease Restrictions YN
1
Levels
Three Or More
List AOR
Suncoast Tampa
Listing Exclusion YN
1
Living Area Meters
204.85
Living Area Source
Public Records
Living Area Units
Square Feet
Lot Size Acres
0.03
Lot Size Square Feet
1509
Lot Size Square Meters
140
Middle Or Junior School
Coleman-HB
Minimum Lease
1-2 Years
Modification Timestamp
2025-10-15T17:05:19.539Z
Monthly HOA Amount
700.00
New Construction YN
false
Occupant Type
Owner
Ownership
Fee Simple
Parcel Number
A-34-29-18-3UX-000000-00004.0
Pets Allowed
Cats OK, Dogs OK
Pool Private YN
false
Postal Code Plus 4
8237
Previous List Price
799000
Price Change Timestamp
2025-10-13T16:42:12.000Z
Public Survey Range
18
Public Survey Section
34
RATIO Current Price By Calculated SqFt
351.47
Road Surface Type
Paved
Roof
Shingle
Room Count
6
Senior Community YN
false
Sewer
Public Sewer
Showing Requirements
Appointment Only, Listing Agent Must Accompany, ShowingTime
Status Change Timestamp
2025-07-07T15:42:27.000Z
Stories Total
3
Tax Annual Amount
5259.59
Tax Book Number
72-43
Tax Legal Description
OAKMONT TOWNHOMES LOT 4
Tax Lot
4
Tax Year
2024
Total Acreage
0 to less than 1/4
Total Annual Fees
8400.00
Total Monthly Fees
700.00
Township
29
Universal Property Id
US-12057-N-3429183000000000040-S-B
Unparsed Address
3011 W MASON ST #B
Utilities
Public
Water Source
Public
Waterfront YN
false
Zoning
RM-35
Neighborhood Map
Popup

Property Photos
Listing Photo
Listing Photo
Listing Photo
Listing Photo
Listing Photo
Listing Photo
Listing Photo
Listing Photo
Listing Photo
Listing Photo
Listing Photo
Listing Photo
Listing Photo
Listing Photo
Listing Photo
Listing Photo
Listing Photo
Listing Photo
Listing Photo
Listing Photo
Listing Photo
Listing Photo
Listing Photo
Listing Photo
Listing Photo
Listing Photo
Listing Photo
Listing Photo
Listing Photo
Listing Photo
Listing Photo
Listing Photo
Listing Photo
Listing Photo
Listing Photo
Listing Photo
Listing Photo
Listing Photo
Listing Photo
Listing Photo
Listing Photo
Listing Photo
Listing Photo
Listing Photo
Listing Photo
Listing Photo
Listing Photo
Listing Photo
Listing Photo
Listing Photo
Listing Photo
Listing Photo
Listing Photo
Listing Photo
Listing Photo
Listing Photo
Listing Photo
Listing Photo
Listing Photo
Listing Photo
Listing Photo
Listing Photo
Listing Photo
Listing Photo
Listing Photo
Listing Photo
Listing Photo
Listing Photo
Listing Photo
Listing Photo
Listing Photo
Listing Photo
Listing Photo
Listing Photo
Listing Photo
Listing Photo
Listing Photo
Listing Photo
Listing Photo
Listing Photo
Listing Photo
Listing Photo
Listing Photo
Listing Photo

MLS #MFRTB8394433 Listing courtesy of Compass Florida Llc provided by Stellar MLS.

Similar Listings

$698,000
2506 W Arch Street
Tampa
3BR/2BA
| Pending
$699,000
4704 W El Prado Boulevard
Tampa
3BR/2BA
| Active
$699,000
501 E Sparkman Avenue
Tampa
3BR/2BA
| Active
$699,000
14204 Ashburn Place
Tampa
3BR/2BA
| Pending



All listing information is deemed reliable but not guaranteed and should be independently verified through personal inspection by appropriate professionals. Listings displayed on this website may be subject to prior sale or removal from sale; availability of any listing should always be independent verified. Listing information is provided for consumer personal, non-commercial use, solely to identify potential properties for potential purchase; all other use is strictly prohibited and may violate relevant federal and state law. The source of the listing data is as follows: Stellar MLS (updated 3/27/26 11:45 AM) |

Listing Search



Translate Tool

Featured Listings
Auburndale Real Estate
$1,275,000
3 BED
3 BATH
Experience refined lakefront living in this exceptional 3-bedroom, 3-bathroom custom pool home by Arthur Rutenberg Homes... Read More
Palm Coast Real Estate
$849,000
4 BED
3 BATH
Under Construction. UNDER CONSTRUCTION!!!!PHOTOS FROM A PREVIOUS HOME.UPDATES HAVE BEEN MADE,WITH MORE MODERN AND IMPROV... Read More
Groveland Real Estate
$949,900
4 BED
3 BATH
Discover a truly unique opportunity to own a luxury waterfront residence perfectly positioned between two beautiful bodi... Read More
Orlando Real Estate
$1,365,000
5 BED
4 BATH
This Reef model in Laureate Park offers one of the most sought after floor plans in the neighborhood, featuring 4 bedroo... Read More
Windermere Real Estate
$1,199,000
4 BED
3 BATH
Nestled within the highly acclaimed guard-gated community of Keene’s Pointe, this completely remodeled Windermere home o... Read More
Tampa Real Estate
$850,000
4 BED
3 BATH
LARGE PRICE REDUCTION.......Updated 4-Bed, 3.5-Bath Pool Home With Bonus Room and 3-Car Garage in Carrollwood Crossing T... Read More
Orlando Real Estate
$1,295,000
5 BED
4 BATH
COLLEGE PARK NEAR NEW CONSTRUCTION JUST LISTED IN THE LAKE IVANHOE DISTRICT!!!! Located in the highly sought-after Lake ... Read More
Maitland Real Estate
$995,000
3 BED
2 BATH
Rare opportunity to own a private 0.66-acre estate lot in Maitland with deeded direct Lake Sybelia access. 790 S Lake Sy... Read More
Winter Garden Real Estate
$1,150,000
5 BED
4 BATH
Create memories!Experience the finest ,of modern quality luxury in this architecturally designed estate, situated in one... Read More
Sorrento Real Estate
$899,000
5 BED
4 BATH
Welcome home to 25515 Hawks Run Lane! SLATE TILE ROOF REPLACED IN 2023! Located within the coveted gated and golf course... Read More
Contact Sandra Pardo

407-990-2746

Wendy Morris LLC

Licensed in the State of Florida
BK 3146762
16797 Broadwater Avenue
Winter Garden, Florida 34787

Your privacy is our utmost concern. We will never sell your personal information. Privacy Policy
©2026 sandrapardohomes.com - all rights reserved. | Site Map