407-990-2746
Menu

2676 Estuary Loop, Oviedo, FL

NEXT
PREV
$999,000

($261/sqft)

List Status: Pending
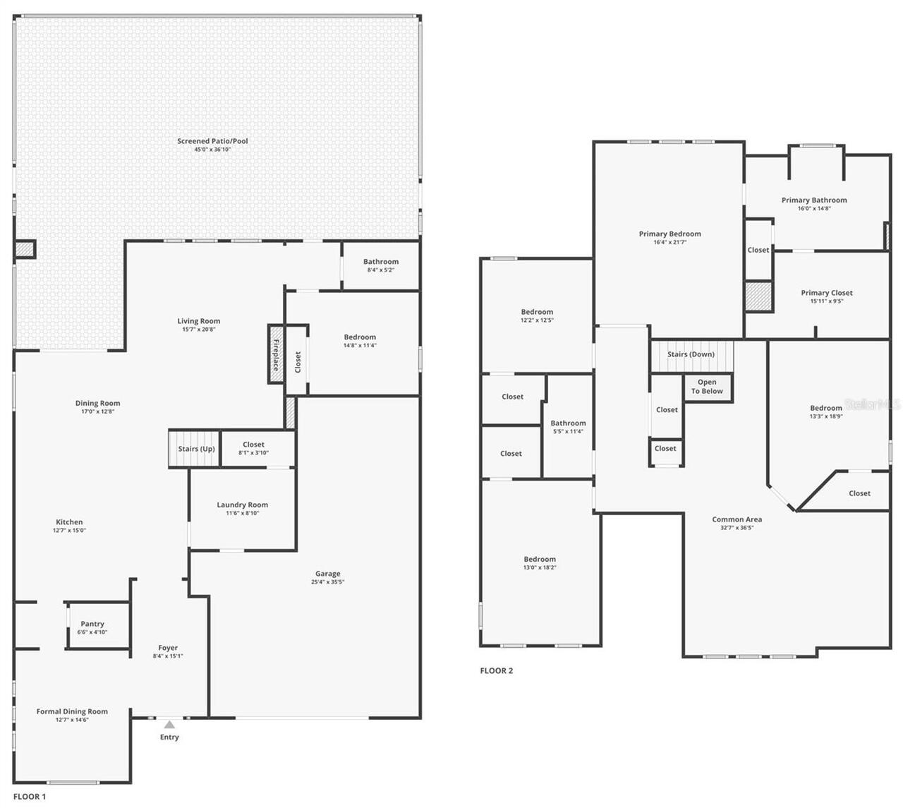
2676 Estuary Loop
Oviedo, FL 32765


5 beds
3 baths
3833 living sqft
Top Features
  • View: Trees/Woods
  • Subdivision: Hideaway Cove At Oviedo Ph 3
  • Built in  2021
  • Single Family Residence
Description
Under contract-accepting backup offers. This Stunning 5-bedroom, 3-bathroom pool home in a newer gated community offers the perfect blend of luxury, comfort, and functionality-designed with every detail in mind. From the moment you arrive, you'll be impressed by the well-manicured yard and extended driveway, providing both curb appeal and convenient parking. The welcoming front porch with a charming space for a swing sets the tone for the warmth and elegance that awaits inside. Step through the grand entryway adorned with beautiful wainscoting and into a thoughtfully designed layout with amazing wood-look tile. The formal dining room features matching wainscoting and is perfect for hosting gatherings. The gourmet kitchen is a chef's dream, complete with a large center island with pendant lights, granite countertops, stainless steel appliances, double ovens, a walk-in pantry and a spacious casual dining area. The kitchen flows seamlessly into a generously sized family room featuring an electric fireplace, creating an inviting space for everyday living and entertaining. A guest bedroom and full bath are conveniently located on the first floor, along with a spacious laundry room that includes a built-in storage bench for added functionality. Upstairs, a beautiful wood staircase with wrought-iron railings leads to an expansive loft-ideal as a media room, home office, or playroom. Three secondary bedrooms all feature walk-in closets, while the luxurious primary suite impresses with a double-door entry, a spa-like bathroom with a garden tub, seamless glass shower, dual vanities, and an enormous walk-in closet. Step outside to your private backyard oasis. The saltwater pool features color-changing LED lights and a sun shelf for lounging or play. A panoramic screen enclosure offers uninterrupted views of the lush conservation area beyond the enclosure which has an extended roof for an added entertainment area. The fenced yard and landscaped borders provide added privacy. Ad
Property Details
Property Features
Property Sub Type
Single Family Residence
View
Trees/Woods
Pool
Screen Enclosure, Lighting, In Ground, Salt Water
County
Seminole
Subdivision
HIDEAWAY COVE AT OVIEDO PH 3
Additional Information
Additional Lease Restrictions
Contact HOA concerning lease restrictions
Additional Parcels YN
false
Alternate Key Folio Num
25213150600000940
Appliances
Built-In Oven, Cooktop, Dishwasher, Disposal, Microwave
Approval Process
Contact HOA concerning approval process
Association Amenities
Playground
Association Approval Required YN
1
Association Fee
137
Association Fee Frequency
Monthly
Association Fee Requirement
Required
Association YN
true
Attached Garage YN
true
Available For Lease YN
1
Bathrooms Total Integer
3
Builder Model
Glenwood
Builder Name
MI
Building Area Source
Public Records
Building Area Total
4911
Building Area Total Srch SqM
456.25
Building Area Units
Square Feet
Calculated List Price By Calculated SqFt
260.63
Carport YN
false
Community Features
Gated Community - No Guard, Playground, Sidewalks
Construction Materials
Block, Stucco
Cooling
Central Air
Country
US
Cumulative Days On Market
39
Current Price
999000.00
Direction Faces
West
Elementary School
Carillon Elementary
Expected Closing Date
2026-07-15T00:00:00.000
Exterior Features
Rain Gutters, Sidewalk, Sliding Doors
Fencing
Fenced
Fireplace Features
Electric, Family Room
Fireplace YN
true
Flood Zone Code
X
Flooring
Carpet, Ceramic Tile, Wood
Foundation Details
Slab
Furnished
Furnished
Garage Dimensions
22X37
Garage Spaces
3
Garage YN
true
Heating
Central, Electric
High School
Hagerty High
Homestead YN
1
Interior Features
Cathedral Ceiling(s), Ceiling Fans(s), Eat-in Kitchen, High Ceilings, Open Floorplan, PrimaryBedroom Upstairs, Stone Counters, Walk-In Closet(s)
Internet Address Display YN
true
Internet Automated Valuation Display YN
true
Internet Consumer Comment YN
true
Internet Entire Listing Display YN
true
Laundry Features
Inside, Laundry Room
Lease Restrictions YN
1
Levels
Two
List AOR
Orlando Regional
Living Area Meters
356.10
Living Area Source
Public Records
Living Area Units
Square Feet
Lot Features
Conservation Area, Sidewalk, Paved, Private
Lot Size Acres
0.21
Lot Size Square Feet
9053
Lot Size Square Meters
841
Middle Or Junior School
Chiles Middle
Minimum Lease
1-2 Years
Modification Timestamp
2026-05-16T20:08:09.436Z
Monthly HOA Amount
137.00
New Construction YN
false
Occupant Type
Owner
Other Equipment
Irrigation Equipment
Ownership
Fee Simple
Parcel Number
25-21-31-506-0000-0940
Pets Allowed
Yes
Pool Private YN
true
Postal Code Plus 4
6727
Previous List Price
1025000
Price Change Timestamp
2026-04-24T12:19:13.000Z
Public Survey Range
31
Public Survey Section
25
Purchase Contract Date
2026-05-16
RATIO Current Price By Calculated SqFt
260.63
Realtor Info
CDD Addendum required, Floor Plan Available, No Sign
Road Surface Type
Paved
Roof
Shingle
Room Count
12
Security Features
Gated Community
Senior Community YN
false
Sewer
Public Sewer
Showing Requirements
Sentri Lock Box, Appointment Only, Call Listing Agent, Gate Code Required, ShowingTime
Status Change Timestamp
2026-05-16T20:07:39.000Z
Tax Annual Amount
9036.03
Tax Book Number
86-54-59
Tax Legal Description
LOT 94 HIDEAWAY COVE AT OVIEDO PHASE 3 PLAT BOOK 86 PAGES 54-59
Tax Lot
94
Tax Year
2024
Total Acreage
0 to less than 1/4
Total Annual Fees
1644.00
Total Monthly Fees
137.00
Township
21
Universal Property Id
US-12117-N-25213150600000940-R-N
Unparsed Address
2676 ESTUARY LOOP
Utilities
Cable Connected, Electricity Connected, Mini Sewer, Public, Water Connected
Water Source
Public
Waterfront YN
false
Zoning
PD
Neighborhood Map
Popup

Property Photos
Listing Photo
Listing Photo
Listing Photo
Listing Photo
Listing Photo
Listing Photo
Listing Photo
Listing Photo
Listing Photo
Listing Photo
Listing Photo
Listing Photo
Listing Photo
Listing Photo
Listing Photo
Listing Photo
Listing Photo
Listing Photo
Listing Photo
Listing Photo
Listing Photo
Listing Photo
Listing Photo
Listing Photo
Listing Photo
Listing Photo
Listing Photo
Listing Photo
Listing Photo
Listing Photo
Listing Photo
Listing Photo
Listing Photo
Listing Photo
Listing Photo
Listing Photo
Listing Photo
Listing Photo
Listing Photo
Listing Photo
Listing Photo
Listing Photo
Listing Photo
Listing Photo
Listing Photo
Listing Photo
Listing Photo
Listing Photo
Listing Photo
Listing Photo
Listing Photo
Listing Photo
Listing Photo
Listing Photo
Listing Photo
Listing Photo
Listing Photo
Listing Photo
Listing Photo
Listing Photo
Listing Photo
Listing Photo
Listing Photo
Listing Photo
Listing Photo
Listing Photo
Listing Photo
Listing Photo
Listing Photo
Listing Photo
Listing Photo
Listing Photo
Listing Photo
Listing Photo
Listing Photo
Listing Photo
Listing Photo
Listing Photo
Listing Photo
Listing Photo
Listing Photo
Listing Photo
Listing Photo
Listing Photo
Listing Photo
Listing Photo
Listing Photo
Listing Photo
Listing Photo
Listing Photo
Listing Photo
Listing Photo
Listing Photo
Listing Photo
Listing Photo
Listing Photo
Listing Photo
Listing Photo
Listing Photo
Listing Photo
Listing Photo
Listing Photo
Listing Photo
Listing Photo
Listing Photo
Listing Photo
Listing Photo
Listing Photo
Listing Photo
Listing Photo
Listing Photo
Listing Photo
Listing Photo
Listing Photo
Listing Photo
Listing Photo
Listing Photo
Listing Photo
Listing Photo
Listing Photo
Listing Photo
Listing Photo
Listing Photo
Listing Photo
Listing Photo
Listing Photo
Listing Photo
Listing Photo
Listing Photo
Listing Photo
Listing Photo
Listing Photo
Listing Photo
Listing Photo
Listing Photo
Listing Photo
Listing Photo
Listing Photo
Listing Photo
Listing Photo
Listing Photo
Listing Photo
Listing Photo
Listing Photo
Listing Photo
Listing Photo
Listing Photo
Listing Photo
Listing Photo
Listing Photo
Listing Photo
Listing Photo
Listing Photo
Listing Photo
Listing Photo
Listing Photo
Listing Photo
Listing Photo
Listing Photo
Listing Photo
Listing Photo
Listing Photo
Listing Photo
Listing Photo
Listing Photo
Listing Photo
Listing Photo
Listing Photo
Listing Photo
Listing Photo
Listing Photo
Listing Photo
Listing Photo
Listing Photo
Listing Photo
Listing Photo
Listing Photo
Listing Photo
Listing Photo
Listing Photo
Listing Photo
Listing Photo
Listing Photo
Listing Photo

MLS #MFRO6395396 Listing courtesy of Coldwell Banker Realty provided by Stellar MLS.

Similar Listings

$925,000
2461 Wassum Trail
Oviedo
5BR/3BA
| Active



All listing information is deemed reliable but not guaranteed and should be independently verified through personal inspection by appropriate professionals. Listings displayed on this website may be subject to prior sale or removal from sale; availability of any listing should always be independent verified. Listing information is provided for consumer personal, non-commercial use, solely to identify potential properties for potential purchase; all other use is strictly prohibited and may violate relevant federal and state law. The source of the listing data is as follows: Stellar MLS (updated 5/29/26 10:30 AM) |

Listing Search



Translate Tool

Featured Listings
Palm Coast Real Estate
$1,499,000
3 BED
3 BATH
Welcome to Unit 642 in the exclusive Ocean Towers at Hammock Beach Resort, a beautifully renovated luxury coastal reside... Read More
Winter Park Real Estate
$1,395,000
4 BED
4 BATH
Location. Design. Lifestyle. Newly built in 2025 by Nautilus Homes and lightly lived in, this exceptional custom residen... Read More
Orlando Real Estate
$984,500
4 BED
3 BATH
Set on a premier corner homesite in Eagle Creek, this 2021 single-story residence pairs a polished interior with a priva... Read More
Oviedo Real Estate
$925,000
5 BED
3 BATH
Welcome to your private retreat in the highly sought-after Chulota area—this beautifully renovated 5-bedroom, 3-bath hom... Read More
Bradenton Real Estate
$908,000
3 BED
2 BATH
One or more photo(s) has been virtually staged. Welcome to luxury living in the heart of Lakewood Ranch, nestled within ... Read More
Parrish Real Estate
$874,000
3 BED
3 BATH
Under contract-accepting backup offers. *Don't miss this opportunity - seller is motivated.* Welcome to the sought-after... Read More
Sarasota Real Estate
$1,499,000
2 BED
3 BATH
One or more photo(s) has been virtually staged. Experience elevated downtown living at 50 Central – The Plaza at Five Po... Read More
Orlando Real Estate
$914,900
4 BED
2 BATH
One or more photo(s) has been virtually staged. Nestled on a generous 0.34-acre cul-de-sac lot, this residence offers a ... Read More
St Petersburg Real Estate
$1,195,000
2 BED
2 BATH
YOUR DOWNTOWN ST. PETERSBURG DREAM HOME AWAITS! This impeccably maintained and beautifully curated residence offers a ra... Read More
Kissimmee Real Estate
$1,190,000
6 BED
6 BATH
One or more photo(s) has been virtually staged. !!REUNION RESORT AND GOLF CLUB MEMBERSHIP INCLUDED!! IT HAS THE 3 TOP GO... Read More
Contact Sandra Pardo

407-990-2746

Wendy Morris LLC

Licensed in the State of Florida
BK 3146762
16797 Broadwater Avenue
Winter Garden, Florida 34787

Your privacy is our utmost concern. We will never sell your personal information. Privacy Policy
©2026 sandrapardohomes.com - all rights reserved. | Site Map