407-990-2746
Menu

2205 Wintermere Pointe Drive, Winter Garden, FL

NEXT
PREV
$750,000

($200/sqft)

List Status: Active
2205 Wintermere Pointe Drive
Winter Garden, FL 34787


5 beds
3 baths
3747 living sqft
Top Features
  • Subdivision: Wintermere Pointe
  • Built in  2000
  • Single Family Residence
Description
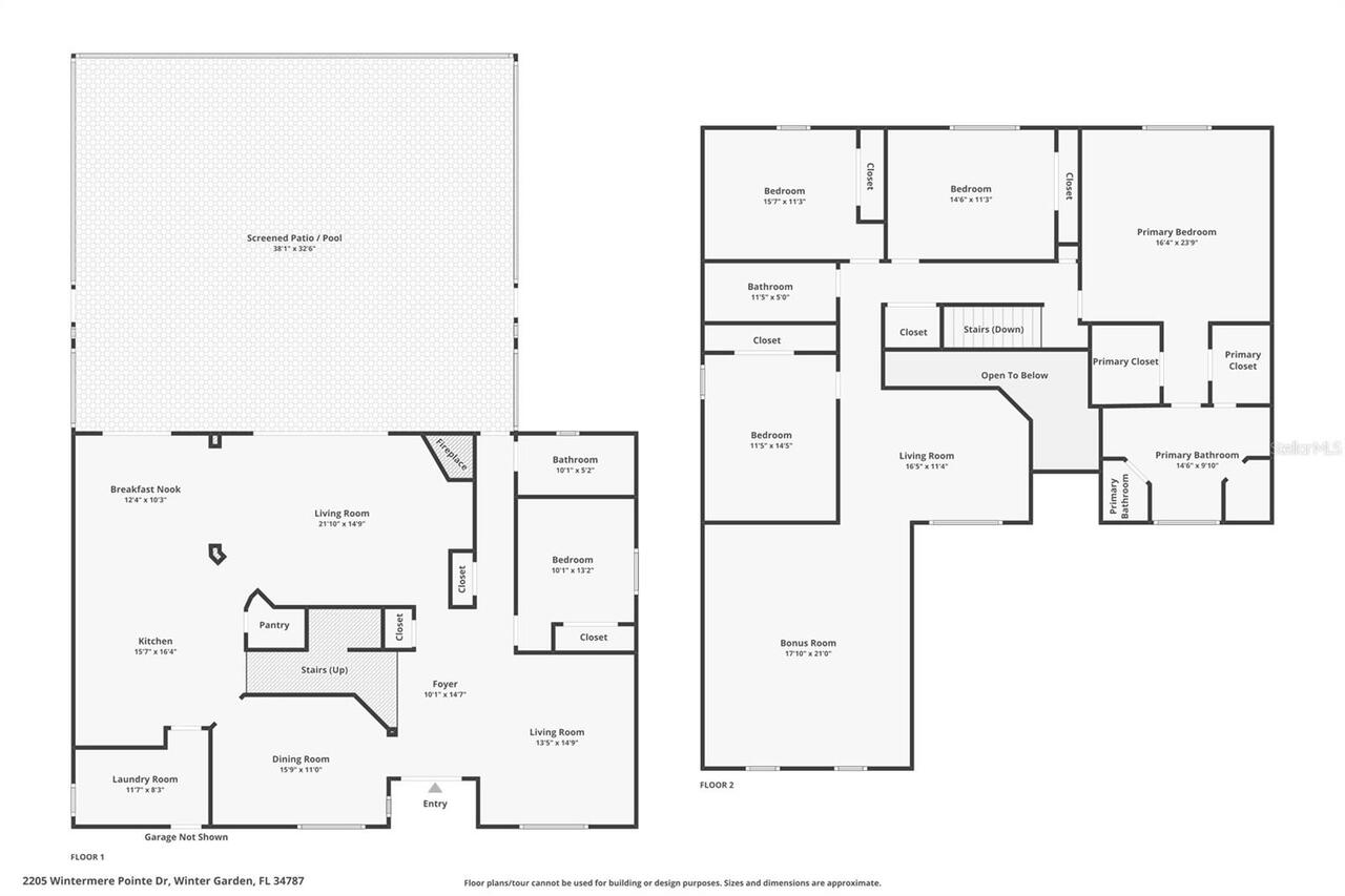
Located in the GATED community of Wintermere Pointe in Winter Garden, FL, this spacious .25 acre, 5-bedroom, 3-bath pool home for sale in Winter Garden offers nearly 3,750 square feet of well-designed living space just minutes from Winter Garden Village, Windermere, Walt Disney World, AdventHealth Winter Garden, SR 429, and the Florida Turnpike. Designed for both everyday living and entertaining, the home features an open-concept layout with formal living and dining rooms, a large family room, and a centrally located kitchen that flows seamlessly into the main living areas. A DOWNSTAIRS BEDROOM and full bath provide flexibility for guests, multi-generational living, or a private home office, while upstairs, the expansive primary suite offers a true retreat with a soaking tub , separate shower, dual vanities, and two walk-in closets. Additional bedrooms are generously sized, and both a LOFT and a large BONUS ROOM create endless possibilities for a media room, game room, home gym, or additional living space. High ceilings and natural light enhance the open feel throughout the home, while the layout offers both functionality and comfort. Step outside to a screened-in PRIVATE POOL, covered lanai and extended paver patio, perfect for enjoying Florida living in Winter Garden year-round, all set on a .25 ACRE LOT with mature landscaping and a FULLY FENCED backyard for added privacy. Wintermere Pointe is a well-established gated community in Winter Garden, Florida offering tennis courts, a playground, and a LOW HOA, and is zoned for Lake Whitney Elementary, SunRidge Middle, and West Orange High. If you’re searching for homes for sale in Winter Garden FL with a pool, gated community, and flexible layout, this home offers space, location, and lifestyle in one of Central Florida’s most desirable areas.
Property Details
Additional Information
Additional Lease Restrictions
Contact HOA for information. HOA limits the number of rentals approved in the community. Buyer responsible for verifying all lease restrictions with the HOA and county directly.
Additional Parcels YN
false
Additional Rooms
Bonus Room, Formal Dining Room Separate, Formal Living Room Separate, Loft
Amenities Additional Fees
Buyer responsible for verifying all HOA amenities & restrictions with the HOA directly.
Appliances
Dishwasher, Disposal, Electric Water Heater, Microwave, Range, Refrigerator
Approval Process
Contact HOA for information. HOA limits the number of rentals approved in the community. Buyer responsible for verifying all lease restrictions with the HOA and county directly.
Association Amenities
Gated, Playground
Association Approval Required YN
1
Association Email
Shelby@hoaemt.com
Association Fee
1075
Association Fee Frequency
Annually
Association Fee Requirement
Required
Association URL
hoaemt.com
Association YN
true
Attached Garage YN
true
Available For Lease YN
1
Bathrooms Total Integer
3
Building Area Source
Public Records
Building Area Total
4785
Building Area Total Srch SqM
444.54
Building Area Units
Square Feet
Calculated List Price By Calculated SqFt
200.16
Carport YN
false
Community Features
Gated Community - No Guard, Playground, Sidewalks, Tennis Court(s)
Construction Materials
Block, Stucco
Cooling
Central Air
Country
US
Cumulative Days On Market
57
Current Price
750000.00
Direction Faces
Northwest
Elementary School
Lake Whitney Elem
Exterior Features
Lighting, Private Mailbox, Sidewalk, Sliding Doors
Fencing
Vinyl
Fireplace Features
Family Room
Fireplace YN
true
Flood Zone Code
X
Flooring
Tile
Foundation Details
Slab
Furnished
Unfurnished
Garage Spaces
3
Garage YN
true
Heating
Central
High School
West Orange High
Interior Features
Ceiling Fans(s), High Ceilings, Open Floorplan, PrimaryBedroom Upstairs, Tray Ceiling(s), Walk-In Closet(s)
Internet Address Display YN
true
Internet Automated Valuation Display YN
true
Internet Consumer Comment YN
false
Internet Entire Listing Display YN
true
Laundry Features
Laundry Room
Lease Restrictions YN
1
Levels
Two
List AOR
Orlando Regional
Living Area Meters
348.11
Living Area Source
Public Records
Living Area Units
Square Feet
Lot Features
Landscaped, Sidewalk
Lot Size Acres
0.25
Lot Size Square Feet
11050
Lot Size Square Meters
1027
Middle Or Junior School
SunRidge Middle
Minimum Lease
7 Months
Modification Timestamp
2026-04-15T10:49:25.250Z
Monthly HOA Amount
89.58
New Construction YN
false
Occupant Type
Vacant
Other Equipment
Irrigation Equipment
Ownership
Fee Simple
Parcel Number
02-23-27-8456-00-080
Patio And Porch Features
Covered, Patio, Screened
Pet Restrictions
Buyer responsible for verifying all pet restrictions with the HOA and county directly.
Pets Allowed
Yes
Pool Private YN
true
Postal Code Plus 4
5440
Public Survey Range
27
Public Survey Section
02
RATIO Current Price By Calculated SqFt
200.16
Realtor Info
As-Is
Road Responsibility
Private Maintained Road
Road Surface Type
Asphalt
Roof
Shingle
Room Count
15
Security Features
Gated Community
Senior Community YN
false
Sewer
Public Sewer
Showing Requirements
ShowingTime
Spa YN
false
Status Change Timestamp
2026-04-14T16:28:54.000Z
Tax Annual Amount
10152
Tax Block
00
Tax Book Number
8456
Tax Legal Description
WINTERMERE POINTE 40/88 LOT 8
Tax Lot
8
Tax Year
2025
Total Acreage
1/4 to less than 1/2
Total Annual Fees
1075.00
Total Monthly Fees
89.58
Township
23
Universal Property Id
US-12095-N-022327845600080-R-N
Unparsed Address
2205 WINTERMERE POINTE DR
Utilities
Cable Available, Electricity Connected, Water Connected
Vegetation
Mature Landscaping
Water Source
Public
Waterfront YN
false
Window Features
Blinds
Zoning
R-1
Neighborhood Map
Popup

Property Photos
Listing Photo
Listing Photo
Listing Photo
Listing Photo
Listing Photo
Listing Photo
Listing Photo
Listing Photo
Listing Photo
Listing Photo
Listing Photo
Listing Photo
Listing Photo
Listing Photo
Listing Photo
Listing Photo
Listing Photo
Listing Photo
Listing Photo
Listing Photo
Listing Photo
Listing Photo
Listing Photo
Listing Photo
Listing Photo
Listing Photo
Listing Photo
Listing Photo
Listing Photo
Listing Photo
Listing Photo
Listing Photo
Listing Photo
Listing Photo
Listing Photo
Listing Photo
Listing Photo
Listing Photo
Listing Photo
Listing Photo
Listing Photo
Listing Photo
Listing Photo
Listing Photo
Listing Photo
Listing Photo
Listing Photo
Listing Photo
Listing Photo
Listing Photo
Listing Photo
Listing Photo
Listing Photo
Listing Photo
Listing Photo
Listing Photo
Listing Photo
Listing Photo
Listing Photo
Listing Photo
Listing Photo
Listing Photo
Listing Photo
Listing Photo
Listing Photo
Listing Photo
Listing Photo
Listing Photo
Listing Photo
Listing Photo
Listing Photo
Listing Photo
Listing Photo
Listing Photo
Listing Photo
Listing Photo
Listing Photo
Listing Photo
Listing Photo
Listing Photo
Listing Photo
Listing Photo
Listing Photo
Listing Photo
Listing Photo
Listing Photo
Listing Photo
Listing Photo
Listing Photo
Listing Photo
Listing Photo
Listing Photo
Listing Photo
Listing Photo
Listing Photo
Listing Photo
Listing Photo
Listing Photo
Listing Photo
Listing Photo
Listing Photo
Listing Photo
Listing Photo
Listing Photo

MLS #MFRO6398720 Listing courtesy of Exp Realty Llc provided by Stellar MLS.

Similar Listings

$675,000
3467 Buoy Circle
Winter Garden
5BR/3BA
| Active
$680,000
2425 Prairie View Drive
Winter Garden
5BR/3BA
| Pending
$680,000
4918 Wildwood Pointe Road
Winter Garden
5BR/3BA
| Active
$685,000
15403 Murcott Harvest Loop
Winter Garden
5BR/3BA
| Active



All listing information is deemed reliable but not guaranteed and should be independently verified through personal inspection by appropriate professionals. Listings displayed on this website may be subject to prior sale or removal from sale; availability of any listing should always be independent verified. Listing information is provided for consumer personal, non-commercial use, solely to identify potential properties for potential purchase; all other use is strictly prohibited and may violate relevant federal and state law. The source of the listing data is as follows: Stellar MLS (updated 4/18/26 1:45 PM) |

Listing Search



Translate Tool

Featured Listings
St Petersburg Real Estate
$1,499,900
3 BED
3 BATH
Welcome to your slice of waterfront living in the highly sought-after Bayway Isles, a 24-hour guard-gated community offe... Read More
Sarasota Real Estate
$1,151,900
4 BED
3 BATH
Pre-Construction. To be built. Under construction and slated for completion in August/September. Welcome to Grandura, a ... Read More
Winter Garden Real Estate
$1,258,000
4 BED
3 BATH
One or more photo(s) has been virtually staged. PANORAMIC LAKE VIEWS • DISNEY FIREWORKS • EXPANSIVE SCREENED LANAI • FUL... Read More
Port Charlotte Real Estate
$1,100,000
3 BED
2 BATH
Look no further, your waterfront estate with 230 feet of shoreline and a private putting green awaits. Perfectly positio... Read More
Land O Lakes Real Estate
$999,900
5 BED
3 BATH
This stunning 5-bedroom, 3.5-bath home sitting on nearly 2 private acres is the kind of property that stops people mid-s... Read More
Venice Real Estate
$1,200,000
4 BED
4 BATH
Experience elevated coastal living in this exceptional 4-bedroom, 4-bath residence nestled within the highly sought-afte... Read More
Dade City Real Estate
$1,295,000
4 BED
2 BATH
Thoughtfully designed with curated ONE-OF-A-KIND DETAILS.This home radiates a peaceful, zen-like energy, making it a tru... Read More
Umatilla Real Estate
$850,000
3 BED
2 BATH
Under contract-accepting backup offers. Welcome to Fox Run, a stunning 25-acre retreat nestled in the heart of Central F... Read More
Estero Real Estate
$859,900
4 BED
3 BATH
Enjoy Southwest Florida living at its finest in this beautifully upgraded Doral floorplan, located in the sought-after C... Read More
New Smyrna Beach Real Estate
$889,000
3 BED
2 BATH
Wake up to breathtaking ocean views and experience the best of coastal living in this exceptional New Smyrna Beach retre... Read More
Contact Sandra Pardo

407-990-2746

Wendy Morris LLC

Licensed in the State of Florida
BK 3146762
16797 Broadwater Avenue
Winter Garden, Florida 34787

Your privacy is our utmost concern. We will never sell your personal information. Privacy Policy
©2026 sandrapardohomes.com - all rights reserved. | Site Map