407-990-2746
Menu

1661 Woodland Avenue, Winter Park, FL

NEXT
PREV
$1,300,000

($404/sqft)

List Status: Active
1661 Woodland Avenue
Winter Park, FL 32789


3 beds
3 baths
3215 living sqft
Top Features
  • Subdivision: Comstock Park
  • Built in  1948
  • Single Family Residence
Description
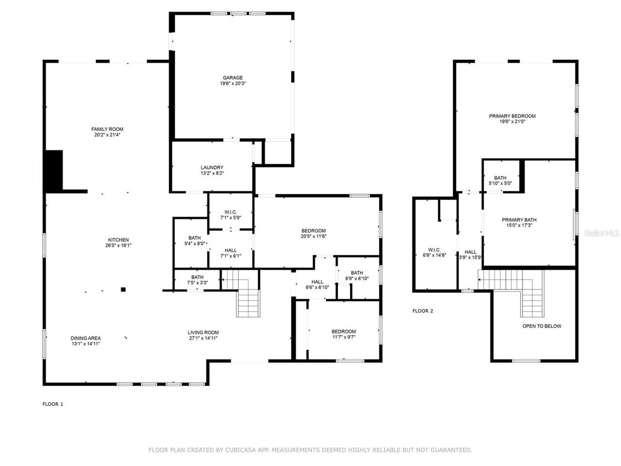
Beauifully rennovated property on coveted brick street in PRIME Winter Park Location! This exceptional 3-bedroom, 3.5-bath home sits on a generously sized, fenced, private lot—perfect for entertaining or family living. Every inch of this residence has been thoughtfully updated, featuring 3-zone AC, updated plumbing, electrical, windows, foam insulation, and 2022 roof. Inside, luxurious designer touches abound. You're welcomed by an elegant foyer with Calacatta gold marble flooring and designer sphere lighting. The open-concept living space features rich eucalyptus flooring and soaring vaulted ceilings, seamlessly connecting to the outdoors through french doors that open to a bricked patio with tongue-and-groove wood ceiling, summer kitchen, and expansive yard. At the heart of the home is a gourmet kitchen that will delight any chef, complete with a Viking 6-burner natural gas range including griddle and double oven, an oversized entertaining island and a stylish wet bar with wine fridge. The thoughtfully designed floor plan includes two downstairs bedrooms, one makes a perfect home office, the other is a mother-in-law suite with a private entrance—ideal for guests or teens. Both secondary full bathrooms boast rainfall shower heads, dual flush toilets, and designer fixtures and tile. Upstairs, the expansive master suite offers vaulted ceilings, a custom walk-in closet, and french doors leading to a private balcony. The luxurious master bath features a 7-spray shower system, an aromatic Jacuzzi tub, and a ceiling-mounted waterfall spout for the ultimate spa-like experience. This home blends elegance, comfort, and functionality—an entertainer’s dream with a fantastic flow for everyday living!
Property Details
Additional Information
Additional Parcels YN
false
Additional Rooms
Formal Dining Room Separate, Great Room, Interior In-Law Suite w/Private Entry
Appliances
Bar Fridge, Built-In Oven, Dishwasher, Disposal, Microwave, Refrigerator, Tankless Water Heater
Architectural Style
Contemporary
Association YN
false
Attached Garage YN
true
Available For Lease YN
1
Bathrooms Total Integer
4
Building Area Source
Estimated
Building Area Total
4200
Building Area Total Srch SqM
390.19
Building Area Units
Square Feet
Calculated List Price By Calculated SqFt
404.35
Carport YN
false
Community Features
Street Lights
Construction Materials
Block, Stucco
Cooling
Central Air
Country
US
Current Price
1300000.00
Direction Faces
South
Elementary School
Lakemont Elem
Exterior Features
French Doors, Lighting, Outdoor Grill, Outdoor Kitchen
Fireplace YN
false
Flood Zone Code
X
Flooring
Carpet, Luxury Vinyl
Foundation Details
Slab
Furnished
Unfurnished
Garage Spaces
2
Garage YN
true
Heating
Central, Electric
High School
Winter Park High
Homestead YN
1
Interior Features
Ceiling Fans(s), High Ceilings, Kitchen/Family Room Combo, Open Floorplan, PrimaryBedroom Upstairs, Solid Surface Counters, Vaulted Ceiling(s), Walk-In Closet(s), Wet Bar
Internet Address Display YN
true
Internet Automated Valuation Display YN
true
Internet Consumer Comment YN
true
Internet Entire Listing Display YN
true
Laundry Features
Inside, Laundry Room
Levels
Two
List AOR
Orlando Regional
Living Area Meters
298.68
Living Area Source
Estimated
Living Area Units
Square Feet
Lot Features
City Limits, Landscaped, Street Brick
Lot Size Acres
0.27
Lot Size Dimensions
75x158
Lot Size Square Feet
11830
Lot Size Square Meters
1099
Middle Or Junior School
Maitland Middle
Minimum Lease
1 Month
Modification Timestamp
2026-04-16T05:02:32.807Z
New Construction YN
false
Occupant Type
Owner
Ownership
Fee Simple
Parcel Number
30-22-05-1592-02-361
Patio And Porch Features
Covered
Pets Allowed
Yes
Pool Private YN
false
Postal Code Plus 4
2774
Public Survey Range
30
Public Survey Section
05
RATIO Current Price By Calculated SqFt
404.35
Realtor Info
As-Is, Termite Bond/Warranty
Road Surface Type
Brick
Roof
Shingle
Room Count
6
Senior Community YN
false
Sewer
Public Sewer
Showing Requirements
Appointment Only, Call Listing Agent, Listing Agent Must Accompany
Status Change Timestamp
2026-04-16T04:03:41.000Z
Tax Annual Amount
17067
Tax Block
B
Tax Book Number
K-87
Tax Legal Description
COMSTOCK PARK K/87 THE E 25 FT OF LOT 36& ALL OF LOT 37 BLK B
Tax Lot
36
Tax Year
2025
Total Acreage
1/4 to less than 1/2
Total Annual Fees
0.00
Total Monthly Fees
0.00
Township
22
Universal Property Id
US-12095-N-302205159202361-R-N
Unparsed Address
1661 WOODLAND AVE
Utilities
Cable Connected, Electricity Connected, Natural Gas Connected, Public, Sewer Connected, Underground Utilities, Water Connected
Vegetation
Trees/Landscaped
Water Source
Public
Waterfront YN
false
Window Features
Double Pane Windows, Shutters
Zoning
R-1A
Neighborhood Map
Popup

Property Photos
Listing Photo
Listing Photo
Listing Photo
Listing Photo
Listing Photo
Listing Photo
Listing Photo
Listing Photo
Listing Photo
Listing Photo
Listing Photo
Listing Photo
Listing Photo
Listing Photo
Listing Photo
Listing Photo
Listing Photo
Listing Photo
Listing Photo
Listing Photo
Listing Photo
Listing Photo
Listing Photo
Listing Photo
Listing Photo
Listing Photo
Listing Photo
Listing Photo
Listing Photo
Listing Photo
Listing Photo
Listing Photo
Listing Photo
Listing Photo
Listing Photo
Listing Photo
Listing Photo
Listing Photo
Listing Photo
Listing Photo
Listing Photo
Listing Photo
Listing Photo
Listing Photo
Listing Photo
Listing Photo
Listing Photo
Listing Photo
Listing Photo
Listing Photo
Listing Photo
Listing Photo
Listing Photo
Listing Photo
Listing Photo
Listing Photo
Listing Photo
Listing Photo
Listing Photo
Listing Photo
Listing Photo
Listing Photo
Listing Photo
Listing Photo
Listing Photo
Listing Photo
Listing Photo
Listing Photo
Listing Photo
Listing Photo
Listing Photo
Listing Photo
Listing Photo
Listing Photo
Listing Photo
Listing Photo
Listing Photo
Listing Photo
Listing Photo
Listing Photo
Listing Photo
Listing Photo
Listing Photo
Listing Photo
Listing Photo
Listing Photo
Listing Photo
Listing Photo
Listing Photo
Listing Photo
Listing Photo
Listing Photo
Listing Photo
Listing Photo
Listing Photo
Listing Photo
Listing Photo
Listing Photo
Listing Photo
Listing Photo
Listing Photo
Listing Photo
Listing Photo
Listing Photo
Listing Photo
Listing Photo
Listing Photo
Listing Photo
Listing Photo
Listing Photo
Listing Photo
Listing Photo
Listing Photo
Listing Photo
Listing Photo
Listing Photo

MLS #MFRO6399348 Listing courtesy of Fannie Hillman & Associates provided by Stellar MLS.

Similar Listings

$1,295,000
800 Hamilton Place Court
Winter Park
3BR/3BA
| Active
$1,350,000
1644 Hibiscus Avenue
Winter Park
3BR/3BA
| Active
$1,395,000
1780 Mondrian Circle
Winter Park
3BR/3BA
| Active



All listing information is deemed reliable but not guaranteed and should be independently verified through personal inspection by appropriate professionals. Listings displayed on this website may be subject to prior sale or removal from sale; availability of any listing should always be independent verified. Listing information is provided for consumer personal, non-commercial use, solely to identify potential properties for potential purchase; all other use is strictly prohibited and may violate relevant federal and state law. The source of the listing data is as follows: Stellar MLS (updated 4/16/26 2:04 AM) |

Listing Search



Translate Tool

Featured Listings
New Smyrna Beach Real Estate
$1,350,000
4 BED
4 BATH
This 4-bedroom, 4.5-bath beachside home is located east of A1A (Atlantic) and offers a short easy walk to the ocean. Des... Read More
Winter Garden Real Estate
$1,200,000
5 BED
4 BATH
Experience luxury living in this gorgeous home in the highly sought after Sunset Lakes community in Winter Garden. This ... Read More
Winter Park Real Estate
$1,300,000
3 BED
3 BATH
Beauifully rennovated property on coveted brick street in PRIME Winter Park Location! This exceptional 3-bedroom, 3.5-ba... Read More
St Petersburg Real Estate
$1,099,500
3 BED
2 BATH
Stunning New Construction Home on a Prime Corner Lot in Bayou Bonita! Welcome to your dream home in the highly coveted B... Read More
Winter Garden Real Estate
$846,000
3 BED
2 BATH
Experience the perfect blend of luxury and convenience with the Palmary dream home. Formerly a model home, this stunning... Read More
Oviedo Real Estate
$979,990
5 BED
4 BATH
Welcome to this stunning new construction home by M/I Homes, nestled at 2564 Hawks Overlook Place in the charming Oviedo... Read More
The Villages Real Estate
$1,050,000
3 BED
2 BATH
1929 Hartford Path is a residence where thoughtful design and natural beauty exist in perfect balance. Tucked within the... Read More
Orlando Real Estate
$825,000
5 BED
4 BATH
One or more photo(s) has been virtually staged. Take advantage of this exceptional opportunity to own a spectacular 5-be... Read More
Lakeland Real Estate
$860,000
4 BED
3 BATH
One or more photo(s) has been virtually staged. Welcome to this exceptional 4-bedroom, 3-bath luxury home in the prestig... Read More
Lake Placid Real Estate
$1,300,000
6 BED
4 BATH
One or more photo(s) has been virtually staged. You've found your Lakefront Vacation Home! Welcome to Lake Placid, Flori... Read More
Contact Sandra Pardo

407-990-2746

Wendy Morris LLC

Licensed in the State of Florida
BK 3146762
16797 Broadwater Avenue
Winter Garden, Florida 34787

Your privacy is our utmost concern. We will never sell your personal information. Privacy Policy
©2026 sandrapardohomes.com - all rights reserved. | Site Map