407-990-2746
Menu

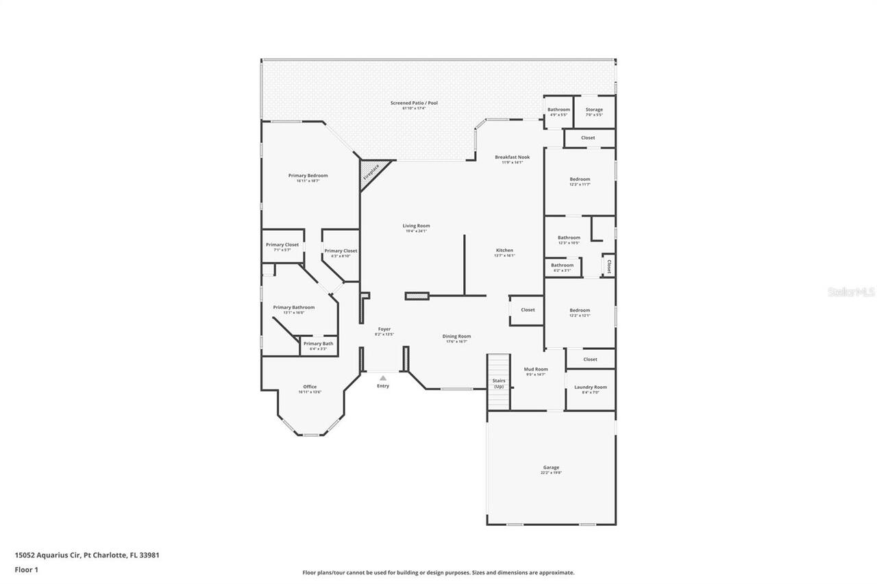
15052 Aquarius Circle, Port Charlotte, FL

NEXT
PREV
$798,000

($238/sqft)

List Status: Pending
15052 Aquarius Circle
Port Charlotte, FL 33981


3 beds
3 baths
3351 living sqft
Top Features
  • Frontage: Canal - Brackish
  • View: Water, Pool
  • Subdivision: Port Charlotte Sec 093
  • Built in  2008
  • Single Family Residence
Description
Under contract-accepting backup offers. Exceptional custom-built waterfront estate with 3,351 sq ft on SAILBOAT water offering 84 feet of CONCRETE SEAWALL, QUICK direct Gulf access, and NO FIXED BRIDGES. Boater’s dream with a 70’ x 8’ composite dock and 10,000-lb boat lift for quick access to open water. This meticulously maintained home features coffered tray and volume ceilings, Brazilian cherry hardwood flooring, gorgeous tile, crown molding, plantation shutters, SPRAY FOAM INSULATION, IMPACT WINDOWS, SLIDERS, AND FRENCH DOORS(excluding aquarium glass), plus two separate A/C systems. Chef’s kitchen includes THERMADOR STAINLESS STEEL APPLIANCES with GAS COOKTOP, grill, griddle, built-in convection oven, warming drawer, microwave, commercial-grade hood with heat lamps, and custom wood cabinetry with wine/glass storage and spice pull-outs. Spacious layout offers a study with a built-in desk, a luxurious primary suite with dual custom walk-in closets, dual vanities, a soaking tub, and an oversized walk-in shower with dual shower heads, guest bedrooms with walk-in closets and custom built-ins, plus an upstairs bonus/media room with a beverage center and a full bath. Outdoor living includes SALTWATER HEATED POOL AND SPA with two waterfalls, paver lanai and walkways, REAR PAVER WATERFRONT PATIO, pool bath, outdoor shower, and storage closet. Additional features include a tile roof, an irrigation well, built-in pest control, a water softener, a reverse osmosis system at the kitchen sink, mature landscaping, and a 100-gallon propane tank. Current homeowner’s insurance is $2,753 annually, and flood insurance is $1,562 annually, transferable to the new owner.
Property Details
Additional Information
Additional Parcels YN
false
Additional Rooms
Bonus Room, Den/Library/Office, Formal Dining Room Separate, Inside Utility, Storage Rooms
Appliances
Convection Oven, Cooktop, Dishwasher, Disposal, Dryer, Electric Water Heater, Indoor Grill, Kitchen Reverse Osmosis System, Microwave, Range, Range Hood, Refrigerator, Washer, Water Filtration System, Water Softener
Architectural Style
Florida
Association Amenities
Basketball Court, Pickleball Court(s), Recreation Facilities
Association Email
secretary@southgulfcovefl.org
Association Fee
120
Association Fee Frequency
Annually
Association Fee Includes
Recreational Facilities
Association Fee Requirement
Optional
Association URL
www.southgulfcovefl.org
Association YN
true
Attached Garage YN
true
Available For Lease YN
1
Bathrooms Total Integer
4
Building Area Source
Public Records
Building Area Total
4132
Building Area Total Srch SqM
383.88
Building Area Units
Square Feet
Calculated List Price By Calculated SqFt
238.14
Carport YN
false
Community Features
Deed Restrictions, Park
Construction Materials
Block, Stucco, Frame
Contract Status
Inspections
Cooling
Central Air
Country
US
Cumulative Days On Market
60
Current Price
798000.00
Direction Faces
Southeast
Disaster Mitigation
Hurricane Shutters/Windows
Elementary School
Myakka River Elementary
Expected Closing Date
2026-04-30T00:00:00.000
Exterior Features
French Doors, Hurricane Shutters, Outdoor Shower, Private Mailbox, Rain Gutters, Sliding Doors, Storage
Fireplace Features
Gas, Living Room
Fireplace YN
true
Flood Zone Code
AE
Flood Zone Date
2003-05-05
Flood Zone Panel
12015C0212F
Flooring
Carpet, Ceramic Tile, Hardwood
Foundation Details
Slab, Stem Wall
Furnished
Negotiable
Garage Dimensions
21x20
Garage Spaces
2
Garage YN
true
Heating
Central
High School
Lemon Bay High
Home Warranty YN
false
Homestead YN
1
Interior Features
Ceiling Fans(s), Coffered Ceiling(s), Crown Molding, Eat-in Kitchen, High Ceilings, In Wall Pest System, Open Floorplan, Primary Bedroom Main Floor, Solid Wood Cabinets, Split Bedroom, Stone Counters, Thermostat, Tray Ceiling(s), Walk-In Closet(s), Window Treatments
Internet Address Display YN
true
Internet Automated Valuation Display YN
false
Internet Consumer Comment YN
false
Internet Entire Listing Display YN
true
Laundry Features
Inside, Laundry Room
Levels
Two
List AOR
Englewood
Living Area Meters
311.32
Living Area Source
Public Records
Living Area Units
Square Feet
Lot Features
FloodZone, Landscaped, Paved
Lot Size Acres
0.23
Lot Size Dimensions
77x125x84x125
Lot Size Square Feet
10000
Lot Size Square Meters
929
Middle Or Junior School
L.A. Ainger Middle
Minimum Lease
No Minimum
Modification Timestamp
2026-04-02T14:39:09.507Z
Monthly HOA Amount
10.00
New Construction YN
false
Number Of Lots
1
Number Of Wells
1
Occupant Type
Owner
Other Equipment
Irrigation Equipment
Other Structures
Shed(s)
Ownership
Fee Simple
Parcel Number
412115157006
Patio And Porch Features
Covered, Rear Porch, Screened
Pet Restrictions
Common Household Domestic Pets Allowed
Pets Allowed
Yes
Pool Dimensions
21x11
Pool Private YN
true
Postal Code Plus 4
8300
Previous List Price
880000
Price Change Timestamp
2026-03-11T02:32:02.000Z
Property Attached YN
false
Property Condition
Completed
Public Survey Range
21
Public Survey Section
15
Purchase Contract Date
2026-04-02
RATIO Current Price By Calculated SqFt
238.14
Realtor Info
Scrub Jay-Check with County, Sign, Survey Available
Road Surface Type
Asphalt, Paved
Roof
Tile
Room Count
14
SW Subdiv Community Name
Port Charlotte
Security Features
Smoke Detector(s)
Senior Community YN
false
Sewer
Public Sewer
Showing Requirements
Combination Lock Box, ShowingTime
Spa Features
Heated, In Ground
Spa YN
true
Status Change Timestamp
2026-04-02T14:39:00.000Z
Stories Total
2
Tax Annual Amount
8562
Tax Block
4970
Tax Book Number
9-1
Tax Legal Description
PCH 093 4970 0006 PORT CHARLOTTE SEC93 BLK4970 LT 6 688/178 863/1052 AFF994/1575 993/778 1051/539 1099/2003 1918/432 2429/1341 RES3098/1622 RES3104/1826 E3295/697
Tax Lot
6
Tax Year
2025
Total Acreage
0 to less than 1/4
Total Annual Fees
120.00
Total Monthly Fees
10.00
Township
41
Universal Property Id
US-12015-N-412115157006-R-N
Unparsed Address
15052 AQUARIUS CIR
Utilities
BB/HS Internet Available, Cable Connected, Electricity Connected, Mini Sewer, Propane, Public, Sewer Available, Sewer Connected, Sprinkler Well, Water Connected
Vegetation
Mature Landscaping, Trees/Landscaped
Water Access
Bay/Harbor, Brackish Water, Canal - Brackish, Gulf/Ocean to Bay, Intracoastal Waterway, River
Water Access YN
1
Water Body Name
CHINOOK WATERWAY
Water Extras
Lift, Lock, Sailboat Water, Seawall - Concrete
Water Extras YN
1
Water Frontage Feet Canal Brackish
84
Water Source
Public, Well
Water View
Canal
Water View YN
1
Waterfront Feet Total
84
Waterfront YN
true
Window Features
Shutters, Window Treatments
Zoning
RSF3.5
Zoning Compatible YN
1
Neighborhood Map
Popup

Property Photos
Listing Photo
Listing Photo
Listing Photo
Listing Photo
Listing Photo
Listing Photo
Listing Photo
Listing Photo
Listing Photo
Listing Photo
Listing Photo
Listing Photo
Listing Photo
Listing Photo
Listing Photo
Listing Photo
Listing Photo
Listing Photo
Listing Photo
Listing Photo
Listing Photo
Listing Photo
Listing Photo
Listing Photo
Listing Photo
Listing Photo
Listing Photo
Listing Photo
Listing Photo
Listing Photo
Listing Photo
Listing Photo
Listing Photo
Listing Photo
Listing Photo
Listing Photo
Listing Photo
Listing Photo
Listing Photo
Listing Photo
Listing Photo
Listing Photo
Listing Photo
Listing Photo
Listing Photo
Listing Photo
Listing Photo
Listing Photo
Listing Photo
Listing Photo
Listing Photo
Listing Photo
Listing Photo
Listing Photo
Listing Photo
Listing Photo
Listing Photo
Listing Photo
Listing Photo
Listing Photo
Listing Photo
Listing Photo
Listing Photo
Listing Photo
Listing Photo
Listing Photo
Listing Photo
Listing Photo
Listing Photo
Listing Photo
Listing Photo
Listing Photo
Listing Photo
Listing Photo
Listing Photo
Listing Photo
Listing Photo
Listing Photo
Listing Photo
Listing Photo
Listing Photo
Listing Photo

MLS #MFRD6145717 Listing courtesy of Paradise Exclusive Inc provided by Stellar MLS.

Similar Listings

$719,900
15684 Havana Circle
Port Charlotte
3BR/3BA
| Active
$725,000
2644 Myakka Marsh Lane
Port Charlotte
3BR/3BA
| Pending
$725,000
13359 Tolman Avenue
Port Charlotte
3BR/3BA
| Active
$729,500
13314 Prentice Avenue
Port Charlotte
3BR/3BA
| Pending



All listing information is deemed reliable but not guaranteed and should be independently verified through personal inspection by appropriate professionals. Listings displayed on this website may be subject to prior sale or removal from sale; availability of any listing should always be independent verified. Listing information is provided for consumer personal, non-commercial use, solely to identify potential properties for potential purchase; all other use is strictly prohibited and may violate relevant federal and state law. The source of the listing data is as follows: Stellar MLS (updated 4/2/26 5:30 PM) |

Listing Search



Translate Tool

Featured Listings
Kissimmee Real Estate
$990,000
4 BED
3 BATH
Peaceful living at its finest in Happy Trails, a gated community, minutes from the Disney Resort! Renovated 4/3 main hou... Read More
Tampa Real Estate
$1,250,000
3 BED
2 BATH
Welcome to luxury waterfront living in the highly sought-after Westshore Yacht Club, where this exquisitely updated resi... Read More
Newberry Real Estate
$849,000
4 BED
3 BATH
As you pull through the gates, you immediately feel the difference. There’s space here. Not just in the size of the lot,... Read More
Holmes Beach Real Estate
$935,000
2 BED
2 BATH
Stunning Coastal Retreat – Blue Lagoon, North Holmes Beach Experience the ultimate Anna Maria Island lifestyle in this b... Read More
New Port Richey Real Estate
$875,000
3 BED
2 BATH
Ready to live everyday like you're on a vacation? Welcome to 5401 Pilots Place. This 3-bedroom, 2-bathroom, 2 car garage... Read More
Palmetto Real Estate
$1,200,000
4 BED
3 BATH
This sweet and charming waterfront home is a true must-see, perfectly positioned on the Manatee River with direct access... Read More
Port Charlotte Real Estate
$899,000
4 BED
3 BATH
One or more photo(s) has been virtually staged. Stunning new construction with builder warranty on a sailboat access can... Read More
Tampa Real Estate
$849,000
5 BED
3 BATH
Welcome to one of South Tampa’s most compelling opportunities—where elevated construction meets modern luxury in a home ... Read More
Winter Park Real Estate
$975,000
3 BED
2 BATH
One or more photo(s) has been virtually staged. OUTSTANDING RENOVATION in a FANTASTIC LOCATION! Peace, Quiet & GOLF COUR... Read More
Tampa Real Estate
$875,000
5 BED
4 BATH
Best value in South Tampa for a newer 5-bedroom home—don’t miss this move-in ready 2020 build offering space, flexibilit... Read More
Contact Sandra Pardo

407-990-2746

Wendy Morris LLC

Licensed in the State of Florida
BK 3146762
16797 Broadwater Avenue
Winter Garden, Florida 34787

Your privacy is our utmost concern. We will never sell your personal information. Privacy Policy
©2026 sandrapardohomes.com - all rights reserved. | Site Map