407-990-2746
Menu

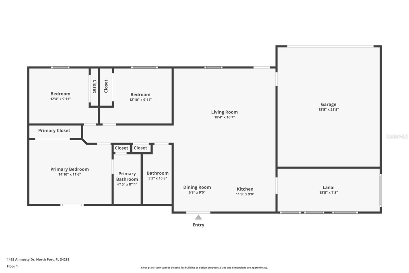
1493 Amnesty Drive, North Port, FL

NEXT
PREV
$269,900

($231/sqft)

List Status: Active
1493 Amnesty Drive
North Port, FL 34288


3 beds
2 baths
1170 living sqft
Top Features
  • Subdivision: Port Charlotte Sub 49
  • Built in  2015
  • Single Family Residence
Description
Property Details
Additional Information
Additional Lease Restrictions
Buyers to verify leasing restrictions
Additional Parcels YN
false
Alternate Key Folio Num
1117240205
Appliances
Dishwasher, Electric Water Heater, Range, Refrigerator
Association YN
false
Attached Garage YN
true
Available For Lease YN
1
Bathrooms Total Integer
2
Building Area Source
Public Records
Building Area Total
1790
Building Area Total Srch SqM
166.30
Building Area Units
Square Feet
Calculated List Price By Calculated SqFt
230.68
Carport YN
false
Construction Materials
Block, Stucco
Cooling
Central Air
Country
US
Cumulative Days On Market
97
Current Price
269900.00
Direction Faces
Northeast
Exterior Features
Hurricane Shutters, Lighting, Other
Fencing
Chain Link
Fireplace YN
false
Flood Zone Code
X
Flood Zone Date
2016-11-04
Flood Zone Panel
12115C0384F
Flooring
Tile
Foundation Details
Slab, Stem Wall
Furnished
Negotiable
Garage Spaces
2
Garage YN
true
Heating
Central, Electric
Home Warranty YN
false
Homestead YN
1
Interior Features
Ceiling Fans(s), Eat-in Kitchen, High Ceilings, Kitchen/Family Room Combo, Open Floorplan, Thermostat
Internet Address Display YN
true
Internet Automated Valuation Display YN
true
Internet Consumer Comment YN
false
Internet Entire Listing Display YN
true
Laundry Features
In Garage
Levels
One
List AOR
Port Charlotte
Living Area Meters
108.70
Living Area Source
Public Records
Living Area Units
Square Feet
Lot Features
Corner Lot
Lot Size Acres
0.29
Lot Size Square Feet
12747
Lot Size Square Meters
1184
Minimum Lease
No Minimum
Modification Timestamp
2026-01-29T20:11:09.148Z
New Construction YN
false
Number Of Septics
1
Number Of Wells
1
Occupant Type
Owner
Ownership
Fee Simple
Parcel Number
1117240205
Patio And Porch Features
Front Porch, Rear Porch, Screened
Pool Private YN
false
Postal Code Plus 4
6861
Previous List Price
274900
Price Change Timestamp
2026-01-29T20:10:19.000Z
Property Condition
Completed
Public Remarks
Welcome to 1493 Amnesty Drive in Beautiful North Port Florida. This 1 owner, 3 Bedroom, 2 Bathroom home was built in 2015 and sits on an oversized, fenced in corner lot! Conveniently located near Price Blvd and Toledo Blade, jumping on the interstate to travel is a breeze. With just a couple minute drive you have access to Shopping, dining, schools, parks and so much more. Furnishings are negotiable
Public Survey Range
22
Public Survey Section
19
RATIO Current Price By Calculated SqFt
230.68
Realtor Info
As-Is, Owner Motivated, Sign
Road Surface Type
Asphalt, Paved
Roof
Shingle
Room Count
6
SW Subdiv Community Name
Port Charlotte Sub
Senior Community YN
false
Sewer
Septic Tank
Showing Requirements
24 Hour Notice, See Remarks, ShowingTime
Status Change Timestamp
2025-10-24T14:33:50.000Z
Tax Annual Amount
2227
Tax Block
2402
Tax Book Number
21-1
Tax Legal Description
LOT 5 BLK 2402 49TH ADD TO PORT CHARLOTTE
Tax Lot
5
Tax Year
2024
Total Acreage
1/4 to less than 1/2
Total Annual Fees
0.00
Total Monthly Fees
0.00
Township
39
Universal Property Id
US-12115-N-1117240205-R-N
Unparsed Address
1493 AMNESTY DR
Utilities
BB/HS Internet Available, Cable Available, Electricity Connected
Water Source
Well
Waterfront YN
false
Zoning
RSF2
Neighborhood Map
Popup

Property Photos
Listing Photo
Listing Photo
Listing Photo
Listing Photo
Listing Photo
Listing Photo
Listing Photo
Listing Photo
Listing Photo
Listing Photo
Listing Photo
Listing Photo
Listing Photo
Listing Photo
Listing Photo
Listing Photo
Listing Photo
Listing Photo
Listing Photo
Listing Photo
Listing Photo
Listing Photo
Listing Photo
Listing Photo
Listing Photo
Listing Photo
Listing Photo
Listing Photo
Listing Photo
Listing Photo
Listing Photo
Listing Photo
Listing Photo
Listing Photo
Listing Photo
Listing Photo
Listing Photo
Listing Photo
Listing Photo
Listing Photo
Listing Photo
Listing Photo
Listing Photo
Listing Photo
Listing Photo
Listing Photo
Listing Photo
Listing Photo
Listing Photo
Listing Photo
Listing Photo
Listing Photo
Listing Photo
Listing Photo
Listing Photo
Listing Photo
Listing Photo
Listing Photo
Listing Photo
Listing Photo
Listing Photo
Listing Photo
Listing Photo
Listing Photo
Listing Photo
Listing Photo
Listing Photo
Listing Photo
Listing Photo
Listing Photo
Listing Photo
Listing Photo
Listing Photo
Listing Photo
Listing Photo
Listing Photo
Listing Photo
Listing Photo
Listing Photo
Listing Photo

MLS #MFRC7516699 Listing courtesy of Re/max Palm Realty provided by Stellar MLS.

Similar Listings

$245,000
5632 Espanola Avenue
North Port
3BR/2BA
| Active
$245,000
3459 Lotus Road
North Port
3BR/2BA
| Pending
$245,000
1421 Oregon Lane
North Port
3BR/2BA
| Active
$247,900
3435 Duar Terrace
North Port
3BR/2BA
| Active



All listing information is deemed reliable but not guaranteed and should be independently verified through personal inspection by appropriate professionals. Listings displayed on this website may be subject to prior sale or removal from sale; availability of any listing should always be independent verified. Listing information is provided for consumer personal, non-commercial use, solely to identify potential properties for potential purchase; all other use is strictly prohibited and may violate relevant federal and state law. The source of the listing data is as follows: Stellar MLS (updated 2/5/26 7:39 PM) |

Listing Search



Translate Tool

Featured Listings
St Pete Beach Real Estate
$1,150,000
2 BED
2 BATH
Wesley Chapel Real Estate
$948,990
5 BED
3 BATH
St Pete Beach Real Estate
$1,250,000
2 BED
2 BATH
Bradenton Real Estate
$1,195,000
3 BED
2 BATH
Madeira Beach Real Estate
$1,500,000
5 BED
4 BATH
Bradenton Real Estate
$1,099,000
4 BED
3 BATH
Auburndale Real Estate
$800,000
4 BED
4 BATH
Tavares Real Estate
$850,000
3 BED
2 BATH
St Petersburg Real Estate
$829,000
2 BED
1 BATH
Ocala Real Estate
$800,000
4 BED
3 BATH
Contact Sandra Pardo

407-990-2746

Wendy Morris LLC

Licensed in the State of Florida
BK 3146762
16797 Broadwater Avenue
Winter Garden, Florida 34787

Your privacy is our utmost concern. We will never sell your personal information. Privacy Policy
©2026 sandrapardohomes.com - all rights reserved. | Site Map