407-990-2746
Menu

11430 Sw 61st Place Road, Ocala, FL

NEXT
PREV
$797,000

($251/sqft)

List Status: Pending
11430 Sw 61st Place Road
Ocala, FL 34481


4 beds
3 baths
3172 living sqft
Top Features
  • View: Trees/Woods
  • Subdivision: Rolling Hills Un #5
  • Built in  2025
  • Single Family Residence
Description
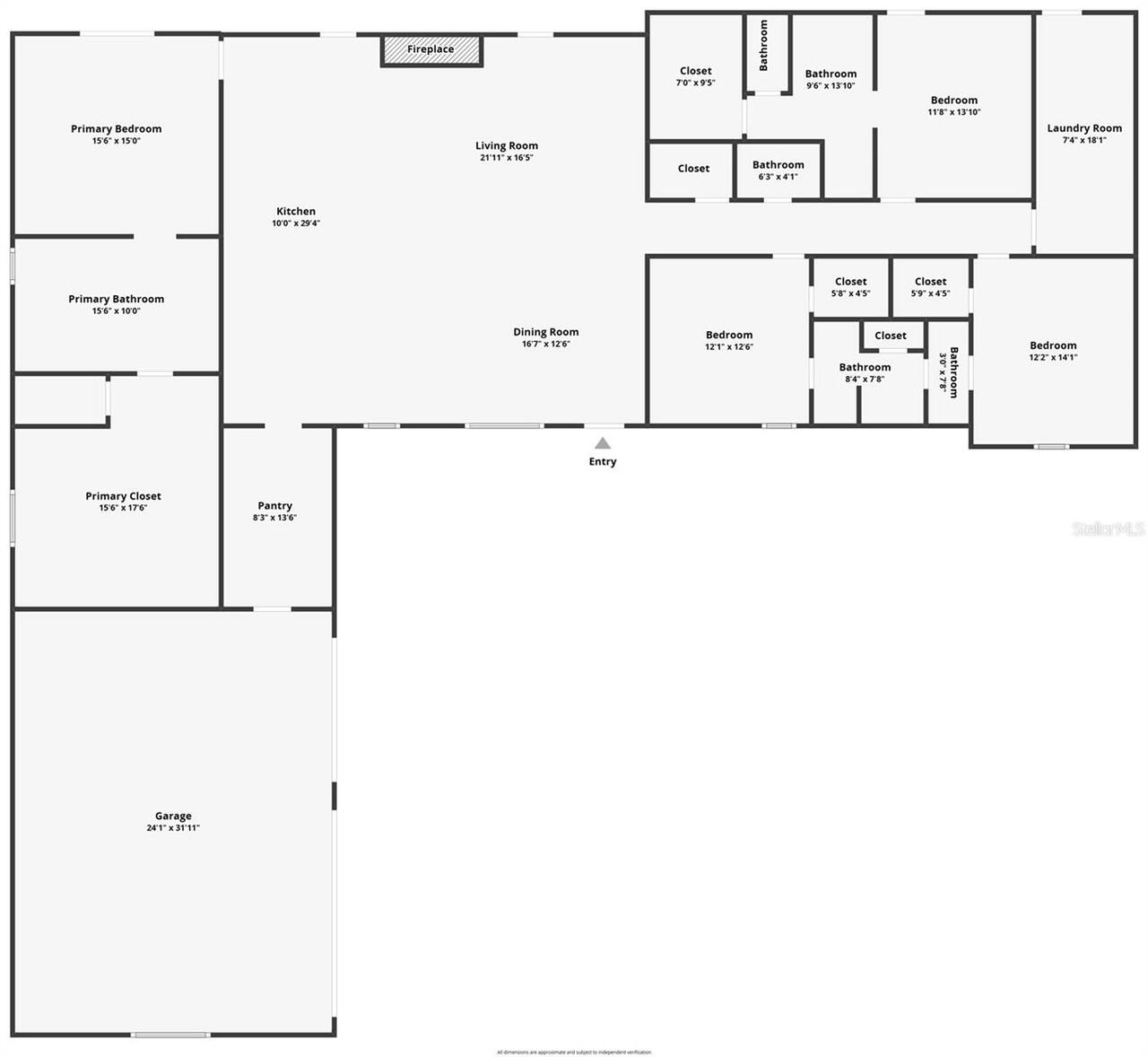
Under contract-accepting backup offers. Step into this brand-new 4-bedroom, 3.5-bath farmhouse where timeless charm meets luxury design. Set on over an acre of land, this home offers the peace and space of country living — without the restrictions of an HOA. Who doesn't want 2 laundry rooms and 2 dishwashers with a 3 car garage. The extras are endless in this new floorpan. Gas fireplace and gas stove with vaulted ceilings just isn't something you will find in most homes. From the moment you pull up, you’ll fall in love with the clean farmhouse lines, inviting front porch, and attention to detail that defines BRIJE Homes. Inside, discover an open-concept layout with upgraded finishes throughout — from the upgrade cabinets and trim work to the elegant flooring. The gourmet kitchen opens to a spacious great room, creating the perfect gathering spot for family and friends. A private owner’s suite offers a spa-inspired bathroom and generous walk-in closet, while three additional bedrooms provide space for family, guests, or a home office. Enjoy covered outdoor living with plenty of room to add a pool, workshop, or garden — the possibilities are endless. Most of yard is fenced and includes a gate to enter the home with paver driveway and turned garage. Highlights:     •    New construction with upgraded designer finishes     •    4 Bedrooms | 3.5 Bathrooms | Open-concept design     •    Sits on 1+ acre — room for toys, animals, and future projects     •    No HOA – freedom to live your way     •    Built by BRIJE LLC, known for quality and timeless farmhouse style If you’ve been dreaming of a modern farmhouse lifestyle close to town but surrounded by open space — this is it. There are site changes made by the builder . Can't verify floorplan and images to be exact as site changes are made.
Property Details
Property Features
Property Sub Type
Single Family Residence
View
Trees/Woods
County
Marion
Subdivision
ROLLING HILLS UN #5
Additional Information
Additional Lease Restrictions
Check county for restrictions
Additional Parcels YN
false
Alternate Key Folio Num
3495-144-115
Appliances
Cooktop, Dishwasher, Disposal, Microwave, Range
Architectural Style
Traditional
Association YN
false
Attached Garage YN
true
Available For Lease YN
1
Bathrooms Total Integer
4
Builder License Number
CGC1507996
Builder Model
3172
Builder Name
BRIJE LLC
Building Area Source
Builder
Building Area Total
4928
Building Area Total Srch SqM
457.83
Building Area Units
Square Feet
Calculated List Price By Calculated SqFt
251.26
Carport YN
false
Construction Materials
Block, Cement Siding
Contract Status
Financing, Inspections
Cooling
Central Air
Country
US
Cumulative Days On Market
170
Current Price
797000.00
Direction Faces
Northwest
Elementary School
Dunnellon Elementary School
Expected Closing Date
2026-06-23T00:00:00.000
Fireplace YN
false
Flood Zone Code
x
Flooring
Tile
Foundation Details
Slab
Garage Spaces
3
Garage YN
true
Heating
Electric
High School
Dunnellon High School
Interior Features
High Ceilings, In Wall Pest System, Open Floorplan
Internet Address Display YN
true
Internet Automated Valuation Display YN
true
Internet Consumer Comment YN
true
Internet Entire Listing Display YN
true
Laundry Features
Laundry Room
Levels
One
List AOR
Orlando Regional
Living Area Meters
294.69
Living Area Source
Builder
Living Area Units
Square Feet
Lot Features
Landscaped, Level, Oversized Lot, Private, Paved
Lot Size Acres
1.14
Lot Size Dimensions
165x300
Lot Size Square Feet
49658
Lot Size Square Meters
4613
Middle Or Junior School
Dunnellon Middle School
Minimum Lease
No Minimum
Modification Timestamp
2026-05-15T21:05:12.287Z
New Construction YN
true
Number Of Wells
1
Occupant Type
Vacant
Other Equipment
Irrigation Equipment
Ownership
Fee Simple
Parcel Number
3495-144-115
Permit Number
2025090429
Pet Restrictions
Check county for any restrictions
Pool Private YN
false
Previous List Price
798000
Price Change Timestamp
2026-03-23T16:16:43.000Z
Projected Completion Date
2026-02-14T00:00:00.000
Property Condition
Completed
Public Survey Range
20E
Public Survey Section
33
Purchase Contract Date
2026-04-02
RATIO Current Price By Calculated SqFt
251.26
Road Surface Type
Paved
Roof
Shingle
Room Count
6
Senior Community YN
false
Sewer
Septic Tank
Showing Requirements
Combination Lock Box
Status Change Timestamp
2026-04-04T19:16:43.000Z
Tax Annual Amount
444.45
Tax Block
144
Tax Book Number
L-077ROLLING
Tax Legal Description
SEC 33 TWP 15 RGE 20 PLAT BOOK L PAGE 077 ROLLING HILLS UNIT 5 BLK 144 LOT 15 W 1/2
Tax Lot
15
Tax Year
2024
Total Acreage
1 to less than 2
Total Annual Fees
0.00
Total Monthly Fees
0.00
Township
15S
Universal Property Id
US-12083-N-3495144115-R-N
Unparsed Address
11430 SW 61ST PLACE RD
Utilities
Electricity Connected, Water Available
Water Source
Well
Waterfront YN
false
Zoning
R1
Neighborhood Map
Popup

Property Photos
Listing Photo
Listing Photo
Listing Photo
Listing Photo
Listing Photo
Listing Photo
Listing Photo
Listing Photo
Listing Photo
Listing Photo
Listing Photo
Listing Photo
Listing Photo
Listing Photo
Listing Photo
Listing Photo
Listing Photo
Listing Photo
Listing Photo
Listing Photo
Listing Photo
Listing Photo
Listing Photo
Listing Photo
Listing Photo
Listing Photo
Listing Photo
Listing Photo
Listing Photo
Listing Photo
Listing Photo
Listing Photo
Listing Photo
Listing Photo
Listing Photo
Listing Photo
Listing Photo
Listing Photo
Listing Photo
Listing Photo
Listing Photo
Listing Photo
Listing Photo
Listing Photo
Listing Photo
Listing Photo
Listing Photo
Listing Photo
Listing Photo
Listing Photo
Listing Photo
Listing Photo
Listing Photo
Listing Photo
Listing Photo
Listing Photo
Listing Photo
Listing Photo
Listing Photo
Listing Photo
Listing Photo
Listing Photo
Listing Photo
Listing Photo
Listing Photo
Listing Photo
Listing Photo
Listing Photo
Listing Photo
Listing Photo
Listing Photo
Listing Photo
Listing Photo
Listing Photo
Listing Photo
Listing Photo
Listing Photo
Listing Photo
Listing Photo
Listing Photo
Listing Photo
Listing Photo
Listing Photo
Listing Photo
Listing Photo
Listing Photo
Listing Photo
Listing Photo
Listing Photo
Listing Photo
Listing Photo
Listing Photo
Listing Photo
Listing Photo
Listing Photo
Listing Photo
Listing Photo
Listing Photo
Listing Photo
Listing Photo
Listing Photo
Listing Photo
Listing Photo
Listing Photo
Listing Photo
Listing Photo

MLS #MFRO6352609 Listing courtesy of Brije Real Estate Llc provided by Stellar MLS.

Similar Listings

$719,000
3907 Se 10th Avenue
Ocala
4BR/3BA
| Pending
$725,000
8730 Nw 17th Circle
Ocala
4BR/3BA
| Active
$725,000
9528 Se 70th Terrace
Ocala
4BR/3BA
| Active
$749,000
2125 Se 25th Loop
Ocala
4BR/3BA
| Active



All listing information is deemed reliable but not guaranteed and should be independently verified through personal inspection by appropriate professionals. Listings displayed on this website may be subject to prior sale or removal from sale; availability of any listing should always be independent verified. Listing information is provided for consumer personal, non-commercial use, solely to identify potential properties for potential purchase; all other use is strictly prohibited and may violate relevant federal and state law. The source of the listing data is as follows: Stellar MLS (updated 5/16/26 1:28 AM) |

Listing Search



Translate Tool

Featured Listings
Sarasota Real Estate
$1,500,000
4 BED
4 BATH
Blending sophisticated design with the feel of a luxury retreat, this stunning 4-bedroom, 4-bath spacious executive home... Read More
Windermere Real Estate
$1,189,000
6 BED
4 BATH
One or more photo(s) has been virtually staged. Tucked within the gated enclave of Eden Isle in Windermere’s Summerport,... Read More
Weeki Wachee Real Estate
$1,399,000
3 BED
3 BATH
Under contract-accepting backup offers. Home is DIRECTLY on the WEEKI WACHEE RIVER. LOCATION is just one of the many gre... Read More
Tampa Real Estate
$874,900
3 BED
2 BATH
One or more photo(s) has been virtually staged. SELLER IS REVIEWING ALL REASONABLE OFFERS. PLEASE BRING YOUR OFFER TODAY... Read More
Sarasota Real Estate
$1,299,000
5 BED
4 BATH
This meticulously upgraded home blends modern coastal elegance with resort-style indoor and outdoor living. From the mom... Read More
Maitland Real Estate
$959,000
5 BED
3 BATH
Welcome to this meticulously updated, one-story masterpiece situated on a sprawling, professionally landscaped 1/3-acre ... Read More
Port Charlotte Real Estate
$1,400,000
3 BED
4 BATH
STUNNING LUXURY BAYFRONT HOME ON OVERSIZED LOT WITH GULF ACCESS. Welcome to this exquisite custom-built bayfront home, p... Read More
Pinellas Park Real Estate
$1,190,000
4 BED
3 BATH
Discover a rare blend of space, style, and flexibility in this architecturally striking custom residence located in the ... Read More
St Cloud Real Estate
$1,295,000
4 BED
4 BATH
**Appraisal Completed for Buyer, Price Updated** Set beneath a canopy of majestic oak trees on nearly one acre of pristi... Read More
Orlando Real Estate
$1,435,000
5 BED
5 BATH
One or more photo(s) has been virtually staged. A RARE FIND IN LAKE NONA ! PRICED TO SELL! Welcome to this fairly new lu... Read More
Contact Sandra Pardo

407-990-2746

Wendy Morris LLC

Licensed in the State of Florida
BK 3146762
16797 Broadwater Avenue
Winter Garden, Florida 34787

Your privacy is our utmost concern. We will never sell your personal information. Privacy Policy
©2026 sandrapardohomes.com - all rights reserved. | Site Map