407-990-2746
Menu

14141 Heritage Landing Boulevard Unit: Unit: 921, Punta Gorda, FL

NEXT
PREV
$270,000

($208/sqft)

List Status: Active
14141 Heritage Landing Boulevard
Punta Gorda, FL 33955


3 beds
2 baths
1301 living sqft
Top Features
  • View: Water, Trees/Woods
  • Subdivision: Heritage Landing
  • Built in  2023
  • Condominium
Description
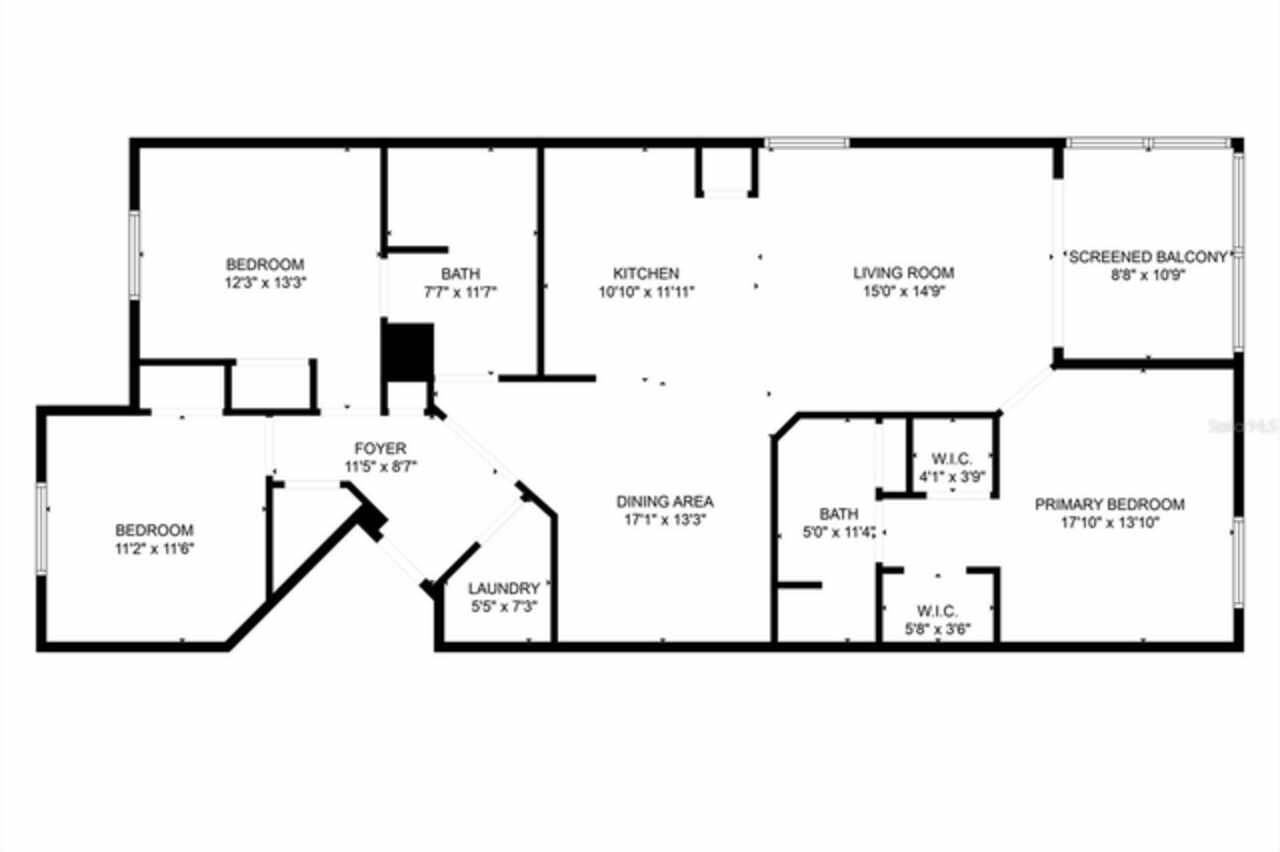
This is the perfect opportunity to enjoy resort style living in one of Southwest Florida’s most desirable Gated communities. This sought after three bedroom two bath end unit, the Carolina model, with 1301 ft.² overlooking a serene pond and preserve where you can enjoy peaceful mornings on your private lanai and  take in spectacular sunsets each evening.  Inside the condo features quartz countertops in the kitchen and baths, stainless steel appliances and stylish gray tile laid on the diagonal, providing a neutral and sophisticated backdrop for your personal decor,  impact resistant windows offer added security,  peace of mind and energy efficiency. With three spacious bedrooms, and two full bathrooms arranged in a split floor plan there’s plenty of privacy for guests or family. Across your outside hallway is a private exterior storage room. Residents also enjoy access to an 18 hole par 71 championship golf course complete with a pro shop and snack bar. The community also features six Har-Tru tournament- grade Tennis courts, six Pickleball courts and two Bocce ball courts. Stay fit at the 24/7 Fitness Center equipped with Nautilus strength, equipment, treadmills,  recumbent bikes, rowing machine,  elliptical,  two TRX stations and two Echelon Fit virtual workout mirrors, Personal trainers and group classes are also available. Unwind at the Getaway Spa offering massages, facials, and nail services.  After your workout or game relax in one of the communities five pools, including the main resort style pool with a fabulous Tiki Bar, live entertainment, and big screen TVs for game day viewing. Enjoy more formal dining at the newly opened Clubhouse where the restaurant features weekly meal specials and a welcoming community atmosphere all coordinated by an on-site Activities Director. Punta Gorda is a hidden gem in the SWFL area, it prides itself as a small harbor town with the best fishing and boating in the area. Enjoy quaint restaurants, and shops downtown, a beautifu
Property Details
Additional Information
Additional Lease Restrictions
SEE ATTACHED DOCS
Additional Parcels YN
false
Alternate Key Folio Num
422317504002
Amenities Additional Fees
DAY SPA, TIKI BAR, GOLF PRO SERVICES. Annual Restaurant Expenditure $750 Annually
Appliances
Dishwasher, Dryer, Microwave, Range, Refrigerator, Washer
Approval Process
SEE ATTACHED DOCS
Association Approval Required YN
1
Association Email
MLONGARES@THEICONTEAM.COM
Association Fee Frequency
Quarterly
Association Fee Includes
Guard - 24 Hour, Common Area Taxes, Pool, Escrow Reserves Fund, Fidelity Bond, Insurance, Maintenance Structure, Maintenance Grounds, Maintenance, Management, Pest Control, Private Road, Recreational Facilities, Security, Sewer, Trash, Water
Association Fee Requirement
Required
Association URL
HTTPS://THEICONTEAM.COM
Association YN
true
Available For Lease YN
1
Bathrooms Total Integer
2
Building Area Source
Public Records
Building Area Total
1301
Building Area Total Srch SqM
120.87
Building Area Units
Square Feet
Building Elevator YN
1
CDDYN
1
Calculated List Price By Calculated SqFt
207.53
Carport YN
false
Community Features
Association Recreation - Owned, Buyer Approval Required, Clubhouse, Deed Restrictions, Fitness Center, Gated Community - Guard, Golf, Irrigation-Reclaimed Water, Pool, Restaurant, Sidewalks, Tennis Court(s)
Condo Fees
1356
Condo Fees Term
Quarterly
Construction Materials
Block, Concrete, Stucco
Cooling
Central Air
Country
US
Cumulative Days On Market
182
Current Price
270000.00
Direction Faces
South
Exterior Features
Balcony, Lighting, Private Mailbox, Sliding Doors, Sprinkler Metered
Fireplace YN
false
Flood Zone Code
AE
Flood Zone Date
2022-12-15
Flood Zone Panel
12015C0408G
Floor Number
2
Flooring
Carpet, Ceramic Tile
Foundation Details
Slab
Furnished
Unfurnished
Garage YN
false
Heating
Central, Electric
Interior Features
Ceiling Fans(s), Elevator, Open Floorplan, Walk-In Closet(s)
Internet Address Display YN
true
Internet Automated Valuation Display YN
false
Internet Consumer Comment YN
false
Internet Entire Listing Display YN
true
Laundry Features
Inside, Laundry Room
Lease Restrictions YN
1
Levels
One
List AOR
Port Charlotte
Living Area Meters
120.87
Living Area Source
Public Records
Living Area Units
Square Feet
Lot Features
Private
Max Pet Weight
100
Minimum Lease
1 Month
Modification Timestamp
2026-01-12T17:23:09.379Z
Monthly Condo Fee Amount
452
New Construction YN
false
Num Times per Year
12
Number Of Pets
3
Occupant Type
Vacant
Other Equipment
Irrigation Equipment
Other Fees Amount
750
Other Fees Term
Annual
Ownership
Condominium
Parcel Number
422317504002
Patio And Porch Features
Enclosed, Porch, Rear Porch
Pet Restrictions
SEE ATTACHED DOCS
Pet Size
Large (61-100 Lbs.)
Pets Allowed
Breed Restrictions, Cats OK, Yes
Pool Private YN
false
Postal Code Plus 4
6455
Previous List Price
275000
Price Change Timestamp
2026-01-12T17:22:20.000Z
Property Description
Mid Rise
Public Survey Range
23
Public Survey Section
17
RATIO Current Price By Calculated SqFt
207.53
Realtor Info
As-Is, Assoc approval required, CDD Addendum required, Docs Available, Lease Restrictions, No Sign
Road Responsibility
Private Maintained Road
Road Surface Type
Paved
Roof
Membrane, Tile
Room Count
8
SW Subdiv Community Name
Heritage Landing
Senior Community YN
false
Sewer
Public Sewer
Showing Requirements
No Lockbox, Other, See Remarks, ShowingTime
Spa YN
false
Status Change Timestamp
2026-01-12T17:21:55.000Z
Stories Total
4
Tax Annual Amount
5059.88
Tax Legal Description
T5H 001 0009 0921 TERRACE V AT HERITAGE LANDING PHASE 1 BLDG 9 UNIT 921 3334233
Tax Other Annual Assessment Amount
1373
Tax Year
2024
Total Annual Fees
8422.00
Total Monthly Fees
701.83
Township
42
Universal Property Id
US-12015-N-422317504002-S-921
Unparsed Address
14141 HERITAGE LANDING BLVD #921
Utilities
BB/HS Internet Available, Cable Available, Cable Connected, Electricity Available, Electricity Connected, Public, Sewer Connected, Water Connected
Vegetation
Mature Landscaping
Water Source
Public
Water View
Lake
Water View YN
1
Waterfront YN
false
Zoning
PD
Neighborhood Map
Popup

Property Photos
Listing Photo
Listing Photo
Listing Photo
Listing Photo
Listing Photo
Listing Photo
Listing Photo
Listing Photo
Listing Photo
Listing Photo
Listing Photo
Listing Photo
Listing Photo
Listing Photo
Listing Photo
Listing Photo
Listing Photo
Listing Photo
Listing Photo
Listing Photo
Listing Photo
Listing Photo
Listing Photo
Listing Photo
Listing Photo
Listing Photo
Listing Photo
Listing Photo
Listing Photo
Listing Photo
Listing Photo
Listing Photo
Listing Photo
Listing Photo
Listing Photo
Listing Photo
Listing Photo
Listing Photo
Listing Photo
Listing Photo
Listing Photo
Listing Photo
Listing Photo
Listing Photo
Listing Photo
Listing Photo
Listing Photo
Listing Photo
Listing Photo
Listing Photo
Listing Photo
Listing Photo
Listing Photo
Listing Photo
Listing Photo
Listing Photo
Listing Photo
Listing Photo
Listing Photo
Listing Photo
Listing Photo
Listing Photo
Listing Photo
Listing Photo
Listing Photo
Listing Photo
Listing Photo
Listing Photo
Listing Photo
Listing Photo
Listing Photo
Listing Photo
Listing Photo
Listing Photo
Listing Photo
Listing Photo

MLS #MFRC7511432 Listing courtesy of Marina Park Realty Llc provided by Stellar MLS.

Similar Listings

$244,900
1190 Capricorn Boulevard
Punta Gorda
3BR/2BA
| Pending
$245,000
17288 Acapulco Road
Punta Gorda
3BR/2BA
| Active
$245,000
26216 Flower Road
Punta Gorda
3BR/2BA
| Active
$247,700
2002 Bal Harbor Boulevard
Punta Gorda
3BR/2BA
| Pending



All listing information is deemed reliable but not guaranteed and should be independently verified through personal inspection by appropriate professionals. Listings displayed on this website may be subject to prior sale or removal from sale; availability of any listing should always be independent verified. Listing information is provided for consumer personal, non-commercial use, solely to identify potential properties for potential purchase; all other use is strictly prohibited and may violate relevant federal and state law. The source of the listing data is as follows: Stellar MLS (updated 4/3/26 5:32 AM) |

Listing Search



Translate Tool

Featured Listings
St Petersburg Real Estate
$1,250,000
3 BED
2 BATH
Why wait to build or rehab when you can *Move Right In* this Beautiful Venetian Isles Waterfront Pool Home on the Point ... Read More
Newberry Real Estate
$1,298,375
4 BED
4 BATH
Welcome to this breathtaking craftsman-style estate, gracefully set on 2.71 acres of scenic meadowland within the presti... Read More
Ocala Real Estate
$1,150,000
4 BED
3 BATH
Experience elevated living in this executive 4 Bedroom/3.5 Bath home, situated in the premier, centrally located Cedars ... Read More
Kissimmee Real Estate
$999,000
8 BED
5 BATH
Beautifully maintained home located in a desirable and fast-growing community! This spacious property offers a modern op... Read More
Clearwater Real Estate
$980,000
5 BED
2 BATH
Welcome guests through an impressive two-story entryway into this beautifully maintained home designed for both comfort ... Read More
Lake City Real Estate
$888,800
3 BED
5 BATH
A GEM in the heart of Lake City, FL, lies a rare treasure: a sprawling 5-acre estate enveloped by majestic oak and palm ... Read More
St Petersburg Real Estate
$1,185,000
2 BED
3 BATH
A rare waterfront offering in Pasadena Yacht & Country Club—this is the only condo currently available in Kipps Colony I... Read More
Palm Harbor Real Estate
$849,900
5 BED
3 BATH
One or more photo(s) has been virtually staged. Florida Living at Its Absolute Finest — Now Better Than Ever Welcome to ... Read More
University Park Real Estate
$1,098,000
3 BED
3 BATH
Under contract-accepting backup offers. Must see fabulous modern floor plan - One of just 19 residents in LANSDOWNE CRES... Read More
Kissimmee Real Estate
$880,000
7 BED
6 BATH
Beautifully furnished home is located on a Coner lot & conservation area in Storey Lake resort. Community offers ameniti... Read More
Contact Sandra Pardo

407-990-2746

Wendy Morris LLC

Licensed in the State of Florida
BK 3146762
16797 Broadwater Avenue
Winter Garden, Florida 34787

Your privacy is our utmost concern. We will never sell your personal information. Privacy Policy
©2026 sandrapardohomes.com - all rights reserved. | Site Map