407-990-2746
Menu

140 Brightwater Drive Unit: Unit: 6, Clearwater Beach, FL

NEXT
PREV
$1,325,000

($582/sqft)

List Status: Pending
140 Brightwater Drive
Clearwater Beach, FL 33767


3 beds
3 baths
2275 living sqft
Top Features
  • Frontage: Canal - Saltwater, Intracoastal Waterway
  • View: Water
  • Subdivision: Harborside Twnhms
  • Built in  2005
  • Townhouse
Description
Property Details
Additional Information
Additional Lease Restrictions
Buyer and buyer's agent to verify lease restrictions.
Additional Parcels YN
false
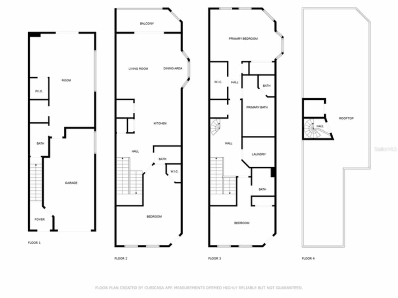
Additional Rooms
Bonus Room
Alternate Key Folio Num
082915363980000060
Appliances
Dishwasher, Disposal, Dryer, Electric Water Heater, Microwave, Range, Refrigerator, Washer
Association Amenities
Pool
Association Email
kfrey12@gmail.com
Association Fee
675
Association Fee Frequency
Monthly
Association Fee Includes
Pool, Escrow Reserves Fund, Insurance, Maintenance Grounds
Association Fee Requirement
Required
Association YN
true
Attached Garage YN
true
Available For Lease YN
1
Bathrooms Total Integer
4
Building Area Source
Owner
Building Area Total
2275
Building Area Total Srch SqM
211.35
Building Area Units
Square Feet
Building Elevator YN
1
Calculated List Price By Calculated SqFt
582.42
Carport YN
false
Community Features
Deed Restrictions, Pool
Construction Materials
Block
Cooling
Central Air, Mini-Split Unit(s)
Country
US
Cumulative Days On Market
273
Current Price
1325000.00
Direction Faces
South
Expected Closing Date
2026-01-06T00:00:00.000
Exterior Features
Balcony, Private Mailbox, Sidewalk, Sliding Doors
Fireplace YN
false
Flood Zone Code
AE
Flooring
Laminate, Tile, Wood
Foundation Details
Slab
Furnished
Partially
Garage Spaces
1
Garage YN
true
Heating
Central
Home Warranty YN
false
Interior Features
Ceiling Fans(s), Crown Molding, Eat-in Kitchen, Elevator, High Ceilings, Kitchen/Family Room Combo, Solid Surface Counters, Thermostat, Walk-In Closet(s), Window Treatments
Internet Address Display YN
true
Internet Automated Valuation Display YN
true
Internet Consumer Comment YN
true
Internet Entire Listing Display YN
true
Laundry Features
Inside
Lease Restrictions YN
1
Levels
Three Or More
List AOR
Suncoast Tampa
Listing Exclusion YN
1
Living Area Meters
211.35
Living Area Source
Owner
Living Area Units
Square Feet
Lot Features
Near Marina, Sidewalk, Street Dead-End
Lot Size Acres
0.06
Lot Size Square Feet
2805
Lot Size Square Meters
261
Minimum Lease
1-7 Days
Modification Timestamp
2025-12-04T01:52:09.054Z
Monthly HOA Amount
675.00
New Construction YN
false
Occupant Type
Vacant
Other Equipment
Irrigation Equipment
Ownership
Fee Simple
Parcel Number
08-29-15-36398-000-0060
Patio And Porch Features
Covered, Rear Porch
Pet Restrictions
Buyer and buyer's agent to verify pet restrictions
Pets Allowed
Yes
Pool Private YN
true
Postal Code Plus 4
2424
Previous List Price
1395000
Price Change Timestamp
2025-10-02T10:43:44.000Z
Property Description
End Unit
Public Remarks
Under contract-accepting backup offers. Experience true waterfront living with this rare WEEKLY RENTAL townhome on the Intracoastal Waterway in world-famous Clearwater Beach. This 3-story, pet-friendly residence offers highly sought after features including a private boat slip with 9, 000 lb lift, weekly vacation rental potential, private garage, elevator to all floors, and a rooftop terrace with sweeping water views, perfect for both lifestyle buyers and investors seeking strong short-term rental income. Inside, enjoy a 2023 renovated chef’s kitchen with quartz countertops, stainless steel appliances, and an open-concept layout ideal for entertaining. Recently updated HVAC systems and mini-split provide added peace of mind. The spacious primary suite includes a spa-style bathroom and walk-in closet, creating the perfect coastal retreat. The ground-level bonus room opens directly to the heated resort-style community pool and your deep-water dock, making waterfront living effortless. Take the private elevator up to the rooftop terrace for panoramic Intracoastal sunrises and Gulf sunsets. Perfect as a primary residence, vacation home, or high-income short-term rental, this property offers unmatched flexibility and an unbeatable location just steps to white-sand beaches, restaurants, boating, and all the top attractions of Clearwater Beach.
Public Survey Range
15
Public Survey Section
08
Purchase Contract Date
2025-12-03
RATIO Current Price By Calculated SqFt
582.42
Realtor Info
As-Is
Road Responsibility
Public Maintained Road
Road Surface Type
Asphalt, Paved
Roof
Membrane, Tile
Room Count
3
Senior Community YN
false
Sewer
Public Sewer
Showing Requirements
Appointment Only, Call Listing Agent 2, See Remarks, ShowingTime
Status Change Timestamp
2025-12-04T01:51:39.000Z
Stories Total
3
Tax Annual Amount
20171.35
Tax Block
000
Tax Book Number
127-80
Tax Legal Description
HARBORSIDE TOWNHOMES LOT 6
Tax Lot
6
Tax Year
2024
Total Acreage
0 to less than 1/4
Total Annual Fees
8100.00
Total Monthly Fees
675.00
Township
29
Universal Property Id
US-12103-N-082915363980000060-S-6
Unparsed Address
140 BRIGHTWATER DR #6
Utilities
Cable Connected, Electricity Connected, Sewer Connected, Water Connected
Water Access
Canal - Saltwater, Gulf/Ocean, Intracoastal Waterway
Water Access YN
1
Water Body Name
INTRACOASTAL WATERWAY
Water Extras
Assigned Boat Slip, Lift
Water Extras YN
1
Water Source
Public
Water View
Bay/Harbor - Partial, Gulf/Ocean - Partial, Intracoastal Waterway
Water View YN
1
Waterfront YN
true
Neighborhood Map
Popup

Property Photos
Listing Photo
Listing Photo
Listing Photo
Listing Photo
Listing Photo
Listing Photo
Listing Photo
Listing Photo
Listing Photo
Listing Photo
Listing Photo
Listing Photo
Listing Photo
Listing Photo
Listing Photo
Listing Photo
Listing Photo
Listing Photo
Listing Photo
Listing Photo
Listing Photo
Listing Photo
Listing Photo
Listing Photo
Listing Photo
Listing Photo
Listing Photo
Listing Photo
Listing Photo
Listing Photo
Listing Photo
Listing Photo
Listing Photo
Listing Photo
Listing Photo
Listing Photo
Listing Photo
Listing Photo
Listing Photo
Listing Photo
Listing Photo
Listing Photo
Listing Photo
Listing Photo
Listing Photo
Listing Photo
Listing Photo
Listing Photo
Listing Photo
Listing Photo
Listing Photo
Listing Photo
Listing Photo
Listing Photo
Listing Photo
Listing Photo
Listing Photo
Listing Photo
Listing Photo
Listing Photo
Listing Photo
Listing Photo
Listing Photo
Listing Photo
Listing Photo
Listing Photo
Listing Photo
Listing Photo
Listing Photo
Listing Photo
Listing Photo
Listing Photo
Listing Photo
Listing Photo
Listing Photo
Listing Photo
Listing Photo
Listing Photo
Listing Photo
Listing Photo

MLS #MFRTB8412029 Listing courtesy of Coastal Properties Group International provided by Stellar MLS.

Similar Listings

$1,235,520
411 E Shore Drive
Clearwater Beach
3BR/3BA
| Active
$1,247,000
200 Brightwater Drive
Clearwater Beach
3BR/3BA
| Active
$1,250,000
202 Windward Passage
Clearwater Beach
3BR/3BA
| Active
$1,279,000
100 Bayside Drive
Clearwater Beach
3BR/3BA
| Active



All listing information is deemed reliable but not guaranteed and should be independently verified through personal inspection by appropriate professionals. Listings displayed on this website may be subject to prior sale or removal from sale; availability of any listing should always be independent verified. Listing information is provided for consumer personal, non-commercial use, solely to identify potential properties for potential purchase; all other use is strictly prohibited and may violate relevant federal and state law. The source of the listing data is as follows: Stellar MLS (updated 12/17/25 4:02 PM) |

Listing Search



Translate Tool

Featured Listings
Clearwater Beach Real Estate
$849,900
2 BED
2 BATH
Myakka City Real Estate
$826,000
4 BED
3 BATH
Punta Gorda Real Estate
$1,196,000
4 BED
3 BATH
Bradenton Real Estate
$1,200,000
4 BED
5 BATH
Winter Garden Real Estate
$884,500
4 BED
3 BATH
Odessa Real Estate
$845,000
4 BED
3 BATH
Tampa Real Estate
$824,900
4 BED
3 BATH
Clearwater Real Estate
$1,250,000
4 BED
3 BATH
Howey In The Hills Real Estate
$1,175,000
3 BED
3 BATH
Bradenton Real Estate
$975,000
4 BED
4 BATH
Contact Sandra Pardo

407-990-2746

Wendy Morris LLC

Licensed in the State of Florida
BK 3146762
16797 Broadwater Avenue
Winter Garden, Florida 34787

Your privacy is our utmost concern. We will never sell your personal information. Privacy Policy
©2025 sandrapardohomes.com - all rights reserved. | Site Map