407-990-2746
Menu

12010 San Chaliford Court, Tampa, FL

NEXT
PREV
$809,000

($274/sqft)

List Status: Active
12010 San Chaliford Court
Tampa, FL 33626


4 beds
3 baths
2952 living sqft
Top Features
  • Subdivision: Waterchase Ph 3
  • Built in  2004
  • Single Family Residence
Description
Property Details
Additional Information
Additional Lease Restrictions
See HOA Guidelines & Restrictions
Additional Parcels YN
false
Alternate Key Folio Num
0035191192
Appliances
Convection Oven, Dishwasher, Disposal, Gas Water Heater, Kitchen Reverse Osmosis System, Microwave, Range, Refrigerator
Approval Process
No Approval Process
Association Email
manager@waterchase.com
Association Fee
570
Association Fee Frequency
Quarterly
Association Fee Includes
Pool, Recreational Facilities, Security
Association Fee Requirement
Required
Association YN
true
Attached Garage YN
true
Available For Lease YN
1
Bathrooms Total Integer
3
Building Area Source
Public Records
Building Area Total
3831
Building Area Total Srch SqM
355.91
Building Area Units
Square Feet
CDDYN
1
Calculated List Price By Calculated SqFt
274.05
Carport YN
false
Community Features
Deed Restrictions, Fitness Center, Gated Community - Guard, Park, Playground, Tennis Court(s), Street Lights
Construction Materials
Block, Stone, Stucco
Cooling
Central Air
Country
US
Cumulative Days On Market
95
Current Price
809000.00
Direction Faces
Northwest
Exterior Features
Hurricane Shutters, Lighting, Rain Gutters, Sliding Doors, Tennis Court(s)
Fireplace Features
Family Room, Gas
Fireplace YN
true
Flood Zone Code
X
Flood Zone Date
2021-10-07
Flood Zone Panel
12057C0159J
Flooring
Bamboo, Ceramic Tile, Travertine
Foundation Details
Slab
Garage Dimensions
19X20
Garage Spaces
2
Garage YN
true
Heating
Central
Homestead YN
1
Interior Features
Ceiling Fans(s), Crown Molding, Eat-in Kitchen, Primary Bedroom Main Floor, Solid Wood Cabinets, Stone Counters, Tray Ceiling(s), Walk-In Closet(s)
Internet Address Display YN
true
Internet Automated Valuation Display YN
false
Internet Consumer Comment YN
false
Internet Entire Listing Display YN
true
Laundry Features
Inside
Lease Restrictions YN
1
Levels
Two
List AOR
Orlando Regional
Living Area Meters
274.25
Living Area Source
Public Records
Living Area Units
Square Feet
Lot Size Acres
0.21
Lot Size Dimensions
70x130
Lot Size Square Feet
9100
Lot Size Square Meters
845
Minimum Lease
1-2 Years
Modification Timestamp
2026-01-18T01:47:09.302Z
Monthly HOA Amount
190.00
New Construction YN
false
Number Of Pets
4
Occupant Type
Owner
Other Equipment
Irrigation Equipment
Ownership
Fee Simple
Parcel Number
U-05-28-17-63S-000000-00510.0
Pet Restrictions
See HOA for any pet restrictions
Pet Size
Large (61-100 Lbs.)
Pets Allowed
Yes
Pool Private YN
false
Postal Code Plus 4
3341
Previous List Price
824900
Price Change Timestamp
2026-01-06T21:15:03.000Z
Public Remarks
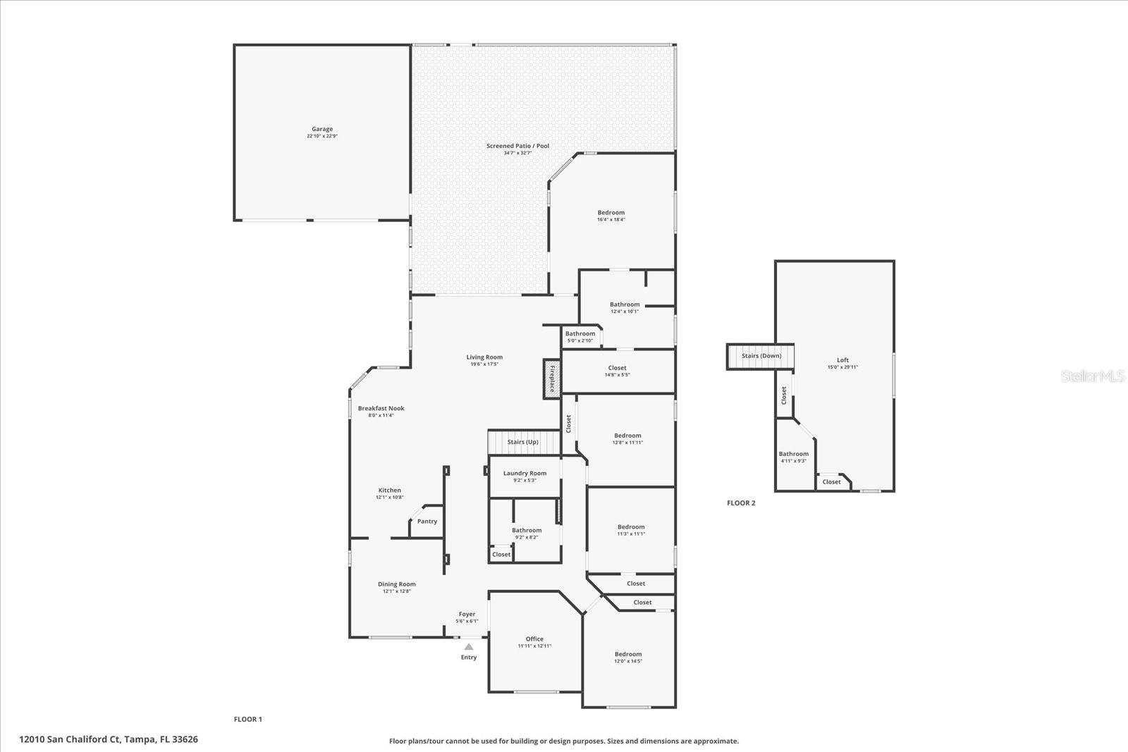
NEW 2022 ROOF • NEARLY 3, 000 SQ FT • WATERCHASE GATED COMMUNITY • QUIET STREET • PRIVATE FENCED BACKYARD NEW ROOF 2021 = lower insurance, zero deferred maintenance, peace of mind for years. Most homes in this price range still have original roofs. This one doesn't. You're not choosing a property. You're choosing peace—mornings where traffic stays light, neighbors who wave and look out for each other, and a community where kids grow up with friends next door. Nearly 3, 000 sq ft. Guard-gated Waterchase. Under recent $900k sales. This home delivers the space, privacy, and lifestyle families wait years to access—without the sticker shock. Main floor: Bamboo flooring, high ceilings, natural light throughout. Kitchen built for real family life: granite counters, stainless appliances, walk-in pantry, reverse osmosis drinking water at the sink. Primary suite sits opposite the other bedrooms—privacy for quiet mornings and restful nights. Built-in sound system in bedroom, bathroom, and lanai creates your private retreat. Soaking tub, dual vanities with seated area, walk-in closet, freshly resurfaced bathtub and sinks. Three additional bedrooms and full bath complete the main floor. No one hauls laundry upstairs. Upstairs: Private guest suite with full bath connects to spacious media room overlooking the pond. Teens get independence. Aging parents stay comfortable. You get workspace with serene water views where Zoom calls don't compete with kitchen noise. Outside: Covered lanai, fenced backyard where kids ride bikes and pets roam free. Long driveway—rare in Waterchase—where multiple vehicles park easily. Water softener. Oversized two-car garage. Waterchase amenities: Guard-gated security • Resort pools with waterslide • Tennis, pickleball, basketball courts • Playgrounds • Fitness center with Hoist equipment • Clubhouse • Top-rated Hillsborough County schools HIGHLIGHTS NEW 2022 ROOF Nearly 3, 000 sq ft • 4 bed • 3 bath Built-in sound system (primary suite + lanai) Long driveway (rare in Waterchase) Primary suite separated from bedrooms Upstairs guest suite + media room with pond views Bamboo floors, granite counters, stainless appliances Water softener, oversized garage HVAC system upstairs and downstairs were replaced with new units on 01/04/2019
Public Survey Range
17
Public Survey Section
05
RATIO Current Price By Calculated SqFt
274.05
Realtor Info
As-Is, CDD Addendum required, No Sign
Road Responsibility
Public Maintained Road
Road Surface Type
Asphalt
Roof
Shingle
Room Count
12
Senior Community YN
false
Sewer
Public Sewer
Showing Requirements
Appointment Only, Combination Lock Box, ShowingTime
Status Change Timestamp
2025-10-14T18:07:28.000Z
Stories Total
2
Tax Annual Amount
12480.59
Tax Book Number
94-25
Tax Legal Description
WATERCHASE PHASE 3 LOT 510
Tax Lot
510
Tax Other Annual Assessment Amount
1687
Tax Year
2024
Total Acreage
0 to less than 1/4
Total Annual Fees
2280.00
Total Monthly Fees
190.00
Township
28
Universal Property Id
US-12057-N-05281763000000005100-R-N
Unparsed Address
12010 SAN CHALIFORD CT
Utilities
BB/HS Internet Available, Cable Available, Electricity Connected, Public, Sewer Connected, Underground Utilities, Water Connected
Water Source
Public
Waterfront YN
false
Zoning
PD
Neighborhood Map
Popup

Property Photos
Listing Photo
Listing Photo
Listing Photo
Listing Photo
Listing Photo
Listing Photo
Listing Photo
Listing Photo
Listing Photo
Listing Photo
Listing Photo
Listing Photo
Listing Photo
Listing Photo
Listing Photo
Listing Photo
Listing Photo
Listing Photo
Listing Photo
Listing Photo
Listing Photo
Listing Photo
Listing Photo
Listing Photo
Listing Photo
Listing Photo
Listing Photo
Listing Photo
Listing Photo
Listing Photo
Listing Photo
Listing Photo
Listing Photo
Listing Photo
Listing Photo
Listing Photo
Listing Photo
Listing Photo
Listing Photo
Listing Photo
Listing Photo
Listing Photo
Listing Photo
Listing Photo
Listing Photo
Listing Photo
Listing Photo
Listing Photo
Listing Photo
Listing Photo
Listing Photo
Listing Photo
Listing Photo
Listing Photo
Listing Photo
Listing Photo
Listing Photo
Listing Photo
Listing Photo
Listing Photo
Listing Photo
Listing Photo
Listing Photo
Listing Photo
Listing Photo
Listing Photo
Listing Photo
Listing Photo
Listing Photo
Listing Photo
Listing Photo
Listing Photo
Listing Photo
Listing Photo
Listing Photo
Listing Photo
Listing Photo
Listing Photo
Listing Photo
Listing Photo
Listing Photo
Listing Photo
Listing Photo
Listing Photo
Listing Photo
Listing Photo
Listing Photo
Listing Photo

MLS #MFRO6352388 Listing courtesy of Realty Hub provided by Stellar MLS.

Similar Listings

$729,999
6103 River Terrace
Tampa
4BR/3BA
| Active
$730,000
4901 Rattlesnake Pointe Court
Tampa
4BR/3BA
| Active
$735,000
10537 Martinique Isle Drive
Tampa
4BR/3BA
| Active
$739,990
7029 Dowling Mill Circle
Tampa
4BR/3BA
| Active



All listing information is deemed reliable but not guaranteed and should be independently verified through personal inspection by appropriate professionals. Listings displayed on this website may be subject to prior sale or removal from sale; availability of any listing should always be independent verified. Listing information is provided for consumer personal, non-commercial use, solely to identify potential properties for potential purchase; all other use is strictly prohibited and may violate relevant federal and state law. The source of the listing data is as follows: Stellar MLS (updated 1/27/26 10:02 AM) |

Listing Search



Translate Tool

Featured Listings
Dunedin Real Estate
$875,000
3 BED
3 BATH
Sarasota Real Estate
$850,000
3 BED
2 BATH
Cape Coral Real Estate
$930,000
3 BED
3 BATH
St Petersburg Real Estate
$949,000
3 BED
2 BATH
Palmetto Real Estate
$1,150,000
3 BED
3 BATH
Englewood Real Estate
$1,145,000
3 BED
3 BATH
Tampa Real Estate
$950,000
4 BED
3 BATH
Fort Myers Real Estate
$849,000
4 BED
3 BATH
Palm Harbor Real Estate
$869,900
4 BED
3 BATH
Winter Park Real Estate
$1,150,000
4 BED
3 BATH
Contact Sandra Pardo

407-990-2746

Wendy Morris LLC

Licensed in the State of Florida
BK 3146762
16797 Broadwater Avenue
Winter Garden, Florida 34787

Your privacy is our utmost concern. We will never sell your personal information. Privacy Policy
©2026 sandrapardohomes.com - all rights reserved. | Site Map