407-990-2746
Menu

13435 Mj Road, Myakka City, FL

NEXT
PREV
$840,000

($276/sqft)

List Status: Active
13435 Mj Road
Myakka City, FL 34251


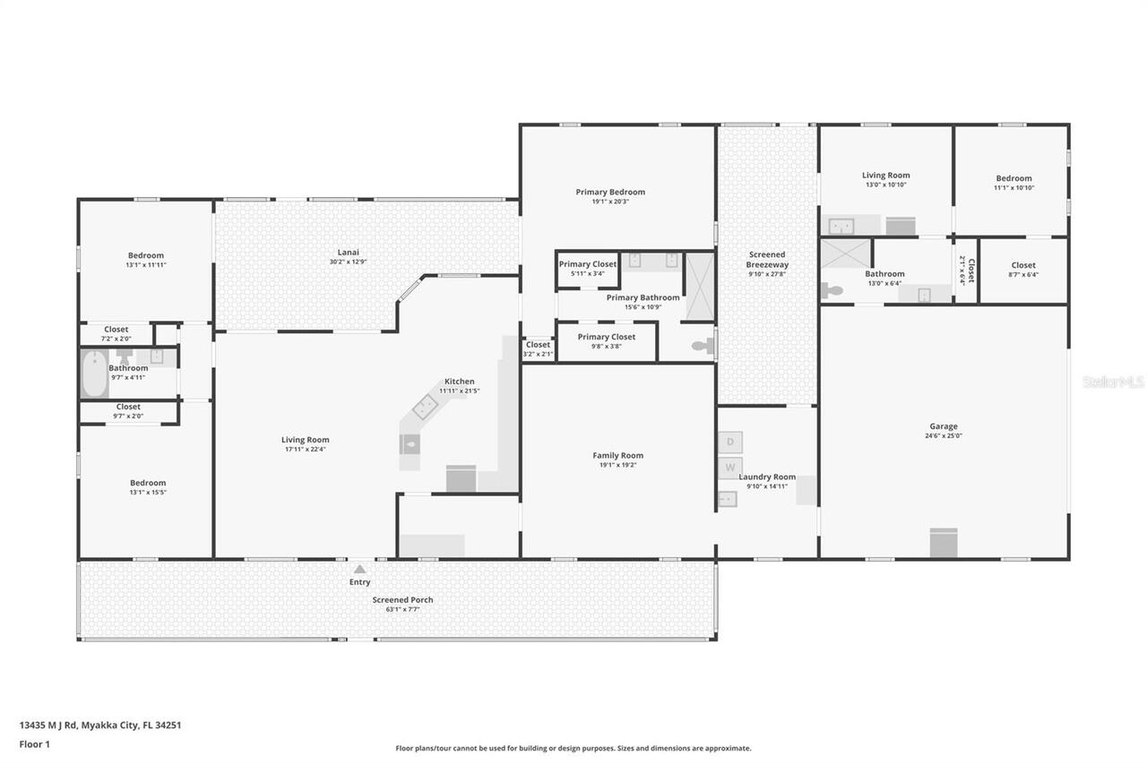
4 beds
3 baths
3044 living sqft
Top Features
  • Frontage: Pond
  • View: Water, Garden, Trees/Woods
  • Subdivision: Acreage
  • Built in  2001
  • Single Family Residence
Description
One or more photo(s) has been virtually staged. Experience the quintessential Florida lifestyle at 13435 MJ Rd, a sprawling 6.92-acre sanctuary in Myakka City where the freedom of nature meets modern convenience. This expansive 4-bedroom, 3-bathroom residence offers over 3,000 square feet of living space, recently refreshed with a newly painted exterior, updated light fixtures, and a brand-new water heater and AC blower motor. This home features an interior 1 bed/1 bath guest suite. The gated property is a gardener's paradise, featuring a newly fenced garden area, lush fruit trees, and an impressive collection of 25 banana plant varieties, all set against a low-maintenance landscape of fresh pavers and rescreened outdoor areas. Free from the restrictions of an HOA, this estate invites you to embrace a self-sustained lifestyle with plenty of room for chickens and personal agriculture, all while enjoying the rare tranquility of a private pond where you might spot a river otter in the morning or hear the sounds of local wildlife. Complete with an updated storage building and a massive detached workshop, this property offers the unique ability to shut out the world and enjoy the wild beauty of the Florida landscape in total privacy.
Property Details
Additional Information
Additional Parcels YN
false
Additional Rooms
Inside Utility, Interior In-Law Suite w/Private Entry
Alternate Key Folio Num
234802509
Appliances
Dishwasher, Dryer, Microwave, Range, Refrigerator, Washer
Association YN
false
Attached Garage YN
true
Available For Lease YN
1
Bathrooms Total Integer
3
Building Area Source
Public Records
Building Area Total
4569
Building Area Total Srch SqM
424.47
Building Area Units
Square Feet
Calculated List Price By Calculated SqFt
275.95
Carport YN
false
Construction Materials
Block
Cooling
Central Air
Country
US
Cumulative Days On Market
61
Current Price
840000.00
Direction Faces
West
Elementary School
Myakka City Elementary
Exterior Features
French Doors, Garden, Lighting, Private Entrance, Private Mailbox, Private Yard, Rain Gutters, Storage
Fencing
Fenced
Fireplace YN
false
Flood Zone Code
X
Flood Zone Date
2014-03-17
Flood Zone Panel
12081C0470E
Flooring
Carpet, Luxury Vinyl, Tile
Foundation Details
Slab
Furnished
Unfurnished
Garage Spaces
4
Garage YN
true
Heating
Heat Pump
High School
Lakewood Ranch High
Homestead YN
1
Interior Features
Cathedral Ceiling(s), Ceiling Fans(s), Eat-in Kitchen, High Ceilings, Kitchen/Family Room Combo, Living Room/Dining Room Combo, Open Floorplan, Primary Bedroom Main Floor, Solid Surface Counters, Thermostat, Walk-In Closet(s)
Internet Address Display YN
true
Internet Automated Valuation Display YN
false
Internet Consumer Comment YN
false
Internet Entire Listing Display YN
true
Laundry Features
Laundry Room
Levels
One
List AOR
Suncoast Tampa
Living Area Meters
282.80
Living Area Source
Public Records
Living Area Units
Square Feet
Lot Features
In County, Unincorporated
Lot Size Acres
6.92
Lot Size Square Feet
301435
Lot Size Square Meters
28004
Middle Or Junior School
Nolan Middle
Minimum Lease
No Minimum
Modification Timestamp
2026-05-02T12:30:09.169Z
New Construction YN
false
Occupant Type
Owner
Other Equipment
Private Entrance, Private Yard
Other Structures
Storage, Workshop
Ownership
Fee Simple
Parcel Number
234802509
Patio And Porch Features
Covered, Front Porch, Rear Porch, Screened
Pool Private YN
false
Postal Code Plus 4
4940
Previous List Price
850000
Price Change Timestamp
2026-05-02T12:29:46.000Z
Public Survey Range
21E
Public Survey Section
35
RATIO Current Price By Calculated SqFt
275.95
Road Surface Type
Paved
Roof
Metal
Room Count
3
SW Subdiv Community Name
Not Applicable
Security Features
Secured Garage/Parking, Security Gate
Senior Community YN
false
Sewer
Septic Tank
Showing Requirements
ShowingTime
Status Change Timestamp
2026-03-02T16:35:44.000Z
Stories Total
1
Tax Annual Amount
5553.08
Tax Book Number
1-127
Tax Legal Description
PARCEL 18: A PARCEL OF LAND LYING & BEING IN SEC 35 TWN 36 RNG 21 DESC AS FOLLOWS: BEG AT THE SW COR OF SD SEC 35; TH S 88 DEG 21 MIN 46 SEC E ALG THE S LN OF SD SEC 35 A DIST OF 793.22 FT; TH N 24 DEG 04 MIN 48 SEC E 405.78 FT; TH N 89 DEG 29 MIN 42 SEC W 856.68 FT; TH S 15 DEG 59 MIN 13 SEC W 369.66 FT TO THE POB; TOGETHER WITH AN EASMT FOR INGRESS EGRESS &
Tax Lot
NA
Tax Year
2024
Total Acreage
5 to less than 10
Total Annual Fees
0.00
Total Monthly Fees
0.00
Township
36S
Universal Property Id
US-12081-N-234802509-R-N
Unparsed Address
13435 MJ RD
Utilities
Electricity Connected, Private
Vegetation
Fruit Trees, Trees/Landscaped
Water Access
Pond
Water Access YN
1
Water Frontage Feet Pond
100
Water Source
Well
Water View
Pond
Water View YN
1
Waterfront Feet Total
100
Waterfront YN
true
Zoning
A
Neighborhood Map
Popup

Property Photos
Listing Photo
Listing Photo
Listing Photo
Listing Photo
Listing Photo
Listing Photo
Listing Photo
Listing Photo
Listing Photo
Listing Photo
Listing Photo
Listing Photo
Listing Photo
Listing Photo
Listing Photo
Listing Photo
Listing Photo
Listing Photo
Listing Photo
Listing Photo
Listing Photo
Listing Photo
Listing Photo
Listing Photo
Listing Photo
Listing Photo
Listing Photo
Listing Photo
Listing Photo
Listing Photo
Listing Photo
Listing Photo
Listing Photo
Listing Photo
Listing Photo
Listing Photo
Listing Photo
Listing Photo
Listing Photo
Listing Photo
Listing Photo
Listing Photo
Listing Photo
Listing Photo
Listing Photo
Listing Photo
Listing Photo
Listing Photo
Listing Photo
Listing Photo
Listing Photo
Listing Photo
Listing Photo
Listing Photo
Listing Photo
Listing Photo
Listing Photo
Listing Photo
Listing Photo
Listing Photo
Listing Photo
Listing Photo
Listing Photo
Listing Photo
Listing Photo
Listing Photo
Listing Photo
Listing Photo
Listing Photo
Listing Photo
Listing Photo
Listing Photo

MLS #MFRTB8478857 Listing courtesy of Redfin Corporation provided by Stellar MLS.

Similar Listings

$850,000
10222 289th E Street
Myakka City
4BR/3BA
| Pending



All listing information is deemed reliable but not guaranteed and should be independently verified through personal inspection by appropriate professionals. Listings displayed on this website may be subject to prior sale or removal from sale; availability of any listing should always be independent verified. Listing information is provided for consumer personal, non-commercial use, solely to identify potential properties for potential purchase; all other use is strictly prohibited and may violate relevant federal and state law. The source of the listing data is as follows: Stellar MLS (updated 5/2/26 9:40 AM) |

Listing Search



Translate Tool

Featured Listings
University Park Real Estate
$997,500
3 BED
3 BATH
Step into a stunning, light-filled residence where elegance meets effortless Florida living. This beautifully designed h... Read More
St Petersburg Real Estate
$900,000
4 BED
3 BATH
Welcome to this beautifully crafted 2020 home in the highly sought-after Crescent Heights neighborhood of St. Petersburg... Read More
St Petersburg Real Estate
$1,250,000
3 BED
2 BATH
Why wait to build or rehab when you can *Move Right In* this Beautiful Venetian Isles Waterfront Pool Home on the Point ... Read More
Orlando Real Estate
$975,000
3 BED
2 BATH
Tucked on an oversized corner lot in Bel Air, one of Orlando's longest established and most beloved neighborhoods, 1701 ... Read More
Orlando Real Estate
$975,000
4 BED
2 BATH
Located in highly sought-after Baldwin Park, this beautifully maintained townhome offers exceptional main-floor living w... Read More
Myakka City Real Estate
$840,000
4 BED
3 BATH
One or more photo(s) has been virtually staged. Experience the quintessential Florida lifestyle at 13435 MJ Rd, a sprawl... Read More
Orlando Real Estate
$1,050,000
4 BED
4 BATH
Welcome to this beautifully crafted Osprey Custom home located in the quiet and desirable Bay Hill Cove community in the... Read More
Clearwater Beach Real Estate
$895,000
2 BED
2 BATH
Welcome to coastal living at its finest — an exquisite beachfront condo nestled along the pristine shores of Sand Key, w... Read More
Lake Mary Real Estate
$830,000
4 BED
3 BATH
Welcome to your private slice of paradise in the heart of Lake Mary off of Markham Wood Road. 1 Acre Lot, POOL HOME, Thi... Read More
Winter Park Real Estate
$845,000
4 BED
3 BATH
One or more photo(s) has been virtually staged. One or more photo(s) has been virtually staged. This luxurious Modern St... Read More
Contact Sandra Pardo

407-990-2746

Wendy Morris LLC

Licensed in the State of Florida
BK 3146762
16797 Broadwater Avenue
Winter Garden, Florida 34787

Your privacy is our utmost concern. We will never sell your personal information. Privacy Policy
©2026 sandrapardohomes.com - all rights reserved. | Site Map