407-990-2746
Menu

13261 Oakenshaw Lane, Orlando, FL

NEXT
PREV
$730,000

($336/sqft)

List Status: Active
13261 Oakenshaw Lane
Orlando, FL 32832


3 beds
3 baths
2175 living sqft
Top Features
  • View: Water, Garden
  • Subdivision: Eagle Crk Village Ik Ph 1a
  • Built in  2020
  • Single Family Residence
Description
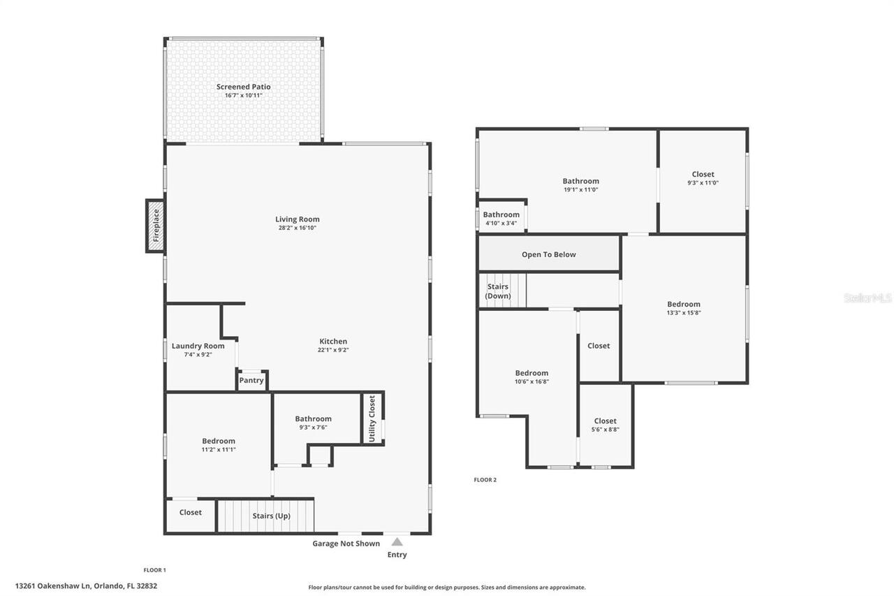
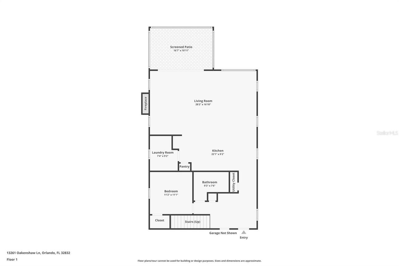
Beautiful home located in the highly desirable Eagle Creek community, featuring 3 bedrooms and 3 bathrooms, filled with upgrades and designed for comfort and sophistication. On the first floor, there is a bedroom with a walk-in closet, ideal for guests or a home office. Upstairs, you’ll find 2 Bedrooms. The primary suite, offering a large and spacious bathroom along with a generous walk-in closet, creating a true retreat. Also on the second floor is another suite, complete with its own walk-in closet and a beautiful water view. The home features carpet only in the closets. The living room showcases ceramic tile flooring, while the second-floor bedrooms include modern vinyl flooring, combining style and easy maintenance. The open and spacious living area is highlighted by a decorative stone accent wall with a built-in fireplace, creating a modern and inviting atmosphere. The gourmet kitchen is a true showstopper, featuring a large quartz island with a waterfall-edge countertop, adding elegance and sophistication to the space. The kitchen also includes a beautiful backsplash, upgraded cabinetry, and built-in microwave and ovens, making it perfect for entertaining. The outdoor area is ideal for relaxation and gatherings, offering a covered patio with motorized screens, a summer kitchen, a heated jacuzzi, and a pleasant garden area. The laundry room is conveniently located near the kitchen and comes equipped with sink, cabinets, and modern Samsung washer and dryer. A spacious garage completes this exceptional home. Located in Lake Nona area, Eagle Creek community, this gated neighborhood offers resort-style amenities, a championship golf course, clubhouse, and an exceptional lifestyle—perfect for families seeking comfort, security, and quality living.
Property Details
Additional Information
Additional Lease Restrictions
Contact HOA
Additional Parcels YN
false
Alternate Key Folio Num
312432230201020
Appliances
Built-In Oven, Dishwasher, Disposal, Dryer, Microwave, Refrigerator, Washer, Water Filtration System
Association Amenities
Fitness Center, Playground, Pool, Tennis Court(s)
Association Email
407-207-7078
Association Fee
615
Association Fee Frequency
Monthly
Association Fee Requirement
Required
Association YN
true
Attached Garage YN
false
Available For Lease YN
1
Bathrooms Total Integer
3
Building Area Source
Public Records
Building Area Total
3235
Building Area Total Srch SqM
300.54
Building Area Units
Square Feet
Calculated List Price By Calculated SqFt
335.63
Carport YN
false
Community Features
Association Recreation - Owned, Clubhouse, Dog Park, Fitness Center, Gated Community - Guard, Golf, Irrigation-Reclaimed Water, Playground, Pool, Sidewalks, Tennis Court(s)
Construction Materials
Block, Brick
Cooling
Central Air
Country
US
Cumulative Days On Market
42
Currency Monthly Rent Amount
3800.00
Current Price
730000.00
Direction Faces
South
Elementary School
Eagle Creek Elementary
Exist Lease Tenant YN
1
Exterior Features
Outdoor Kitchen, Rain Gutters
Fireplace Features
Decorative
Fireplace YN
true
Flood Zone Code
X
Flood Zone Date
2018-06-20
Flood Zone Panel
12095C0675G
Flooring
Carpet, Ceramic Tile, Laminate
Foundation Details
Slab
Furnished
Unfurnished
Garage Spaces
2
Garage YN
true
Heating
Central
High School
Lake Nona High
Interior Features
Kitchen/Family Room Combo, Open Floorplan, PrimaryBedroom Upstairs, Thermostat, Walk-In Closet(s)
Internet Address Display YN
true
Internet Automated Valuation Display YN
true
Internet Consumer Comment YN
true
Internet Entire Listing Display YN
true
Laundry Features
In Kitchen, Laundry Room
Lease Restrictions YN
1
Levels
Two
List AOR
Orlando Regional
Living Area Meters
202.06
Living Area Source
Public Records
Living Area Units
Square Feet
Lot Size Acres
0.11
Lot Size Square Feet
4799
Lot Size Square Meters
446
Minimum Lease
8-12 Months
Modification Timestamp
2026-02-24T18:36:10.104Z
Month To Month Or Weekly YN
1
Monthly HOA Amount
615.00
New Construction YN
false
Number Of Pets
2
Occupant Type
Tenant
Other Equipment
Irrigation Equipment
Ownership
Fee Simple
Parcel Number
32-24-31-2302-01-020
Patio And Porch Features
Covered
Pet Restrictions
Contact the HOA
Pets Allowed
Cats OK, Dogs OK
Pool Private YN
false
Postal Code Plus 4
7122
Public Survey Range
31
Public Survey Section
32
RATIO Current Price By Calculated SqFt
335.63
Road Surface Type
Asphalt
Roof
Tile
Room Count
5
Senior Community YN
false
Sewer
Public Sewer
Showing Requirements
Appointment Only
Spa Features
Above Ground, Heated
Spa YN
true
Status Change Timestamp
2026-01-13T13:31:44.000Z
Stories Total
2
Tax Annual Amount
9461.49
Tax Block
01
Tax Book Number
96/58-72
Tax Legal Description
EAGLE CREEK VILLAGE K PHASE 1A 96/58 LOT102
Tax Lot
102
Tax Year
2025
Total Acreage
0 to less than 1/4
Total Annual Fees
7380.00
Total Monthly Fees
615.00
Township
24
Universal Property Id
US-12095-N-322431230201020-R-N
Unparsed Address
13261 OAKENSHAW LN
Utilities
Cable Available, Cable Connected, Electricity Available, Electricity Connected, Underground Utilities, Water Available, Water Connected
Water Source
Public
Water View
Pond
Water View YN
1
Waterfront YN
false
Window Features
Blinds
Zoning
P-D
Neighborhood Map
Popup

Property Photos
Listing Photo
Listing Photo
Listing Photo
Listing Photo
Listing Photo
Listing Photo
Listing Photo
Listing Photo
Listing Photo
Listing Photo
Listing Photo
Listing Photo
Listing Photo
Listing Photo
Listing Photo
Listing Photo
Listing Photo
Listing Photo
Listing Photo
Listing Photo
Listing Photo
Listing Photo
Listing Photo
Listing Photo
Listing Photo
Listing Photo
Listing Photo
Listing Photo
Listing Photo
Listing Photo
Listing Photo
Listing Photo
Listing Photo
Listing Photo
Listing Photo
Listing Photo
Listing Photo
Listing Photo
Listing Photo
Listing Photo
Listing Photo
Listing Photo
Listing Photo
Listing Photo
Listing Photo
Listing Photo
Listing Photo
Listing Photo
Listing Photo
Listing Photo
Listing Photo
Listing Photo
Listing Photo
Listing Photo
Listing Photo
Listing Photo
Listing Photo
Listing Photo
Listing Photo
Listing Photo
Listing Photo
Listing Photo
Listing Photo
Listing Photo
Listing Photo
Listing Photo
Listing Photo
Listing Photo
Listing Photo
Listing Photo
Listing Photo
Listing Photo
Listing Photo
Listing Photo
Listing Photo
Listing Photo
Listing Photo
Listing Photo
Listing Photo
Listing Photo
Listing Photo
Listing Photo
Listing Photo
Listing Photo
Listing Photo
Listing Photo
Listing Photo
Listing Photo
Listing Photo
Listing Photo
Listing Photo
Listing Photo
Listing Photo
Listing Photo
Listing Photo
Listing Photo
Listing Photo
Listing Photo
Listing Photo
Listing Photo
Listing Photo
Listing Photo
Listing Photo
Listing Photo
Listing Photo
Listing Photo
Listing Photo
Listing Photo
Listing Photo
Listing Photo
Listing Photo
Listing Photo
Listing Photo
Listing Photo
Listing Photo
Listing Photo
Listing Photo
Listing Photo
Listing Photo
Listing Photo
Listing Photo
Listing Photo
Listing Photo
Listing Photo
Listing Photo
Listing Photo
Listing Photo
Listing Photo
Listing Photo
Listing Photo
Listing Photo
Listing Photo
Listing Photo
Listing Photo
Listing Photo
Listing Photo
Listing Photo
Listing Photo

MLS #MFRO6373204 Listing courtesy of Mco Realty Group Llc provided by Stellar MLS.

Similar Listings

$659,000
730 Delaney Park Drive
Orlando
3BR/3BA
| Active
$660,000
2212 Brix Street
Orlando
3BR/3BA
| Pending
$672,000
9164 Sinatra Lane
Orlando
3BR/3BA
| Pending
$695,000
2066 Brink Alley
Orlando
3BR/3BA
| Active



All listing information is deemed reliable but not guaranteed and should be independently verified through personal inspection by appropriate professionals. Listings displayed on this website may be subject to prior sale or removal from sale; availability of any listing should always be independent verified. Listing information is provided for consumer personal, non-commercial use, solely to identify potential properties for potential purchase; all other use is strictly prohibited and may violate relevant federal and state law. The source of the listing data is as follows: Stellar MLS (updated 3/19/26 12:28 AM) |

Listing Search



Translate Tool

Featured Listings
Indian Shores Real Estate
$1,250,000
3 BED
3 BATH
Just steps from the powdery, sugar-white sands of Indian Shores Beach, this extraordinary 3-bedroom, 3-bath townhome is ... Read More
New Smyrna Beach Real Estate
$1,200,000
3 BED
3 BATH
Discover the potential of this rare and expansive Turnbull Bay, BAYFRONT property in New Smyrna Beach, offering breathta... Read More
Orlando Real Estate
$855,000
4 BED
3 BATH
The Last Property You Will Need to See. Beautifully renovated 4-bedroom, 3-bath pool home located in the highly desirabl... Read More
New Port Richey Real Estate
$1,095,000
3 BED
3 BATH
Florida luxury waterfront living at its finest! Most water frontage in the neighborhood at 122ft. This renovated home fe... Read More
Bartow Real Estate
$849,900
3 BED
2 BATH
Country with Class or County Chic—either way, this custom 2017 home delivers both style and serenity on 5.43 acres just ... Read More
Orlando Real Estate
$849,900
5 BED
3 BATH
Immaculate golf-front single-family home located in the guard-gated Eagle Creek community in Lake Nona. Built in 2019, t... Read More
Tampa Real Estate
$1,200,000
3 BED
3 BATH
One or more photo(s) has been virtually staged. BEAUTIFULLY RENOVATED Monte Carlo Towers BALCONY residence offering 2,00... Read More
Orlando Real Estate
$809,999
4 BED
3 BATH
Welcome to this beautifully maintained 4-bedroom, 3.5-bath home with a bonus office/flex space located in the highly sou... Read More
Palm Harbor Real Estate
$810,000
5 BED
3 BATH
Privately tucked along a quiet road in one of Palm Harbor’s most convenient locations, this beautifully updated 5-bedroo... Read More
Winter Garden Real Estate
$839,000
5 BED
3 BATH
Located in a Golf course community. Extensively upgraded 5-bedroom, 3-bath home with one office and approximately 3,238 ... Read More
Contact Sandra Pardo

407-990-2746

Wendy Morris LLC

Licensed in the State of Florida
BK 3146762
16797 Broadwater Avenue
Winter Garden, Florida 34787

Your privacy is our utmost concern. We will never sell your personal information. Privacy Policy
©2026 sandrapardohomes.com - all rights reserved. | Site Map