407-990-2746
Menu

1101 80th Street S Court, St Petersburg, FL

NEXT
PREV
$999,500

($383/sqft)

List Status: Pending
1101 80th Street S Court
St Petersburg, FL 33707


4 beds
2 baths
2613 living sqft
Top Features
  • Subdivision: South Cswy Isle Yacht Club 5th Add
  • Built in  1969
  • Single Family Residence
Description
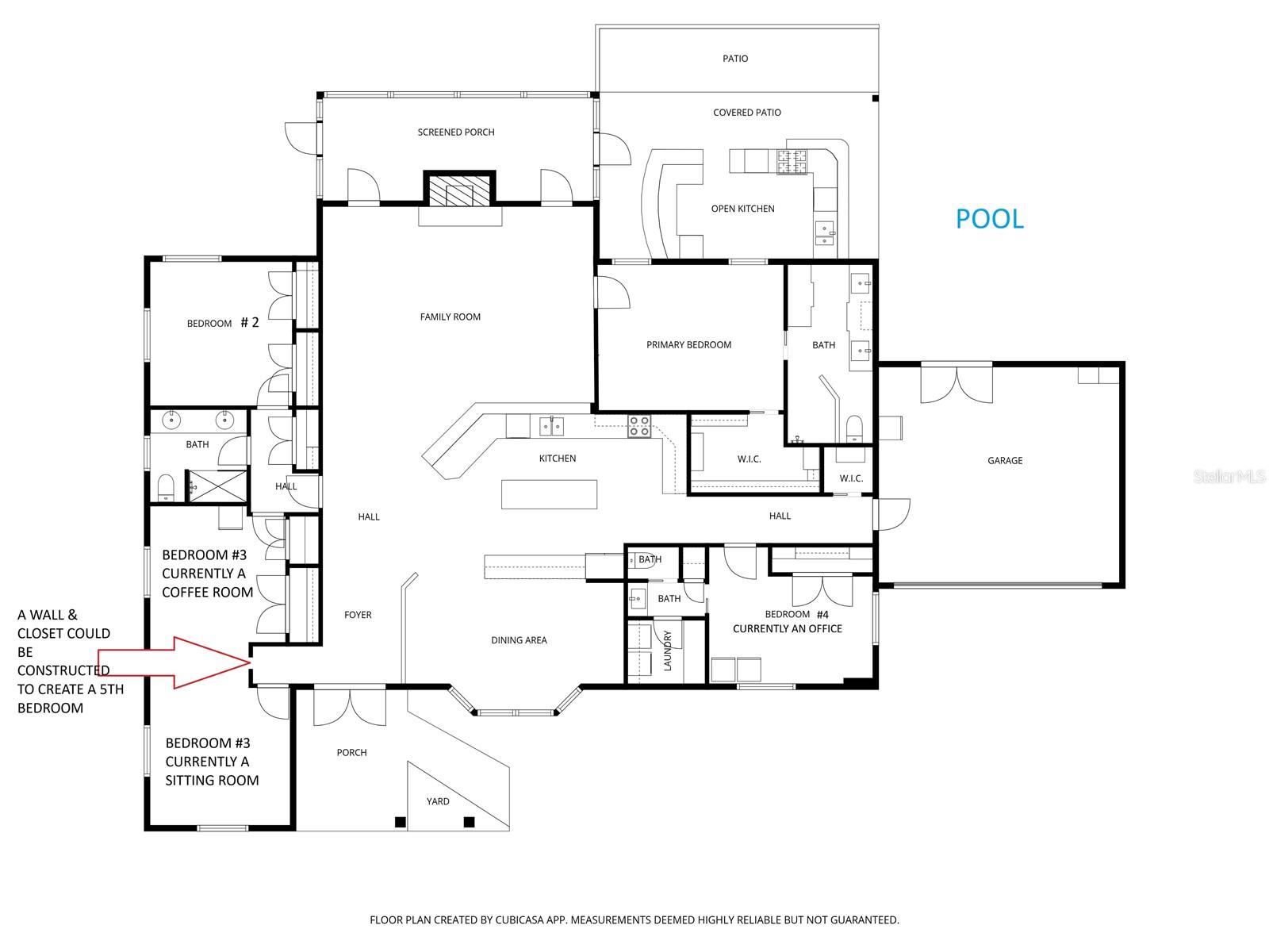
Under contract-accepting backup offers. Exceptional pride of ownership is apparent in this move-in-ready, solid block single-level pool home, ideally positioned on a quiet cul-de-sac in the highly desirable neighborhood of Yacht Club Estates. Offering 2,613 heated square feet of thoughtfully designed living space, this home features 4 bedrooms with potential for a 5th, 2.5 baths, interior laundry, and a 2-car garage - Delivering the space, functionality, and quality today’s buyers seek. The spacious open concept living and kitchen area is enhanced by a three-way split bedroom floor plan and continuous luxury vinyl plank flooring throughout. Designed for both daily living and entertaining, the bright and updated kitchen showcases an abundance of solid wood cabinetry, granite countertops, black stainless steel GE appliances, a reverse osmosis filtration system, an InsinkErator hot water dispenser, a center island, a 6 plus seat breakfast bar, and a serving counter that seamlessly connects to the formal dining room. Privately located off the living room, the primary suite offers a true retreat, complete with a custom walk-in closet and a spa-inspired en-suite bath featuring dual sinks, generous cabinet storage, a large walk-in shower, and a dedicated makeup vanity. To the right of the kitchen is a newly remodeled half bath with an option to add a shower in the attached closet, a bedroom currently utilized as an office, and a convenient laundry room. A custom glass door leads to the pristine garage, finished with epoxy flooring. On the left side of the home is an updated hall bath with dual sinks and a walk-in shower, along with two additional bedrooms. The oversized front bedroom - approximately 26’ X 11 1/2’ - is currently used as a sitting room/coffee room. A demising wall and closet could easily convert this space into a fifth bedroom. In its current design, it is perfect for single family, in-law or multi-generational living. Step outside to your private tropical o
Property Details
Additional Information
Additional Lease Restrictions
Follows City of St Pete rental rules
Additional Parcels YN
false
Additional Rooms
Attic, Formal Dining Room Separate, Inside Utility
Alternate Key Folio Num
31-15-25-84168-008-0140
Appliances
Dishwasher, Disposal, Dryer, Electric Water Heater, Kitchen Reverse Osmosis System, Microwave, Range, Refrigerator, Washer, Water Purifier
Association YN
false
Attached Garage YN
true
Available For Lease YN
1
Bathrooms Total Integer
3
Building Area Source
Public Records
Building Area Total
3563
Building Area Total Srch SqM
331.01
Building Area Units
Square Feet
Calculated List Price By Calculated SqFt
382.51
Carport YN
false
Community Features
Deed Restrictions, Irrigation-Reclaimed Water, Street Lights
Construction Materials
Block
Contract Status
Inspections
Cooling
Central Air
Country
US
Cumulative Days On Market
42
Current Price
999500.00
Direction Faces
East
Elementary School
Azalea Elementary-PN
Expected Closing Date
2026-03-13T00:00:00.000
Exterior Features
Lighting, Outdoor Kitchen, Rain Gutters
Fencing
Vinyl
Fireplace Features
Living Room, Wood Burning
Fireplace YN
true
Flood Zone Code
AE
Flood Zone Date
2021-08-24
Flood Zone Panel
12103C0194H
Flooring
Luxury Vinyl, Tile
Foundation Details
Slab
Furnished
Unfurnished
Garage Spaces
2
Garage YN
true
Heating
Central, Electric
High School
Boca Ciega High-PN
Homestead YN
1
Interior Features
Ceiling Fans(s), Crown Molding, Kitchen/Family Room Combo, Open Floorplan, Primary Bedroom Main Floor, Solid Wood Cabinets, Split Bedroom, Stone Counters, Thermostat, Walk-In Closet(s), Window Treatments
Internet Address Display YN
true
Internet Automated Valuation Display YN
false
Internet Consumer Comment YN
true
Internet Entire Listing Display YN
true
Laundry Features
Inside, Laundry Room
Lease Restrictions YN
1
Levels
One
List AOR
Suncoast Tampa
Living Area Meters
242.76
Living Area Source
Public Records
Living Area Units
Square Feet
Lot Features
Cul-De-Sac, FloodZone, City Limits, Landscaped, Paved
Lot Size Acres
0.23
Lot Size Square Feet
10180
Lot Size Square Meters
946
Middle Or Junior School
Azalea Middle-PN
Minimum Lease
1 Month
Modification Timestamp
2026-02-02T14:49:09.920Z
New Construction YN
false
Occupant Type
Owner
Other Equipment
Irrigation Equipment
Other Structures
Outdoor Kitchen, Shed(s)
Ownership
Fee Simple
Parcel Number
25-31-15-84168-008-0140
Patio And Porch Features
Covered, Front Porch, Patio, Rear Porch, Screened
Pets Allowed
Yes
Pool Dimensions
33x16
Pool Private YN
true
Postal Code Plus 4
2724
Public Survey Range
15
Public Survey Section
25
Purchase Contract Date
2026-02-02
RATIO Current Price By Calculated SqFt
382.51
Realtor Info
As-Is, Lease Restrictions, No Sign
Road Surface Type
Paved
Roof
Shingle
Room Count
11
Security Features
Security System
Senior Community YN
false
Sewer
Public Sewer
Showing Requirements
Appointment Only, Listing Agent Must Accompany, Lock Box Electronic-CBS Code Required, ShowingTime
Spa YN
false
Status Change Timestamp
2026-02-02T14:48:33.000Z
Tax Annual Amount
5277
Tax Block
8
Tax Book Number
61-59
Tax Legal Description
SOUTH CAUSEWAY ISLE YACHT CLUB 5TH ADD BLK 8, LOT 14
Tax Lot
14
Tax Year
2024
Total Acreage
0 to less than 1/4
Total Annual Fees
0.00
Total Monthly Fees
0.00
Township
31
Universal Property Id
US-12103-N-253115841680080140-R-N
Unparsed Address
1101 80TH STREET CT S
Utilities
BB/HS Internet Available, Electricity Connected, Natural Gas Available, Public, Sprinkler Recycled, Underground Utilities, Water Connected
Water Source
Public
Waterfront YN
false
Window Features
Window Treatments
Neighborhood Map
Popup

Property Photos
Listing Photo
Listing Photo
Listing Photo
Listing Photo
Listing Photo
Listing Photo
Listing Photo
Listing Photo
Listing Photo
Listing Photo
Listing Photo
Listing Photo
Listing Photo
Listing Photo
Listing Photo
Listing Photo
Listing Photo
Listing Photo
Listing Photo
Listing Photo
Listing Photo
Listing Photo
Listing Photo
Listing Photo
Listing Photo
Listing Photo
Listing Photo
Listing Photo
Listing Photo
Listing Photo
Listing Photo
Listing Photo
Listing Photo
Listing Photo
Listing Photo
Listing Photo
Listing Photo
Listing Photo
Listing Photo
Listing Photo
Listing Photo
Listing Photo
Listing Photo
Listing Photo
Listing Photo
Listing Photo
Listing Photo
Listing Photo
Listing Photo
Listing Photo
Listing Photo
Listing Photo
Listing Photo
Listing Photo
Listing Photo
Listing Photo
Listing Photo
Listing Photo
Listing Photo
Listing Photo
Listing Photo
Listing Photo
Listing Photo
Listing Photo
Listing Photo
Listing Photo
Listing Photo
Listing Photo
Listing Photo
Listing Photo
Listing Photo
Listing Photo
Listing Photo
Listing Photo
Listing Photo
Listing Photo
Listing Photo
Listing Photo
Listing Photo
Listing Photo
Listing Photo
Listing Photo
Listing Photo
Listing Photo
Listing Photo
Listing Photo
Listing Photo
Listing Photo
Listing Photo
Listing Photo
Listing Photo
Listing Photo
Listing Photo
Listing Photo
Listing Photo
Listing Photo
Listing Photo
Listing Photo
Listing Photo
Listing Photo
Listing Photo
Listing Photo
Listing Photo
Listing Photo
Listing Photo
Listing Photo
Listing Photo
Listing Photo
Listing Photo
Listing Photo
Listing Photo
Listing Photo
Listing Photo
Listing Photo
Listing Photo
Listing Photo
Listing Photo
Listing Photo
Listing Photo
Listing Photo
Listing Photo
Listing Photo
Listing Photo
Listing Photo
Listing Photo
Listing Photo

MLS #MFRTB8457963 Listing courtesy of Coldwell Banker Realty provided by Stellar MLS.

Similar Listings

$934,900
6400 Mockingbird S Way
St Petersburg
4BR/2BA
| Pending
$949,900
1854 Dolphin S Boulevard
St Petersburg
4BR/2BA
| Active
$950,000
138 10th Ne Avenue
St Petersburg
4BR/2BA
| Active
$979,000
1835 Serpentine S Drive
St Petersburg
4BR/2BA
| Active



All listing information is deemed reliable but not guaranteed and should be independently verified through personal inspection by appropriate professionals. Listings displayed on this website may be subject to prior sale or removal from sale; availability of any listing should always be independent verified. Listing information is provided for consumer personal, non-commercial use, solely to identify potential properties for potential purchase; all other use is strictly prohibited and may violate relevant federal and state law. The source of the listing data is as follows: Stellar MLS (updated 2/26/26 4:49 PM) |

Listing Search



Translate Tool

Featured Listings
The Villages Real Estate
$880,000
3 BED
2 BATH
Prime Golf Course Frontage Living in the VILLAGE OF VIRGINIA TRACE! Nestled in the highly desirable Village of Virginia ... Read More
Bradenton Real Estate
$834,900
3 BED
3 BATH
MOTIVATED SELLERS! Exquisite home located in the highly desirable Rye Wilderness Estates. Situated on a spacious ½-acre ... Read More
Longboat Key Real Estate
$929,000
3 BED
2 BATH
Experience refined coastal living behind the gates of the prestigious Bay Isles. This beautifully appointed 3-bedroom, 2... Read More
Osteen Real Estate
$950,000
6 BED
4 BATH
Welcome to your private 10-acre estate in Osteen Built for space, strength, and self-sufficiency. This impressive 3-stor... Read More
Kissimmee Real Estate
$907,000
9 BED
5 BATH
Under contract-accepting backup offers. Step into a one-of-a-kind vacation retreat designed to impress guests and maximi... Read More
Palm Coast Real Estate
$925,000
4 BED
3 BATH
Welcome to an exceptional three-story coastal retreat in Ocean Hammock, one of Palm Coast’s most sought-after oceanfront... Read More
Maitland Real Estate
$890,000
4 BED
2 BATH
Welcome to 351 White Oak Drive in Maitland, a beautifully reimagined residence where modern elegance meets everyday comf... Read More
Oldsmar Real Estate
$1,499,900
4 BED
3 BATH
Welcome to 50 Willowood Ln — a private luxury estate in Oldsmar offering unmatched privacy, architectural scale, and res... Read More
Port Charlotte Real Estate
$899,999
4 BED
3 BATH
Brand-new WATERFRONT 4-bedroom, 3 bath home in South Gulf Cove with boat access. This custom-built residence features an... Read More
Wimauma Real Estate
$1,275,000
4 BED
3 BATH
Back on the market after buyers decided they wanted a neighborhood!? Well, there is NO HOA, NO CDD, no hassles here and ... Read More
Contact Sandra Pardo

407-990-2746

Wendy Morris LLC

Licensed in the State of Florida
BK 3146762
16797 Broadwater Avenue
Winter Garden, Florida 34787

Your privacy is our utmost concern. We will never sell your personal information. Privacy Policy
©2026 sandrapardohomes.com - all rights reserved. | Site Map