407-990-2746
Menu

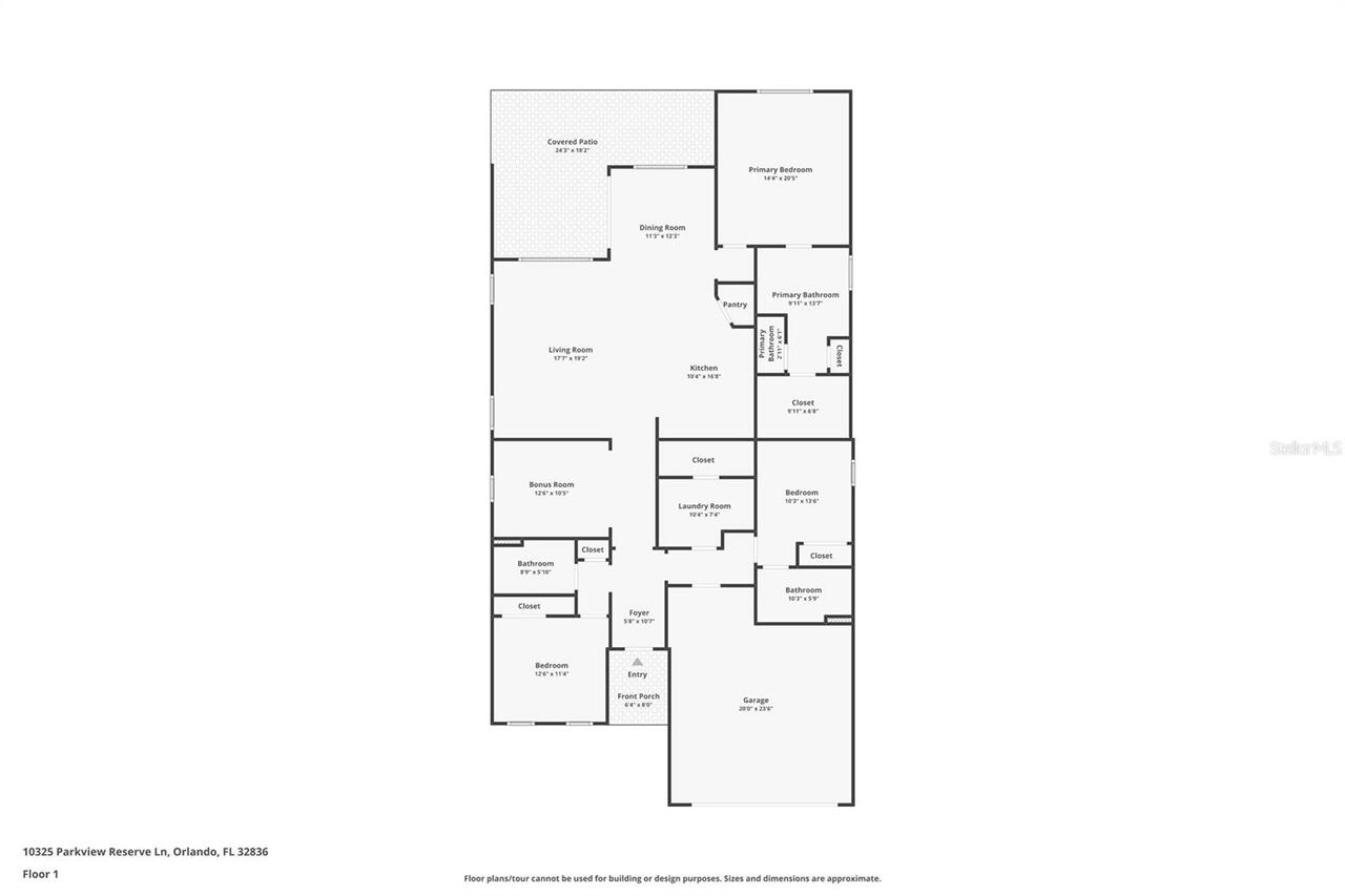
10325 Parkview Reserve Lane, Orlando, FL

NEXT
PREV
$945,000

($450/sqft)

List Status: Active
10325 Parkview Reserve Lane
Orlando, FL 32836


3 beds
3 baths
2098 living sqft
Top Features
  • Subdivision: Parkview Reserve Ph 1
  • Built in  2024
  • Single Family Residence
Description
One or more photo(s) has been virtually staged. This Pulte-built home in Dr. Phillips offered UNDER APPRAISED VALUE, presenting a rare opportunity to own a 2024 built home in the highly sought-after Parkview Reserve community! Opportunities for new construction homes in Dr. Phillips are extremely limited, making this one of the last chances to own a recently built home in this prime Orlando location! Located in the heart of Dr. Phillips, this home offers an unbeatable lifestyle with walkable access to Publix, shops, & restaurants while also being just minutes from Restaurant Row on Sand Lake Rd - one of Orlando’s most popular dining and entertainment destinations! The location also provides quick access to I-4, International Drive, and Orlando’s world-famous attractions including Walt Disney World, Universal Studios, and SeaWorld. Frequent travelers will also appreciate the convenience in proximity to Orlando International Airport (MCO). Inside, the home features a modern open-concept floor plan designed for flexible living with soaring 12ft ceilings throughout to enlarge the space as well as quartz countertops throughout the entire home! A bonus/flex room provides the perfect space for a home office, media room, or potential 4th bedroom conversion! The secondary bedroom includes a private en-suite bathroom, creating an ideal setup for guests or multigenerational living. Step outside to the extended covered patio, pre-wired and pre-plumbed for a future outdoor kitchen, offering the perfect opportunity to create an incredible outdoor entertaining space. The current owners have also meticulously enhanced the landscaping, adding curb appeal and thoughtful upgrades to the exterior. Located within the top-rated Dr. Phillips school district and close to Restaurant Row, major highways, Orlando theme parks, shopping, dining, and entertainment, this home delivers the perfect combination of location, lifestyle, and value. With pricing below appraised value, 2024 construction,
Property Details
Additional Information
Additional Lease Restrictions
Buyer responsible for verifying lease restrictions directly with HOA and county!
Additional Parcels YN
false
Additional Rooms
Den/Library/Office
Alternate Key Folio Num
15-24-28-6656-00-510
Amenities Additional Fees
Buyer responsible for verifying HOA information directly with HOA!
Appliances
Built-In Oven, Cooktop, Dishwasher, Disposal, Electric Water Heater, Exhaust Fan, Microwave
Approval Process
Buyer responsible for verifying lease restrictions directly with HOA and county!
Architectural Style
Traditional
Association Email
clynn@castlegroup.com
Association Fee
125
Association Fee Frequency
Monthly
Association Fee Requirement
Required
Association URL
www.castlegroup.com
Association YN
true
Attached Garage YN
true
Available For Lease YN
1
Bathrooms Total Integer
3
Builder Model
Mystique
Builder Name
Pulte
Building Area Source
Public Records
Building Area Total
2931
Building Area Total Srch SqM
272.30
Building Area Units
Square Feet
Calculated List Price By Calculated SqFt
450.43
Carport YN
false
Community Features
Sidewalks
Construction Materials
Block, Stucco
Cooling
Central Air
Country
US
Current Price
945000.00
Direction Faces
West
Elementary School
Sand Lake Elem
Exterior Features
Lighting, Sidewalk, Sliding Doors
Fireplace YN
false
Flood Zone Code
X
Flood Zone Date
2009-09-25
Flood Zone Panel
12095C0415F
Floor Number
1
Flooring
Tile
Foundation Details
Slab
Furnished
Unfurnished
Garage Spaces
2
Garage YN
true
Heating
Central
High School
Lake Buena Vista High School
Homestead YN
1
Interior Features
High Ceilings, Living Room/Dining Room Combo, Open Floorplan, Primary Bedroom Main Floor, Walk-In Closet(s)
Internet Address Display YN
true
Internet Automated Valuation Display YN
true
Internet Consumer Comment YN
false
Internet Entire Listing Display YN
true
Laundry Features
Laundry Room
Lease Restrictions YN
1
Levels
One
List AOR
Orlando Regional
Living Area Meters
194.91
Living Area Source
Public Records
Living Area Units
Square Feet
Lot Features
Sidewalk
Lot Size Acres
0.14
Lot Size Square Feet
6162
Lot Size Square Meters
572
Middle Or Junior School
Southwest Middle
Minimum Lease
7 Months
Modification Timestamp
2026-03-13T20:49:11.099Z
Monthly HOA Amount
125.00
New Construction YN
false
Occupant Type
Owner
Other Equipment
Irrigation Equipment
Ownership
Fee Simple
Parcel Number
15-24-28-6656-00-510
Patio And Porch Features
Covered, Patio
Pet Restrictions
Buyer responsible for verifying pet information directly with HOA and county!
Pets Allowed
Yes
Pool Private YN
false
Postal Code Plus 4
4042
Price Change Timestamp
2026-03-13T20:25:17.000Z
Public Survey Range
28
Public Survey Section
15
RATIO Current Price By Calculated SqFt
450.43
Realtor Info
Floor Plan Available, No Sign
Road Surface Type
Asphalt, Paved
Roof
Shingle
Room Count
13
Senior Community YN
false
Sewer
Public Sewer
Showing Requirements
ShowingTime
Status Change Timestamp
2026-03-13T20:25:17.000Z
Stories Total
1
Tax Annual Amount
10052
Tax Block
N/A
Tax Book Number
111/56
Tax Legal Description
PARKVIEW RESERVE PHASE 1 111/26 LOT 51
Tax Lot
51
Tax Year
2025
Total Acreage
0 to less than 1/4
Total Annual Fees
1500.00
Total Monthly Fees
125.00
Township
24
Universal Property Id
US-12095-N-152428665600510-R-N
Unparsed Address
10325 PARKVIEW RESERVE LN
Utilities
Cable Connected, Electricity Connected, Public, Sewer Connected, Water Connected
Vegetation
Mature Landscaping
Water Source
Public
Waterfront YN
false
Window Features
Blinds
Zoning
P-D
Neighborhood Map
Popup

Property Photos
Listing Photo
Listing Photo
Listing Photo
Listing Photo
Listing Photo
Listing Photo
Listing Photo
Listing Photo
Listing Photo
Listing Photo
Listing Photo
Listing Photo
Listing Photo
Listing Photo
Listing Photo
Listing Photo
Listing Photo
Listing Photo
Listing Photo
Listing Photo
Listing Photo
Listing Photo
Listing Photo
Listing Photo
Listing Photo
Listing Photo
Listing Photo
Listing Photo
Listing Photo
Listing Photo
Listing Photo
Listing Photo
Listing Photo
Listing Photo
Listing Photo
Listing Photo
Listing Photo
Listing Photo
Listing Photo
Listing Photo
Listing Photo
Listing Photo
Listing Photo
Listing Photo
Listing Photo
Listing Photo
Listing Photo
Listing Photo
Listing Photo
Listing Photo
Listing Photo
Listing Photo
Listing Photo
Listing Photo
Listing Photo
Listing Photo
Listing Photo
Listing Photo
Listing Photo
Listing Photo
Listing Photo
Listing Photo
Listing Photo
Listing Photo
Listing Photo
Listing Photo
Listing Photo
Listing Photo
Listing Photo
Listing Photo
Listing Photo
Listing Photo
Listing Photo
Listing Photo
Listing Photo
Listing Photo
Listing Photo
Listing Photo

MLS #MFRO6389813 Listing courtesy of Exp Realty Llc provided by Stellar MLS.

Similar Listings

$855,000
913 La Salle Avenue
Orlando
3BR/3BA
| Pending
$864,900
5584 N Dean Road
Orlando
3BR/3BA
| Active
$869,000
665 Jackson Street
Orlando
3BR/3BA
| Active
$869,900
5497 Alandale Court
Orlando
3BR/3BA
| Active



All listing information is deemed reliable but not guaranteed and should be independently verified through personal inspection by appropriate professionals. Listings displayed on this website may be subject to prior sale or removal from sale; availability of any listing should always be independent verified. Listing information is provided for consumer personal, non-commercial use, solely to identify potential properties for potential purchase; all other use is strictly prohibited and may violate relevant federal and state law. The source of the listing data is as follows: Stellar MLS (updated 3/13/26 6:21 PM) |

Listing Search



Translate Tool

Featured Listings
St Petersburg Real Estate
$1,075,000
4 BED
3 BATH
Located in the heart of the highly sought-after Old Southeast neighborhood, this stunning 1940 bungalow was completely r... Read More
Brooksville Real Estate
$899,000
4 BED
3 BATH
Welcome to refined Florida living in guard-gated Southern Hills, where this 2024 Arthur Rutenberg–built residence sits g... Read More
Maitland Real Estate
$825,000
3 BED
2 BATH
This Maitland Woods charming home is located beneath the canopy of beautiful oak trees in one of Maitland’s most charmin... Read More
Seminole Real Estate
$829,000
4 BED
3 BATH
Experience elevated Florida living in this exquisitely appointed 4-bedroom, 3-bath, 2-car garage single-family home in d... Read More
Orlando Real Estate
$949,900
4 BED
3 BATH
Under contract-accepting backup offers. Welcome to 529 W Princeton St a Stunning Brand-New Luxury Home in Prime College ... Read More
Orlando Real Estate
$1,100,000
5 BED
5 BATH
One or more photo(s) has been virtually staged. Luxury meets lifestyle in Eagle Creek. This elegant two-story home offer... Read More
Bradenton Real Estate
$1,399,000
4 BED
3 BATH
PERFECT ~ A Sarasota / Bradenton Area Waterfront Home / Property ~ Waterfront Views ~ The Much Sought After: Gated - Bel... Read More
Gainesville Real Estate
$1,399,900
4 BED
4 BATH
Immaculately upgraded Barry Bullard home featuring exceptional, custom-built enhancements throughout. Situated on a spec... Read More
Palmetto Real Estate
$995,000
3 BED
2 BATH
STUNNING PALMETTO WATERFRONT HOME THAT IS ABSOLUTELY MOVE-IN READY — JUST BRING YOUR BAGS AND BOAT! Tucked away on a pro... Read More
Seminole Real Estate
$875,000
4 BED
2 BATH
LOCATION, LOCATION, LOCATION! Discover your private retreat in the highly sought-after Drew Oaks Estates of Seminole in ... Read More
Contact Sandra Pardo

407-990-2746

Wendy Morris LLC

Licensed in the State of Florida
BK 3146762
16797 Broadwater Avenue
Winter Garden, Florida 34787

Your privacy is our utmost concern. We will never sell your personal information. Privacy Policy
©2026 sandrapardohomes.com - all rights reserved. | Site Map