407-990-2746
Menu

103 17th E Street, Bradenton, FL

NEXT
PREV
$520,000

($307/sqft)

List Status: Active
103 17th E Street
Bradenton, FL 34208


3 beds
2 baths
1694 living sqft
Top Features
  • View: Water, Park/Greenbelt, Trees/Woods
  • Subdivision: Riverside Heights
  • Built in  2000
  • Single Family Residence
Description
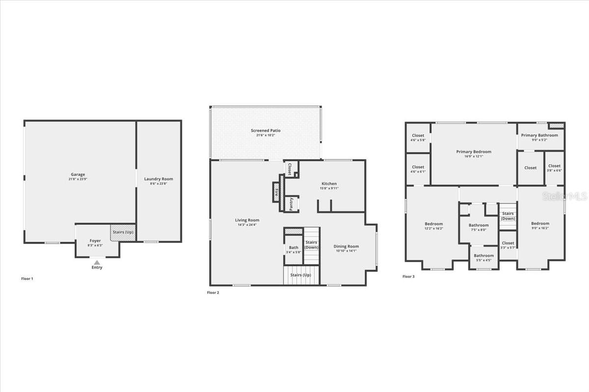
This unique elevated, waterview property backs up to a tranquil 1.6 acre waterfront private park with a boat ramp- (Partial ownership TRANSFERS to the buyer of this property).  Enjoy fishing, swimming, or taking your kayak or jet skis out on the water.  On the first floor you will find an oversized garage with storage space with an elevated laundry room, half bath and a lovely loft area.  You will find the main living area on the second floor with the kitchen, dining room, living room with fireplace, and a nicepowder room.  A generously sized screened porch and an open deck share the awesome waterview.  On the top floor you will find the primary bedroom, primary bath, the two guest bedrooms that share a hall bath.  This property has a fenced in yard perfect to keep your fur babies in and allowing easy access to your waterfront park.  Tons of parking for all of your toys and boats.  The Riverwalk extension is walking distance from this home and adds to your active Florida lifestyle.  Walk or bike ride to your favorite restaurants along the Bradenton Riverwalk. Perfect for kayakers, SUP, and jet skis too. No deed restrictions here! East of Historic River District & popular Downtown Riverwalk. Short bicycle or car ride to the farmers market, restaurants, park, library, public art, shopping, The South Florida Museum, Manatee Historical Village Park, Art Center Manatee, Local Award Winning Breweries, Manatee Performing Arts Center, or Lecom Baseball Park. Short distance away from the best GULF beaches, Sarasota Airport and attractions, St Pete 25-minutes away, Tampa Airport 45 minutes, Great centrally located home! Buyer to verify measurements.
Property Details
Additional Information
Additional Lease Restrictions
MUST GET A SHORT TERM RENTAL PERMIT FROM THE CITY
Additional Parcels YN
false
Additional Rooms
Inside Utility, Loft, Storage Rooms
Appliances
Dishwasher, Disposal, Dryer, Electric Water Heater, Exhaust Fan, Range, Refrigerator, Washer
Approval Process
See HOA adjoining recreational lot disclosure attached
Architectural Style
Colonial
Association Email
Cesmith067@yahoo.com
Association Fee
360
Association Fee Frequency
Annually
Association Fee Requirement
Optional
Association YN
true
Attached Garage YN
true
Available For Lease YN
1
Bathrooms Total Integer
4
Building Area Source
Public Records
Building Area Total
2680
Building Area Total Srch SqM
248.98
Building Area Units
Square Feet
Calculated List Price By Calculated SqFt
306.97
Carport YN
false
Construction Materials
Block, Other, Frame
Cooling
Central Air
Country
US
Cumulative Days On Market
124
Current Price
520000.00
Direction Faces
West
Elementary School
Manatee Elementary School-MN
Exterior Features
Balcony
Fencing
Vinyl
Fireplace Features
Electric
Fireplace YN
true
Flood Zone Code
AE
Flood Zone Date
2021-08-10
Flood Zone Panel
12081C0306F
Flooring
Ceramic Tile, Laminate, Wood
Foundation Details
Slab
Furnished
Partially
Garage Spaces
2
Garage YN
true
Heating
Central, Electric
High School
Manatee High
Homestead YN
1
Interior Features
Ceiling Fans(s), Smart Home, Solid Surface Counters, Thermostat, Walk-In Closet(s), Window Treatments
Internet Address Display YN
true
Internet Automated Valuation Display YN
true
Internet Consumer Comment YN
true
Internet Entire Listing Display YN
true
Laundry Features
In Garage, Laundry Chute
Levels
Three Or More
List AOR
Suncoast Tampa
Living Area Meters
157.38
Living Area Source
Appraiser
Living Area Units
Square Feet
Lot Features
Near Public Transit
Lot Size Acres
0.29
Lot Size Square Feet
12449
Lot Size Square Meters
1157
Middle Or Junior School
Martha B. King Middle
Minimum Lease
No Minimum
Modification Timestamp
2026-03-04T22:33:09.086Z
Monthly HOA Amount
30.00
New Construction YN
false
Num Times per Year
365
Occupant Type
Owner
Ownership
Fee Simple
Parcel Number
1242900304
Patio And Porch Features
Rear Porch, Screened
Pet Restrictions
Manatee County leash law
Pets Allowed
Cats OK, Dogs OK, Yes
Pool Private YN
false
Postal Code Plus 4
1426
Previous List Price
525000
Price Change Timestamp
2026-03-04T22:32:14.000Z
Public Survey Range
18
Public Survey Section
30
RATIO Current Price By Calculated SqFt
306.97
Realtor Info
As-Is, Docs Available, Floor Plan Available, Owner Motivated, Sign
Road Surface Type
Paved
Roof
Shingle
Room Count
7
SW Subdiv Community Name
Riverside Heights Subdivision
Security Features
Closed Circuit Camera(s), Security System, Security System Owned
Senior Community YN
false
Sewer
Public Sewer
Showing Requirements
ShowingTime
Status Change Timestamp
2025-10-31T16:05:06.000Z
Stories Total
3
Tax Annual Amount
7973
Tax Book Number
16-50
Tax Legal Description
LOT 5 RIVERSIDE HEIGHTS SUB PI#12429.0030/4
Tax Lot
5
Tax Year
2024
Total Acreage
1/4 to less than 1/2
Total Annual Fees
360.00
Total Monthly Fees
30.00
Township
34
Universal Property Id
US-12081-N-1242900304-R-N
Unparsed Address
103 17TH ST E
Utilities
Cable Connected, Electricity Connected, Public, Sewer Connected
Vegetation
Mature Landscaping
Water Access
River
Water Access YN
1
Water Body Name
MANATEE RIVER
Water Extras
Fishing Pier
Water Extras YN
1
Water Source
Public
Water View
River
Water View YN
1
Waterfront YN
false
Window Features
Blinds, Storm Window(s)
Zoning
R1B
Neighborhood Map
Popup

Property Photos
Listing Photo
Listing Photo
Listing Photo
Listing Photo
Listing Photo
Listing Photo
Listing Photo
Listing Photo
Listing Photo
Listing Photo
Listing Photo
Listing Photo
Listing Photo
Listing Photo
Listing Photo
Listing Photo
Listing Photo
Listing Photo
Listing Photo
Listing Photo
Listing Photo
Listing Photo
Listing Photo
Listing Photo
Listing Photo
Listing Photo
Listing Photo
Listing Photo
Listing Photo
Listing Photo
Listing Photo
Listing Photo
Listing Photo
Listing Photo
Listing Photo
Listing Photo
Listing Photo
Listing Photo
Listing Photo
Listing Photo
Listing Photo
Listing Photo
Listing Photo
Listing Photo
Listing Photo
Listing Photo
Listing Photo
Listing Photo
Listing Photo
Listing Photo
Listing Photo
Listing Photo
Listing Photo
Listing Photo
Listing Photo
Listing Photo
Listing Photo
Listing Photo
Listing Photo
Listing Photo
Listing Photo
Listing Photo
Listing Photo
Listing Photo
Listing Photo
Listing Photo
Listing Photo
Listing Photo
Listing Photo
Listing Photo
Listing Photo
Listing Photo
Listing Photo
Listing Photo
Listing Photo
Listing Photo
Listing Photo
Listing Photo
Listing Photo
Listing Photo
Listing Photo
Listing Photo
Listing Photo
Listing Photo
Listing Photo
Listing Photo
Listing Photo
Listing Photo
Listing Photo
Listing Photo

MLS #MFRTB8441111 Listing courtesy of Forever Florida Real Estate provided by Stellar MLS.

Similar Listings

$469,000
714 29th W Street
Bradenton
3BR/2BA
| Active
$469,000
120 Tidy Island Boulevard
Bradenton
3BR/2BA
| Active
$469,597
5624 Summit Pointe Circle
Bradenton
3BR/2BA
| Active
$469,900
3418 79th Street W Circle
Bradenton
3BR/2BA
| Active



All listing information is deemed reliable but not guaranteed and should be independently verified through personal inspection by appropriate professionals. Listings displayed on this website may be subject to prior sale or removal from sale; availability of any listing should always be independent verified. Listing information is provided for consumer personal, non-commercial use, solely to identify potential properties for potential purchase; all other use is strictly prohibited and may violate relevant federal and state law. The source of the listing data is as follows: Stellar MLS (updated 3/18/26 6:57 AM) |

Listing Search



Translate Tool

Featured Listings
Palm Coast Real Estate
$829,000
4 BED
3 BATH
If you are looking for a FULLY FURNISHED and truly turn-key home, your search is over. Welcome to 41 Los Lagos, with its... Read More
Land O Lakes Real Estate
$980,000
5 BED
4 BATH
Introducing an extraordinary opportunity to own a majestic lakefront estate in the coveted gated community of Lakewood R... Read More
Clearwater Beach Real Estate
$1,385,000
2 BED
2 BATH
JWM 1510 (a top 3 preconstruction lottery pick) is a spectacular 2BR 2 FB Suite in the luxurious JWM resort! For a narro... Read More
Longboat Key Real Estate
$1,215,000
2 BED
2 BATH
Live in this third floor Beaches of Longboat Key condo and enjoy a living maintenance free lifestyle. Located on the sou... Read More
Sarasota Real Estate
$969,000
3 BED
2 BATH
Embrace the best of Florida living in this beautifully renovated Griffon Woods home in Longwood Run, offering over 2,700... Read More
Tarpon Springs Real Estate
$874,900
5 BED
3 BATH
Best-priced Royal model in Bayshore Heights—compare to recent sale of $950K. This move-in-ready home features a NEW ROOF... Read More
Orlando Real Estate
$1,049,000
4 BED
4 BATH
Welcome to 5314 Shadywood Lane, a private Dr. Phillips estate where thoughtful design, expansive scale, and modern infra... Read More
Sarasota Real Estate
$1,300,000
4 BED
4 BATH
Exceptional development opportunity in Sarasota, ideally located just off Fruitville Road east of McIntosh. This 2.81-ac... Read More
Riverview Real Estate
$995,900
6 BED
5 BATH
Luxury Living Redefined Step into a residence where timeless design, exceptional craftsmanship, and modern luxury come t... Read More
Gibsonton Real Estate
$960,000
4 BED
3 BATH
Welcome to a spectacular waterfront retreat on the Alafia River, where privacy, breathtaking views, and exceptional boat... Read More
Contact Sandra Pardo

407-990-2746

Wendy Morris LLC

Licensed in the State of Florida
BK 3146762
16797 Broadwater Avenue
Winter Garden, Florida 34787

Your privacy is our utmost concern. We will never sell your personal information. Privacy Policy
©2026 sandrapardohomes.com - all rights reserved. | Site Map