407-990-2746
Menu

, Dade City, FL

NEXT
PREV
$1,500,000

($478/sqft)

List Status: Pending

Dade City, FL 33523


4 beds
3 baths
3141 living sqft
Top Features
  • View: Trees/Woods
  • Subdivision: N/a
  • Built in  2017
  • Farm
Description
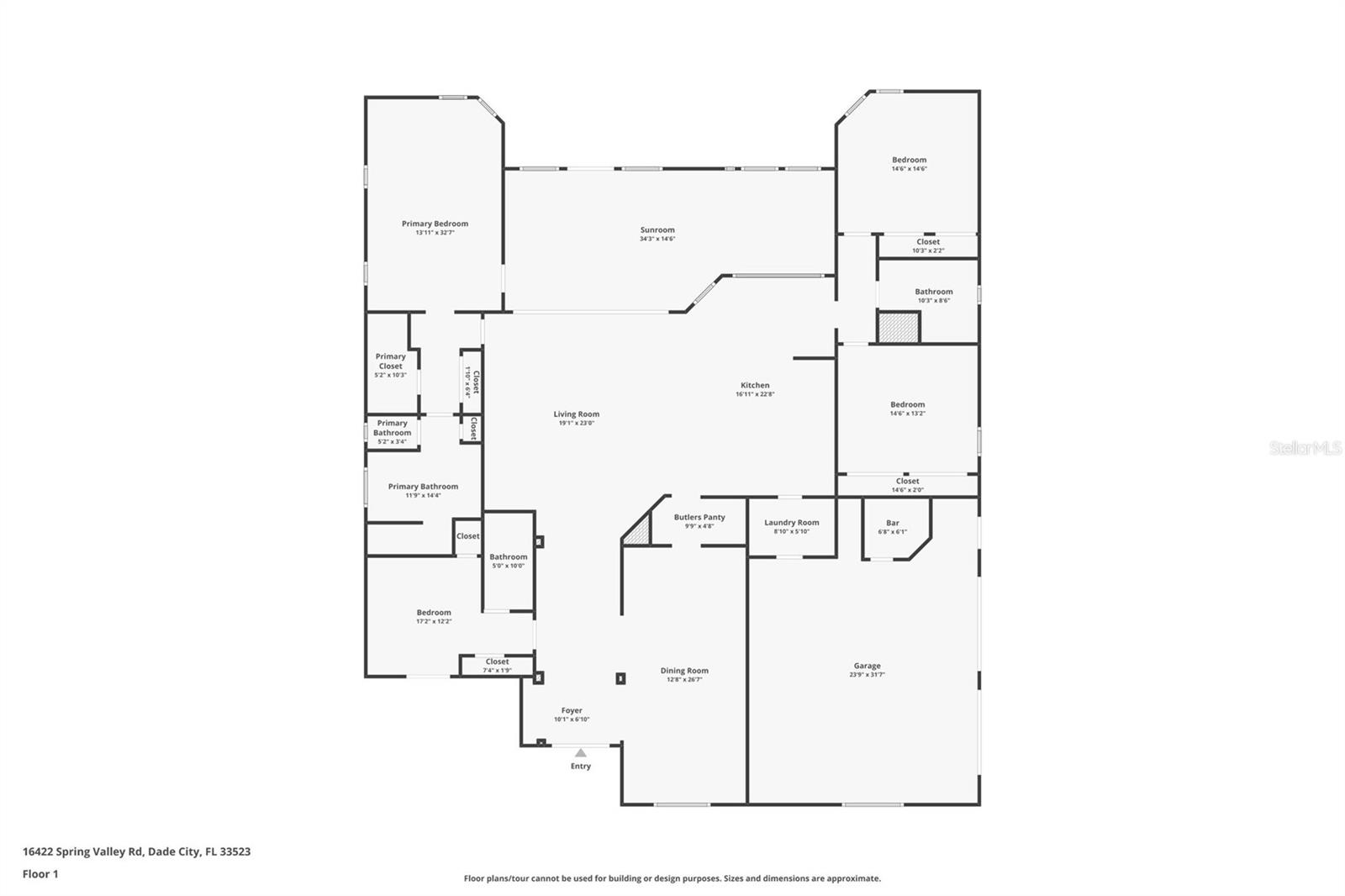
Under contract-accepting backup offers. Tucked beyond a secured gate and down a long paved driveway, this beautifully maintained 9.1-acre property immediately welcomes you with its wide open lawn, scattered mature trees, and a peaceful sense of space that sets the tone for the entire home. The paved driveway continues all the way to a 2-car garage with a convenient side entry, along with a utility vehicle overhang on the side for additional covered parking. The inviting front porch—with its smooth textured flooring, tall columns, and elegant double doors topped by an arched transom—leads into a warm foyer filled with natural light from glass-paneled doors and wood-look tile flooring that draws you inward. To the right, the dining room greets you with graceful arches, large windows, and a smooth ceiling before the hallway guides you straight into the heart of the home. The living room offers a bright and open feel with recessed lighting, wood-look tile flooring, and multiple windows, along with access to the sunroom through sliding doors. The kitchen sits just beyond, featuring a breakfast bar, dual sink, stainless appliances, white cabinetry, and recessed lighting, all opening to a cozy breakfast nook with surrounding windows and the same warm flooring. A butler’s pantry leads to a well-appointed laundry room with overhead cabinets for storage. The sunroom provides a peaceful retreat with abundant windows and direct views of the screened heated pool, heated spa, and outdoor surroundings. The primary bedroom offers a serene escape with a tray ceiling, large windows, and an ensuite bathroom with a spacious vanity, walk-in tiled shower, tub, and bright natural light. Other bedrooms offer comfortable living with matching flooring, smooth ceilings, and generous windows, with Bedroom 2 offering dual closets and the additional bathrooms featuring either tub-shower combinations or step-in showers with dual vanities. Outside, enjoy a relaxing patio with a brick fire pit and
Property Details
Additional Information
Additional Lease Restrictions
Buyer/Buyers Agent to verify any lease restrictions.
Additional Parcels YN
false
Additional Rooms
Florida Room, Great Room
Alternate Key Folio Num
21-24-17-000.0-003.00-012.A
Appliances
Built-In Oven, Cooktop, Dishwasher, Disposal, Dryer, Microwave, Range Hood, Refrigerator, Washer, Water Filtration System, Wine Refrigerator
Architectural Style
Ranch
Association YN
false
Attached Garage YN
true
Available For Lease YN
1
Bathrooms Total Integer
3
Building Area Source
Public Records
Building Area Total
4510
Building Area Total Srch SqM
418.99
Building Area Units
Square Feet
Calculated List Price By Calculated SqFt
477.55
Carport YN
false
Construction Materials
Block, Concrete, Stucco
Contract Status
Appraisal, Financing, Inspections
Cooling
Central Air
Country
US
Cumulative Days On Market
70
Current Price
1500000.00
Direction Faces
South
Elementary School
San Antonio-PO
Expected Closing Date
2026-03-09T00:00:00.000
Exterior Features
Fire Pit, Garden, Rain Gutters, Sliding Doors, Storage
Farm Type
Cattle
Fencing
Electric, Fenced, Masonry, Wood
Fireplace YN
false
Flood Zone Code
X
Flood Zone Date
2014-09-26
Flood Zone Panel
12101C0115F
Flooring
Tile
Foundation Details
Slab
Furnished
Negotiable
Garage Spaces
2
Garage YN
true
Heating
Central, Electric
High School
Pasco High-PO
Homestead YN
1
Interior Features
Ceiling Fans(s), Eat-in Kitchen, Primary Bedroom Main Floor, Split Bedroom, Thermostat, Tray Ceiling(s), Vaulted Ceiling(s), Walk-In Closet(s), Window Treatments
Internet Address Display YN
false
Internet Automated Valuation Display YN
false
Internet Consumer Comment YN
false
Internet Entire Listing Display YN
true
Laundry Features
Electric Dryer Hookup, Inside, Laundry Room, Washer Hookup
Levels
One
List AOR
West Pasco
Living Area Meters
291.81
Living Area Source
Public Records
Living Area Units
Square Feet
Lot Features
Cleared, Farm, City Limits, Level, Pasture, Paved
Lot Size Acres
9.1
Lot Size Square Feet
396396
Lot Size Square Meters
36826
Middle Or Junior School
Pasco Middle-PO
Minimum Lease
No Minimum
Modification Timestamp
2026-02-13T14:07:09.304Z
New Construction YN
false
Number Of Septics
1
Occupant Type
Owner
Other Equipment
Fire Pit, Irrigation Equipment, Feeding Station(s), Generator, Livestock Equipment, Loading Pens
Other Structures
Shed(s)
Ownership
Fee Simple
Parcel Number
17 24 21 0000 00300 012A
Patio And Porch Features
Covered, Front Porch, Patio, Porch, Rear Porch
Pet Restrictions
Buyer/Buyers Agent to verify any pet restrictions.
Pets Allowed
Yes
Pool Private YN
true
Postal Code Plus 4
6331
Public Survey Range
21
Public Survey Section
17
Purchase Contract Date
2026-02-12
RATIO Current Price By Calculated SqFt
477.55
Realtor Info
As-Is
Road Responsibility
Public Maintained Road
Road Surface Type
Asphalt, Concrete, Paved
Roof
Shingle
Room Count
3
Security Features
Secured Garage/Parking, Security Gate, Security System, Security System Owned, Smoke Detector(s)
Senior Community YN
false
Sewer
Septic Tank
Showing Requirements
Supra Lock Box, Appointment Only, Call Before Showing, Contact Call Center, Lockbox, See Remarks, ShowingTime
Spa Features
Heated
Spa YN
true
Status Change Timestamp
2026-02-13T14:06:44.000Z
Stories Total
1
Tax Annual Amount
6254
Tax Block
00300
Tax Book Number
9281-2293
Tax Legal Description
PORTION OF EAST 668.00 FT OF SW1/4 OF NE1/4 OF SECTION 17 DESC AS: COM AT SE COR OF SW1/4 OF NE1/4 OF SEC 17 TH ALG SOUTH LINE THEREOF N89DEG 35'06"W 668.00 FT TH ALG WEST LN OF EAST 668.00 FT OF SW1/4 OF NE1/4 N00DEG 00'54"E 29.13 FT TO NLY R/W LN O F SPRING VALLEY RD FOR POB TH CONT ALG SAID LN N00DEG 00'54"E 1296.87 FT TO NORTH LN OF SW1/4 OF NE1/4 TH ALG SAID LN N89DEG 23'50"E 312.00 FT TH S00DEG 00'54"W 705.05 FT TO PT 600.00 FT NORTH OF & PEREPENDICULAR TO NLY R/W LN OF SPRING VALLEY RD TH PARALLEL TO SAID R/W LN N89DEG 06'00"W 96.00 FT TH S01DEG 02'05"E 600.27 FT TO R/W LN TH ALG R/W LN N89DEG06' 00"W 227.00 FT TO POB& COM AT SE COR OF SW1/4 OF NE1/ 4 OF SEC TH ALG SOUTH LINE S89DEG35'06"W 668.00 FT TH ALG WEST LINE OF EAST 668.00 FT
Tax Lot
012A
Tax Year
2024
Total Acreage
5 to less than 10
Total Annual Fees
0.00
Total Monthly Fees
0.00
Township
24
Universal Property Id
US-12101-N-172421000000300012-R-N
Utilities
BB/HS Internet Available, Cable Available, Electricity Available, Private, Underground Utilities, Water Available
Vegetation
Fruit Trees, Mature Landscaping
Water Source
Well
Waterfront YN
false
Window Features
Double Pane Windows, ENERGY STAR Qualified Windows, Insulated Windows
Zoning
AR5
Property Photos
Listing Photo
Listing Photo
Listing Photo
Listing Photo
Listing Photo
Listing Photo
Listing Photo
Listing Photo
Listing Photo
Listing Photo
Listing Photo
Listing Photo
Listing Photo
Listing Photo
Listing Photo
Listing Photo
Listing Photo
Listing Photo
Listing Photo
Listing Photo
Listing Photo
Listing Photo
Listing Photo
Listing Photo
Listing Photo
Listing Photo
Listing Photo
Listing Photo
Listing Photo
Listing Photo
Listing Photo
Listing Photo
Listing Photo
Listing Photo
Listing Photo
Listing Photo
Listing Photo
Listing Photo
Listing Photo
Listing Photo
Listing Photo
Listing Photo
Listing Photo
Listing Photo
Listing Photo
Listing Photo
Listing Photo
Listing Photo
Listing Photo
Listing Photo
Listing Photo
Listing Photo
Listing Photo
Listing Photo
Listing Photo
Listing Photo
Listing Photo
Listing Photo
Listing Photo
Listing Photo
Listing Photo
Listing Photo
Listing Photo
Listing Photo
Listing Photo
Listing Photo
Listing Photo
Listing Photo
Listing Photo
Listing Photo
Listing Photo
Listing Photo
Listing Photo
Listing Photo
Listing Photo
Listing Photo
Listing Photo
Listing Photo
Listing Photo
Listing Photo
Listing Photo
Listing Photo
Listing Photo
Listing Photo
Listing Photo
Listing Photo
Listing Photo
Listing Photo
Listing Photo
Listing Photo
Listing Photo
Listing Photo
Listing Photo
Listing Photo
Listing Photo
Listing Photo
Listing Photo
Listing Photo
Listing Photo
Listing Photo
Listing Photo
Listing Photo
Listing Photo
Listing Photo
Listing Photo
Listing Photo
Listing Photo
Listing Photo
Listing Photo
Listing Photo
Listing Photo
Listing Photo
Listing Photo
Listing Photo
Listing Photo
Listing Photo
Listing Photo
Listing Photo
Listing Photo
Listing Photo
Listing Photo
Listing Photo
Listing Photo
Listing Photo
Listing Photo
Listing Photo
Listing Photo
Listing Photo
Listing Photo
Listing Photo
Listing Photo
Listing Photo
Listing Photo
Listing Photo
Listing Photo
Listing Photo
Listing Photo
Listing Photo
Listing Photo
Listing Photo
Listing Photo
Listing Photo
Listing Photo
Listing Photo
Listing Photo
Listing Photo
Listing Photo
Listing Photo
Listing Photo
Listing Photo
Listing Photo
Listing Photo
Listing Photo
Listing Photo
Listing Photo
Listing Photo
Listing Photo
Listing Photo
Listing Photo
Listing Photo
Listing Photo
Listing Photo
Listing Photo
Listing Photo
Listing Photo
Listing Photo
Listing Photo
Listing Photo
Listing Photo
Listing Photo
Listing Photo
Listing Photo
Listing Photo
Listing Photo
Listing Photo
Listing Photo
Listing Photo
Listing Photo
Listing Photo
Listing Photo

MLS #MFRW7880942 Listing courtesy of Re/max Marketing Specialists provided by Stellar MLS.

Similar Listings

$1,400,000
34710 Clayton Road
Dade City
4BR/3BA
| Active



All listing information is deemed reliable but not guaranteed and should be independently verified through personal inspection by appropriate professionals. Listings displayed on this website may be subject to prior sale or removal from sale; availability of any listing should always be independent verified. Listing information is provided for consumer personal, non-commercial use, solely to identify potential properties for potential purchase; all other use is strictly prohibited and may violate relevant federal and state law. The source of the listing data is as follows: Stellar MLS (updated 2/13/26 11:21 PM) |

Listing Search



Translate Tool

Featured Listings
Windermere Real Estate
$885,000
6 BED
4 BATH
Stunning upgraded house in Windermere Isle in Gas community, NO Carpet in the house. Two downstairs bedrooms are perfect... Read More
Riverview Real Estate
$945,000
6 BED
4 BATH
WATERFRONT!!! Elegance and charm collide in this well appointed 6 bedroom, 4 bath, 3 car garage home with resort style l... Read More
Orlando Real Estate
$1,060,000
3 BED
3 BATH
ASK ABOUT SELLER CONCESSIONS TO BUYER. Beautiful Contemporary modern home in the Hourglass area in the Boone and Blanker... Read More
Ocala Real Estate
$1,250,750
5 BED
4 BATH
Welcome to South Point, an exclusive gated community of luxury estate homes in desirable Southeast Ocala. Tucked away on... Read More
Bradenton Real Estate
$1,175,000
3 BED
2 BATH
Enjoy incredible double lake views, with incredible sunsets. Turnkey just bring your toothbrush and bathing suit. If you... Read More
Longboat Key Real Estate
$1,295,000
3 BED
3 BATH
This meticulously renovated, maintenance-free residence is situated within the esteemed Harbour Oaks community on Longbo... Read More
Hudson Real Estate
$1,050,000
4 BED
3 BATH
Exceptional Business Opportunity with Dual Addresses and Paid Impact Fees! Seize this rare chance to build or expand you... Read More
Crystal Beach Real Estate
$1,399,000
3 BED
2 BATH
Wake up to endless Gulf views in this stunning geodesic dome retreat. Designed for strength and energy efficiency, this ... Read More
Sarasota Real Estate
$1,350,000
3 BED
3 BATH
The West Indies Beacon floor plan in Cassia at Skye Ranch greets you with a bright open foyer that immediately sets the ... Read More
Tampa Real Estate
$850,000
4 BED
3 BATH
Welcome to 3704 W Platt Street in Tampa 33609, located in the highly sought-after Plant High School district. This South... Read More
Contact Sandra Pardo

407-990-2746

Wendy Morris LLC

Licensed in the State of Florida
BK 3146762
16797 Broadwater Avenue
Winter Garden, Florida 34787

Your privacy is our utmost concern. We will never sell your personal information. Privacy Policy
©2026 sandrapardohomes.com - all rights reserved. | Site Map